← Back to Tendring District Council

Status

Awaiting decision
Received
15 Aug 2025
New dwellings
n/a

Summary

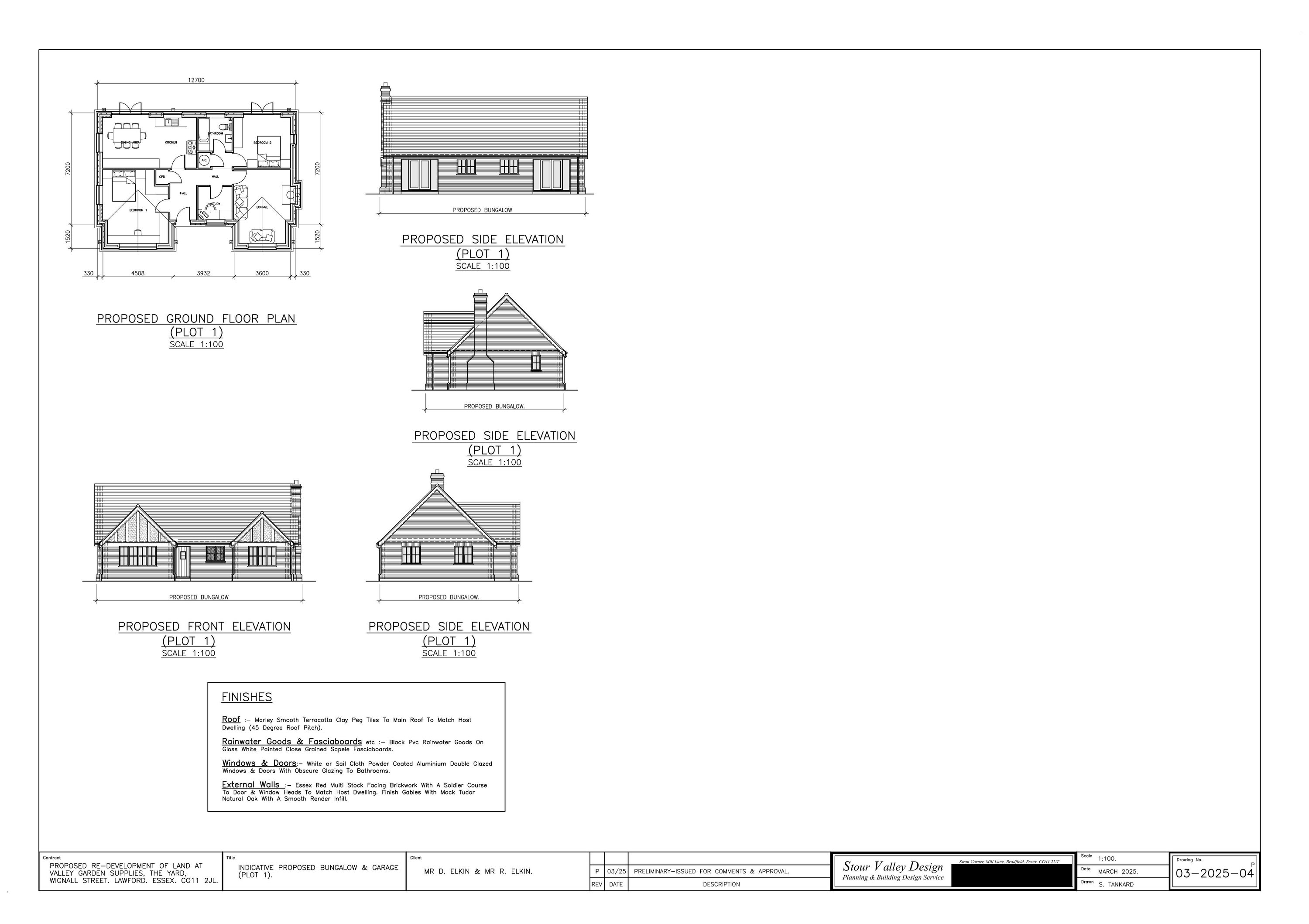
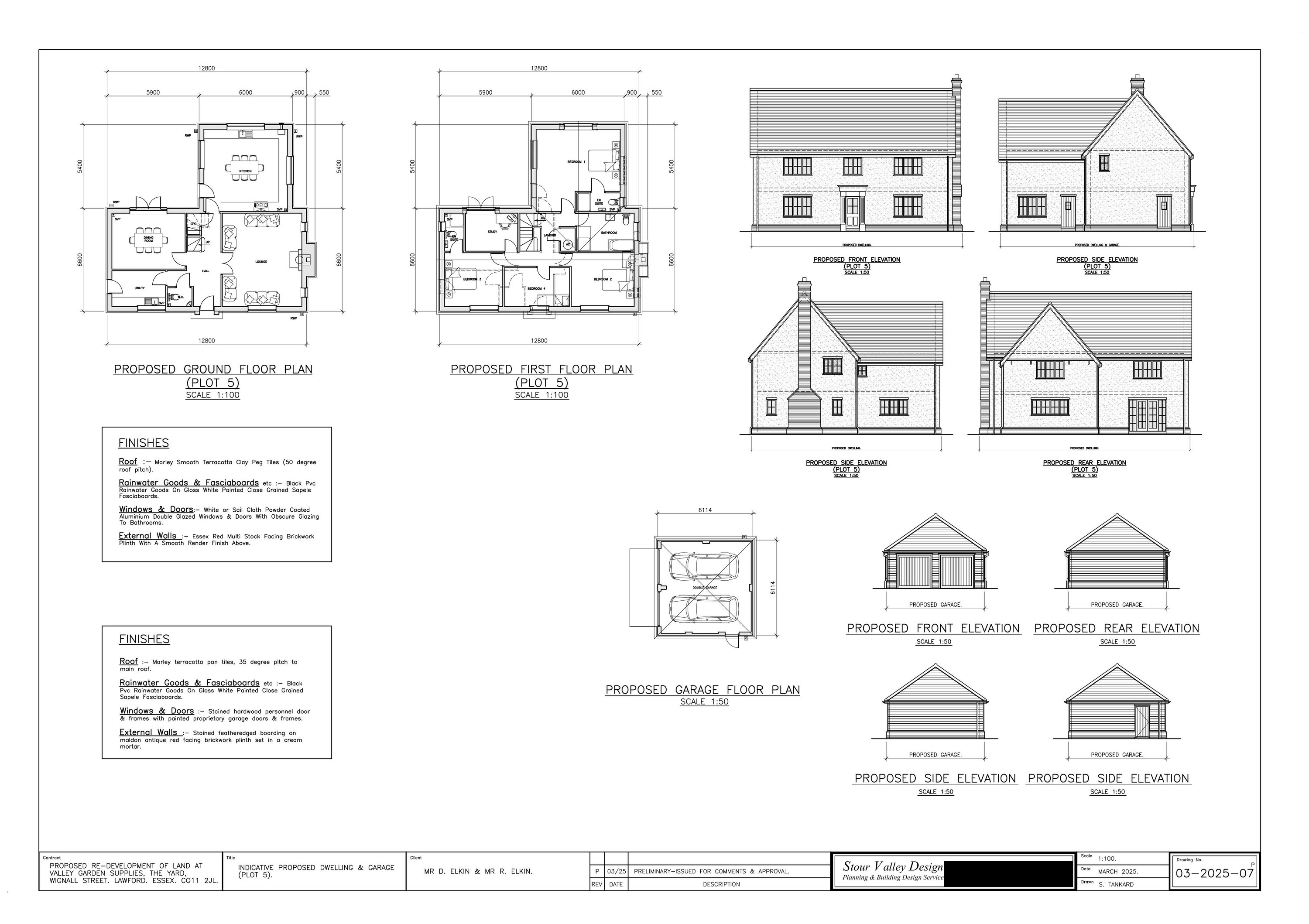
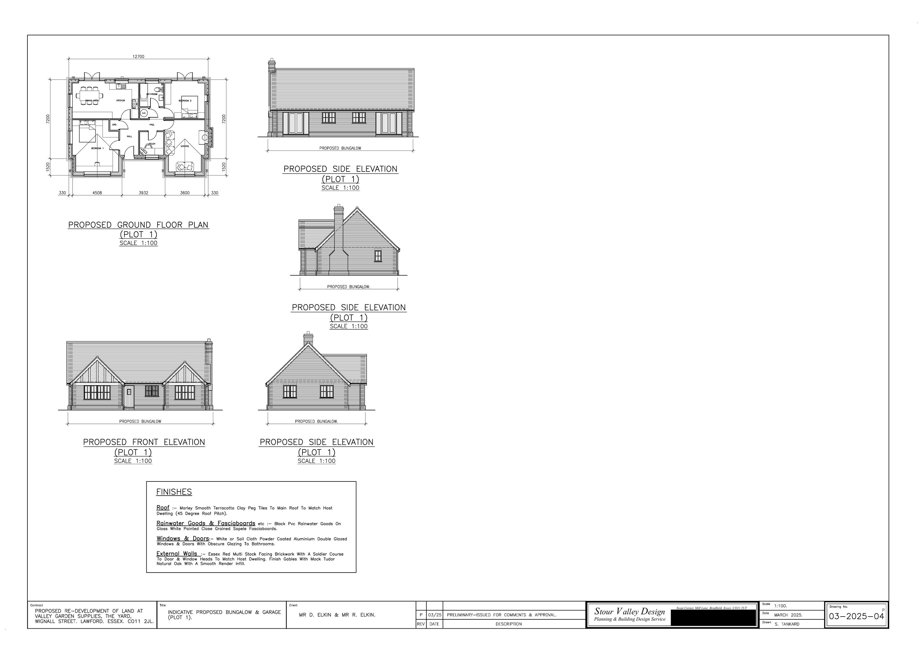
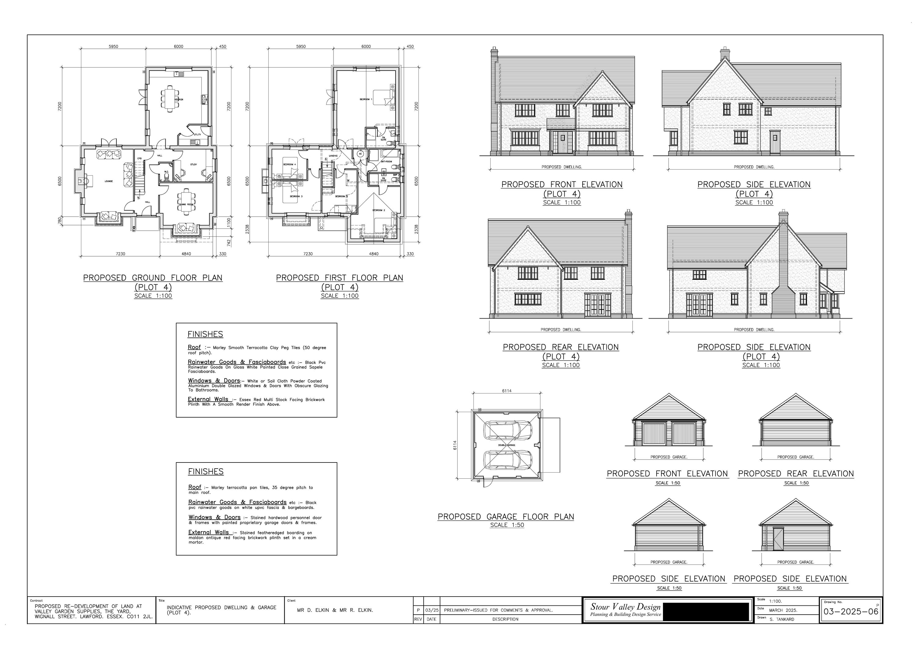
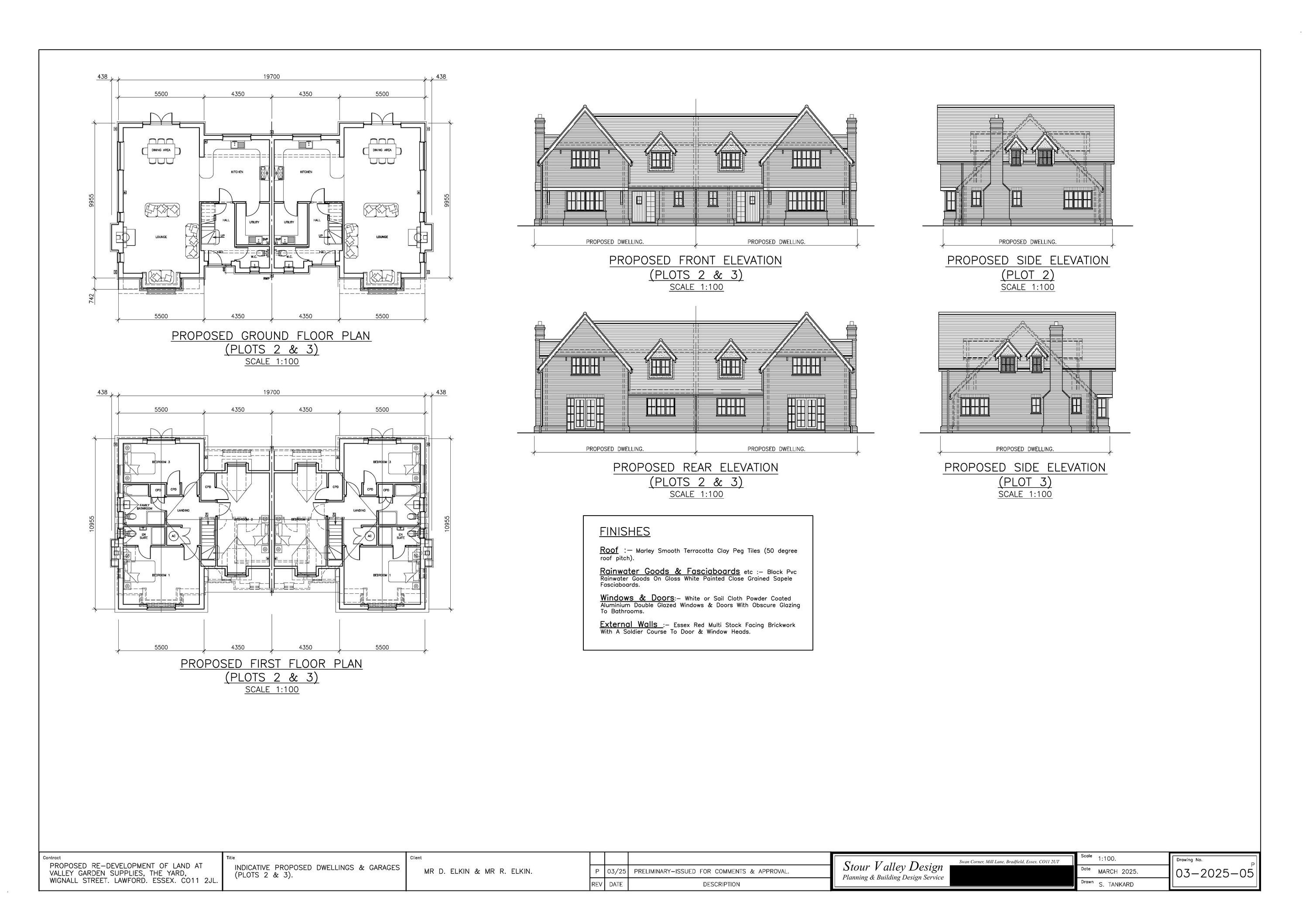
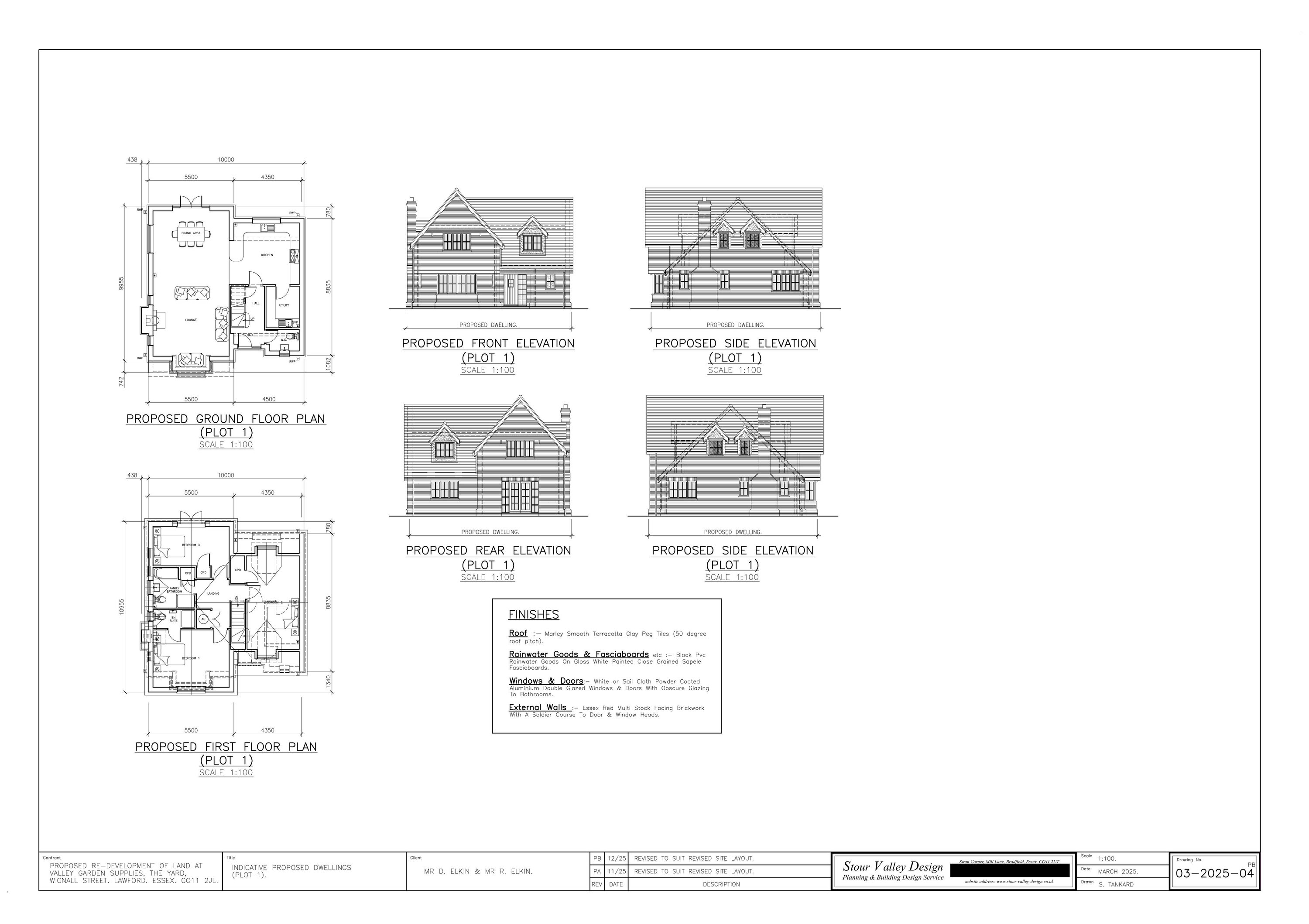
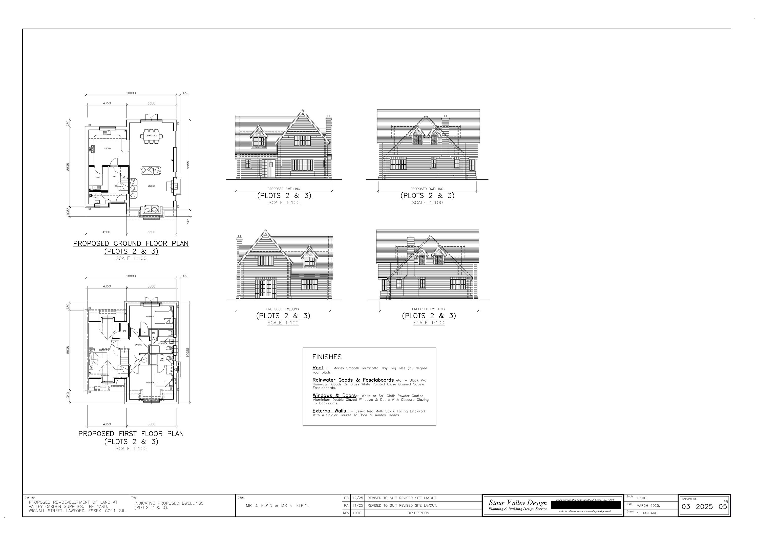
Outline application (access/layout) for erection of up to five dwellings.

Full Proposal

Outline Planning Application (Access/Layout to be considered) - Erection of up to 3 dwellings.

Documents

Acknowledgement letter
Acknowledgement Letter
Not archived · Council Link
Additional parish comment - rec'd 04.11.25
Public Comment
Not archived · Council Link
Agent letter to applicant - rec'd 01.10.25
Correspondence
Not archived · Council Link
Agent letter to ecc highways - rec'd 01.10.25
Correspondence
Not archived · Council Link
Amended existing block plan - rec'd 22.12.25
Drawing
Not archived · Council Link
Amended proposed block plan - rec'd 22.12.25
Drawing
Not archived · Council Link
Application form - rec'd 15/08/2025
Application Form
Not archived · Council Link
Arboricultural impact assessment and method statements - rec'd 15/08/2023
Report
Not archived · Council Link
Bat survey - rec'd 15/08/2023
Report
Not archived · Council Link
Confirmation of broadband - rec'd 20.08.25
Other
Not archived · Council Link
Consultee comment - environmental protection - rec'd 01.09.25
Consultee Comment
Not archived · Council Link
Consultee response - ecc heritage - rec'd 17.10.2025
Consultee Comment
Not archived · Council Link
Consultee response - ecc highways dept - rec'd 31.10.25
Consultee Comment
Not archived · Council Link
Consulteecomment
Consultee Comment
Not archived · Council Link
Consulteecomment
Consultee Comment
Not archived · Council Link
Consulteecomment
Consultee Comment
Not archived · Council Link
Consulteecomment
Consultee Comment
Not archived · Council Link
Consulteecomment
Consultee Comment
Not archived · Council Link
Correspondence
Correspondence
Not archived · Council Link
Cover email 1 - rec'd 15/08/2023
Correspondence
Not archived · Council Link
Cover email 2 - rec'd 15/08/2023
Correspondence
Not archived · Council Link
Design and access statement - rec'd 15/08/2023
Report
Not archived · Council Link
Eot agreement - rec'd 06.01.2026
Correspondence
Not archived · Council Link
Eot agreement - rec'd 11.11.25
Correspondence
Not archived · Council Link
Existing block plan - rec'd 15/08/2023
Drawing
Not archived · Council Link
Extension of time agreement - rec'd 9.10.2025
Other
Not archived · Council Link
External site photos - rec'd 15/08/2023
Photo
Not archived · Council Link
Internal site photos - rec'd 15/08/2023
Photo
Not archived · Council Link
Objection comment - rec'd 01.10.2025
Objection Comment
Not archived · Council Link
Objection comment - rec'd 08.10.2025
Objection Comment
Not archived · Council Link
Objection comment - rec'd 10.09.2025
Objection Comment
Not archived · Council Link
Objection comment - rec'd 16.09.2025
Objection Comment
Not archived · Council Link
Objection comment - rec'd 19.01.2026
Objection Comment
Not archived · Council Link
Objection comment - rec'd 19.01.2026
Objection Comment
Not archived · Council Link
Objection email - rec'd 04.09.25
Objection Comment
Not archived · Council Link
Objection email - rec'd 12.01.26
Objection Comment
Not archived · Council Link
Objection email - rec'd 22.01.26
Objection Comment
Not archived · Council Link
Objection email- rec'd 29.09.25
Objection Comment
Not archived · Council Link
Outline ecological assessment - rec'd 15/08/2023
Report
Not archived · Council Link
Proposed block plan - rec'd 15/08/2023
Drawing
Not archived · Council Link
Public comment - rec'd 11/10/25
Public Comment
Not archived · Council Link
Self-build declaration form - rec'd 20.08.25
Other
Not archived · Council Link
Signed cert b - rec'd 01.10.25
Application Form
Not archived · Council Link
Site notice
Site Notice
Not archived · Council Link
Standard building regs note - rec'd 20.08.25
Other
Not archived · Council Link
Superseded existing block plan - rec'd 15/08/2023
Drawing
Not archived · Council Link
Superseded proposed block plan - rec'd 15/08/2023
Drawing
Not archived · Council Link
Tree survey appendix - rec'd 15/08/2023
Report
Not archived · Council Link

Take Action

Make your voice heard. Authorities need to hear from people who support new homes.

✉️ Write Email in Support View on Council Portal