← Back to Tendring District Council

Status

Awaiting decision
Received
06 Oct 2025
New dwellings
n/a

Summary

Erection of 60 single‑storey dwellings for over‑55s and disabled occupants with infrastructure and open space.

Full Proposal

Planning Application - Erection of 60 single storey dwellings for those aged 55 and those with or supporting someone with a disability, with associated site infrastructure and public open space.

Documents

Acknowledgement letter
Acknowledgement Letter
Not archived · Council Link
Additional parish comment - objection - rec'd 19.11.25
Public Comment
Not archived · Council Link
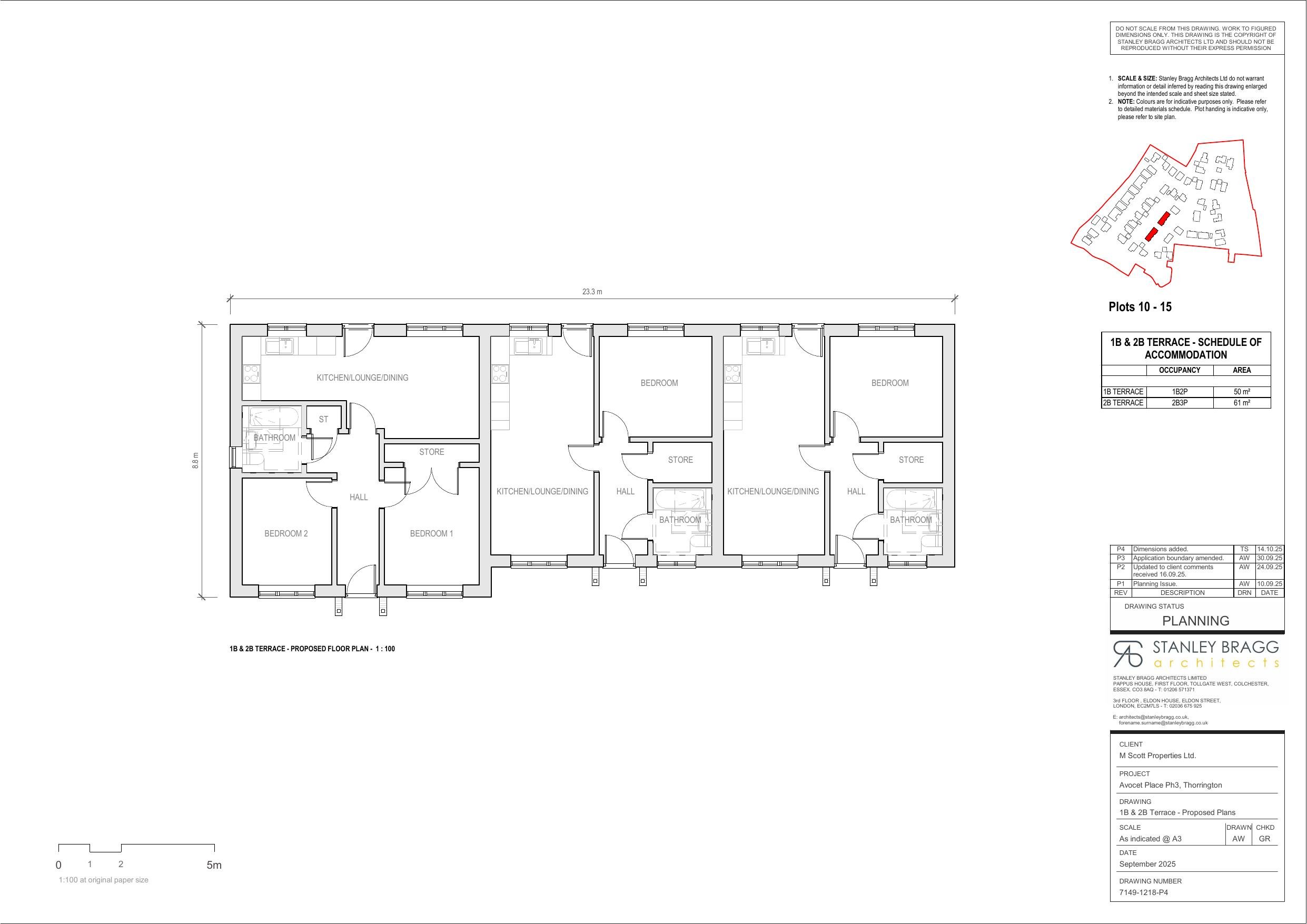
Amended 1b and 2b terrace v1 - proposed elevations - rec'd 16.10.2025
Drawing
Not archived · Council Link
Amended 1b and 2b terrace v2 floor elevations - rec'd 16.10.2025
Drawing
Not archived · Council Link
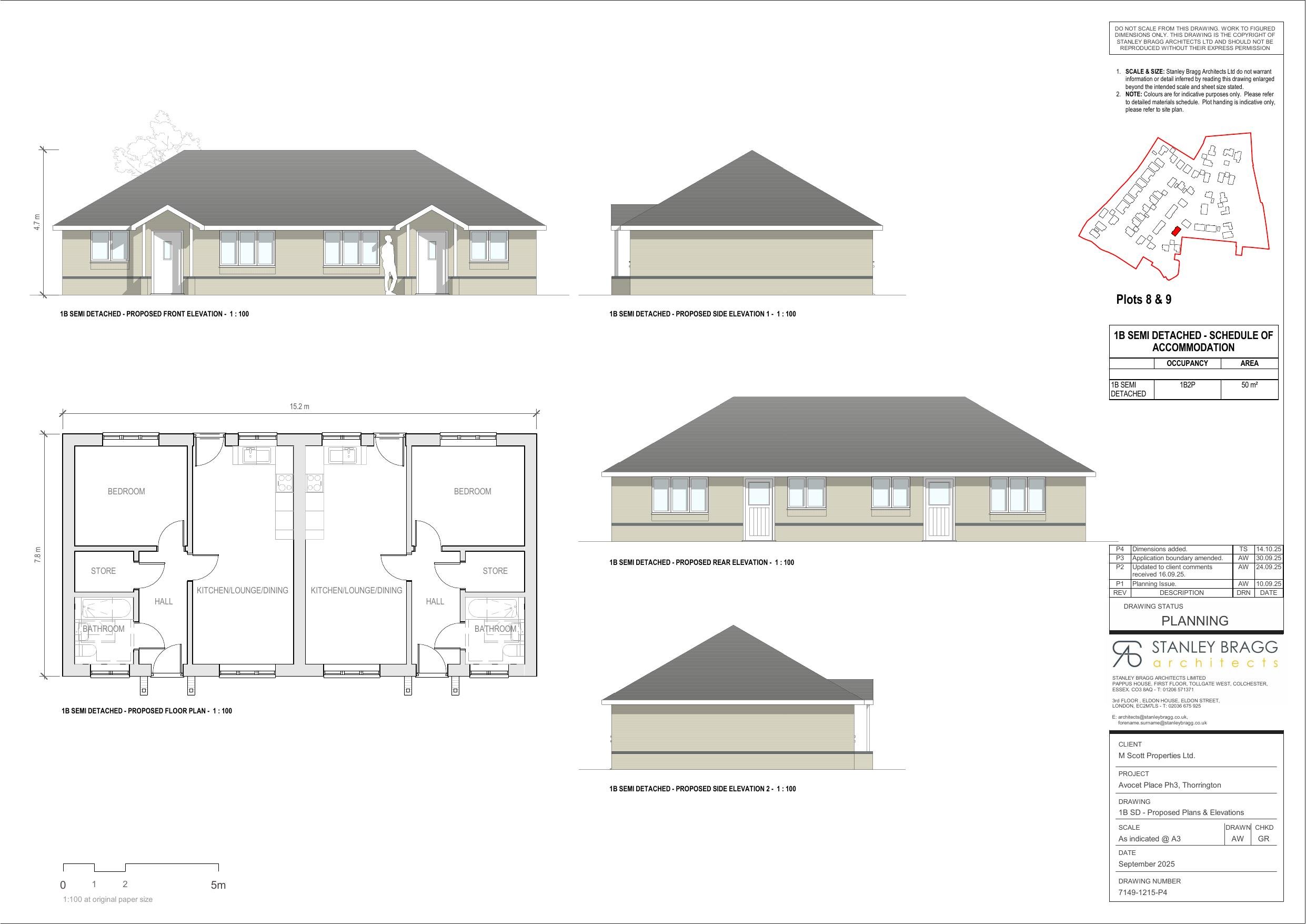
Amended 2b semi detached v2 floor plans and elevations - rec'd 16.10.2025
Drawing
Not archived · Council Link
Amended 3b semi detached v2 floor plans and elevations - rec'd 16.10.2025
Drawing
Not archived · Council Link
Amended azalea v2 floor plans and elevations - rec'd 16.10.2025
Drawing
Not archived · Council Link
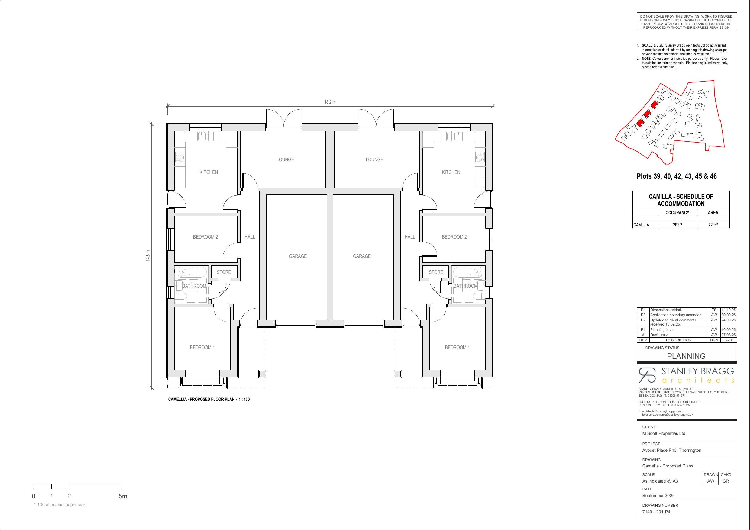
Amended camelia - proposed elevations - rec'd 16.10.25
Drawing
Not archived · Council Link
Amended daisy v2 floor plans and elevations - rec'd 16.10.2025
Drawing
Not archived · Council Link
Amended double garage floor plans and elevations - rec'd 16.10.2025
Drawing
Not archived · Council Link
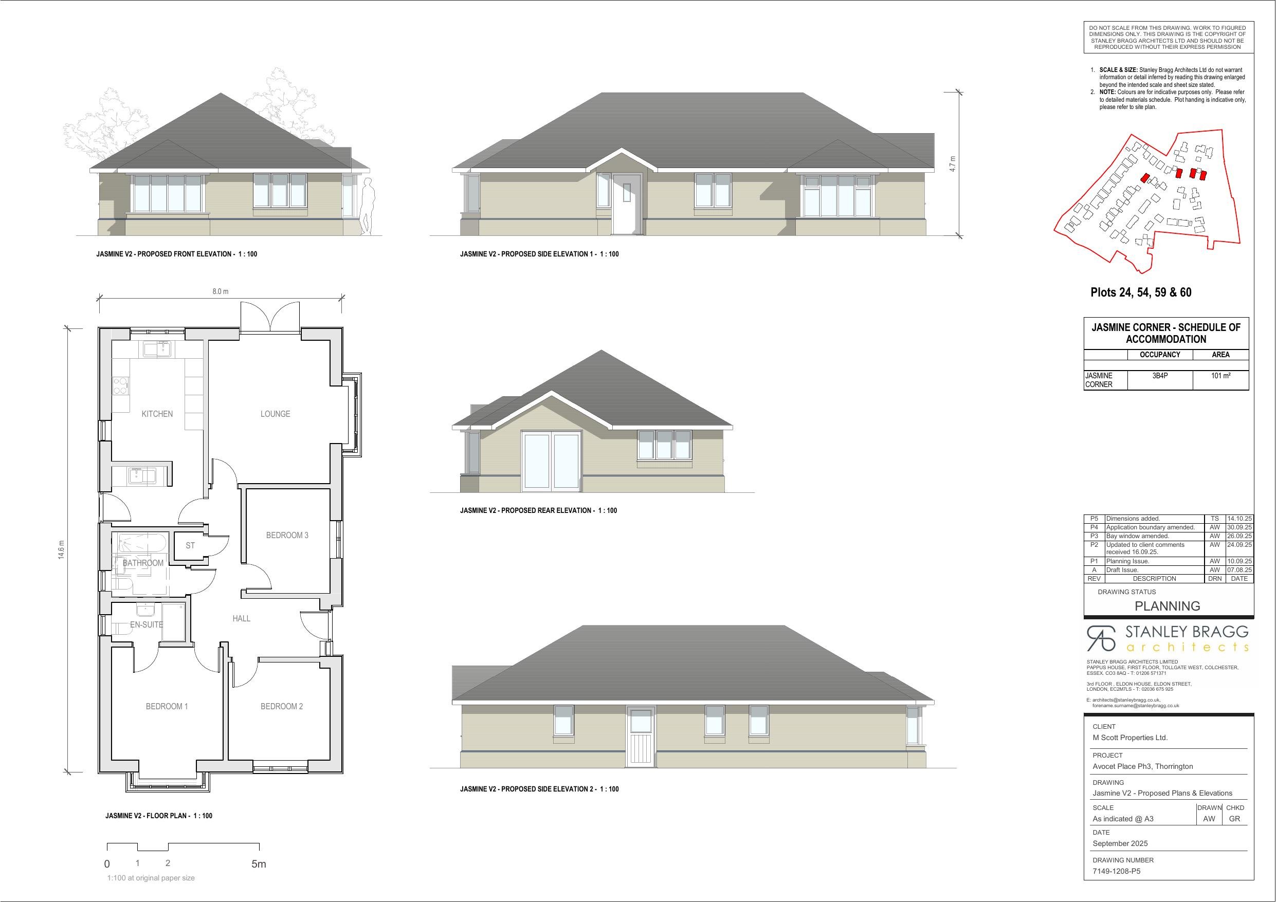
Amended jasmine v3 floor plans and elevations - rec'd 16.10.2025
Drawing
Not archived · Council Link
Amended jasmine v4 floor plans and elevations - rec'd 16.10.2025
Drawing
Not archived · Council Link
Amended lily v2 floor plans and elevations - rec'd 16.10.2025
Drawing
Not archived · Council Link
Amended magnolia v2 floor plans and elevations - rec'd 16.10.2025
Drawing
Not archived · Council Link
Amended single garage v1 floor plans and elevations - rec'd 16.10.2025
Drawing
Not archived · Council Link
Amended single garage v2 floor plans and elevations - rec'd 16.10.2025
Drawing
Not archived · Council Link
Amended twin garage v1 floor plans and elevations - rec'd 16.10.2025
Drawing
Not archived · Council Link
Amended twin garage v2 floor plans and elevations - rec'd 16.10.2025
Drawing
Not archived · Council Link
Application form - rec'd 06/10/2025
Application Form
Not archived · Council Link
Arboricultural survey - rec'd 06/10/2025
Report
Not archived · Council Link
Biodiversity net gain planning stage report - rec'd 06/10/2025
Report
Not archived · Council Link
Bng metric - rec'd 16.10.2025
Report
Not archived · Council Link
Breeding bird survey - rec'd 06/10/2025
Report
Not archived · Council Link
Consultee response - anglian water - rec'd 11.11.2025
Consultee Comment
Not archived · Council Link
Consultee response - anglian water services - rec'd 19.11.25
Consultee Comment
Not archived · Council Link
Consultee response - ecc archaeology - rec'd 11.12.25
Consultee Comment
Not archived · Council Link
Consultee response - ecc highways dept - rec'd 08.12.25
Consultee Comment
Not archived · Council Link
Consultee response - ecc highways dept - rec'd 22.12.25
Consultee Comment
Not archived · Council Link
Consultee response - ecc planner minerals - rec'd 11.11.2025
Consultee Comment
Not archived · Council Link
Consultee response - ecc suds - rec'd 13.11.25
Consultee Comment
Not archived · Council Link
Consultee response - environmental protection - rec'd 21.10.2025
Consultee Comment
Not archived · Council Link
Consultee response - essex police - designing out crime - rec'd 29.10.25
Consultee Comment
Not archived · Council Link
Consultee response - essex police strategic planning - rec'd 20.10.25
Consultee Comment
Not archived · Council Link
Consultee response - natural england - rec'd 04.11.25
Consultee Comment
Not archived · Council Link
Consultee response - nhs - rec'd 27.11.2025
Consultee Comment
Not archived · Council Link
Consultee response - uu open spaces - rec'd 03.11.2025
Consultee Comment
Not archived · Council Link
Consulteecomment
Consultee Comment
Not archived · Council Link
Consulteecomment
Consultee Comment
Not archived · Council Link
Consulteecomment
Consultee Comment
Not archived · Council Link
Consulteecomment
Consultee Comment
Not archived · Council Link
Correspondence
Correspondence
Not archived · Council Link
Email to run bng metric - rec'd 16.10.2025
Other
Not archived · Council Link
Fee calculation - rec'd 06/10/2025
Other
Not archived · Council Link
Flood risk assessment - part 1 - main report and appendix a-d - rec'd 06/10/2025
Report
Not archived · Council Link
Flood risk assessment - part 2 - appendix e - rec'd 06/10/2025
Report
Not archived · Council Link
Flood risk assessment - part 3 - appendix f-l - rec'd 06/10/2025
Report
Not archived · Council Link
Habitat regulation assessment
Correspondence
Not archived · Council Link
Housing mix note - rec'd 06/10/2025
Report
Not archived · Council Link
Invalid correspondence
Invalid Correspondence
Not archived · Council Link
Landscape and visual appraisal - rec'd 06/10/2025
Report
Not archived · Council Link
Landscape design and access statement - rec'd 06/10/2025
Report
Not archived · Council Link
Objection comment - rec'd 23.10.2025
Objection Comment
Not archived · Council Link
Objection comment - rec'd 27.10.25
Objection Comment
Not archived · Council Link
Objection email - rec'd 05.11.25
Objection Comment
Not archived · Council Link
Objection email - rec'd 07.11.25
Objection Comment
Not archived · Council Link
Objection email - rec'd 10.11.25
Objection Comment
Not archived · Council Link
Objection email - rec'd 11.11.25
Objection Comment
Not archived · Council Link
Objection email - rec'd 11.11.25
Objection Comment
Not archived · Council Link
Objection email - rec'd 12.11.2025.
Objection Comment
Not archived · Council Link
Objection email - rec'd 30.10.25
Objection Comment
Not archived · Council Link
Observation comment - rec'd 13.11.2025.
Public Comment
Not archived · Council Link
Observation comment - rec'd 13.11.2025.
Public Comment
Not archived · Council Link
Phase 1 desk study - part 1 - main report and appendix 1-3.1 - rec'd 06/10/2025
Report
Not archived · Council Link
Phase 1 desk study - part 2 - appendix 3.2 - rec'd 06/10/2025
Report
Not archived · Council Link
Phase 1 desk study - part 3 - appendix 4-5 - rec'd 06/10/2025
Report
Not archived · Council Link
Phase 1 desk study - part 4 - appendix 6-8 - rec'd 06/10/2025
Report
Not archived · Council Link
Phase 2 - site investigation - rec'd 06/10/2025
Report
Not archived · Council Link
Planning design and access statement - rec'd 06/10/2025
Report
Not archived · Council Link
Preliminary ecological appraisal - rec'd 06/10/2025
Report
Not archived · Council Link
Proposed access and movement plan - rec'd 06/10/2025
Drawing
Not archived · Council Link
Proposed illustrative site layout - rec'd 06/10/2025
Drawing
Not archived · Council Link
Proposed materials plan - rec'd 06/10/2025
Drawing
Not archived · Council Link
Proposed parameter plan - rec'd 06/10/2025
Drawing
Not archived · Council Link
Proposed public and private amenity spaces plan - rec'd 06/10/2025
Drawing
Not archived · Council Link
Proposed refuse strategy plan - rec'd 06/10/2025
Drawing
Not archived · Council Link
Proposed street scenes - rec'd 06/10/2025
Drawing
Not archived · Council Link
Proposed vehicle and cycle parking plan - rec'd 06/10/2025
Drawing
Not archived · Council Link
Proposed visualisation 1 - rec'd 06/10/2025
Drawing
Not archived · Council Link
Proposed visualisation 2 - rec'd 06/10/2025
Drawing
Not archived · Council Link
Shadow habitats screening regulations assessment - rec'd 06/10/2025
Report
Not archived · Council Link
Site notice
Site Notice
Not archived · Council Link
Support letter - rec'd 06.11.25
Support Comment
Not archived · Council Link
Support letter - rec'd 06.11.25
Support Comment
Not archived · Council Link
The statutory biodiversity metric - rec'd 06/10/2025
Report
Not archived · Council Link
Topographical survey - rec'd 06/10/2025
Drawing
Not archived · Council Link
Transport statement - rec'd 06/10/2025
Report
Not archived · Council Link

Take Action

Make your voice heard. Authorities need to hear from people who support new homes.

✉️ Write Email in Support View on Council Portal