← Back to Tendring District Council

Status

Awaiting decision
Received
13 Nov 2025
New dwellings
n/a

Full Proposal

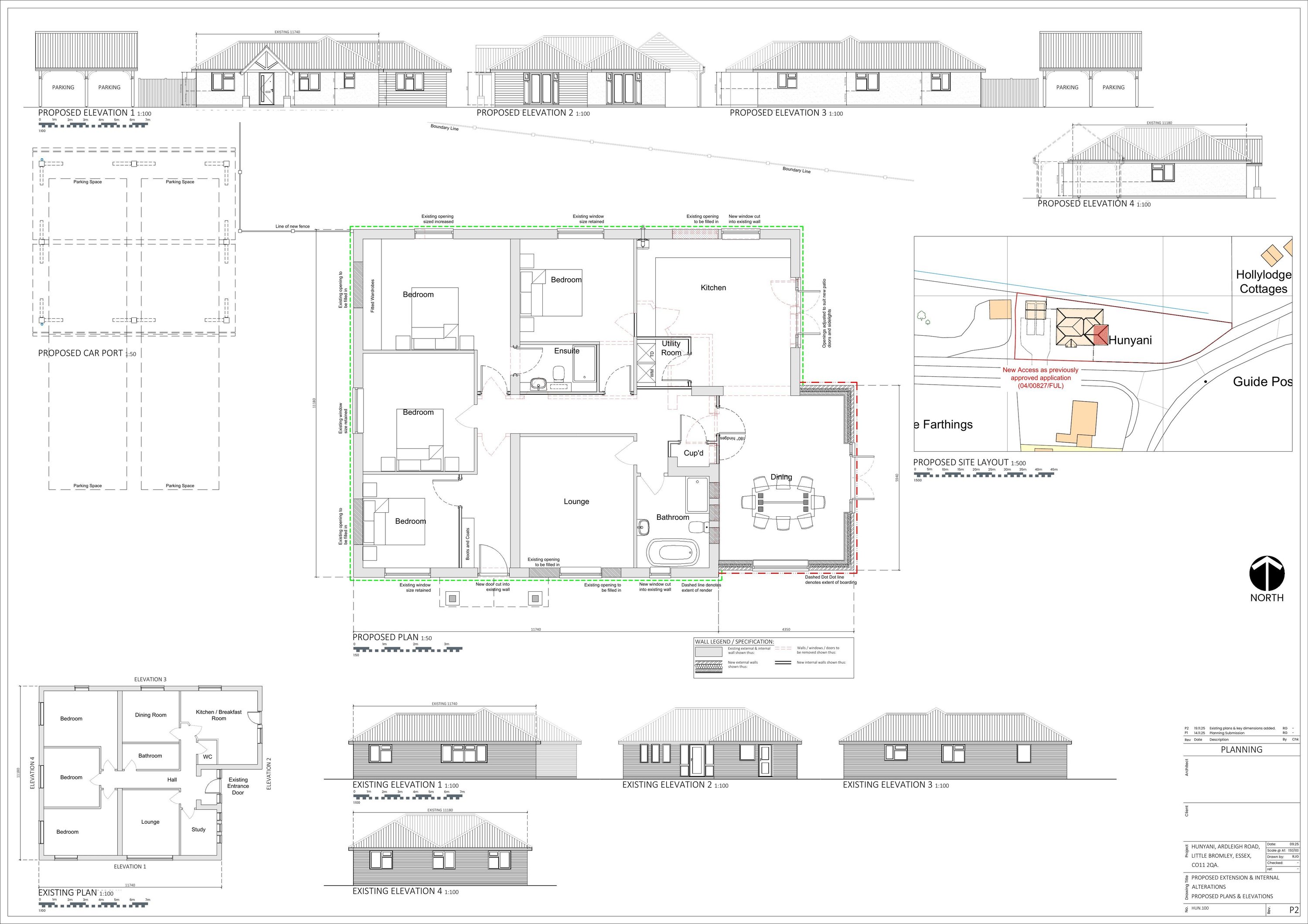
Householder Planning Application - Single storey side extension and detached cart lodge.

Documents

Acknowledgement letter
Acknowledgement Letter
Not archived · Council Link
Application form - rec'd 13.11.2025.
Application Form
Not archived · Council Link
Consultee response - ecc highways - rec'd 17.12.2025
Consultee Comment
Not archived · Council Link
Consulteecomment
Consultee Comment
Not archived · Council Link
Consulteecomment
Consultee Comment
Not archived · Council Link
Correspondence
Correspondence
Not archived · Council Link
Householder development notice - rec'd 13.11.2025.
Other
Not archived · Council Link
New entrance visibility splays - rec'd 11.12.25
Drawing
Not archived · Council Link
Site notice
Site Notice
Not archived · Council Link
Superseded proposed block plan, existing and proposed elevations and proposed gr
Drawing
Not archived · Council Link

Take Action

Make your voice heard. Authorities need to hear from people who support new homes.

✉️ Write Email in Support View on Council Portal