← Back to Test Valley Borough Council

Status

Current
Received
13 Jun 2025
New dwellings
n/a

Full Proposal

Erection of dwelling, including dropped kerb, access and installation of package treatment plant

Documents

3D RENDER IMAGES
Supporting Information
Not archived · Council Link
3D RENDER IMAGES
Supporting Information
Not archived · Council Link
A SUMMARY OF THE ATTACHMENTS IN THE PROPOSAL
Supporting Information
Not archived · Council Link
ADDITIONAL - GRAF ONE2CLEAN PERFORMANCE RESULTS
Supporting Information
Not archived · Council Link
ADDITIONAL - HRA
Supporting Information
Not archived · Council Link
ADDITIONAL - NOTICE UNDER ARTICLE 13
Supporting Information
Not archived · Council Link
ADDITIONAL - ONE2CLEAN LEAFLET
Supporting Information
Not archived · Council Link
AMENDED - NUTRIENT CALCULATOR
Supporting Information
Not archived · Council Link
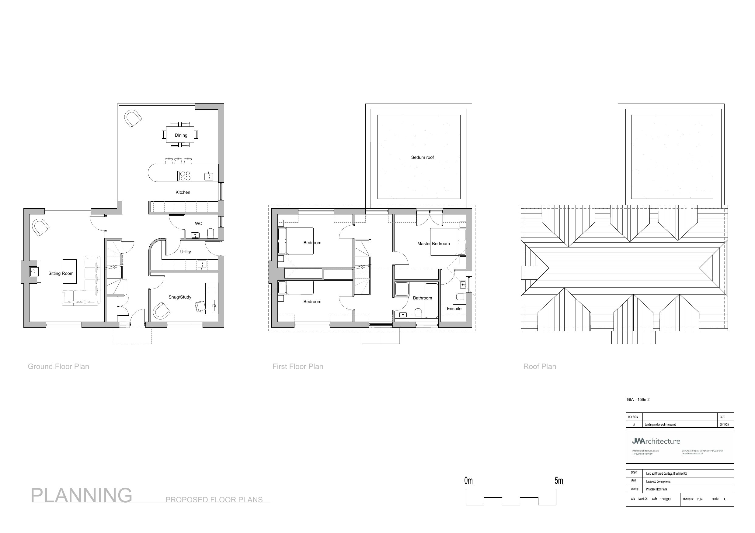
AMENDED - PROPOSED ELEVATIONS
Drawing
Not archived · Council Link
AMENDED - SITE SECTIONS
Drawing
Not archived · Council Link
BIODIVERSITY NET GAIN ASSESSMENT
Supporting Information
Not archived · Council Link
BNG METRIC CALCULATION TOOL
Supporting Information
Not archived · Council Link
DESIGN & ACCESS STATEMENT
Supporting Information
Not archived · Council Link
DETAILS OF PACKAGE TREATMENT PLANT
Supporting Information
Not archived · Council Link
ECOLOGICAL APPRAISAL
Supporting Information
Not archived · Council Link
ECOLOGY (TVBC)
Consultation Responses
Not archived · Council Link
HIGHWAYS (HCC)
Consultation Responses
Not archived · Council Link
JOINT MEETING OF ROMSEY EXTRA PC/ROMSEY TOWN COUNCIL
Consultation Responses
Not archived · Council Link
JOINT MEETING OF ROMSEY EXTRA PC/ROMSEY TOWN COUNCIL
Consultation Responses
Not archived · Council Link
MRS CAROLYN HOLEHOUSE(FULL)
Public Comments
Not archived · Council Link
NATURAL ENGLAND
Consultation Responses
Not archived · Council Link
NOTICE LETTER
Supporting Information
Not archived · Council Link
PLANNING STATEMENT
Supporting Information
Not archived · Council Link
REVISED APPLICATION FORM
Supporting Information
Not archived · Council Link
SITE LOCATION PLAN
Drawing
Not archived · Council Link
TOPOGRAPHIC SURVEY
Drawing
Not archived · Council Link
TREES (TVBC)
Consultation Responses
Not archived · Council Link

Take Action

Make your voice heard. Authorities need to hear from people who support new homes.

✉️ Write Email in Support View on Council Portal