← Back to Test Valley Borough Council
Full Proposal
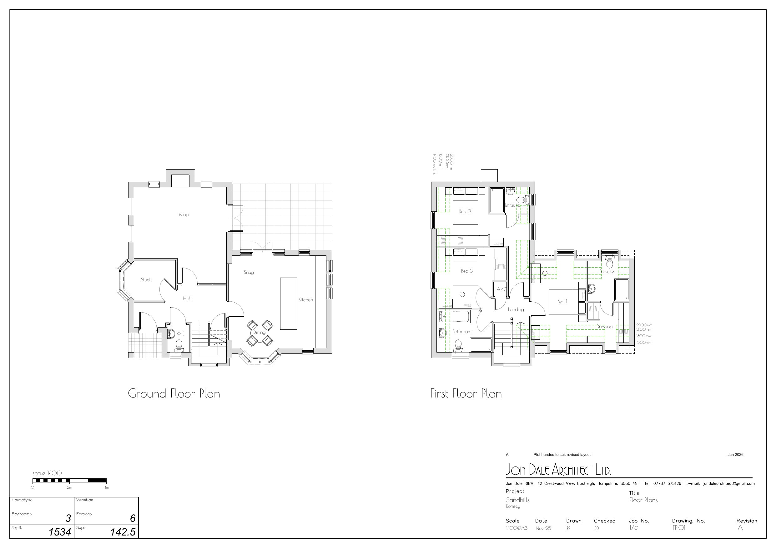
Construction of dwelling and provision of package treatment plant
Documents
APPLICATION FORM
Supporting Information
BIODIVERSITY CHECKLIST
Supporting Information
BIODIVERSITY ENHANCEMENTS
Supporting Information
CROSSFIELD
Public Comments
DR MIKE CROSSFIELD
Public Comments
ECOLOGY (TVBC)
Consultation Responses
ENVIRONMENTAL PROTECTION TEAM (TVBC)
Consultation Responses
LANDSCAPE (TVBC)
Consultation Responses
MR ALEX MACGREGOR(FULL)
Public Comments
MR ANDREW MCINDOE(FULL)
Public Comments
MR ANDREW MCINDOE(FULL)
Public Comments
MS SARAH WILLIAMSON(FULL)
Public Comments
MS SARAH WILLIAMSON(FULL)
Public Comments
PACKAGE TREATMENT PLANT DETAILS
Supporting Information
PACKAGE TREATMENT PLANT DETAILS
Supporting Information
PLANNING STATEMENT
Supporting Information
REVISED - PROPOSED ELEVATIONS
Drawing
REVISED - PROPOSED SITE SECTION A-A
Drawing
REVISED - PROPOSED SITE SECTION B-B
Drawing
SHERFIELD ENGLISH PARISH COUNCIL
Consultation Responses
SHERFIELD PARISH COUNCIL
Consultation Responses
TOPOGRAPHIC SURVEY
Drawing
Take Action
Make your voice heard. Authorities need to hear from people who support new homes.