← Back to Tewkesbury Borough Council

Status

Unknown
Received
31 Jan 2025
New dwellings
n/a

Full Proposal

Full Application for the erection of 4 No. detached dwellings, including associated access, detached single storey garages and landscaping, following demolition of existing buildings

Documents

Application form
Application Form
Not archived · Council Link
Archaeology team commemnt
Consultee Comment
Not archived · Council Link
Biodiversity metric calculation tool
Other Reports
Not archived · Council Link
Biodiversity net gain report
Other Reports
Not archived · Council Link
Drainage engineer
Consultee Comment
Not archived · Council Link
Drainage stratgey statement
Other Reports
Not archived · Council Link
Ecology response
Consultee Comment
Not archived · Council Link
Environmental health practitioner
Consultee Comment
Not archived · Council Link
Existing plans and elevations
Drawing
Not archived · Council Link
Habitat types
Other Reports
Not archived · Council Link
Highways comment
Consultee Comment
Not archived · Council Link
Land drainage advice
Consultee Comment
Not archived · Council Link
Measured site survey
Drawing
Not archived · Council Link
Measured site survey
Drawing
Not archived · Council Link
Planning, design and access statement
Other Reports
Not archived · Council Link
Preliminary ecological appraisal
Other Reports
Not archived · Council Link
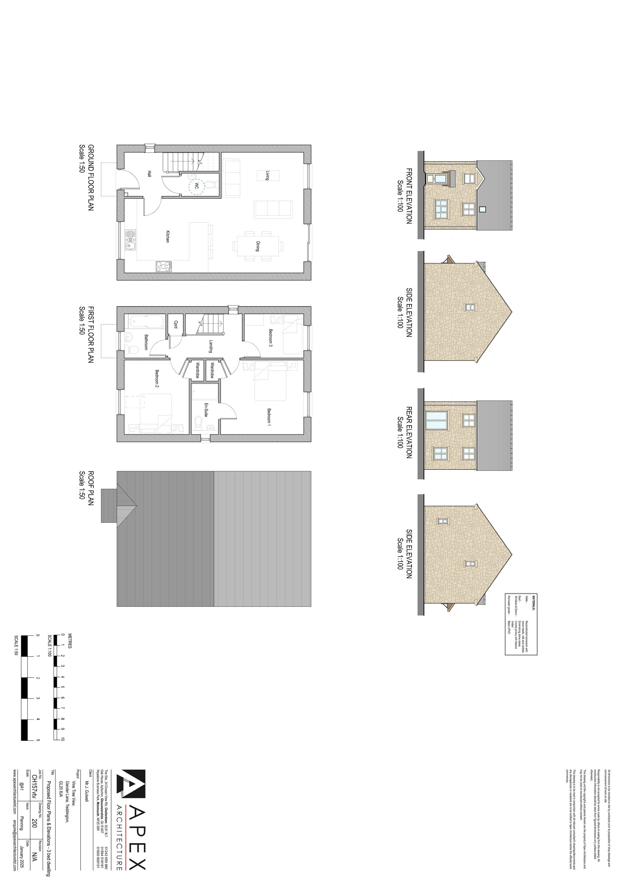
Drawing
Archived · Council Link
Teddington & alstone parish council
Objection Comment
Not archived · Council Link
Topographic site survey
Drawing
Not archived · Council Link
Topographic site survey
Drawing
Not archived · Council Link
Waste services comments
Consultee Comment
Not archived · Council Link

Take Action

Make your voice heard. Authorities need to hear from people who support new homes.

✉️ Write Email in Support View on Council Portal