← Back to Tewkesbury Borough Council

Status

Awaiting decision
Received
Last month
New dwellings
n/a

Full Proposal

Conversion of existing barn to 1no. self-build dwellinghouse, including associated amenity space, landscaping, parking and access.

Documents

Application form
Application Form
Not archived · Council Link
Bat emergence and re-entry surveys
Other Reports
Not archived · Council Link
Biodiversity net gain statement
Other Reports
Not archived · Council Link
Design and access statement
Other Reports
Not archived · Council Link
Drainage strategy
Other Reports
Not archived · Council Link
Existing elevations
Drawing
Not archived · Council Link
Existing elevations
Drawing
Not archived · Council Link
Existing plans
Drawing
Not archived · Council Link
Land drainage
Consultee Comment
Not archived · Council Link
Landscape and visual appraisal
Other Reports
Not archived · Council Link
Planning statement
Other Reports
Not archived · Council Link
Preliminary roost assessment
Other Reports
Not archived · Council Link
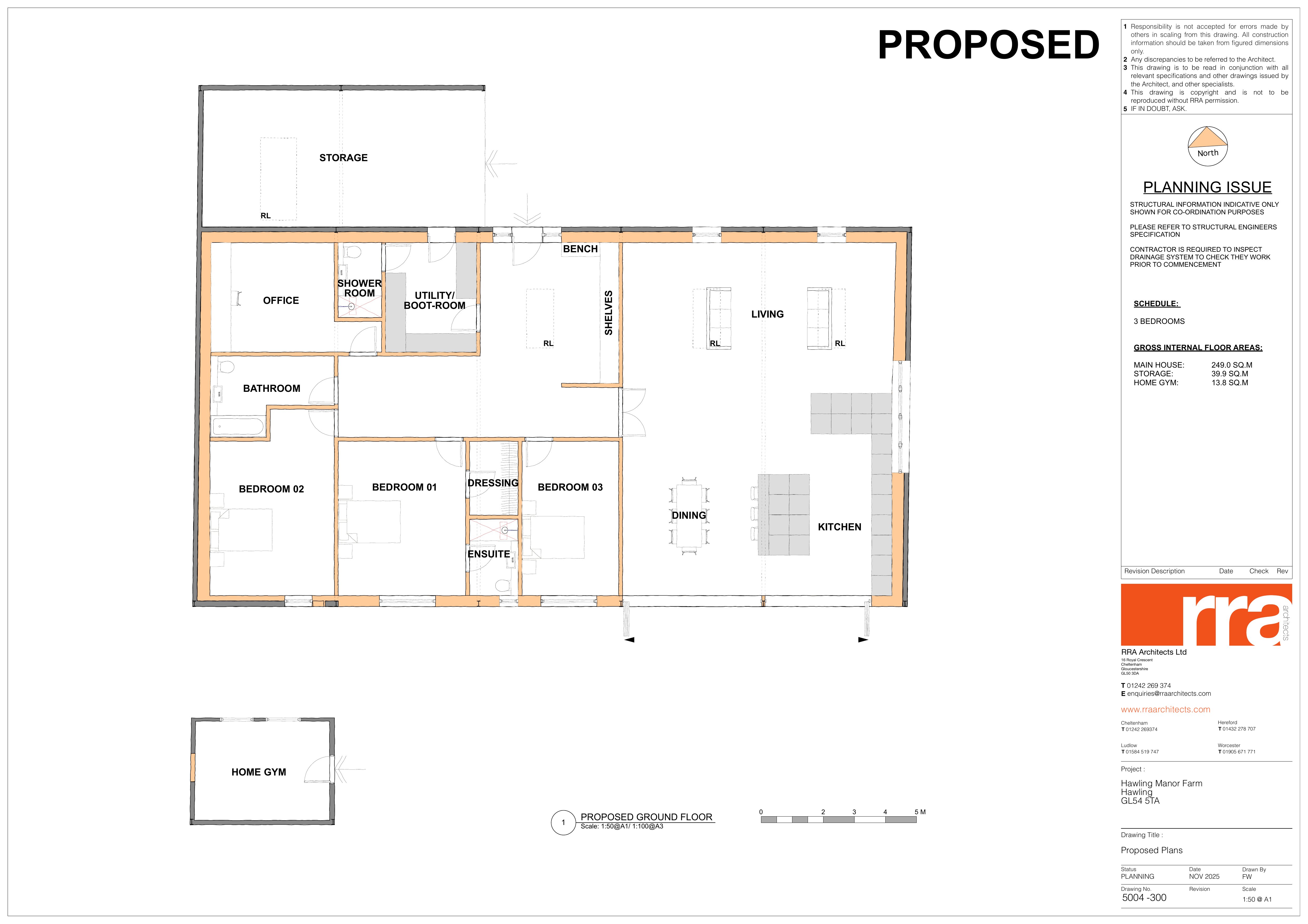
Proposed elevations
Drawing
Not archived · Council Link
Proposed elevations
Drawing
Not archived · Council Link
Drawing
Archived · Council Link
Proposed section elevations
Drawing
Not archived · Council Link
Proposed section elevations
Drawing
Not archived · Council Link
Drawing
Archived · Council Link
Site location & block plan
Drawing
Not archived · Council Link
Structural report
Other Reports
Not archived · Council Link

Take Action

Make your voice heard. Authorities need to hear from people who support new homes.

✉️ Write Email in Support View on Council Portal