← Back to Thanet District Council

Status

Decided
Received
22 Jan 2025
New dwellings
n/a

Summary

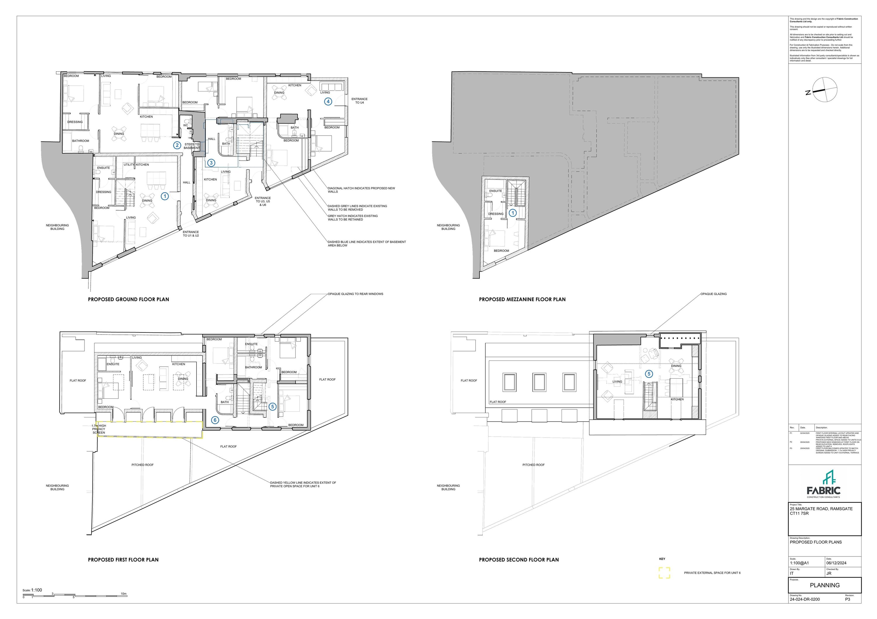
Change existing B2 garage to six two-bed self-contained flats with extensions, landscaping and parking.

Full Proposal

Change of use of existing garage (Use Class B2) to 6No 2-bed self-contained flats, together with the erection of extensions to facilitate that use with associated access, landscaping and parking

Documents

APPLICATION FORM - WITHOUT PERSONAL DATA
Application Form
Not archived · Council Link
CONSERVATION OFFICER
Consultee Comment
Not archived · Council Link
Decision
Decision
Not archived · Council Link
ENV HEALTH
Consultee Comment
Not archived · Council Link
ENVIRONMENTAL HEALTH
Consultee Comment
Not archived · Council Link
EXISTING AND PROPOSED BLOCK PLANS
Plan/Drawing
Not archived · Council Link
EXISTING ELEVATIONS
Plan/Drawing
Not archived · Council Link
EXISTING FLOOR PLANS
Plan/Drawing
Not archived · Council Link
HRA
Other
Not archived · Council Link
LOCATION PLAN
Plan/Drawing
Not archived · Council Link
PLANNING STATEMENT
Statement
Not archived · Council Link
PROPOSED ELEVATIONS
Amended Plan
Not archived · Council Link
Amended Plan
Archived · Council Link
Amended Plan
Archived · Council Link
Report
Report
Not archived · Council Link
SOUTHERN WATER
Consultee Comment
Not archived · Council Link
SOUTHERN WATER-
Consultee Comment
Not archived · Council Link
SOUTHERN WATER-PLAN
Consultee Comment
Not archived · Council Link
SUDS
Consultee Comment
Not archived · Council Link
WASTE AND RECYLCING
Consultee Comment
Not archived · Council Link

Take Action

Make your voice heard. Authorities need to hear from people who support new homes.

✉️ Write Email in Support View on Council Portal