← Back to Thanet District Council

Status

Awaiting decision
Received
22 Oct 2025
New dwellings
n/a

Full Proposal

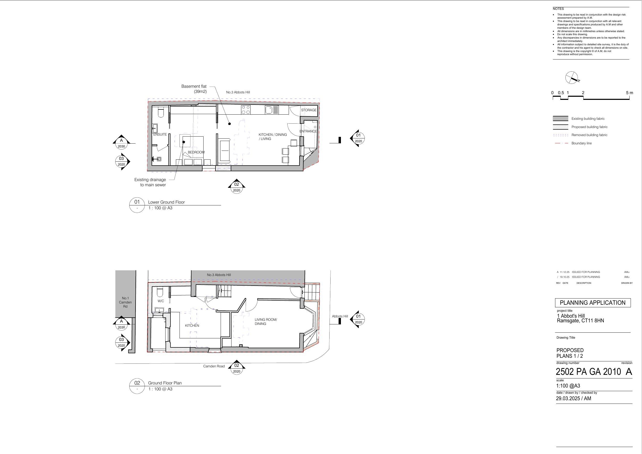
Change of use of single dwelling to 1no. 1 bed flat and 1no. 3 bed maisonette flat, including erection of two storey rear extension with bay window to second floor at rear, installation of 1no. rooflight to rear roof slope, excavation works to extend basement, reinstatement and replacement of windows, installation of 3no. windows to side elevation, erection of metal railings to front and rebuilding of rear garden wall, following demolition of rear extension.

Documents

APPLICATION FORM - WITHOUT PERSONAL DATA
Application Form
Not archived · Council Link
DESIGN AND ACCESS STATEMENT
Design & Access Statement
Not archived · Council Link
EXISTING ELEVATIONS
Plan/Drawing
Not archived · Council Link
EXISTING PLANS 1 / 2
Plan/Drawing
Not archived · Council Link
EXISTING PLANS 2 / 2
Plan/Drawing
Not archived · Council Link
EXISTING, LOCATION AND BLOCK PLAN
Plan/Drawing
Not archived · Council Link
HERITAGE STATEMENT
Heritage Statement
Not archived · Council Link
KCCA
Consultee Comment
Not archived · Council Link
PROPOSED BLOCK PLAN
Block Plan
Not archived · Council Link
PROPOSED ELEVATIONS
Superseded
Not archived · Council Link
PROPOSED ELEVATIONS
Plan/Drawing
Not archived · Council Link
Superseded
Archived · Council Link
Plan/Drawing
Archived · Council Link
Superseded
Archived · Council Link
Plan/Drawing
Archived · Council Link
PROPOSED SECTION A
Plan/Drawing
Not archived · Council Link
UNILATERAL UNDERTAKING
Unilateral Undertaking
Not archived · Council Link

Take Action

Make your voice heard. Authorities need to hear from people who support new homes.

✉️ Write Email in Support View on Council Portal