← Back to Thanet District Council

Status

Awaiting decision
Received
12 Nov 2025
New dwellings
n/a

Full Proposal

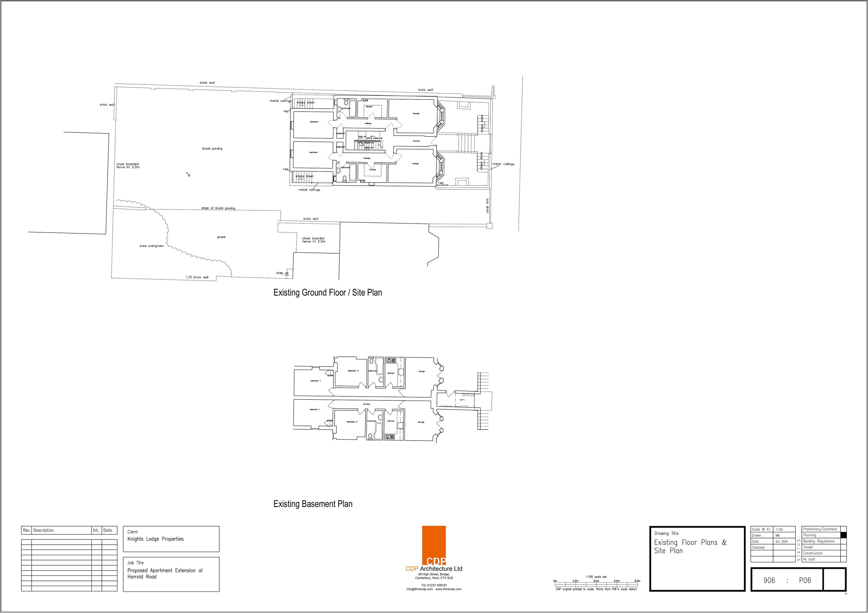
Erection of a third floor extension to create 1no 2-bed flat, and erection of two storey building to rear to create 1no 2-bed dwelling, together with associated access and parking

Documents

APPLICATION FORM - WITHOUT PERSONAL DATA
Application Form
Not archived · Council Link
EXISTING ELEVATIONS
Plan/Drawing
Not archived · Council Link
EXISTING FIRST AND SECOND FLOOR PLANS
Plan/Drawing
Not archived · Council Link
HIGHWAYS
Consultee Comment
Not archived · Council Link
HRA
Report
Not archived · Council Link
LOCATION PLAN
Plan/Drawing
Not archived · Council Link
PROPOSED BASEMENT AND GROUND FLOOR PLANS, AND ELEVATIONS
Plan/Drawing
Not archived · Council Link
PROPOSED ELEVATIONS
Plan/Drawing
Not archived · Council Link
PROPOSED FIRST, SECOND AND THIRD FLOOR PLANS
Plan/Drawing
Not archived · Council Link
SOUTHERN WATER
Consultee Comment
Not archived · Council Link
SOUTHERN WATER-PLAN
Consultee Comment
Not archived · Council Link

Take Action

Make your voice heard. Authorities need to hear from people who support new homes.

✉️ Write Email in Support View on Council Portal