← Back to Thanet District Council

Status

Awaiting decision
Received
14 Nov 2025
New dwellings
n/a

Full Proposal

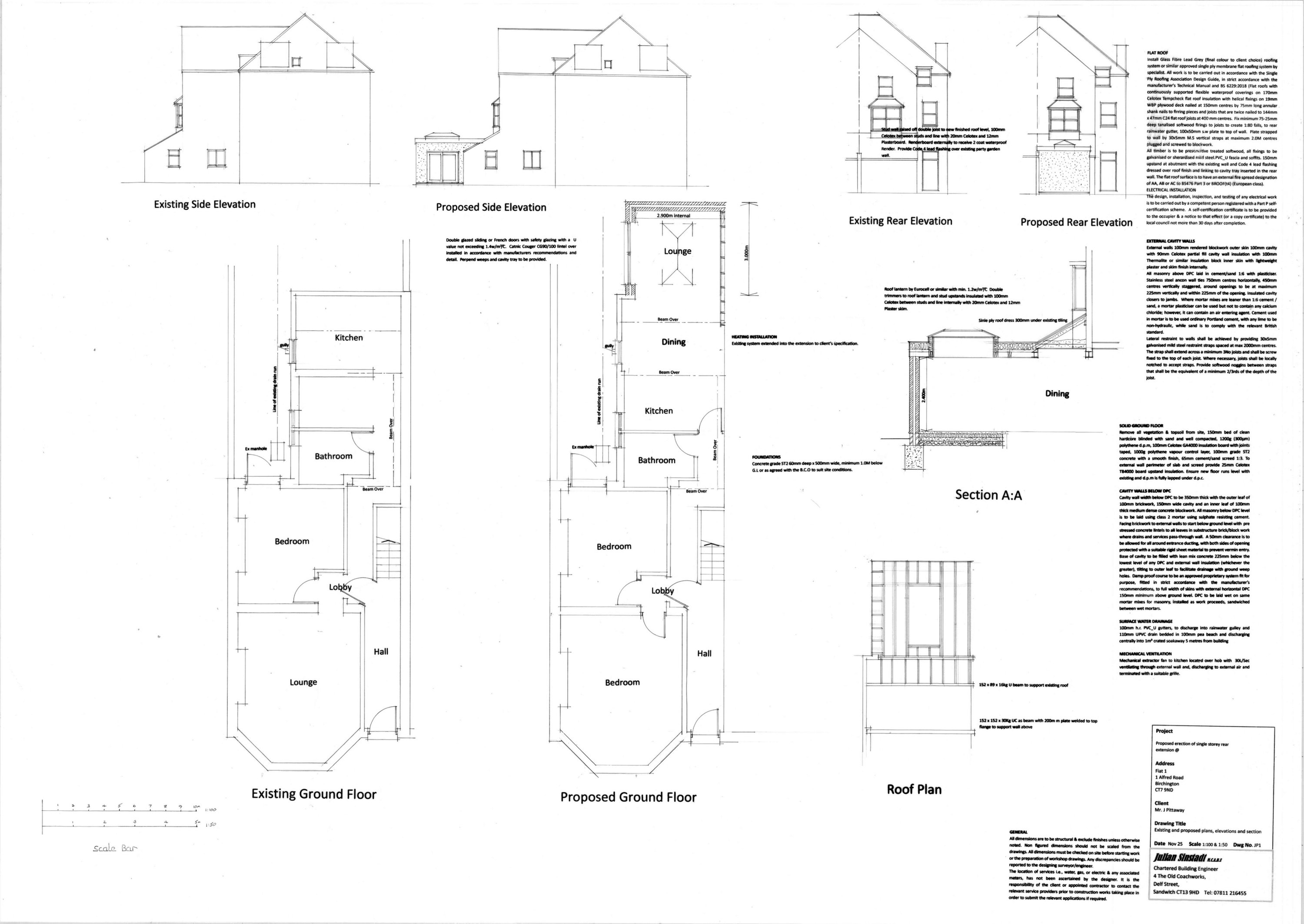
Erection of single storey rear extension to ground floor flat

Documents

APPLICATION FORM - WITHOUT PERSONAL DATA
Application Form
Not archived · Council Link
EXISTING BLOCK AND ROOF PLAN
Plan/Drawing
Not archived · Council Link
LOCATION PLAN
Plan/Drawing
Not archived · Council Link
PROPOSED BLOCK AND ROOF PLAN
Plan/Drawing
Not archived · Council Link

Take Action

Make your voice heard. Authorities need to hear from people who support new homes.

✉️ Write Email in Support View on Council Portal