← Back to Thurrock Council

Status

Permitted
Received
19 Sep 2024
New dwellings
n/a

Full Proposal

Redevelopment of the site to provide 2 semi detached and 1 detached house, provision of car parking and associated works.

Documents

151 LAMPITS HILL CORRINGHAM ESSEX SS17 9AD
Neighbour Comment
Not archived · Council Link
226 SOUTHEND ROAD STANFORD LE HOPE SS17 7AG
Neighbour Comment
Not archived · Council Link
APPLICATIONFORMREDACTED
Application Form
Not archived · Council Link
DECISION NOTICE
Decision Notice
Not archived · Council Link
DELEGATED REPORT
Delegated Report
Not archived · Council Link
ENVIRONMENTAL HEALTH
Consultee Comment
Not archived · Council Link
ENVIRONMENTAL HEALTH
Consultee Comment
Not archived · Council Link
Current Plan
Archived · Council Link
LANDSCAPE AND ECOLOGY
Consultee Comment
Not archived · Council Link
LISTED BUILDING/CONSERVATION
Consultee Comment
Not archived · Council Link
LISTED BUILDINGS/CONSERVATION
Consultee Comment
Not archived · Council Link
LOCATION AND BLOCK PLAN
Current Plan
Not archived · Council Link
Superseded Plan
Archived · Council Link
Superseded Plan
Archived · Council Link
PLANNING AND HERITAGE STATEMENT
Studies and Reports
Not archived · Council Link
PLANNING STATEMENT CORRINGHAM
Studies and Reports
Not archived · Council Link
PROPOSED ELEVATION AND 3D VIEW
Superseded Plan
Not archived · Council Link
PROPOSED ELEVATIONS AND 3D VIEW
Superseded Plan
Not archived · Council Link
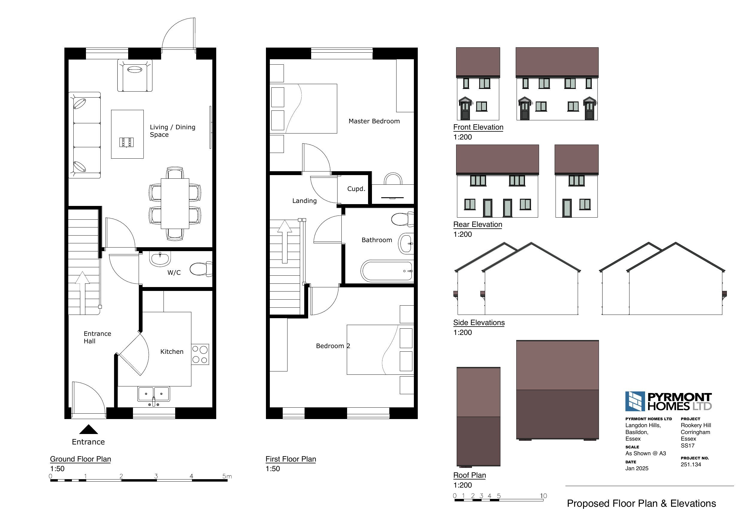
PROPOSED FLOOR PLAN AND ELEVATIONS
Superseded Plan
Not archived · Council Link
Current Plan
Archived · Council Link
Current Plan
Archived · Council Link
Superseded Plan
Archived · Council Link
Current Plan
Archived · Council Link
Current Plan
Archived · Council Link
Current Plan
Archived · Council Link
PROPOSED STREET VIEW AND 3D ELEVATIONS
Current Plan
Not archived · Council Link
ROOKERY HILL BNG ASSESSMENT.
Studies and Reports
Not archived · Council Link
ROOKERY HILLS SPLAYS AND CROSSOVERS
Current Plan
Not archived · Council Link
VISIBILITY SIGHT LINES
Current Plan
Not archived · Council Link

Take Action

Make your voice heard. Authorities need to hear from people who support new homes.

✉️ Write Email in Support View on Council Portal