← Back to Thurrock Council
Full Proposal
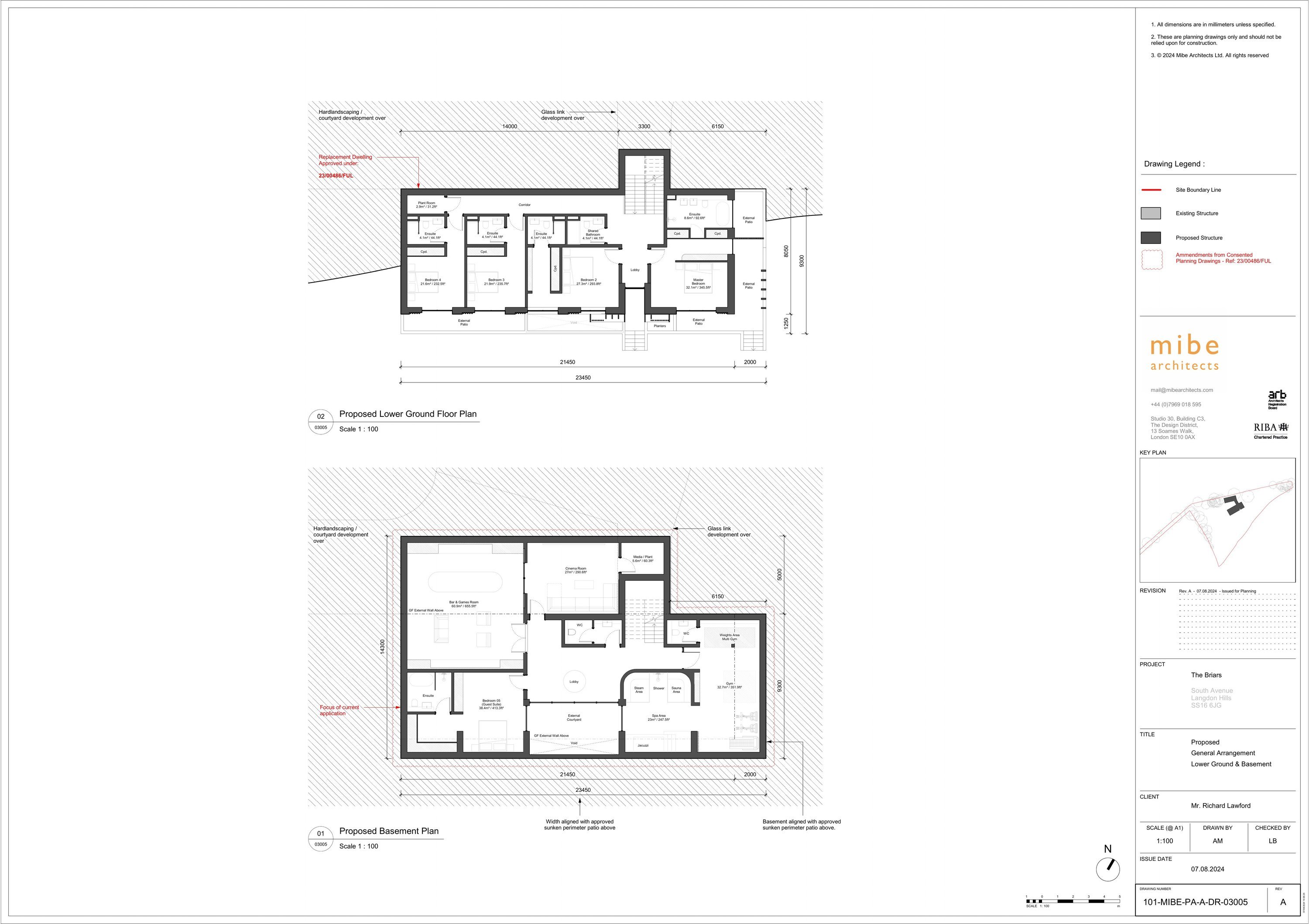
Construction of a replacement dwelling with basement and interlinked 3 car garage and home office / storage
Documents
AD11024 THE BRIARS TREE REPORT
Studies and Reports
APPLICATIONFORMREDACTED
Application Form
BOUNDARY FENCE DETAILS
Current Plan
BRIARS PLANTING SCHEDULE
Studies and Reports
BRIARS PROPOSED MATERIAL PALETTE
Studies and Reports
BRIARS SEATING STEP AND RETAINER DETAIL
Studies and Reports
DECISION NOTICE
Decision Notice
DELEGATED REPORT
Delegated Report
DESIGN AND IMPACT STATEMENT
Studies and Reports
ENVIRONMENTAL HEALTH
Consultee Comment
EXISTING AND PROPOSED LANDSCAPE PLAN (REVISED)
Current Plan
EXISTING AND PROPOSED LONG SECTION
Current Plan
EXISTING ELEVATIONS
Current Plan
EXISTING GROUND FLOOR PLAN
Current Plan
EXTERNAL LIGHTING PLAN GROUND FLOOR
Current Plan
LANDSCAPE MASTERPLAN
Current Plan
LOCATION PLAN
Current Plan
PLANNING STATEMENT - THE BRIARS - BASEMENT
Studies and Reports
PRELIMINARY ECOLOGICAL ASSESSMENT
Studies and Reports
PROPOSED DECKING PLANS
Current Plan
PROPOSED DRIVEWAY GATE FENCE DETAILS
Current Plan
PROPOSED ELEVATIONS
Current Plan
PROPOSED ELEVATIONS AND SECTIONS
Current Plan
PROPOSED GROUND FLOOR PLAN
Current Plan
PROPOSED ROOF PLAN
Current Plan
SEATING PLAN ELEVATIONS
Current Plan
SEATING PLAN ELEVATIONS
Current Plan
SEATING PLAN FLOOR LAYOUT
Current Plan
STAGE 2 STRUCTURAL REPORT ? BASEMENT IMPACT ASSESSMENT
Studies and Reports
THE BRIARS TREE PROTECTION PLAN
Studies and Reports
Take Action
Make your voice heard. Authorities need to hear from people who support new homes.