← Back to Thurrock Council

Status

Permitted
Received
19 Nov 2024
New dwellings
n/a

Full Proposal

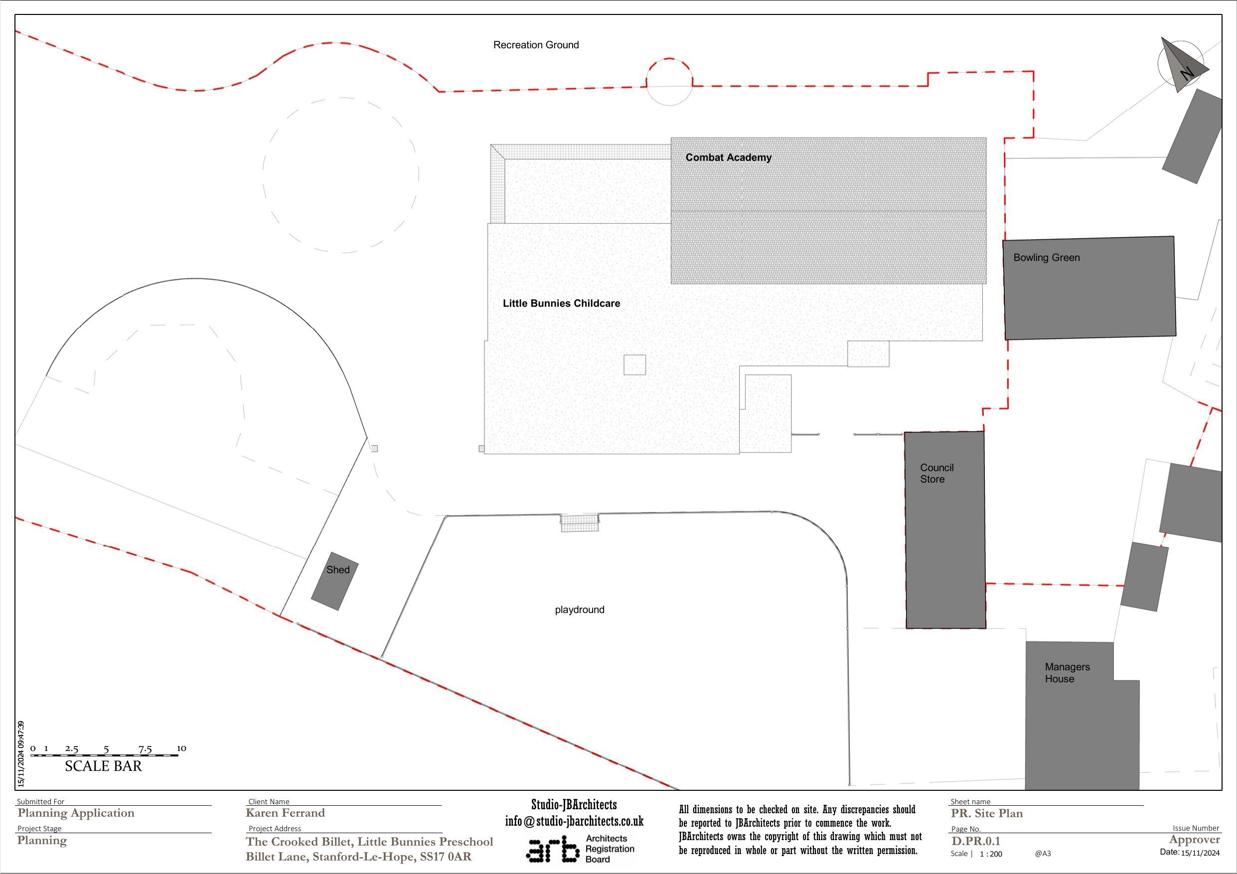
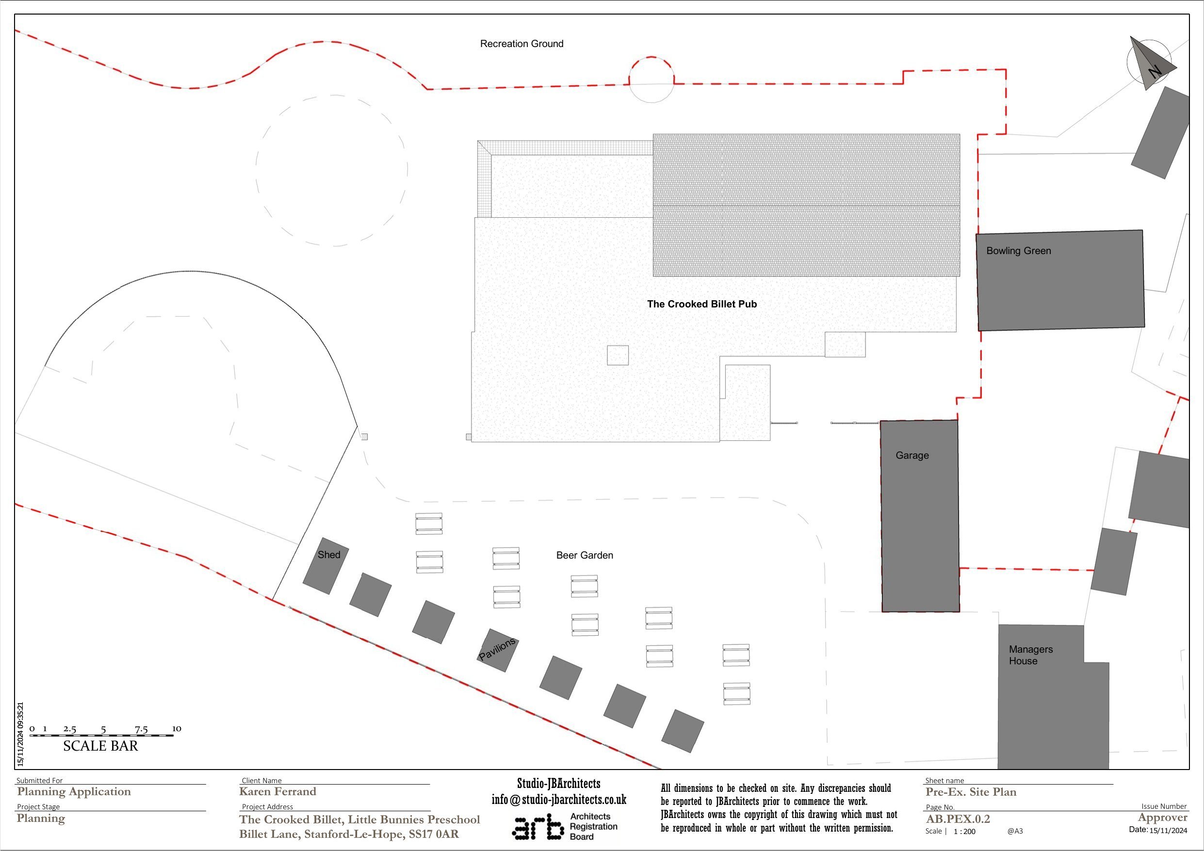
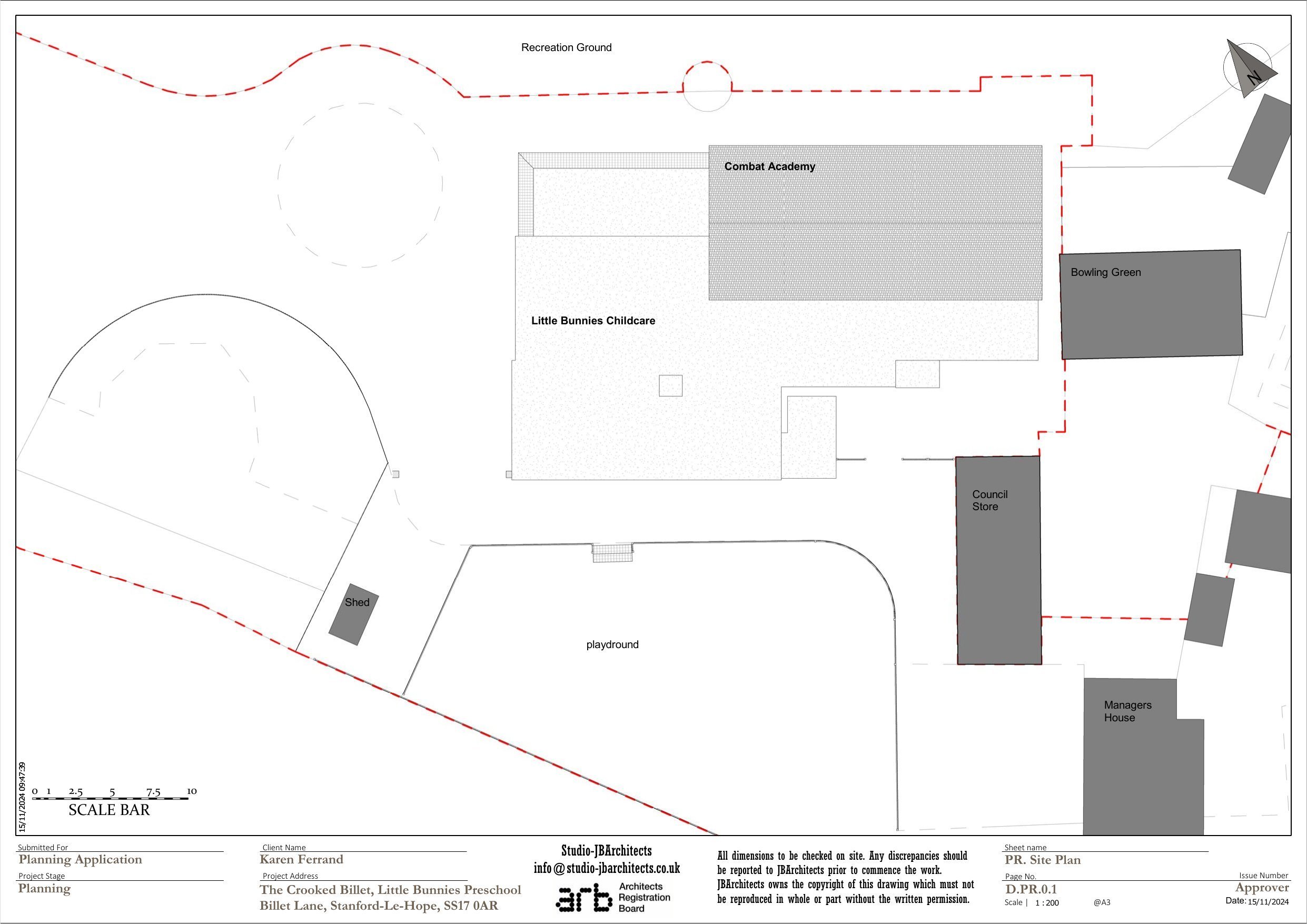
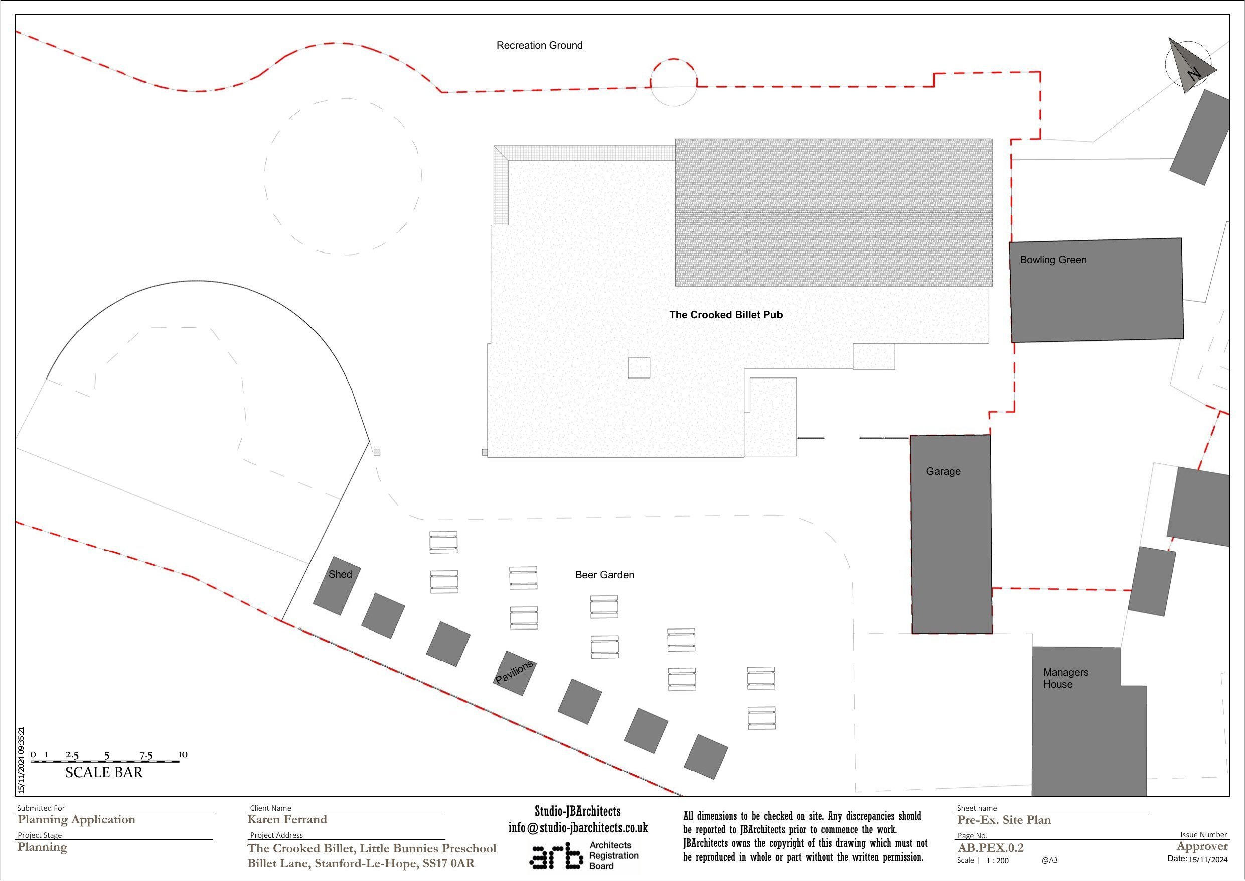
Retrospective change of use from Sui Generis (public house) to Use Class E(f) (Day Nursery) including the refurbishment of the front bar area to be used for day nursery purposes. Internal changes to staff room creating a 'Baby Room' and fenestration amendments to the South-West elevation.

Documents

APPLICATIONFORMREDACTED
Superseded
Not archived · Council Link
APPLICATIONFORMREDACTED
Application Form
Not archived · Council Link
APPLICATIONFORMREDACTED
Superseded
Not archived · Council Link
DECISION NOTICE
Decision Notice
Not archived · Council Link
DELEGATED REPORT
Delegated Report
Not archived · Council Link
DESIGN AND ACCESS STATEMENT.
Studies and Reports
Not archived · Council Link
ENVIRONMENTAL HEALTH.
Consultee Comment
Not archived · Council Link
EXISTING 3D VIEW 1
Superseded Plan
Not archived · Council Link
EXISTING 3D VIEW 1
Current Plan
Not archived · Council Link
EXISTING 3D VIEW 2
Current Plan
Not archived · Council Link
EXISTING 3D VIEW 2
Superseded Plan
Not archived · Council Link
EXISTING 3D VIEW 3
Current Plan
Not archived · Council Link
EXISTING 3D VIEW 3
Superseded Plan
Not archived · Council Link
EXISTING 3D VIEW 4
Superseded Plan
Not archived · Council Link
EXISTING 3D VIEW 4
Current Plan
Not archived · Council Link
EXISTING ELEVATION
Current Plan
Not archived · Council Link
EXISTING ELEVATION
Superseded Plan
Not archived · Council Link
EXISTING ELEVATION
Superseded Plan
Not archived · Council Link
EXISTING ELEVATION
Current Plan
Not archived · Council Link
EXISTING ELEVATION
Superseded Plan
Not archived · Council Link
EXISTING ELEVATION
Superseded Plan
Not archived · Council Link
EXISTING ELEVATION
Current Plan
Not archived · Council Link
EXISTING ELEVATION
Current Plan
Not archived · Council Link
EXISTING GROUND FLOOR
Current Plan
Not archived · Council Link
EXISTING GROUND FLOOR PLAN
Superseded Plan
Not archived · Council Link
EXISTING GROUND FLOOR PLAN
Current Plan
Not archived · Council Link
EXISTING LOCATION PLAN
Current Plan
Not archived · Council Link
EXISTING LOCATION PLAN
Superseded Plan
Not archived · Council Link
EXISTING LOCATION PLAN
Superseded Plan
Not archived · Council Link
EXISTING PARKING PLAN
Superseded Plan
Not archived · Council Link
EXISTING ROOF PLAN
Superseded Plan
Not archived · Council Link
EXISTING ROOF PLAN
Current Plan
Not archived · Council Link
EXISTING SECTION 1
Current Plan
Not archived · Council Link
EXISTING SECTION 1
Superseded Plan
Not archived · Council Link
EXISTING SECTION 2
Current Plan
Not archived · Council Link
EXISTING SECTION 2
Current Plan
Not archived · Council Link
EXISTING SECTION 3
Current Plan
Not archived · Council Link
EXISTING SECTION 3
Current Plan
Not archived · Council Link
Superseded Plan
Archived · Council Link
Current Plan
Archived · Council Link
PRE EXISTING 3D VIEW
Superseded Plan
Not archived · Council Link
PRE EXISTING ROOF PLAN
Superseded Plan
Not archived · Council Link
PRE-EX. LOCATION PLAN
Superseded Plan
Not archived · Council Link
PRE-EXISTING 3D VIEW 2
Superseded Plan
Not archived · Council Link
PRE-EXISTING 3D VIEW 2
Current Plan
Not archived · Council Link
PRE-EXISTING 3D VIEW 3
Superseded Plan
Not archived · Council Link
PRE-EXISTING 3D VIEW 3
Current Plan
Not archived · Council Link
PRE-EXISTING 3D VIEW 4
Superseded Plan
Not archived · Council Link
PRE-EXISTING 3D VIEW 4
Current Plan
Not archived · Council Link
PRE-EXISTING 3D VIW 1
Current Plan
Not archived · Council Link
PRE-EXISTING 3D VIW 1
Superseded Plan
Not archived · Council Link
PRE-EXISTING ELEVATION
Current Plan
Not archived · Council Link
PRE-EXISTING ELEVATION
Current Plan
Not archived · Council Link
PRE-EXISTING ELEVATION
Superseded Plan
Not archived · Council Link
PRE-EXISTING ELEVATION
Current Plan
Not archived · Council Link
PRE-EXISTING ELEVATION
Superseded Plan
Not archived · Council Link
PRE-EXISTING ELEVATION
Superseded Plan
Not archived · Council Link
PRE-EXISTING ELEVATION
Current Plan
Not archived · Council Link
PRE-EXISTING GROUND FLOOR PLAN
Superseded Plan
Not archived · Council Link
PRE-EXISTING GROUND FLOOR PLAN
Current Plan
Not archived · Council Link
PRE-EXISTING LOCATION PLAN
Superseded Plan
Not archived · Council Link
PRE-EXISTING LOCATION PLAN
Current Plan
Not archived · Council Link
PRE-EXISTING PARKING PLAN
Superseded Plan
Not archived · Council Link
PRE-EXISTING ROOF PLAN
Superseded Plan
Not archived · Council Link
PRE-EXISTING ROOF PLAN
Superseded Plan
Not archived · Council Link
PRE-EXISTING SECTION 1
Current Plan
Not archived · Council Link
PRE-EXISTING SECTION 1
Superseded Plan
Not archived · Council Link
PRE-EXISTING SECTION 2
Current Plan
Not archived · Council Link
PRE-EXISTING SECTION 2
Superseded Plan
Not archived · Council Link
PRE-EXISTING SECTION 3
Current Plan
Not archived · Council Link
PRE-EXISTING SECTION 3
Superseded Plan
Not archived · Council Link
Superseded Plan
Archived · Council Link
Current Plan
Archived · Council Link
PROPOSED 3D VIEW 1
Superseded Plan
Not archived · Council Link
PROPOSED 3D VIEW 1
Current Plan
Not archived · Council Link
PROPOSED 3D VIEW 2
Superseded Plan
Not archived · Council Link
PROPOSED 3D VIEW 2
Current Plan
Not archived · Council Link
PROPOSED 3D VIEW 3
Superseded Plan
Not archived · Council Link
PROPOSED 3D VIEW 3
Current Plan
Not archived · Council Link
PROPOSED 3D VIEW 4
Current Plan
Not archived · Council Link
PROPOSED 3D VIEW 4
Current Plan
Not archived · Council Link
PROPOSED ELEVATION
Current Plan
Not archived · Council Link
PROPOSED ELEVATION
Current Plan
Not archived · Council Link
PROPOSED ELEVATION
Superseded Plan
Not archived · Council Link
PROPOSED ELEVATION
Superseded Plan
Not archived · Council Link
PROPOSED ELEVATION
Current Plan
Not archived · Council Link
PROPOSED ELEVATION
Superseded Plan
Not archived · Council Link
PROPOSED ELEVATION
Current Plan
Not archived · Council Link
PROPOSED ELEVATION
Superseded Plan
Not archived · Council Link
PROPOSED GROUND FLOOR PLAN
Current Plan
Not archived · Council Link
PROPOSED GROUND FLOOR PLAN
Superseded Plan
Not archived · Council Link
PROPOSED GROUND FLOOR PLAN
Superseded Plan
Not archived · Council Link
PROPOSED PARKING PLAN
Current Plan
Not archived · Council Link
PROPOSED ROOF PLAN
Superseded Plan
Not archived · Council Link
PROPOSED ROOF PLAN
Current Plan
Not archived · Council Link
PROPOSED SECTION 1
Current Plan
Not archived · Council Link
PROPOSED SECTION 1
Superseded Plan
Not archived · Council Link
PROPOSED SECTION 2
Superseded Plan
Not archived · Council Link
PROPOSED SECTION 2
Current Plan
Not archived · Council Link
PROPOSED SECTION 3
Current Plan
Not archived · Council Link
PROPOSED SECTION 3
Superseded Plan
Not archived · Council Link
Superseded Plan
Archived · Council Link
Current Plan
Archived · Council Link

Take Action

Make your voice heard. Authorities need to hear from people who support new homes.

✉️ Write Email in Support View on Council Portal