← Back to Thurrock Council

Status

Permitted
Received
17 Jan 2025
New dwellings
n/a

Full Proposal

Demolition of projecting rear elements and erection of replacement single-storey rear extension with flat roof.

Documents

ALL DRAWINGS
Revised Drawing
Not archived · Council Link
APPLICATIONFORMREDACTED
Application Form
Not archived · Council Link
DECISION NOTICE
Decision Notice
Not archived · Council Link
DELEGATED REPORT
Delegated Report
Not archived · Council Link
EXISTING 3D VIEW 1 (FRONT)
Superseded Plan
Not archived · Council Link
EXISTING 3D VIEW 2 (FRONT)
Superseded Plan
Not archived · Council Link
EXISTING 3D VIEW 3 (REAR)
Superseded Plan
Not archived · Council Link
EXISTING 3D VIEW 4 (REAR)
Superseded Plan
Not archived · Council Link
EXISTING ELEVATION
Superseded Plan
Not archived · Council Link
EXISTING ELEVATION
Superseded Plan
Not archived · Council Link
EXISTING ELEVATION
Superseded Plan
Not archived · Council Link
EXISTING GROUND FLOOR PLAN
Superseded Plan
Not archived · Council Link
EXISTING ROOF PLAN
Superseded Plan
Not archived · Council Link
EXISTING SECTION
Superseded Plan
Not archived · Council Link
Superseded Plan
Archived · Council Link
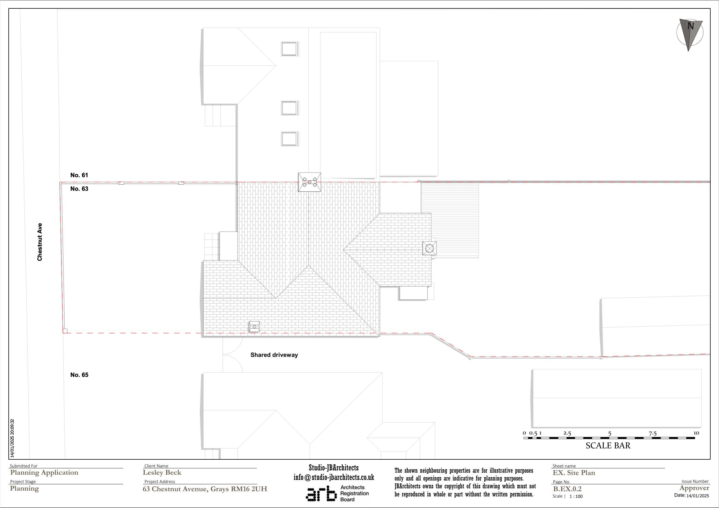
LOCATION PLAN
Superseded Plan
Not archived · Council Link
PROPOSED 3D VIEW 1 (FRONT)
Superseded Plan
Not archived · Council Link
PROPOSED 3D VIEW 2 (FRONT)
Superseded Plan
Not archived · Council Link
PROPOSED 3D VIEW 3 (REAR).
Superseded Plan
Not archived · Council Link
PROPOSED 3D VIEW 4 (REAR).
Superseded Plan
Not archived · Council Link
PROPOSED ELEVATION
Superseded Plan
Not archived · Council Link
PROPOSED ELEVATION
Superseded Plan
Not archived · Council Link
PROPOSED ELEVATION
Superseded Plan
Not archived · Council Link
PROPOSED GROUND FLOOR PLAN
Superseded Plan
Not archived · Council Link
PROPOSED GROUND FLOOR PLAN
Superseded Plan
Not archived · Council Link
PROPOSED LOFT PLAN
Superseded Plan
Not archived · Council Link
PROPOSED ROOF PLAN
Superseded Plan
Not archived · Council Link
PROPOSED SECTION
Superseded Plan
Not archived · Council Link
Superseded Plan
Archived · Council Link

Take Action

Make your voice heard. Authorities need to hear from people who support new homes.

✉️ Write Email in Support View on Council Portal