← Back to Thurrock Council

Status

Permitted
Received
24 Feb 2025
New dwellings
n/a

Summary

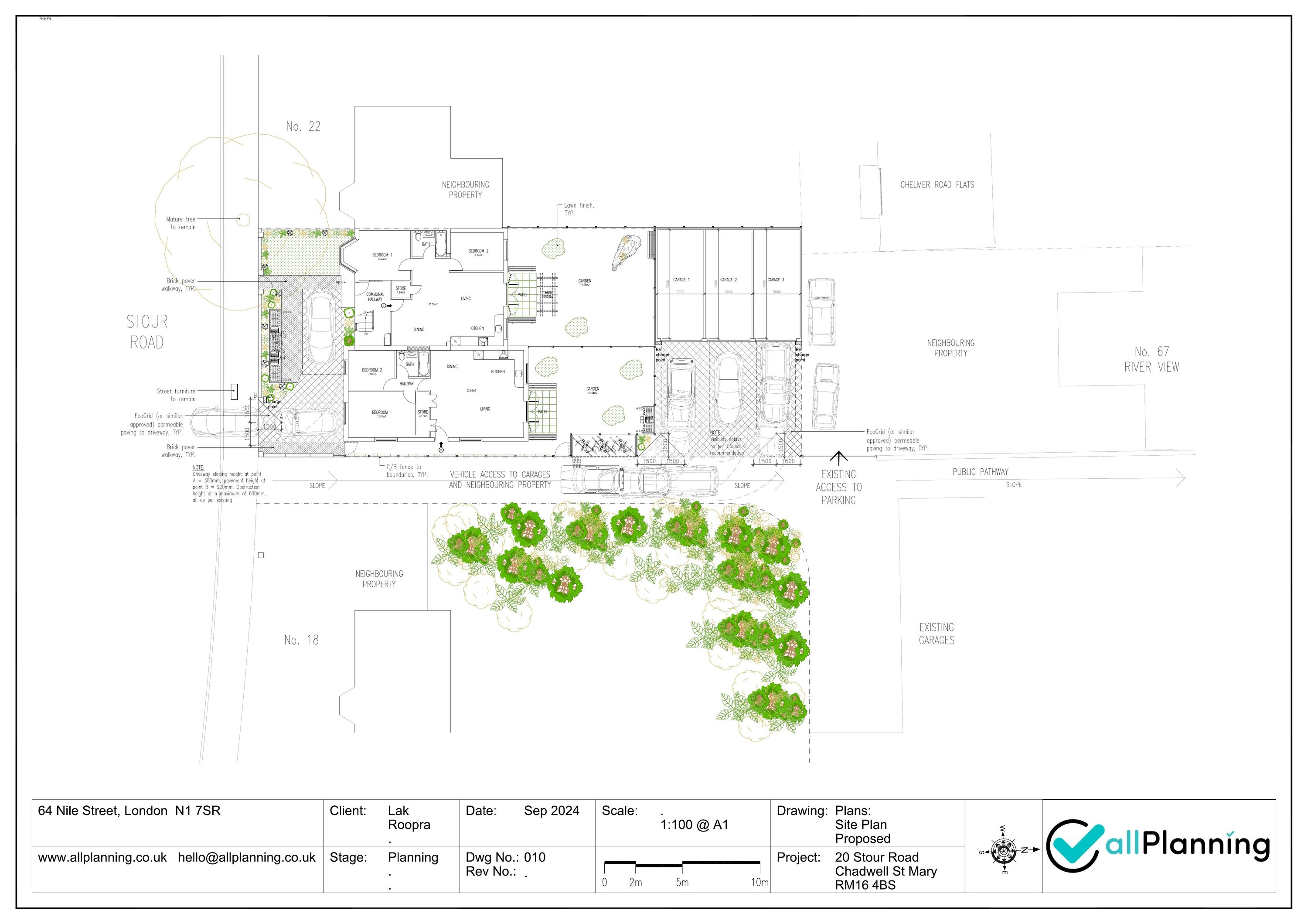
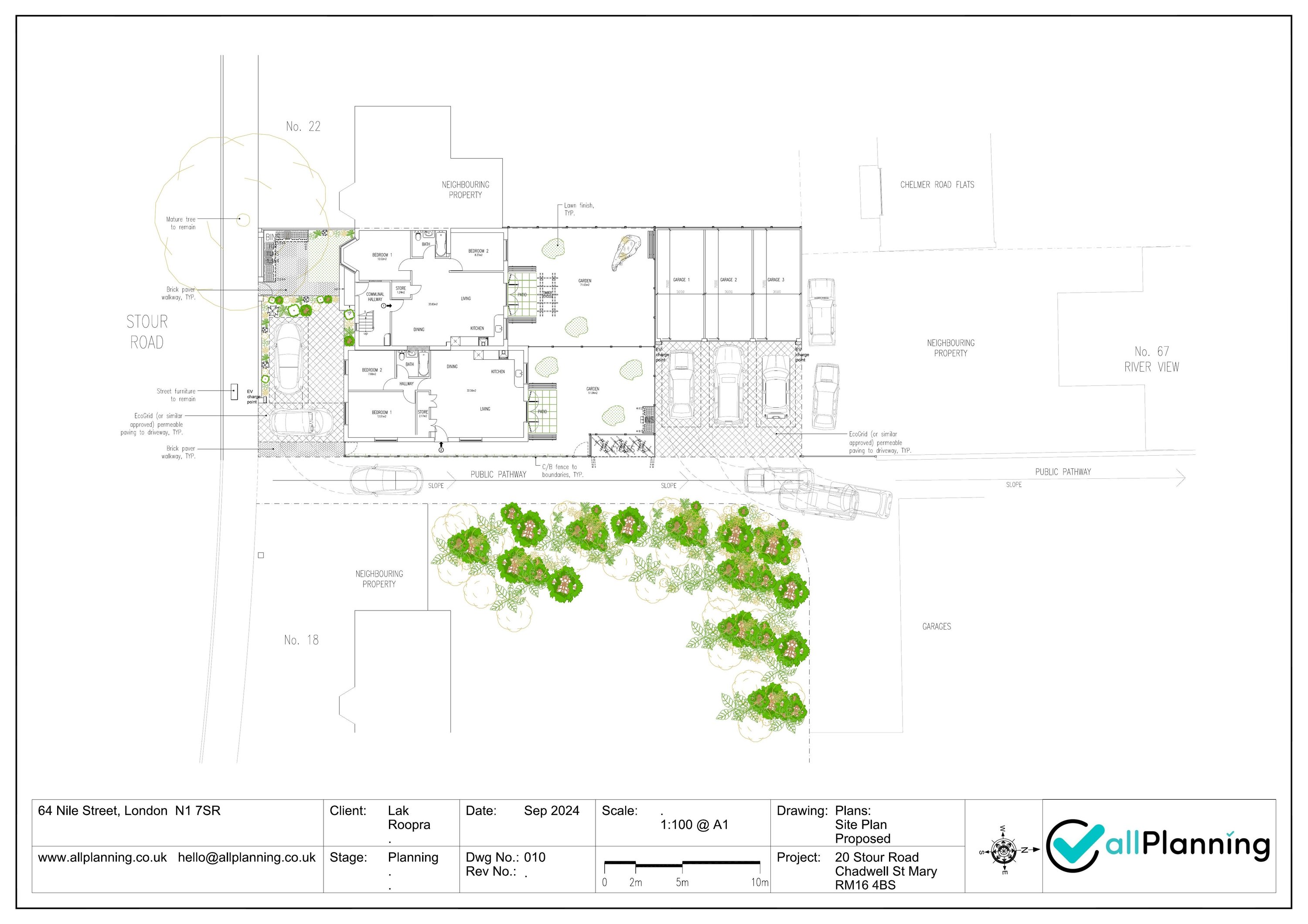
Conversion of existing dwelling into four flats, plus storage, parking and landscaping.

Full Proposal

Partial demolition and extension of existing dwelling; conversion to provide 3 no. 2 bed flats and 1 no. 1 bed flat; erection of triple storage at rear including hardstanding for parking to the front of the storage units; additional hardstanding to the front of site (8x parking spaces in total); landscaping to front and rear including the provision of cycle and refuse/recycling storage.

Documents

APPLICATIONFORMREDACTED
Application Form
Not archived · Council Link
BNG ASSESSMENT
Studies and Reports
Not archived · Council Link
CEMP
Studies and Reports
Not archived · Council Link
CIL_QUESTIONS_PRINT
Studies and Reports
Not archived · Council Link
DECISION NOTICE
Decision Notice
Not archived · Council Link
DELEGATED REPORT
Delegated Report
Not archived · Council Link
DRAFT 2
Delegated Report
Not archived · Council Link
ENVIRONMENTAL HEALTH
Consultee Comment
Not archived · Council Link
EXISTING ELEVATIONS
Superseded Plan
Not archived · Council Link
EXISTING ELEVATIONS
Superseded Plan
Not archived · Council Link
EXISTING ELEVATIONS
Superseded Plan
Not archived · Council Link
EXISTING ELEVATIONS
Current Plan
Not archived · Council Link
EXISTING ELEVATIONS
Current Plan
Not archived · Council Link
EXISTING ELEVATIONS
Current Plan
Not archived · Council Link
EXISTING FIRST FLOOR PLAN
Superseded Plan
Not archived · Council Link
EXISTING FIRST FLOOR PLAN
Current Plan
Not archived · Council Link
EXISTING GROUND FLOOR PLAN
Current Plan
Not archived · Council Link
EXISTING GROUND FLOOR PLAN
Superseded Plan
Not archived · Council Link
EXISTING LOFT PLAN
Superseded Plan
Not archived · Council Link
EXISTING LOFT PLAN
Current Plan
Not archived · Council Link
EXISTING ROOF PLAN
Superseded Plan
Not archived · Council Link
EXISTING ROOF PLAN
Current Plan
Not archived · Council Link
Superseded Plan
Archived · Council Link
Current Plan
Archived · Council Link
LANDSCAPE AND ECOLOGY
Consultee Comment
Not archived · Council Link
LANDSCAPE AND ECOLOGY
Consultee Comment
Not archived · Council Link
LOCATION PLAN
Current Plan
Not archived · Council Link
PARKING STRESS SURVEY
Studies and Reports
Not archived · Council Link
PLANNING AND DESIGN AND ACCESS STATEMENT
Studies and Reports
Not archived · Council Link
PRELIMINARY ECOLOGICAL APPRAISAL AND PRA
Studies and Reports
Not archived · Council Link
PROPOSED ELEVATIONS
Superseded Plan
Not archived · Council Link
PROPOSED ELEVATIONS
Superseded Plan
Not archived · Council Link
PROPOSED ELEVATIONS
Superseded Plan
Not archived · Council Link
PROPOSED ELEVATIONS
Superseded Plan
Not archived · Council Link
PROPOSED ELEVATIONS
Superseded Plan
Not archived · Council Link
PROPOSED ELEVATIONS
Superseded Plan
Not archived · Council Link
PROPOSED ELEVATIONS
Superseded Plan
Not archived · Council Link
PROPOSED ELEVATIONS
Superseded Plan
Not archived · Council Link
PROPOSED FIRST FLOOR PLAN
Current Plan
Not archived · Council Link
PROPOSED FIRST FLOOR PLAN
Superseded Plan
Not archived · Council Link
PROPOSED FIRST FLOOR PLAN
Superseded Plan
Not archived · Council Link
PROPOSED FRONT ELEVATION (SOUTH)
Current Plan
Not archived · Council Link
PROPOSED GROUND FLOOR PLAN
Current Plan
Not archived · Council Link
PROPOSED GROUND FLOOR PLAN
Superseded Plan
Not archived · Council Link
PROPOSED GROUND FLOOR PLAN
Superseded Plan
Not archived · Council Link
PROPOSED LOFT PLAN
Superseded Plan
Not archived · Council Link
PROPOSED LOFT PLAN
Current Plan
Not archived · Council Link
PROPOSED LOFT PLANS
Superseded Plan
Not archived · Council Link
PROPOSED REAR ELEVATIONS (NORTH)
Current Plan
Not archived · Council Link
PROPOSED ROOF PLAN
Superseded Plan
Not archived · Council Link
PROPOSED ROOF PLAN
Current Plan
Not archived · Council Link
PROPOSED ROOF PLANS
Superseded Plan
Not archived · Council Link
PROPOSED SIDE ELEVATIONS (EAST)
Current Plan
Not archived · Council Link
PROPOSED SIDE ELEVATIONS (WEST)
Current Plan
Not archived · Council Link
Current Plan
Archived · Council Link
Superseded Plan
Archived · Council Link
Superseded Plan
Archived · Council Link
Superseded Plan
Archived · Council Link
THE STATUTORY BIODIVERSITY METRIC
Studies and Reports
Not archived · Council Link

Take Action

Make your voice heard. Authorities need to hear from people who support new homes.

✉️ Write Email in Support View on Council Portal