← Back to Thurrock Council

Status

Permitted
Received
20 Mar 2025
New dwellings
n/a

Summary

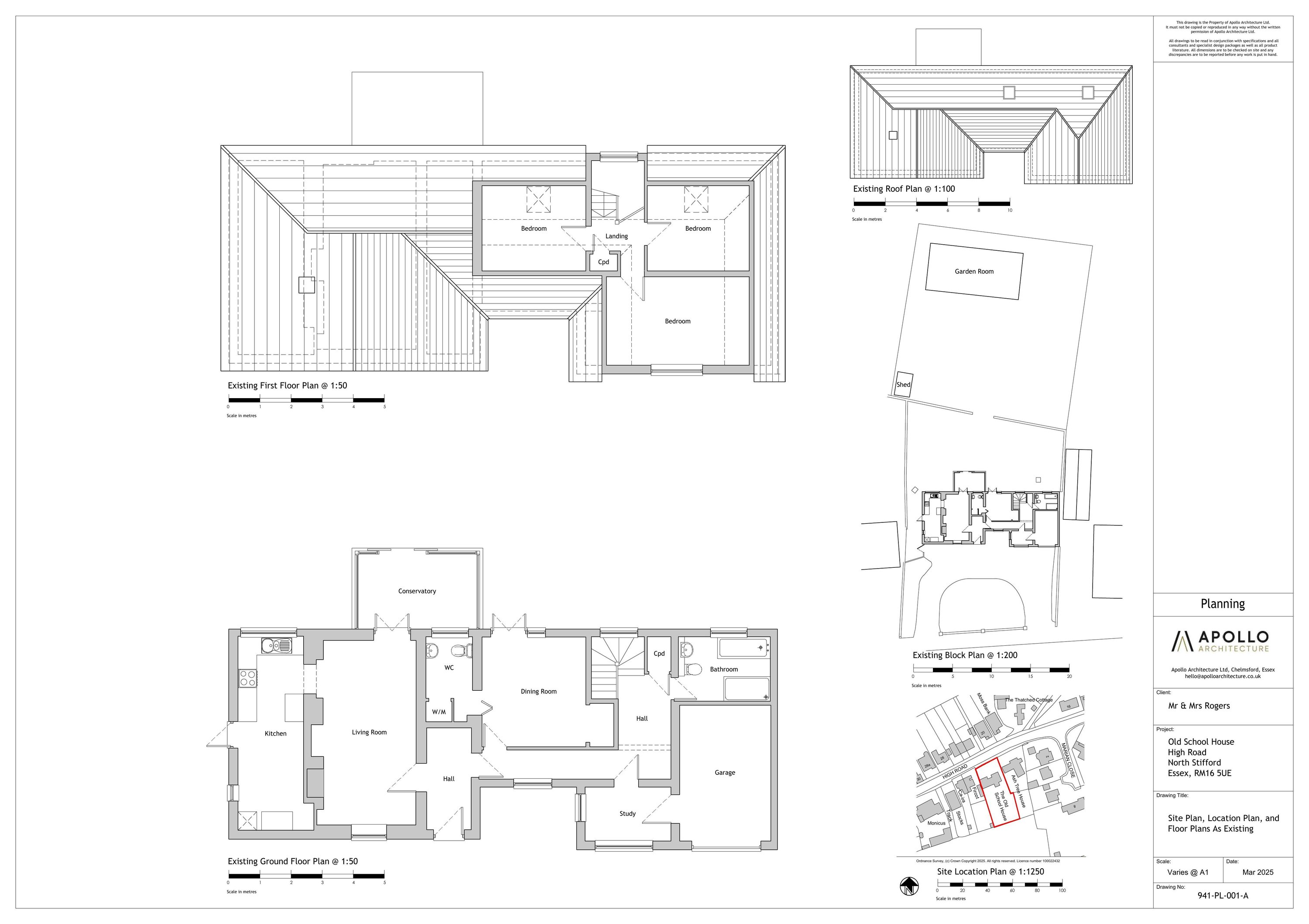
Two-storey rear extension, raise roof to create five-bedroom house and porch, garage conversion.

Full Proposal

Two storey rear extension & raise existing roof to create a 5-bedroom house, erection of covered porch to front elevation, conversion of integral garage, and changes to front fenestration.

Documents

941-PL-002(-) - PROPOSED GROUND FLOOR PLAN
Superseded Plan
Not archived · Council Link
APPLICATIONFORMREDACTED
Application Form
Not archived · Council Link
Decision Notice
Decision Notice
Not archived · Council Link
Delegated Report
Delegated Report
Not archived · Council Link
EXISTING AND PROPOSED ELEVATIONS
Current Plan
Not archived · Council Link
Current Plan
Archived · Council Link
HERITAGE
Consultee Comment
Not archived · Council Link
LISTED BUILDING/CONSERVATION
Consultee Comment
Not archived · Council Link
PROPOSED GROUND FLOOR PLAN
Current Plan
Not archived · Council Link

Take Action

Make your voice heard. Authorities need to hear from people who support new homes.

✉️ Write Email in Support View on Council Portal