← Back to Thurrock Council

Status

Permitted
Received
03 Apr 2025
New dwellings
n/a

Summary

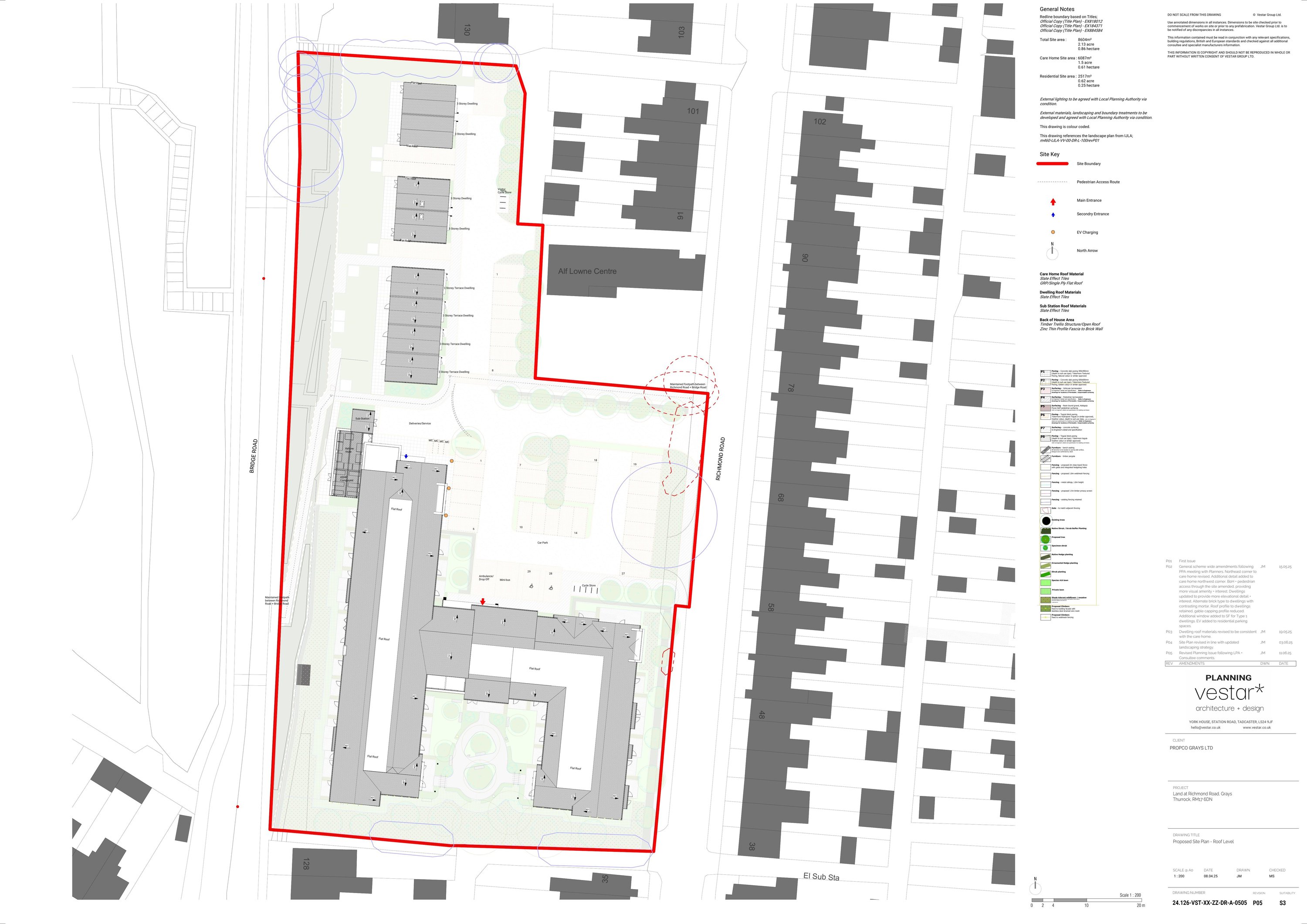
Redevelopment to provide an 86-bed care home (C2) and eight houses (C3) with access and landscaping.

Full Proposal

Redevelopment of the site to form an 86 bedroom care home (C2), 8 houses (C3) with site access works and associated works to internal roads, landscaping, open space and associated ancillary works.

Documents

AIR QUALITY ASSESSMENT
Studies and Reports
Not archived · Council Link
ANGLIAN WATER
Consultee Comment
Not archived · Council Link
APPLICATIONFORMREDACTED
Application Form
Not archived · Council Link
ARBORICULTURAL REPORT
Studies and Reports
Not archived · Council Link
BIOVERSITY NET GAIN ASSESSMENT
Studies and Reports
Not archived · Council Link
CARE HOME RESIDENT PROFILE ADDENDUM
Studies and Reports
Not archived · Council Link
CARE HOME TRAVEL PLAN
Studies and Reports
Not archived · Council Link
CERTIFICATE B
Studies and Reports
Not archived · Council Link
COVER LETTER
Cover Letter
Not archived · Council Link
COVER LETTER
Cover Letter
Not archived · Council Link
COVER LETTER - PLANNING APPLICATION RE-SUBMISSION
Cover Letter
Not archived · Council Link
DAVID BLAZER CONTAMINATED LANDS OFFICER
Consultee Comment
Not archived · Council Link
DAYLIGHT AND SUNLIGHT ASSESSMENT
Studies and Reports
Not archived · Council Link
DECISION NOTICE
Decision Notice
Not archived · Council Link
DELEGATED REPORT
Delegated Report
Not archived · Council Link
DESIGN STATEMENT
Studies and Reports
Not archived · Council Link
DESIGN STATEMENT
Studies and Reports
Not archived · Council Link
DRAINAGE STRATEGY REPORT
Studies and Reports
Not archived · Council Link
DRAINAGE STRATEGY REPORT PART 1
Studies and Reports
Not archived · Council Link
DRAINAGE STRATEGY REPORT PART 2
Studies and Reports
Not archived · Council Link
DWELLING TYPE 1 - TERRACED
Current Plan
Not archived · Council Link
DWELLING TYPE 2 - SEMI DETACHED
Current Plan
Not archived · Council Link
ESSEX CO. FIRE/RESCUE
Consultee Comment
Not archived · Council Link
ESSEX POLICE
Consultee Comment
Not archived · Council Link
ESSEX POLICE
Consultee Comment
Not archived · Council Link
ESSEX POLICE
Consultee Comment
Not archived · Council Link
FINAL PHASE STUDY REPORT
Studies and Reports
Not archived · Council Link
FINAL PHASE STUDY REPORT PART 2
Studies and Reports
Not archived · Council Link
FINAL PHASE STUDY REPORT PART 3
Studies and Reports
Not archived · Council Link
FINAL PHASE STUDY REPORT PART 4
Studies and Reports
Not archived · Council Link
FINAL PHASE STUDY REPORT PART 5
Studies and Reports
Not archived · Council Link
FLOOD RISK ASSESSMENT
Studies and Reports
Not archived · Council Link
HEALTH IMPACT ASSESSMENT
Studies and Reports
Not archived · Council Link
HPC CARE HOME NEED ASSESSMENT
Studies and Reports
Not archived · Council Link
LANDSCAPE AND ECOLOGY
Consultee Comment
Not archived · Council Link
LANDSCAPE STRATEGY PLAN
Studies and Reports
Not archived · Council Link
LANDSCAPING
Studies and Reports
Not archived · Council Link
LANDSCAPING STRATEGY PLAN
Current Plan
Not archived · Council Link
LLFA RESPONSE
Consultee Comment
Not archived · Council Link
LOCAL LEAD FLOOD AUTHORITY
Consultee Comment
Not archived · Council Link
MATERIALS PRECEDENTS
Studies and Reports
Not archived · Council Link
NHS
Consultee Comment
Not archived · Council Link
NOISE ASSESSMENT
Studies and Reports
Not archived · Council Link
NOTICE COVER LETTER HIGHWAYS
Cover Letter
Not archived · Council Link
NOTICE FORM ARTICLE
Studies and Reports
Not archived · Council Link
OPERATIONAL OVERVIEW
Studies and Reports
Not archived · Council Link
PLANNING STATEMENT
Studies and Reports
Not archived · Council Link
PRELIMINARY ECOLOGICAL ASSESSMENT
Studies and Reports
Not archived · Council Link
PROPOSED ELEVATIONS-SHEET 1 OF 2
Superseded Plan
Not archived · Council Link
PROPOSED ELEVATIONS-SHEET 2 OF 2
Superseded Plan
Not archived · Council Link
PROPOSED FIRST FLOOR PLAN
Superseded Plan
Not archived · Council Link
PROPOSED GA ELEVATIONS
Current Plan
Not archived · Council Link
PROPOSED GA ELEVATIONS
Current Plan
Not archived · Council Link
PROPOSED GA PLAN-FIRST FLOOR
Current Plan
Not archived · Council Link
PROPOSED GA PLAN-FIRST FLOOR-P05
Current Plan
Not archived · Council Link
PROPOSED GA PLAN-GROUND FLOOR
Current Plan
Not archived · Council Link
PROPOSED GA PLAN-GROUND FLOOR-P05
Current Plan
Not archived · Council Link
PROPOSED GA PLAN-ROOF PLAN
Current Plan
Not archived · Council Link
PROPOSED GA PLAN-ROOF PLAN-P04
Current Plan
Not archived · Council Link
PROPOSED GA PLAN-SECOND FLOOR
Current Plan
Not archived · Council Link
PROPOSED GA PLAN-SECOND FLOOR-P05
Current Plan
Not archived · Council Link
PROPOSED GROUND FLOOR PLAN
Superseded Plan
Not archived · Council Link
PROPOSED PLAN
Current Plan
Not archived · Council Link
Superseded Plan
Archived · Council Link
Superseded Plan
Archived · Council Link
PROPOSED ROOF PLAN
Superseded Plan
Not archived · Council Link
PROPOSED SECOND FLOOR PLAN
Superseded Plan
Not archived · Council Link
PROPOSED SITE DEVELOPMENT PLAN
Studies and Reports
Not archived · Council Link
PROPOSED SITE LAYOUT PLAN
Superseded Plan
Not archived · Council Link
PROPOSED SITE LAYOUT PLAN
Current Plan
Not archived · Council Link
PROPOSED SITE PHOTOS
Photo
Not archived · Council Link
PROPOSED SITE PHOTOS
Photo
Not archived · Council Link
PROPOSED SITE PHOTOS
Photo
Not archived · Council Link
Superseded Plan
Archived · Council Link
REVISION
Revised Drawing
Not archived · Council Link
REVISION
Revised Drawing
Not archived · Council Link
RICHMOND ROAD CARE HOME TRANSPORT STATEMENT
Studies and Reports
Not archived · Council Link
Current Plan
Archived · Council Link
SITE PHOTO
Photo
Not archived · Council Link
STATEMENT OF COMMUNITY INVOLVEMENT
Studies and Reports
Not archived · Council Link
STATUTORY CONTROLS & CONSTRAINTS
Studies and Reports
Not archived · Council Link
SUSTAINABILITY STATEMENT
Studies and Reports
Not archived · Council Link
TC ENVIRONMENAL HEALTH
Consultee Comment
Not archived · Council Link
TECHNICAL NOTES
Studies and Reports
Not archived · Council Link
TECHNICAL NOTES
Studies and Reports
Not archived · Council Link
THE STATUTORY BIODIVERSITY METRIC
Studies and Reports
Not archived · Council Link
URBAN DESIGN
Consultee Comment
Not archived · Council Link
UTILITY SURVEY
Studies and Reports
Not archived · Council Link

Take Action

Make your voice heard. Authorities need to hear from people who support new homes.

✉️ Write Email in Support View on Council Portal