← Back to Thurrock Council

Status

Permitted
Received
01 Sep 2025
New dwellings
n/a

Summary

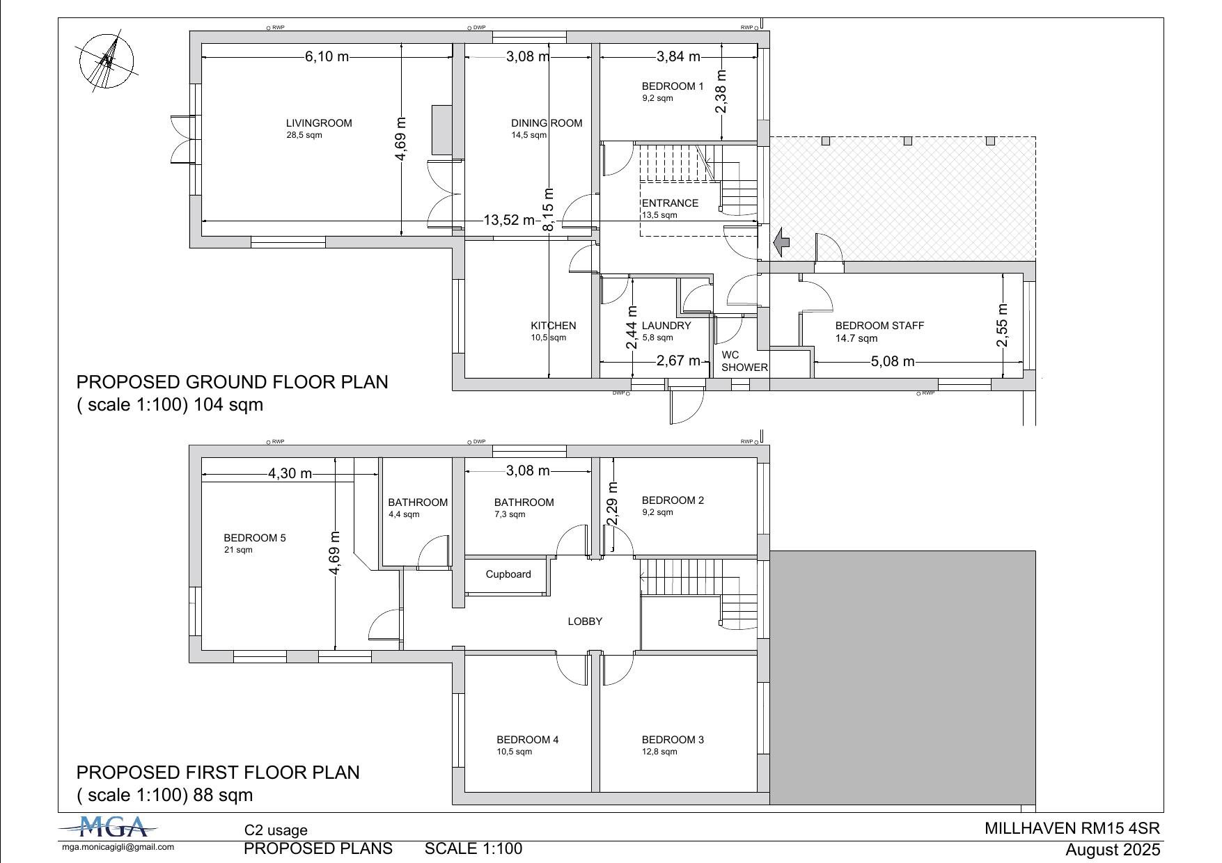
Change of use from C3 dwelling to C2 small care home for five children.

Full Proposal

Material change of use from C3 dwellinghouse to class C2 residential institution (small care home for 5 children under the age of 18 and one permanent staff member)

Documents

APPLICATIONFORMREDACTED
Application Form
Not archived · Council Link
DECISION NOTICE
Decision Notice
Not archived · Council Link
DELEGATED REPORT
Delegated Report
Not archived · Council Link
ENVIRONMENTAL HEALTH
Consultee Comment
Not archived · Council Link
HIGHWAYS COMMENTS
Consultee Comment
Not archived · Council Link
MILLHAVEN MILL-EXISTING ELEVATIONS FRONT SIDE
Current Plan
Not archived · Council Link
MILLHAVEN MILL-EXISTING ELEVATIONS REAR SIDE
Current Plan
Not archived · Council Link
MILLHAVEN MILL-EXISTING PLANS
Current Plan
Not archived · Council Link
MILLHAVEN MILL-LOCATION PLAN 1.1250
Current Plan
Not archived · Council Link
MILLHAVEN MILL-PHOTOGRAPHS
Photo
Not archived · Council Link
MILLHAVEN MILL-PROPOSED ELEVATIONS FRONT SIDE
Current Plan
Not archived · Council Link
MILLHAVEN MILL-PROPOSED ELEVATIONS REAR SIDE
Current Plan
Not archived · Council Link
Current Plan
Archived · Council Link
Superseded Plan
Archived · Council Link
PROPOSED BLOCK PLAN
Current Plan
Not archived · Council Link

Take Action

Make your voice heard. Authorities need to hear from people who support new homes.

✉️ Write Email in Support View on Council Portal