← Back to Thurrock Council

Status

Permitted
Received
08 Sep 2025
New dwellings
n/a

Full Proposal

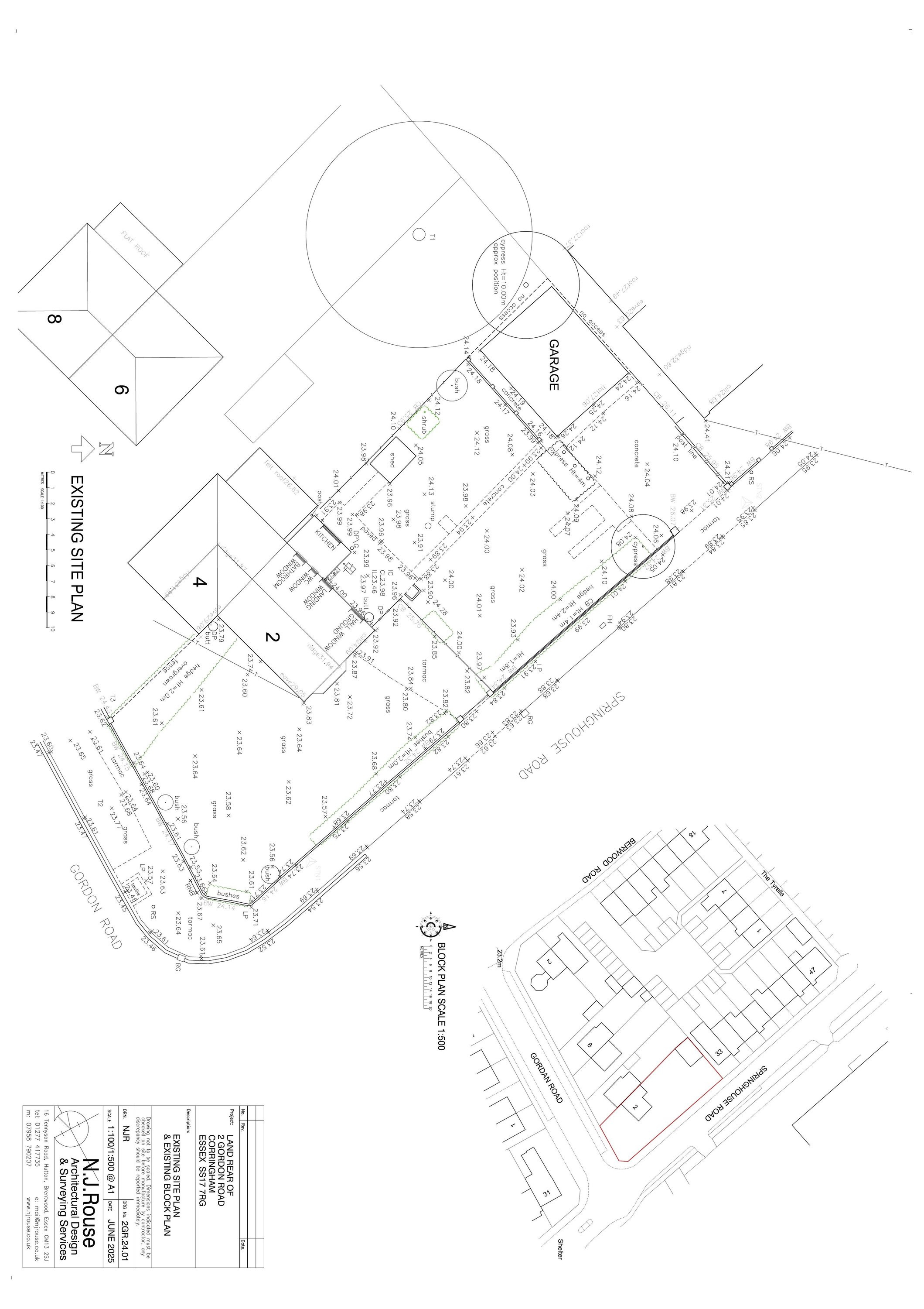
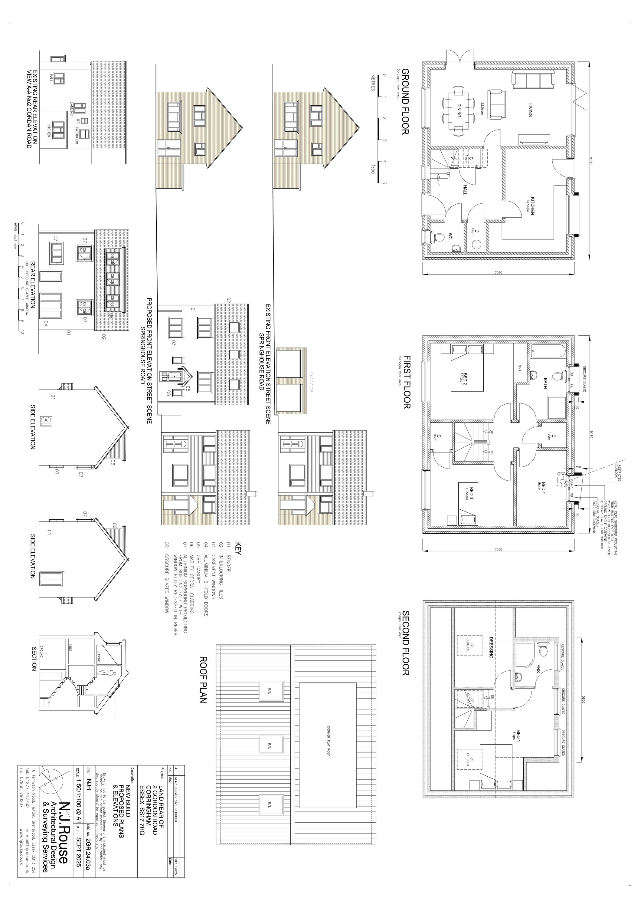
Demolition of detached double garage and construction of two-storey detached dwelling to rear of 2 Gordon Road, with associated parking, garden areas and vehicular access via extended existing access

Documents

APPLICATIONFORMREDACTED
Application Form
Not archived · Council Link
BNG
Studies and Reports
Not archived · Council Link
CONSTRUCTION ENVIRONMENTAL MANAGEMENT PLAN
Studies and Reports
Not archived · Council Link
DECISION NOTICE
Decision Notice
Not archived · Council Link
DELEGATED REPORT
Delegated Report
Not archived · Council Link
DESIGN AND ACCESS STATEMENT
Studies and Reports
Not archived · Council Link
Current Plan
Archived · Council Link
HABITAT REGULATION ASSESSMENT
Consultee Comment
Not archived · Council Link
LANDSCAPE AND ECOLOGY
Consultee Comment
Not archived · Council Link
LANDSCAPE PLAN
Current Plan
Not archived · Council Link
LOCATION PLAN
Current Plan
Not archived · Council Link
MATERIALS
Current Plan
Not archived · Council Link
PEA
Studies and Reports
Not archived · Council Link
PLANTING SPECIFICATION
Studies and Reports
Not archived · Council Link
Current Plan
Archived · Council Link
STATUTORY BIODIVERSITY METRIC
Current Plan
Not archived · Council Link
TC ENVIRONMENTAL HEALTH
Consultee Comment
Not archived · Council Link
TREE LOCATION PLAN
Current Plan
Not archived · Council Link

Take Action

Make your voice heard. Authorities need to hear from people who support new homes.

✉️ Write Email in Support View on Council Portal