← Back to Thurrock Council

Status

Awaiting decision
Received
30 Sep 2025
New dwellings
n/a

Full Proposal

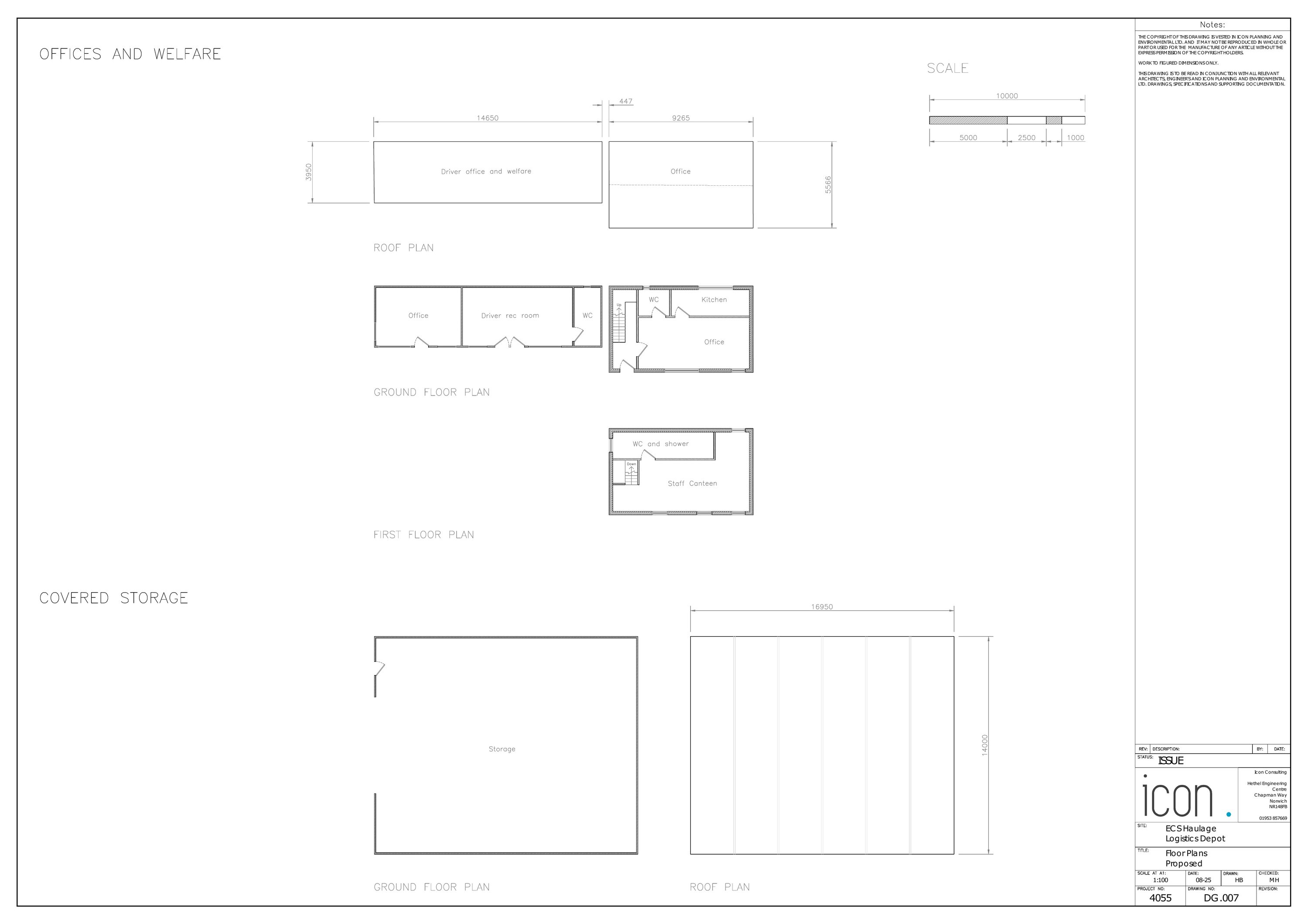
Retrospective application for a Change of Use to a Logistics Depot (sui generis), including HGV parking, offices, welfare provision, operational storage, and ancillary infrastructure.

Documents

APPLICATIONFORMREDACTED
Application Form
Not archived · Council Link
DRAINAGE REPORT
Report
Not archived · Council Link
ENVIRONMENT AGENCY
Consultee Comment
Not archived · Council Link
ENVIRONMENTAL HEALTH.
Consultee Comment
Not archived · Council Link
EXISTING ELEVATIONS
Superseded Plan
Not archived · Council Link
EXISTING ELEVATIONS
Superseded Plan
Not archived · Council Link
EXISTING FLOOR PLANS
Superseded Plan
Not archived · Council Link
EXISTING FLOOR PLANS
Superseded Plan
Not archived · Council Link
Superseded Plan
Archived · Council Link
Superseded Plan
Archived · Council Link
FLOOD RISK ASSESMENT
Report
Not archived · Council Link
I.25.4055.ADLD.DG.004 - EXISTING ELEVATIONS
Current Plan
Not archived · Council Link
I.25.4055.ADLD.DG.005 - PROPOSED ELEVATIONS
Current Plan
Not archived · Council Link
I.25.4055.ADLD.DG.006 - EXISTING FLOOR PLANS
Current Plan
Not archived · Council Link
LANDSCAPE AND ECOLOGY
Consultee Comment
Not archived · Council Link
PLANNING STATEMENT
Report
Not archived · Council Link
PRELIMINARY ECOLOGICAL APPRAISAL
Report
Not archived · Council Link
PROPOSED ELEVATIONS
Superseded Plan
Not archived · Council Link
PROPOSED ELEVATIONS
Superseded Plan
Not archived · Council Link
Superseded Plan
Archived · Council Link
Superseded Plan
Archived · Council Link
Superseded Plan
Archived · Council Link
Superseded Plan
Archived · Council Link
Superseded Plan
Archived · Council Link
Superseded Plan
Archived · Council Link
TRANSPORT STATEMENT
Report
Not archived · Council Link

Take Action

Make your voice heard. Authorities need to hear from people who support new homes.

✉️ Write Email in Support View on Council Portal