← Back to Thurrock Council

Status

Permitted
Received
24 Nov 2025
New dwellings
n/a

Full Proposal

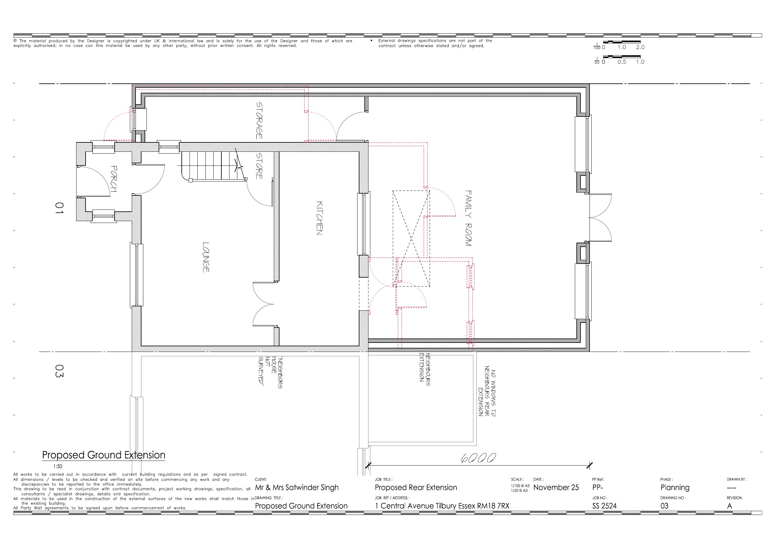
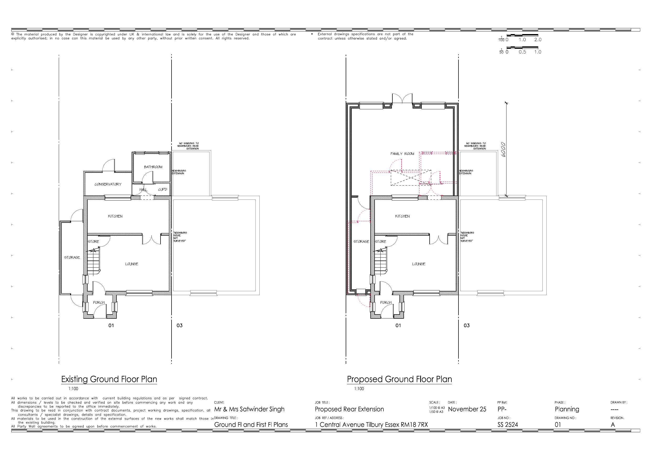
Single-storey ground-floor side and rear wraparound extension with a flat roof incorporating a skylight.

Documents

APPLICATION FORM
Application Form
Not archived · Council Link
APPLICATIONFORMREDACTED
Application Form
Not archived · Council Link
DECISION NOTICE
Decision Notice
Not archived · Council Link
DELEGATED REPORT
Delegated Report
Not archived · Council Link
EXISTING AND PROPOSED BLOCK PLAN
Current Plan
Not archived · Council Link
EXISTING AND PROPOSED ELEVATIONS
Current Plan
Not archived · Council Link
EXISTING AND PROPOSED ELEVATIONS
Current Plan
Not archived · Council Link
EXISTING AND PROPOSED ELEVATIONS
Current Plan
Not archived · Council Link
Superseded Plan
Archived · Council Link
EXISTING AND PROPOSED FRONT ELEVATIONS
Superseded Plan
Not archived · Council Link
Current Plan
Archived · Council Link
Current Plan
Archived · Council Link
EXISTING AND PROPOSED REAR ELEVATIONS
Superseded Plan
Not archived · Council Link
EXISTING AND PROPOSED ROOF PLAN
Superseded Plan
Not archived · Council Link
EXISTING AND PROPOSED SECTION
Current Plan
Not archived · Council Link
EXISTING AND PROPOSED SECTIONS
Superseded Plan
Not archived · Council Link
EXISTING AND PROPOSED SIDE ELEVATIONS
Superseded Plan
Not archived · Council Link
LOCATION PLAN
Current Plan
Not archived · Council Link
PHOTOS
Photo
Not archived · Council Link
PHOTOS
Photo
Not archived · Council Link
PROPOSED GROUND FLOOR PLANS
Superseded Plan
Not archived · Council Link
Current Plan
Archived · Council Link

Take Action

Make your voice heard. Authorities need to hear from people who support new homes.

✉️ Write Email in Support View on Council Portal