← Back to Thurrock Council

Status

Awaiting decision
Received
04 Dec 2025
New dwellings
n/a

Full Proposal

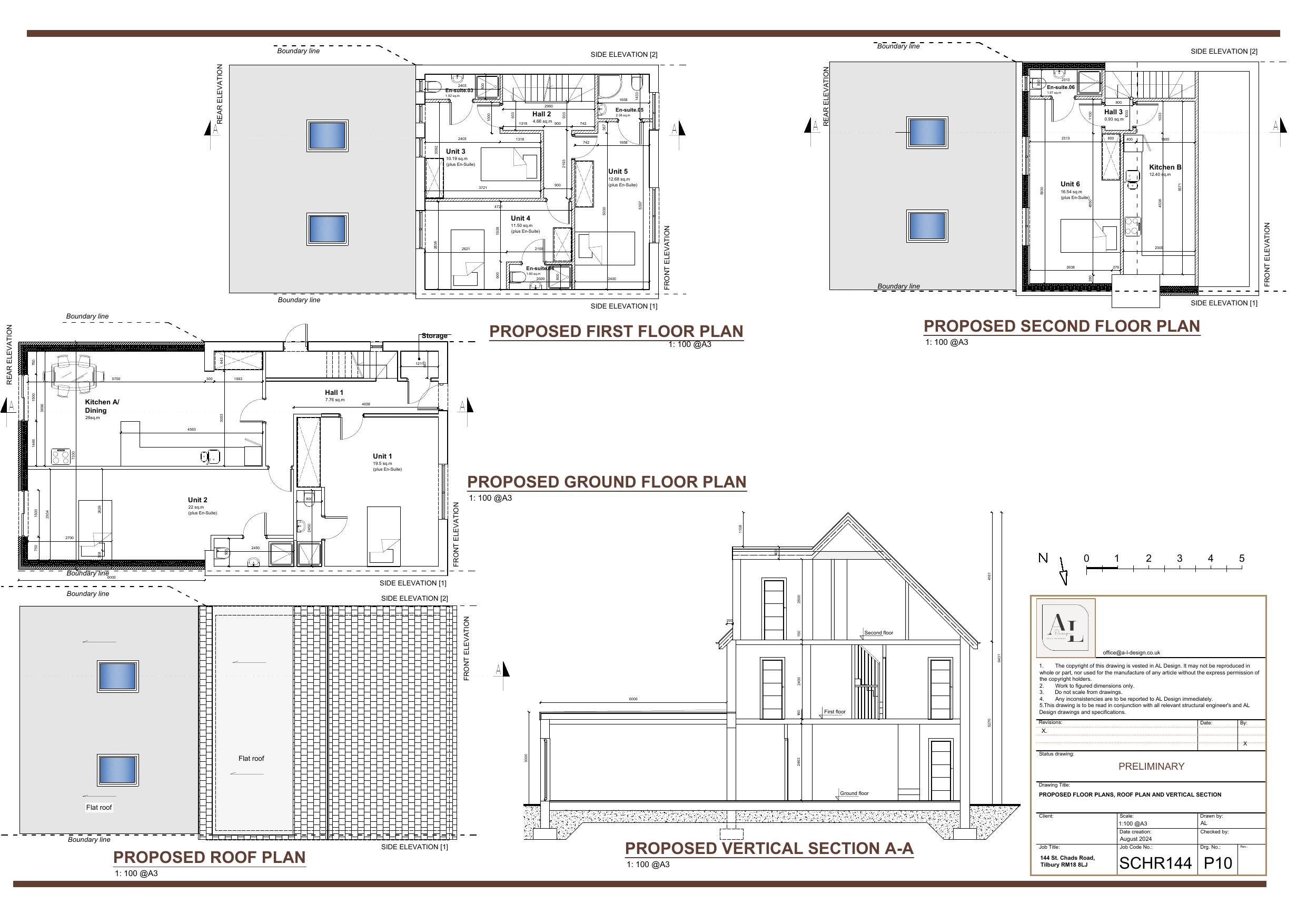
Change of use from C3 (Dwellinghouse) to C4 (HMO), with associated single storey rear extension and loft conversion with rear dormer

Documents

146 ST CHADS ROAD TILBURY ESSEX(FULL)
Neighbour Comment
Not archived · Council Link
APPLICATIONFORMREDACTED
Application Form
Not archived · Council Link
COVER LETTER
Cover Letter
Not archived · Council Link
DESIGN AND ACCESS
Studies and Reports
Not archived · Council Link
EMERGENCY PLANNING
Consultee Comment
Not archived · Council Link
ENVIRONMENT AGENCY
Consultee Comment
Not archived · Council Link
EXISTING ELEVATIONS
Current Plan
Not archived · Council Link
EXISTING FLOOR PLANS
Current Plan
Not archived · Council Link
FLOOD RISK ASSESMENT
Studies and Reports
Not archived · Council Link
FLOOD WARNING AND EVACUATION PLAN
Studies and Reports
Not archived · Council Link
LOCAL LEAD FLOOD AUTHORITY
Consultee Comment
Not archived · Council Link
OS MAP AND LOCATION PLAN
Current Plan
Not archived · Council Link
PROPOSED ELEVATIONS
Current Plan
Not archived · Council Link
Current Plan
Archived · Council Link
Current Plan
Archived · Council Link

Take Action

Make your voice heard. Authorities need to hear from people who support new homes.

✉️ Write Email in Support View on Council Portal