← Back to Thurrock Council

Status

Awaiting decision
Received
23 days ago
New dwellings
n/a

Full Proposal

Single-storey rear extension with flat roof and roof lantern.

Documents

3D VIEW FRONT
Current Plan
Not archived · Council Link
3D VIEW REAR
Current Plan
Not archived · Council Link
APPLICATIONFORMREDACTED
Application Form
Not archived · Council Link
EXISTING FIRST FLOOR
Current Plan
Not archived · Council Link
EXISTING FRONT ELEVATIONS
Current Plan
Not archived · Council Link
EXISTING GROUND FLOOR
Current Plan
Not archived · Council Link
EXISTING LEFT ELEVATIONS
Current Plan
Not archived · Council Link
EXISTING REAR ELEVATIONS
Current Plan
Not archived · Council Link
EXISTING ROOF
Current Plan
Not archived · Council Link
EXISTING SECTIONS
Current Plan
Not archived · Council Link
Current Plan
Archived · Council Link
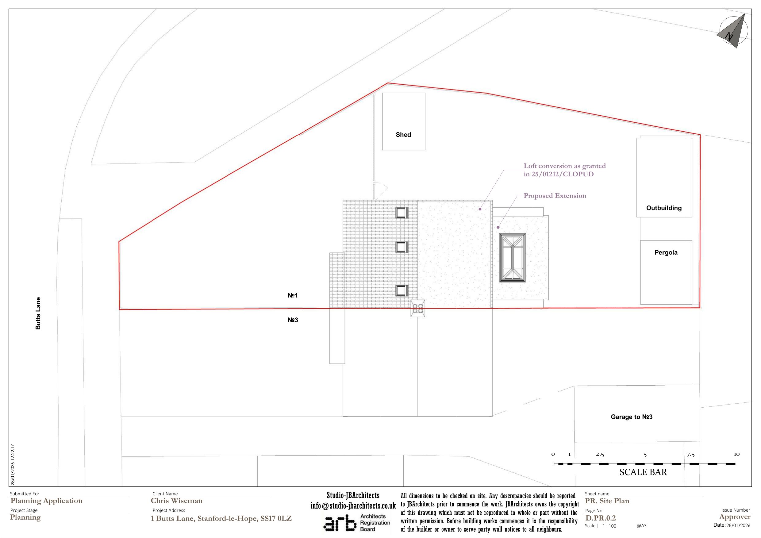
LOCATION PLAN
Current Plan
Not archived · Council Link
PROPOSED 3D VIEW FRONT
Current Plan
Not archived · Council Link
PROPOSED 3D VIEW REAR
Current Plan
Not archived · Council Link
PROPOSED FIRST FLOOR
Current Plan
Not archived · Council Link
PROPOSED FRONT ELEVATION
Current Plan
Not archived · Council Link
PROPOSED GROUND FLOOR
Current Plan
Not archived · Council Link
PROPOSED LEFT ELEVATION
Current Plan
Not archived · Council Link
PROPOSED LOFT
Current Plan
Not archived · Council Link
PROPOSED REAR ELEVATION
Current Plan
Not archived · Council Link
PROPOSED ROOF
Current Plan
Not archived · Council Link
PROPOSED SECTIONS
Current Plan
Not archived · Council Link
Current Plan
Archived · Council Link

Take Action

Make your voice heard. Authorities need to hear from people who support new homes.

✉️ Write Email in Support View on Council Portal