← Back to Tonbridge and Malling Borough Council

Status

Registered
Received
04 Nov 2025
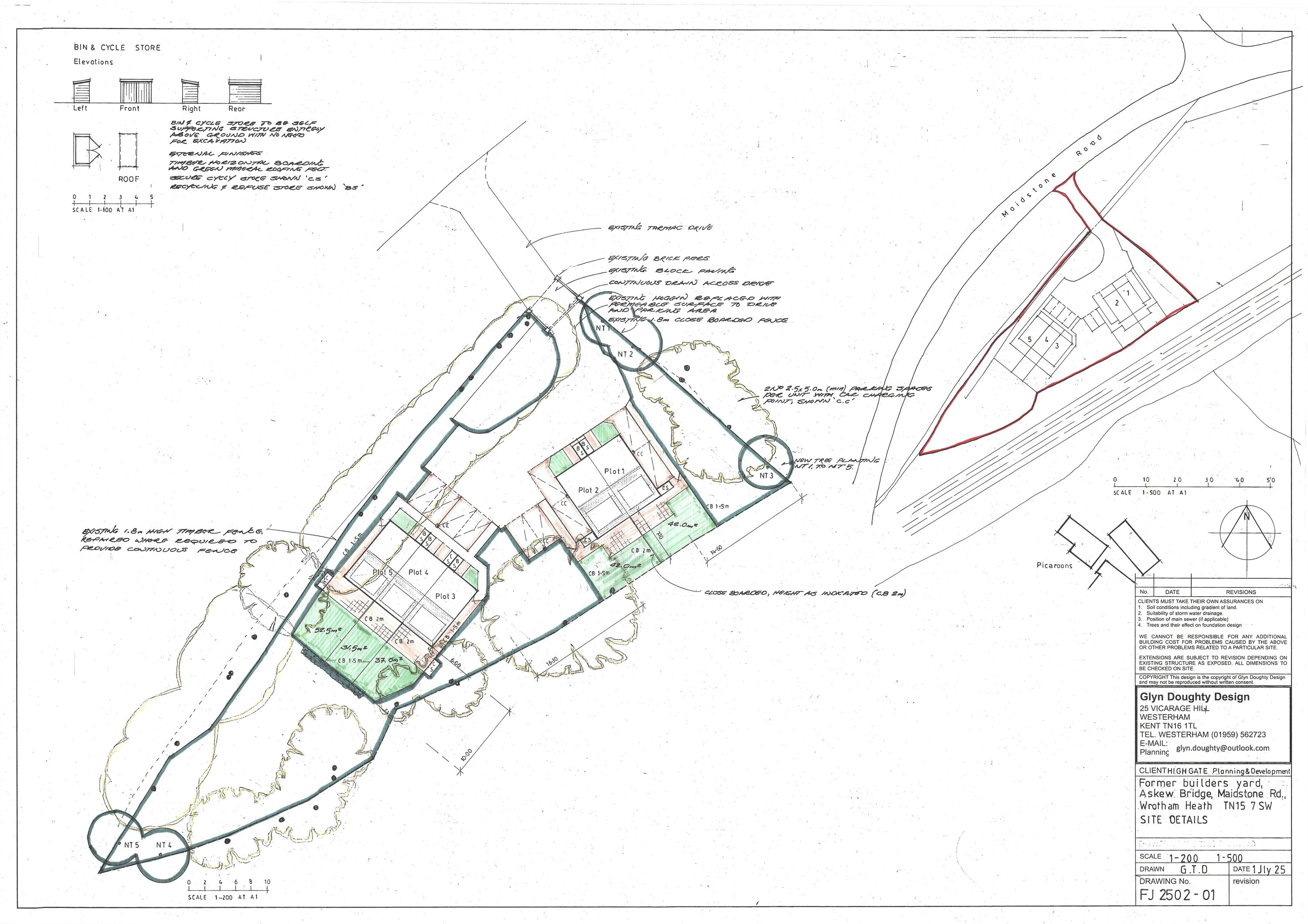
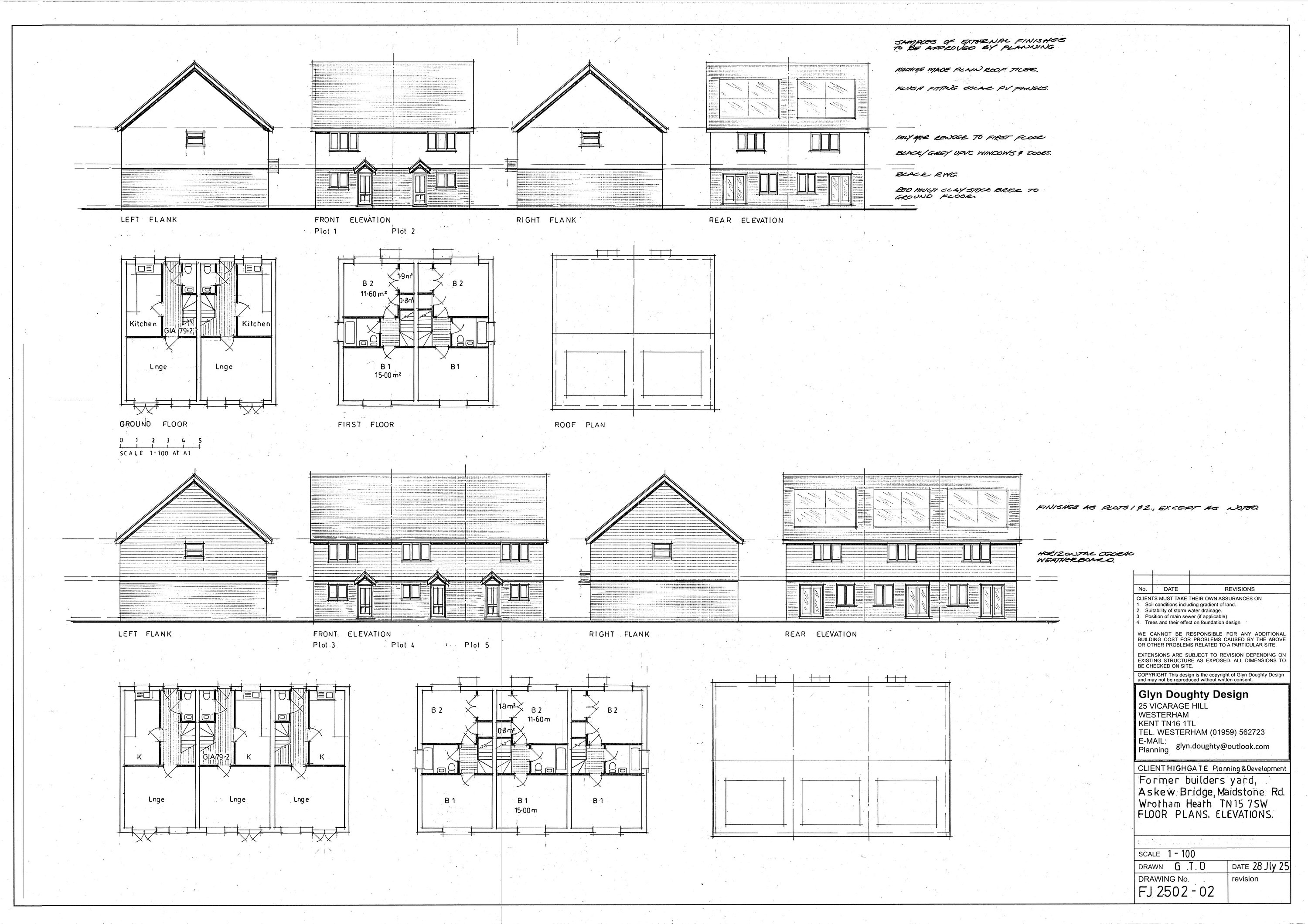
New dwellings
n/a

Full Proposal

Erection of 5x dwellings with associated parking, access and landscaping

Documents

Drawing
Archived · Council Link
Application Form - Without Personal Data
Application Form
Not archived · Council Link
Bat Survey
Report
Not archived · Council Link
Biodiversity statement and metric assessment
Report
Not archived · Council Link
BNG baseline metric calculation
Report
Not archived · Council Link
BNG metric
Report
Not archived · Council Link
Design and access statement
Report
Not archived · Council Link
Environmental Health Protection
Consultee Response
Not archived · Council Link
KCC HIGHWAYS
Consultee Response
Not archived · Council Link
Leisure Services
Consultee Response
Not archived · Council Link
Network Rail
Consultee Response
Not archived · Council Link
Network Rail
Consultee Response
Not archived · Council Link
Preliminary ecological appraisal
Report
Not archived · Council Link
Drawing
Archived · Council Link
Site notice
Other
Not archived · Council Link
TCP/1 Tree constraints plan
Drawing
Not archived · Council Link
Tree survey and assessment
Report
Not archived · Council Link
Tree survey data
Report
Not archived · Council Link
Waste Services
Consultee Response
Not archived · Council Link

Take Action

Make your voice heard. Authorities need to hear from people who support new homes.

✉️ Write Email in Support View on Council Portal