← Back to Tonbridge and Malling Borough Council

Status

Awaiting decision
Received
03 Dec 2025
New dwellings
n/a

Full Proposal

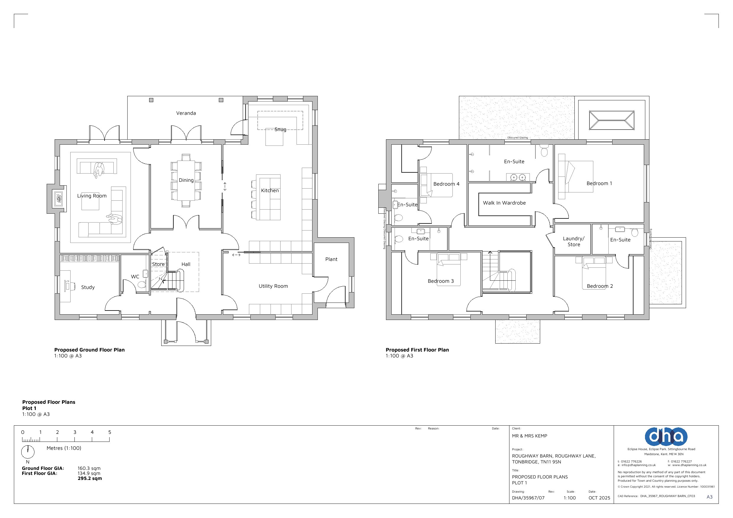
Demolition of agricultural barn and erection of 2no. residential dwellings with associated car barn, parking and landscaping.

Documents

APPLICATIONFORMREDACTED
Application Form
Not archived · Council Link
CONSERVATION OFFICER
Consultee Response
Not archived · Council Link
ECOLOGICAL ASSESSMENT
Report
Not archived · Council Link
ENVIRONMENTAL PROTECTION
Consultee Response
Not archived · Council Link
EXISTING ELEVATIONS
Drawing
Not archived · Council Link
Drawing
Archived · Council Link
HERITAGE STATEMENT
Report
Not archived · Council Link
HIGHWAYS AND TRANSPORTATION
Consultee Response
Not archived · Council Link
HIGHWAYS AND TRANSPORTATION
Consultee Response
Not archived · Council Link
KCC EAS
Consultee Response
Not archived · Council Link
KCC HERITAGE CONSERVATION
Consultee Response
Not archived · Council Link
PARISH COUNCIL
Consultee Response
Not archived · Council Link
PLANNING, DESIGN AND ACCESS STATEMENT
Report
Not archived · Council Link
PRELIMINARY INVESTIGATIONS REPORT PART 1
Report
Not archived · Council Link
PRELIMINARY INVESTIGATIONS REPORT PART 2
Report
Not archived · Council Link
PRESS NOTICE
Other
Not archived · Council Link
PROPOSED ELEVATIONS PLOT 1
Drawing
Not archived · Council Link
PROPOSED SITE LAYOUT PLAN
Drawing
Not archived · Council Link
PROPOSED SITE LAYOUT PLAN- EV CHARGING POINTS
Drawing
Not archived · Council Link
Site Location Plan
Archived · Council Link
SITE NOTICE
Other
Not archived · Council Link

Take Action

Make your voice heard. Authorities need to hear from people who support new homes.

✉️ Write Email in Support View on Council Portal