← Back to Tonbridge and Malling Borough Council

Status

Registered
Received
18 Dec 2025
New dwellings
n/a

Full Proposal

Construction of three detached dwellings, with associated landscaping alterations

Documents

Drawing
Archived · Council Link
APPLICATIONFORMREDACTED
Application Form
Not archived · Council Link
ARBORICULTURAL REPORT
Report
Not archived · Council Link
ARTICLE 13 NOTICE
Other
Not archived · Council Link
BNG METRIC
Other
Not archived · Council Link
BNG REPORT
Report
Not archived · Council Link
BNG VALIDITATION RESULTS
Other
Not archived · Council Link
CERTIFICATE B COVER LETTER
Other
Not archived · Council Link
COVER LETTER
Other
Not archived · Council Link
DESIGN AND ACCESS STATEMENT
Report
Not archived · Council Link
ECOLOGICAL IMPACT ASSESSMENT
Report
Not archived · Council Link
ENVIRONMENTAL HEALTH
Consultee Response
Not archived · Council Link
ENVIRONMENTAL PROTECTION
Consultee Response
Not archived · Council Link
Drawing
Archived · Council Link
GEO REPORT PART 1 OF 4
Report
Not archived · Council Link
GEO REPORT PART 2 OF 4
Report
Not archived · Council Link
GEO REPORT PART 3 OF 4
Report
Not archived · Council Link
GEO REPORT PART 4 OF 4
Report
Not archived · Council Link
GREAT CRESTED NEWT REPORT
Report
Not archived · Council Link
HADLOW PARISH COUNCIL
Consultee Response
Not archived · Council Link
PRESS NOTICE
Other
Not archived · Council Link
Site Location Plan
Archived · Council Link
SITE SECTIONS
Drawing
Not archived · Council Link
TREE PROTECTION PLAN
Report
Not archived · Council Link
TREE SURVEY PLAN
Report
Not archived · Council Link
UNIT 1 PLAN AND ELEVATIONS
Drawing
Not archived · Council Link
Drawing
Archived · Council Link
UNIT 2 PROPOSED SECTION AND ELEVATIONS
Drawing
Not archived · Council Link
Drawing
Archived · Council Link
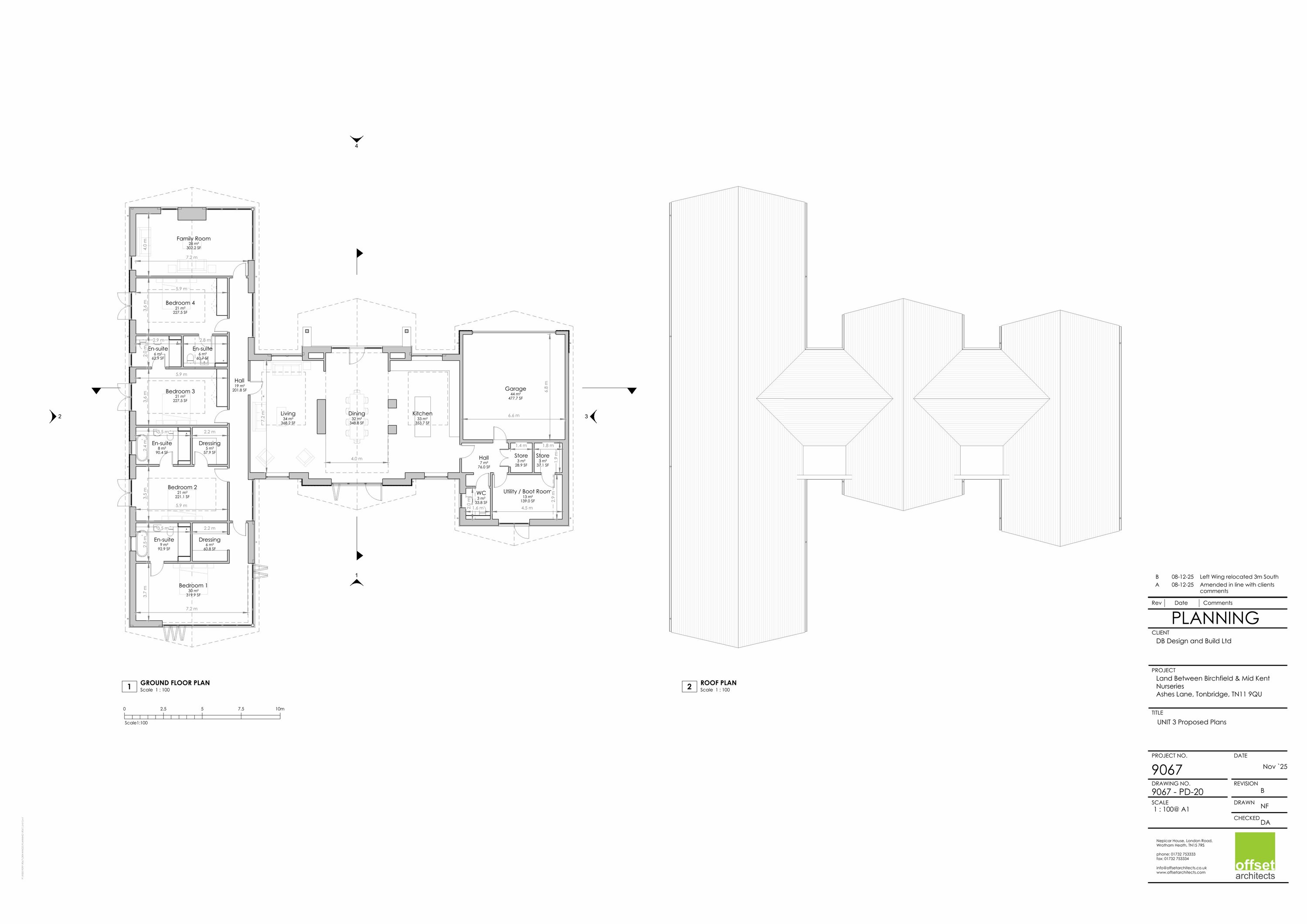
UNIT 3 PROPOSED SECTION AND ELEVATIONS
Drawing
Not archived · Council Link

Take Action

Make your voice heard. Authorities need to hear from people who support new homes.

✉️ Write Email in Support View on Council Portal