← Back to Torfaen County Borough Council
26/P/0010/FUL
Torfaen County Borough Council · IDOX
Status
Pending Consideration
Received
Last month
New dwellings
n/a
Full Proposal
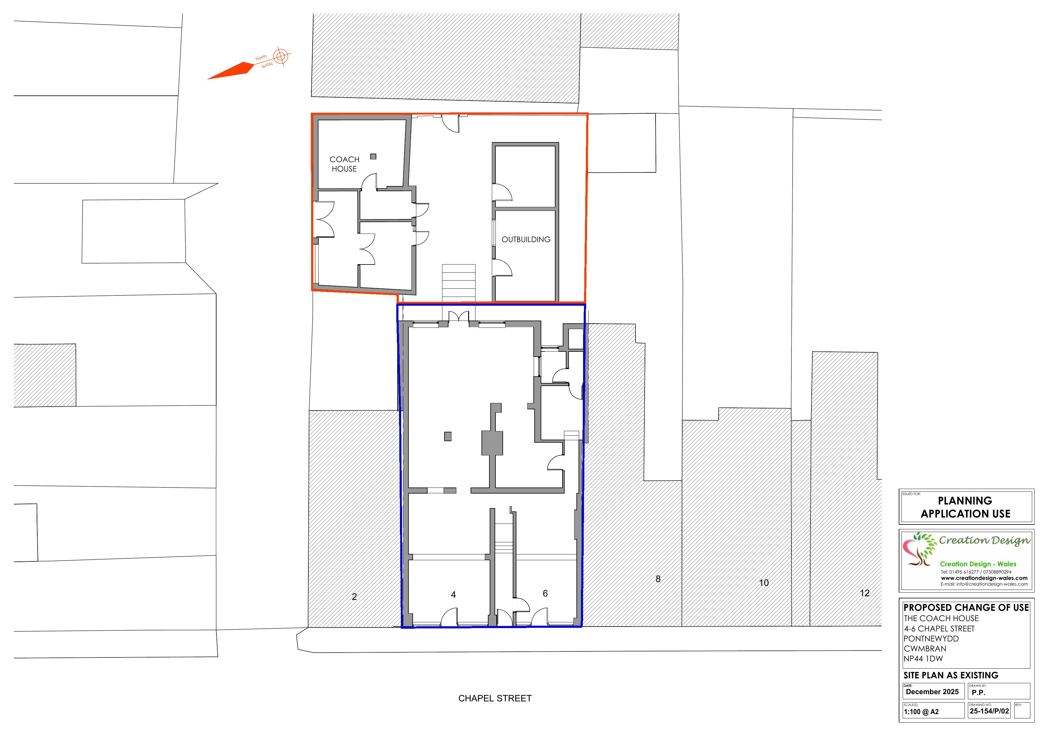
Proposed conversion of vacant coach house to two bedroom residential property (resubmission of 25/P/0233/FUL)
Documents
Take Action
Make your voice heard. Authorities need to hear from people who support new homes.