← Back to Tower Hamlets

Status

Registered
Received
n/a
New dwellings
n/a

Full Proposal

Installation of Air Source Heat Pumps (VRF recovery units) and associated acoustic enclosure, secondary glazing, repair of existing windows, installation of louvres, removal of radiators, installation of panel radiators and associated works.

Documents

ACOUSTIC - STANDARD PAINT COLOURS
Correspondence
Not archived · Council Link
ACOUSTIC LOVURE - DOUBLE DOOR, OUTWARD OPENING
Current Plan
Not archived · Council Link
Application Form
Application Form
Not archived · Council Link
BASEMENT - FIRE DETECTION AND ALARM LAYOUT
Current Plan
Not archived · Council Link
BASEMENT AND GROUND FLOOR - FLOOR PLAN
Current Plan
Not archived · Council Link
BASEMENT CONTAINMENT PENETRATION LAYOUT SHEET 1
Current Plan
Not archived · Council Link
BASEMENT CONTAINMENT PENETRATION LAYOUT SHEET 2
Current Plan
Not archived · Council Link
BASEMENT EXTERNAL WALL - ELEVATION 9
Current Plan
Not archived · Council Link
BASEMENT LAYOUT SHOWING LINTELS OVER
Current Plan
Not archived · Council Link
BASEMENT LEVEL CONTAINMENT LAYOUT SHEET 1
Current Plan
Not archived · Council Link
BASEMENT LEVEL CONTAINMENT LAYOUT SHEET 2
Current Plan
Not archived · Council Link
BASEMENT LEVEL HEATING LAYOUT SHEET 1
Current Plan
Not archived · Council Link
BASEMENT LEVEL HEATING LAYOUT SHEET 2
Current Plan
Not archived · Council Link
BASEMENT LEVEL SMALL POWER LAYOUT SHEET 1
Current Plan
Not archived · Council Link
BASEMENT LEVEL SMALL POWER LAYOUT SHEET 2
Current Plan
Not archived · Council Link
CANAL & RIVER TRUST
Consultee Comment
Not archived · Council Link
CONSERVATION SPECIFICATION
Report
Not archived · Council Link
CONSTRUCTION MANAGEMENT PLAN
Report
Not archived · Council Link
CONTAINMENT PENETRATION DETAIL DRAWING
Current Plan
Not archived · Council Link
CONTAINMENT PENETRATION SCHEDULE
Correspondence
Not archived · Council Link
COVERING LETTER DATED: 24 OCT 2025
Correspondence
Not archived · Council Link
DATA SHEETS AND MATERIALS - GLAZING - 6.15.15 SITE RESPONSIBILITIES ATTENDANCE SCHEDULE FEB 2016
Correspondence
Not archived · Council Link
DATA SHEETS AND MATERIALS - GLAZING - 6.15.6 T AND C - SUPPLY AND FIX FEB 2016
Correspondence
Not archived · Council Link
DATA SHEETS AND MATERIALS - GLAZING - CT E 77688 FLOOR PLAN
Correspondence
Not archived · Council Link
DATA SHEETS AND MATERIALS - GLAZING - SELECTAGLAZE COUPLING DETAILS
Correspondence
Not archived · Council Link
DATA SHEETS AND MATERIALS - GLAZING - SELECTAGLAZE LOCKS AND HANDLES
Correspondence
Not archived · Council Link
DATA SHEETS AND MATERIALS - GLAZING - SERIES 10 HS
Correspondence
Not archived · Council Link
DATA SHEETS AND MATERIALS - GLAZING - SERIES 20 VS
Correspondence
Not archived · Council Link
DATA SHEETS AND MATERIALS - GLAZING - SERIES 31 LO
Correspondence
Not archived · Council Link
DATA SHEETS AND MATERIALS - GLAZING - SERIES 41 HC
Correspondence
Not archived · Council Link
DATA SHEETS AND MATERIALS - GLAZING - SERIES 45 HC
Correspondence
Not archived · Council Link
DATA SHEETS AND MATERIALS - GLAZING - SERIES 46 FL
Correspondence
Not archived · Council Link
DATA SHEETS AND MATERIALS - GLAZING - SERIES 60 VS
Correspondence
Not archived · Council Link
DATA SHEETS AND MATERIALS - MATERIALS SCHEDULE
Correspondence
Not archived · Council Link
DATA SHEETS AND MATERIALS - MEP
Correspondence
Not archived · Council Link
DATA SHEETS AND MATERIALS - MEP
Correspondence
Not archived · Council Link
DATA SHEETS AND MATERIALS - MEP
Correspondence
Not archived · Council Link
DATA SHEETS AND MATERIALS - MEP
Correspondence
Not archived · Council Link
DATA SHEETS AND MATERIALS - MEP
Correspondence
Not archived · Council Link
EXTERNAL PLANT COMPOUND
Current Plan
Not archived · Council Link
EXTERNAL PLANT COMPUND
Current Plan
Not archived · Council Link
FIRST FLOOR - FIRE DETECTION AND ALARM LAYOUT
Current Plan
Not archived · Council Link
FIRST FLOOR CONTAINMENT LAYOUT SHEET 1
Current Plan
Not archived · Council Link
FIRST FLOOR CONTAINMENT PENETRATION LAYOUT SHEET 1
Current Plan
Not archived · Council Link
FIRST FLOOR CONTAINMENT PENETRATION LAYOUT SHEET 2
Current Plan
Not archived · Council Link
FIRST FLOOR CONTAINMENTLAYOUT SHEET 2
Current Plan
Not archived · Council Link
FIRST FLOOR HEATING LAYOUT SHEET 1
Current Plan
Not archived · Council Link
FIRST FLOOR HEATING LAYOUT SHEET 2
Current Plan
Not archived · Council Link
FIRST FLOOR LAYOUT SHOWING LINTELS OVER
Current Plan
Not archived · Council Link
FIRST FLOOR SMALL POWER LAYOUT SHEET 1
Current Plan
Not archived · Council Link
FIRST FLOOR SMALL POWER LAYOUT SHEET 2
Current Plan
Not archived · Council Link
FIRST SECOND AND THIRD FLOOR - FLOOR PLANS
Current Plan
Not archived · Council Link
Flood Risk Assessment
Flood Risk Assessment
Not archived · Council Link
FOUNDATION LAYOUT
Current Plan
Not archived · Council Link
GROUND FLOOR - FIRE DETECTION AND ALARM LAYOUT
Current Plan
Not archived · Council Link
GROUND FLOOR CONTAINMENT LAYOUT SHEET 1
Current Plan
Not archived · Council Link
GROUND FLOOR CONTAINMENT LAYOUT SHEET 2
Current Plan
Not archived · Council Link
GROUND FLOOR CONTAINMENT PENETRATION LAYOUT SHEET 1
Current Plan
Not archived · Council Link
GROUND FLOOR HEATING LAYOUT SHEET 2
Current Plan
Not archived · Council Link
GROUND FLOOR HEATING LAYOUT SHHET 1
Current Plan
Not archived · Council Link
GROUND FLOOR LAYOUT SHOWING LINTELS OVER
Current Plan
Not archived · Council Link
GROUND FLOOR SMALL POWER AND LIGHTING LAYOUT SHEET 1
Current Plan
Not archived · Council Link
GROUND FLOOR SMALL POWER LAYOUT SHEET 2
Current Plan
Not archived · Council Link
INCLUDING DESIGN AND ACCESS STATEMENT
Heritage Statement
Not archived · Council Link
INTERNAL WINDOW REVEALS
Current Plan
Not archived · Council Link
KENCH AND SWB
Drawing/Document Issue Register
Not archived · Council Link
LIGHTING DETAILS
Report
Not archived · Council Link
LOCATION PLAN
OS Extract
Not archived · Council Link
LV SCHEMATICS
Current Plan
Not archived · Council Link
NOISE SURVEY REVIEW BS 4142 ASSESSMENT AND VIBRATION REVIEW
Report
Not archived · Council Link
PHASE 1 GEO-ENVIRONMENTAL DESK STUDY
Report
Not archived · Council Link
Photo
Photo
Not archived · Council Link
Photo
Photo
Not archived · Council Link
Photo
Photo
Not archived · Council Link
Photo
Photo
Not archived · Council Link
Photo
Photo
Not archived · Council Link
Photo
Photo
Not archived · Council Link
Photo
Photo
Not archived · Council Link
Photo
Photo
Not archived · Council Link
Photo
Photo
Not archived · Council Link
Photo
Photo
Not archived · Council Link
Photo
Photo
Not archived · Council Link
Photo
Photo
Not archived · Council Link
Photo
Photo
Not archived · Council Link
Photo
Photo
Not archived · Council Link
Photo
Photo
Not archived · Council Link
Photo
Photo
Not archived · Council Link
Photo
Photo
Not archived · Council Link
Photo
Photo
Not archived · Council Link
Photo
Photo
Not archived · Council Link
Photo
Photo
Not archived · Council Link
Photo
Photo
Not archived · Council Link
Photo
Photo
Not archived · Council Link
Photo
Photo
Not archived · Council Link
Photo
Photo
Not archived · Council Link
Photo
Photo
Not archived · Council Link
Photo
Photo
Not archived · Council Link
Photo
Photo
Not archived · Council Link
Photo
Photo
Not archived · Council Link
Photo
Photo
Not archived · Council Link
Photo
Photo
Not archived · Council Link
Photo
Photo
Not archived · Council Link
Photo
Photo
Not archived · Council Link
Photo
Photo
Not archived · Council Link
Photo
Photo
Not archived · Council Link
Photo
Photo
Not archived · Council Link
Photo
Photo
Not archived · Council Link
Photo
Photo
Not archived · Council Link
Photo
Photo
Not archived · Council Link
Photo
Photo
Not archived · Council Link
Photo
Photo
Not archived · Council Link
Photo
Photo
Not archived · Council Link
Photo
Photo
Not archived · Council Link
Photo
Photo
Not archived · Council Link
Photo
Photo
Not archived · Council Link
Photo
Photo
Not archived · Council Link
Photo
Photo
Not archived · Council Link
Photo
Photo
Not archived · Council Link
Photo
Photo
Not archived · Council Link
Photo
Photo
Not archived · Council Link
Photo
Photo
Not archived · Council Link
Photo
Photo
Not archived · Council Link
Photo
Photo
Not archived · Council Link
Photo
Photo
Not archived · Council Link
Photo
Photo
Not archived · Council Link
Photo
Photo
Not archived · Council Link
Photo
Photo
Not archived · Council Link
Photo
Photo
Not archived · Council Link
Photo
Photo
Not archived · Council Link
Photo
Photo
Not archived · Council Link
Photo
Photo
Not archived · Council Link
Photo
Photo
Not archived · Council Link
Photo
Photo
Not archived · Council Link
Photo
Photo
Not archived · Council Link
Photo
Photo
Not archived · Council Link
Photo
Photo
Not archived · Council Link
Photo
Photo
Not archived · Council Link
Photo
Photo
Not archived · Council Link
Photo
Photo
Not archived · Council Link
Photo
Photo
Not archived · Council Link
Photo
Photo
Not archived · Council Link
Photo
Photo
Not archived · Council Link
Photo
Photo
Not archived · Council Link
Photo
Photo
Not archived · Council Link
Photo
Photo
Not archived · Council Link
Photo
Photo
Not archived · Council Link
Photo
Photo
Not archived · Council Link
Photo
Photo
Not archived · Council Link
Photo
Photo
Not archived · Council Link
Photo
Photo
Not archived · Council Link
Photo
Photo
Not archived · Council Link
Photo
Photo
Not archived · Council Link
Photo
Photo
Not archived · Council Link
Photo
Photo
Not archived · Council Link
Photo
Photo
Not archived · Council Link
Photo
Photo
Not archived · Council Link
Photo
Photo
Not archived · Council Link
Photo
Photo
Not archived · Council Link
Photo
Photo
Not archived · Council Link
Photo
Photo
Not archived · Council Link
Photo
Photo
Not archived · Council Link
Photo
Photo
Not archived · Council Link
Photo
Photo
Not archived · Council Link
Photo
Photo
Not archived · Council Link
Photo
Photo
Not archived · Council Link
Photo
Photo
Not archived · Council Link
Photo
Photo
Not archived · Council Link
Photo
Photo
Not archived · Council Link
Photo
Photo
Not archived · Council Link
Photo
Photo
Not archived · Council Link
Photo
Photo
Not archived · Council Link
Photo
Photo
Not archived · Council Link
Photo
Photo
Not archived · Council Link
Photo
Photo
Not archived · Council Link
Photo
Photo
Not archived · Council Link
Photo
Photo
Not archived · Council Link
Photo
Photo
Not archived · Council Link
Photo
Photo
Not archived · Council Link
Photo
Photo
Not archived · Council Link
Photo
Photo
Not archived · Council Link
Photo
Photo
Not archived · Council Link
Photo
Photo
Not archived · Council Link
Photo
Photo
Not archived · Council Link
Photo
Photo
Not archived · Council Link
Photo
Photo
Not archived · Council Link
Photo
Photo
Not archived · Council Link
Photo
Photo
Not archived · Council Link
Photo
Photo
Not archived · Council Link
Photo
Photo
Not archived · Council Link
Photo
Photo
Not archived · Council Link
Photo
Photo
Not archived · Council Link
Photo
Photo
Not archived · Council Link
Photo
Photo
Not archived · Council Link
Photo
Photo
Not archived · Council Link
Photo
Photo
Not archived · Council Link
Photo
Photo
Not archived · Council Link
Photo
Photo
Not archived · Council Link
Photo
Photo
Not archived · Council Link
Photo
Photo
Not archived · Council Link
Photo
Photo
Not archived · Council Link
Photo
Photo
Not archived · Council Link
Photo
Photo
Not archived · Council Link
Photo
Photo
Not archived · Council Link
Photo
Photo
Not archived · Council Link
Photo
Photo
Not archived · Council Link
Photo
Photo
Not archived · Council Link
Photo
Photo
Not archived · Council Link
Photo
Photo
Not archived · Council Link
Photo
Photo
Not archived · Council Link
Photo
Photo
Not archived · Council Link
Photo
Photo
Not archived · Council Link
Photo
Photo
Not archived · Council Link
Photo
Photo
Not archived · Council Link
Photo
Photo
Not archived · Council Link
Photo
Photo
Not archived · Council Link
Photo
Photo
Not archived · Council Link
Photo
Photo
Not archived · Council Link
Photo
Photo
Not archived · Council Link
Photo
Photo
Not archived · Council Link
Photo
Photo
Not archived · Council Link
Photo
Photo
Not archived · Council Link
Photo
Photo
Not archived · Council Link
Photo
Photo
Not archived · Council Link
Photo
Photo
Not archived · Council Link
Photo
Photo
Not archived · Council Link
Photo
Photo
Not archived · Council Link
Photo
Photo
Not archived · Council Link
Photo
Photo
Not archived · Council Link
Photo
Photo
Not archived · Council Link
Photo
Photo
Not archived · Council Link
Photo
Photo
Not archived · Council Link
Photo
Photo
Not archived · Council Link
Photo
Photo
Not archived · Council Link
Photo
Photo
Not archived · Council Link
Photo
Photo
Not archived · Council Link
Photo
Photo
Not archived · Council Link
Photo
Photo
Not archived · Council Link
Photo
Photo
Not archived · Council Link
Photo
Photo
Not archived · Council Link
Photo
Photo
Not archived · Council Link
Photo
Photo
Not archived · Council Link
Photo
Photo
Not archived · Council Link
Photo
Photo
Not archived · Council Link
Photo
Photo
Not archived · Council Link
Photo
Photo
Not archived · Council Link
Photo
Photo
Not archived · Council Link
Photo
Photo
Not archived · Council Link
Photo
Photo
Not archived · Council Link
Photo
Photo
Not archived · Council Link
Photo
Photo
Not archived · Council Link
Photo
Photo
Not archived · Council Link
Photo
Photo
Not archived · Council Link
Photo
Photo
Not archived · Council Link
Photo
Photo
Not archived · Council Link
Photo
Photo
Not archived · Council Link
Photo
Photo
Not archived · Council Link
Photo
Photo
Not archived · Council Link
Photo
Photo
Not archived · Council Link
Photo
Photo
Not archived · Council Link
Photo
Photo
Not archived · Council Link
Photo
Photo
Not archived · Council Link
Photo
Photo
Not archived · Council Link
Photo
Photo
Not archived · Council Link
Photo
Photo
Not archived · Council Link
Photo
Photo
Not archived · Council Link
Photo
Photo
Not archived · Council Link
Photo
Photo
Not archived · Council Link
Photo
Photo
Not archived · Council Link
Photo
Photo
Not archived · Council Link
Photo
Photo
Not archived · Council Link
Photo
Photo
Not archived · Council Link
Photo
Photo
Not archived · Council Link
Photo
Photo
Not archived · Council Link
Photo
Photo
Not archived · Council Link
Photo
Photo
Not archived · Council Link
Photo
Photo
Not archived · Council Link
Photo
Photo
Not archived · Council Link
Photo
Photo
Not archived · Council Link
PROPOSED BASEMENT DOOR ALTERATIONS
Current Plan
Not archived · Council Link
PROPOSED BASEMENT WINDOW ALTERATIONS
Current Plan
Not archived · Council Link
PROPOSED CEILING REPLACEMENT DRAWING
Current Plan
Not archived · Council Link
PROPOSED ELEVATIONS - SHEET 1
Current Plan
Not archived · Council Link
PROPOSED INTERNAL SECONDARY GLAZING UNITS
Current Plan
Not archived · Council Link
PROPOSED LOGISTICS PLAN
Current Plan
Not archived · Council Link
PROPOSED PENETRATION FOR EXTERNAL SERVICES
Current Plan
Not archived · Council Link
PROPOSED WINDOW REPLACEMENT DRAWING
Current Plan
Not archived · Council Link
RADIATOR REGISTER
Correspondence
Not archived · Council Link
RADIATOR SCHEDULE SHEET 1
Current Plan
Not archived · Council Link
RADIATOR SCHEDULE SHEET 2
Current Plan
Not archived · Council Link
RADIATOR SCHEDULE SHEET 3
Current Plan
Not archived · Council Link
RC RAFT SLAB DETAIL
Current Plan
Not archived · Council Link
REFLECTIVE CEILING PLAN - SHEET 1
Current Plan
Not archived · Council Link
REFLECTIVE CEILING PLAN - SHEET 2
Current Plan
Not archived · Council Link
SECOND FLOOR - FIRE DETECTION AND ALARM LAYOUT
Current Plan
Not archived · Council Link
SECOND FLOOR CONTAINMENT LAYOUT SHEET 1
Current Plan
Not archived · Council Link
SECOND FLOOR CONTAINMENT LAYOUT SHEET 2
Current Plan
Not archived · Council Link
SECOND FLOOR CONTAINMENT PENETRATION LAYOUT SHEET 1
Current Plan
Not archived · Council Link
SECOND FLOOR CONTAINMENT PENETRATION LAYOUT SHEET 2
Current Plan
Not archived · Council Link
SECOND FLOOR HEATING LAYOUT SHEET 1
Current Plan
Not archived · Council Link
SECOND FLOOR HEATING LAYOUT SHEET 2
Current Plan
Not archived · Council Link
SECOND FLOOR LAYOUT SHOWING LINTELS OVER
Current Plan
Not archived · Council Link
SECOND FLOOR SMALL POWER LAYOUT SHEET 1
Current Plan
Not archived · Council Link
SECOND FLOOR SMALL POWER LAYOUT SHEET 2
Current Plan
Not archived · Council Link
SECONDARY GLAZING FIXINGS DETAIL DRAWING - SHEET 1
Current Plan
Not archived · Council Link
SECONDARY GLAZING FIXINGS DETAIL DRAWING - SHEET 2
Current Plan
Not archived · Council Link
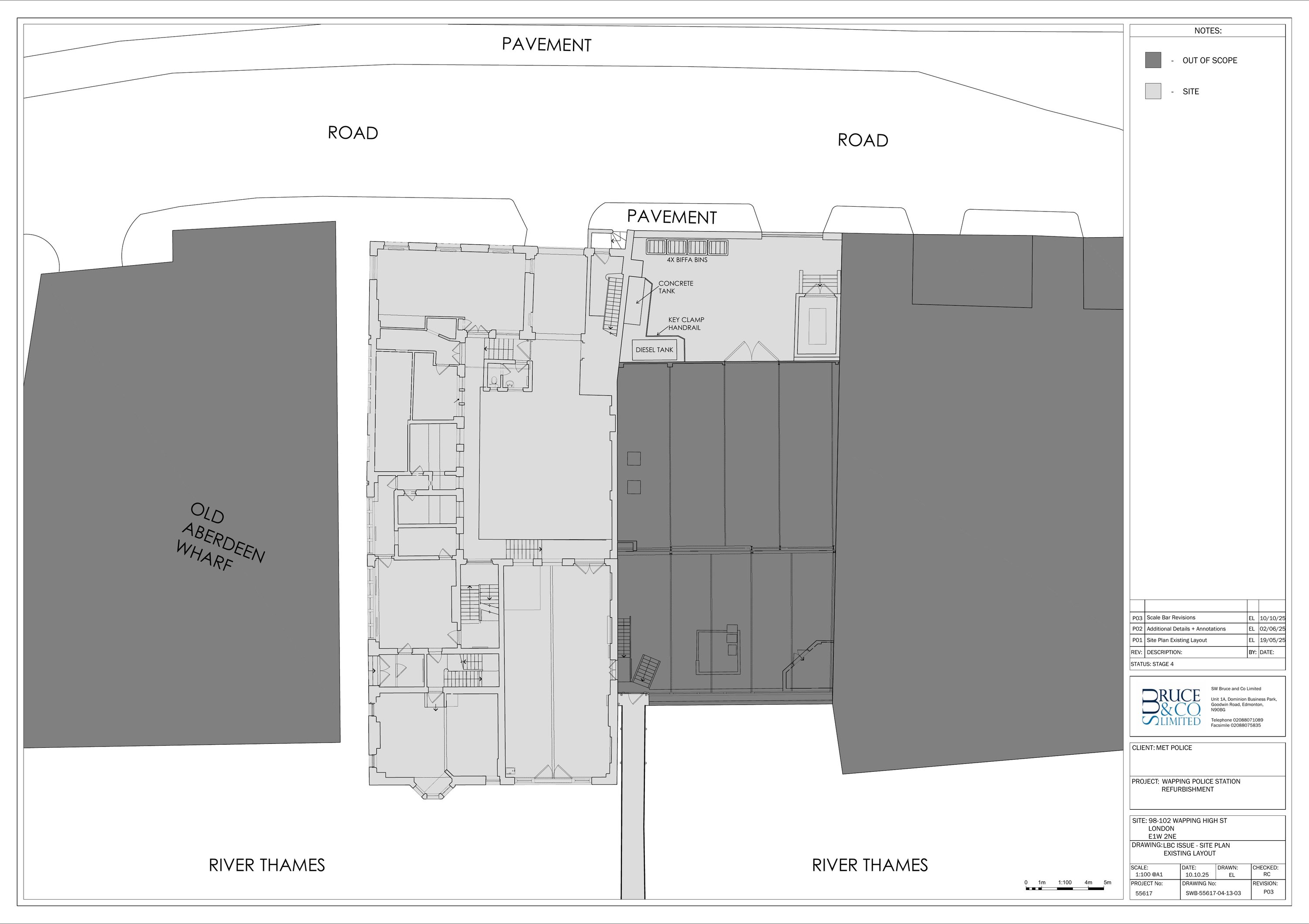
SITE ELEVATIONS - SHEET 1
Current Plan
Not archived · Council Link
SITE ELEVATIONS - SHEET 2
Current Plan
Not archived · Council Link
SITE ELEVATIONS PROPOSED LAYOUT
Current Plan
Not archived · Council Link
OS Extract
Archived · Council Link
Current Plan
Archived · Council Link
Current Plan
Archived · Council Link
SITE YARD - EXISTING USE
Current Plan
Not archived · Council Link
SITE YARD - PROPOSED USE
Current Plan
Not archived · Council Link
STRUCTURAL - BBS
Correspondence
Not archived · Council Link
SYSTEM 01 VRF SCHEMATICS
Current Plan
Not archived · Council Link
SYSTEM 02 VRF SCHEMATICS
Current Plan
Not archived · Council Link
SYSTEM 03 VRF SCHEMATICS
Current Plan
Not archived · Council Link
THIRD FLOOR - FIRE DETECTION AND ALARM LAYOUT
Current Plan
Not archived · Council Link
THIRD FLOOR CONTAINMENT LAYOUT
Current Plan
Not archived · Council Link
THIRD FLOOR CONTAINMENT PENETRATION LAYOUT
Current Plan
Not archived · Council Link
THIRD FLOOR HEATING LAYOUT
Current Plan
Not archived · Council Link
THIRD FLOOR LAYOUT SHOWING LINTELS OVER
Current Plan
Not archived · Council Link
THIRD FLOOR SMALL POWER LAYOUT
Current Plan
Not archived · Council Link
VRF UNIT AND ACOUSTIC ENCLOSURE LOCATION PLAN -
Current Plan
Not archived · Council Link
WINDOW SCHEDULE - PROPOSED ELEVATIONS - SHEET 2
Current Plan
Not archived · Council Link

Take Action

Make your voice heard. Authorities need to hear from people who support new homes.

✉️ Write Email in Support View on Council Portal