114228/FUL/24
Trafford Council · IDOX
Status
Awaiting decision
Received
12 Aug 2024
New dwellings
n/a
Full Proposal
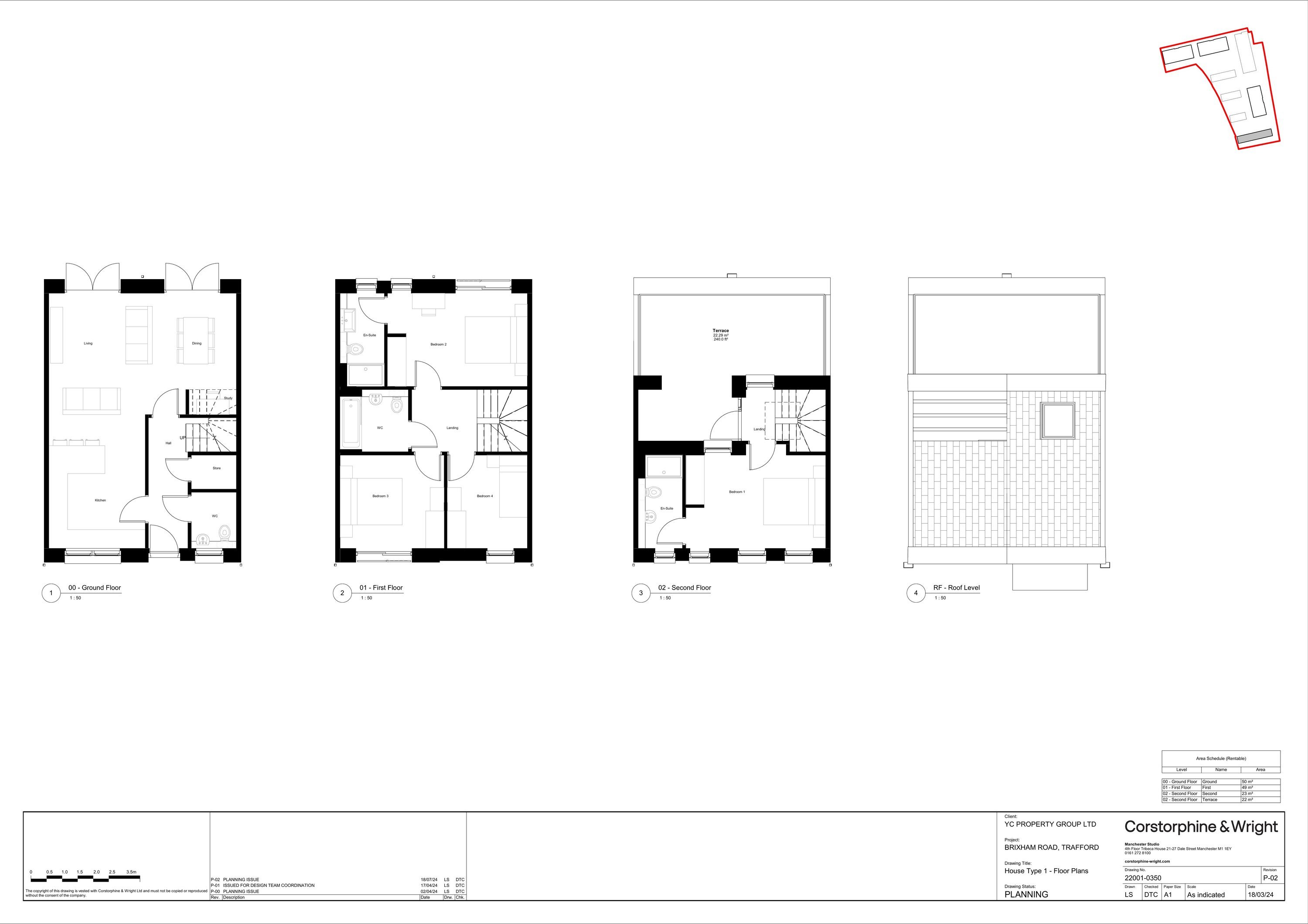
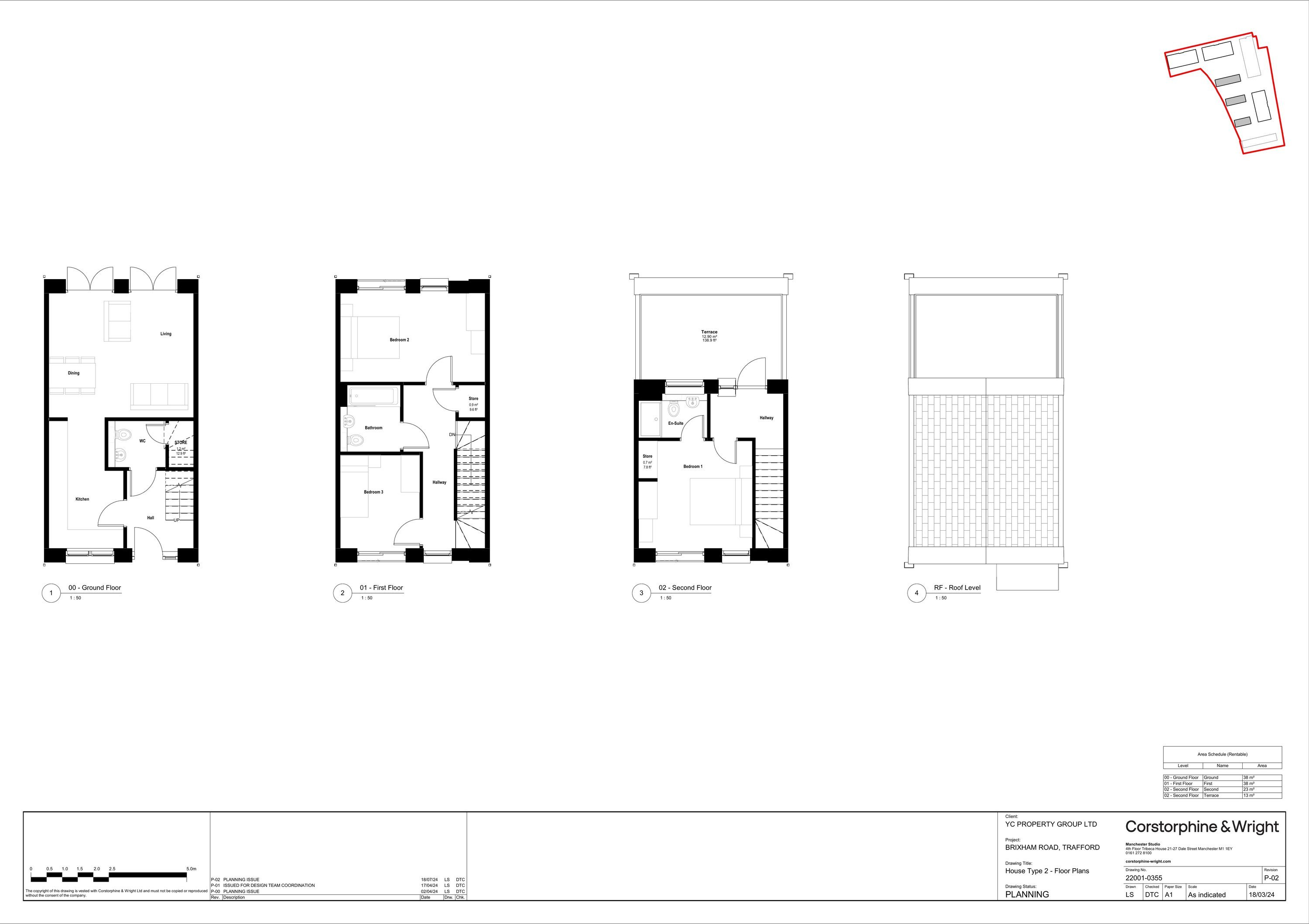
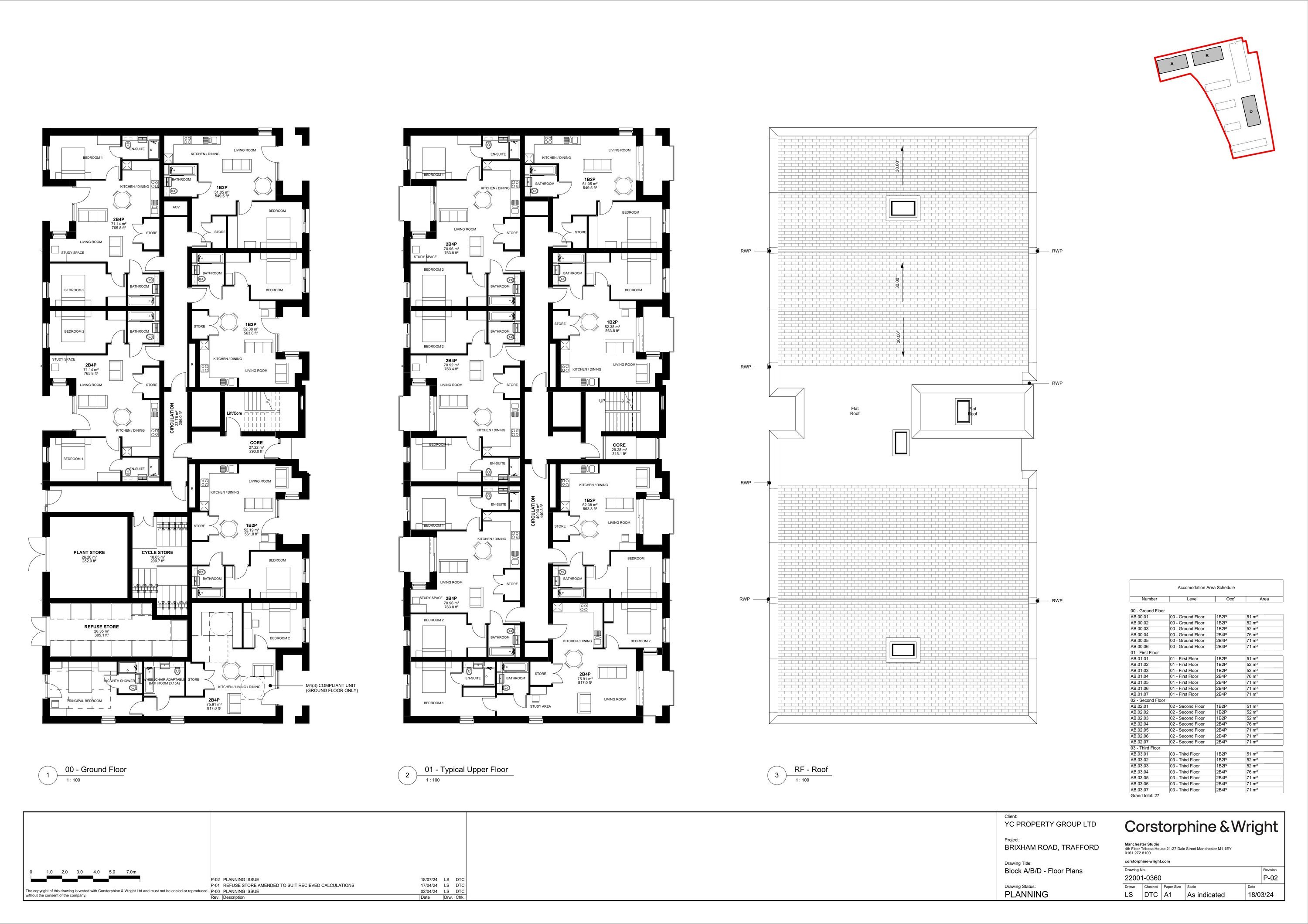
Demolition of existing buildings and the redevelopment of the site with a residential-led mixed use scheme comprising 145 dwellings (Class C3) and a commercial unit (Class E), with communal amenity space, car parking and landscaping.
Documents
100.23041-ACE-00-ZZ-CA-C-1000 - P1 - PROPOSED DRAINAGE CALCULATIONS
Flood Risk Assessment
Not archived
· Council Link
100.23041-ACE-00-ZZ-DR-C-1000 - P2 - PROPOSED DRAINAGE PLAN
Flood Risk Assessment
Not archived
· Council Link
100.23041-ACE-00-ZZ-DR-C-1010 - P1 - PROPOSED IMPERMEABLE AREA
Flood Risk Assessment
Not archived
· Council Link
100.23041-ACE-00-ZZ-DR-C-1015 - P1 - EXISTING IMPERMEABLE AREA
Flood Risk Assessment
Not archived
· Council Link
100.23041-ACE-00-ZZ-DR-C-1020 - P1 - EXISTING OVERLAND FLOW
Flood Risk Assessment
Not archived
· Council Link
22001-8006-02_DESIGN AND ACCESS STATEMENT PART 1
Design and Access Statement
Not archived
· Council Link
22001-8006-02_DESIGN AND ACCESS STATEMENT PART 2
Design and Access Statement
Not archived
· Council Link
6764R1 - AIR QUALITY ASSESSMENT - BRIXHAM ROAD OLD TRAFFORD
Air Quality Report
Not archived
· Council Link
ECOLOGICAL APPRAISAL OF LAND OFF BRIXHAM ROAD OLD TRAFFORD - 2023
Supporting Information
Not archived
· Council Link
LAND AT BRIXHAM ROAD STRETFORD - HERITAGE STATEMENT FINAL
Heritage Statement
Not archived
· Council Link
RHE.3933_BIODIVERSITY NET GAIN ASSESSMENT_LAND OFF BRIXHAM ROAD OLD TRAFFORD
Biodiversity Net Gain Assessment
Not archived
· Council Link
SCP_230357_BRIXHAM ROAD_OLD TRAFFORD_TRAVEL PLAN_17.05.24_EW
Travel Plan
Not archived
· Council Link
SCP_230357_TRANSPORT ASSESSMENT_17.05.24_GW_COMPLETE
Transport Assessment
Not archived
· Council Link
STATEMENT OF COMMUNITY INVOLVEMENT FINAL (10.07.2024)
Supporting Information
Not archived
· Council Link
Take Action
Make your voice heard. Authorities need to hear from people who support new homes.