← Back to Trafford Council

Status

Awaiting decision
Received
24 Feb 2025
New dwellings
n/a

Summary

Create vehicular access for 120-dwelling residential development with open spaces, landscaping and drainage.

Full Proposal

Engineering operations to create vehicular access to serve residential development (within Manchester City Council's administrative boundary) comprising 120 dwellings (including a mix of housing types and tenures) together with open spaces, landscaping, sustainable drainage features, cycleways and pedestrian footways, vehicular accesses and highways, parking provision and other associated works.

Documents

268 - RYE BANK ROAD
Representation
Not archived · Council Link
ADDENDUM TO HERITAGE STATEMENT
Heritage Statement
Not archived · Council Link
AFFORDABLE - BUILDING 1 (SOUTH) FIRST FLOOR
Plans
Not archived · Council Link
AFFORDABLE - BUILDING 1 (SOUTH) GROUND FLOOR
Plans
Not archived · Council Link
AFFORDABLE - BUILDING 1 (SOUTH) SECOND FLOOR
Plans
Not archived · Council Link
AFFORDABLE - BUILDING 2 (NORTH) FIRST FLOOR
Plans
Not archived · Council Link
AFFORDABLE - BUILDING 2 (NORTH) SECOND FLOOR
Plans
Not archived · Council Link
AFFORDABLE BUILDING 1 (SOUTH) ELEVATIONS SHEET 2 OF 2
Plans
Not archived · Council Link
AFFORDABLE BUILDING 1 (SOUTH) ROOF
Plans
Not archived · Council Link
AFFORDABLE BUILDING 2 (NORTH) - PROPOSED ELEVATION 2 OF 2
Plans
Not archived · Council Link
AFFORDABLE BUILDING 2 (NORTH) - ROOF PLAN
Plans
Not archived · Council Link
AFFORDABLE BUILDING 2 (NORTH) ELEVATIONS (SHEET 1 OF 2)
Plans
Not archived · Council Link
AFFORDABLE BUILDING 2 (NORTH) GROUND FLOOR
Plans
Not archived · Council Link
AIR QUALITY ASSESSMENT
Air Quality Report
Not archived · Council Link
APPLICATION FORM
Application Form
Not archived · Council Link
BLUE AND GREEN INFRASTRUCTURE STATEMENT
Supporting Information
Not archived · Council Link
BNG CALCULATION
Biodiversity Net Gain Assessment
Not archived · Council Link
BROADBAND CONNECTIVITY STATEMENT
Supporting Information
Not archived · Council Link
CEMP FRAMEWORK
Supporting Information
Not archived · Council Link
CO HOUSING END OF TERRACE HT 6A - PROPOSED ELEVATION AND SECTION
Plans
Not archived · Council Link
CO HOUSING END OF TERRACE HT 6A - PROPOSED GENERAL ARRANGEMENT PLAN
Plans
Not archived · Council Link
CO HOUSING MID TERRACE HT 6B - PROPOSED ELEVATION AND SECTION
Plans
Not archived · Council Link
CO-HOUSING APARTMENT AND HOUSES - FIRST FLOOR
Plans
Not archived · Council Link
CO-HOUSING APARTMENT AND HOUSES - GROUND FLOOR
Plans
Not archived · Council Link
CO-HOUSING APARTMENT AND HOUSES - ROOG
Plans
Not archived · Council Link
CO-HOUSING APARTMENT AND HOUSES - SECOND FLOOR
Plans
Not archived · Council Link
CO-HOUSING APARTMENT PROPOSED ELEVATIONS SOUTH (SHEET 3 OF 4)
Plans
Not archived · Council Link
CO-HOUSING APARTMENT PROPOSED ELEVATIONS WEST (SHEET 4 OF 4)
Plans
Not archived · Council Link
CO-HOUSING END OF TERRACE HT 7 - GENERAL ARRANGEMENT PLAN
Plans
Not archived · Council Link
CO-HOUSING END OF TERRACE HT 7 - PROPOSED ELEVATIONS AND SECTION
Plans
Not archived · Council Link
CO-HOUSING MID TERRACE HT 5 - PROPOSED ELEVATION AND SECTION
Plans
Not archived · Council Link
CO-HOUSING MID TERRACE HT 5 - PROPOSED GENERAL ARRANGEMENT PLAN
Plans
Not archived · Council Link
CO-HOUSING MID TERRACE HT 6B - PROPOSED GENERAL ARRANGEMENT PLAN
Plans
Not archived · Council Link
CON - CADENT GAS - NO OBJECTION
Consultation
Not archived · Council Link
CON - GMAAS
Consultation
Not archived · Council Link
CON - LHA
Consultation
Not archived · Council Link
CON - TCONS
Consultation
Not archived · Council Link
CON - UUWATE
Consultation
Not archived · Council Link
COVER LETTER
Supporting Information
Not archived · Council Link
CRIME IMPACT STATEMENT
Crime Impact Statement
Not archived · Council Link
DESIGN AND ACCESS STATEMENT PART 1
Design and Access Statement
Not archived · Council Link
DESIGN AND ACCESS STATEMENT PART 2
Design and Access Statement
Not archived · Council Link
DESIGN AND ACCESS STATEMENT PART 3
Design and Access Statement
Not archived · Council Link
DESIGN AND ACCESS STATEMENT PART 4
Design and Access Statement
Not archived · Council Link
DESIGN STAGE ASSESSMENT AND METRICNT
Biodiversity Net Gain Assessment
Not archived · Council Link
DRAINAGE STRATEGY
Drainage
Not archived · Council Link
DRAWING SCHEDULE
Supporting Information
Not archived · Council Link
ENVIRONMENTAL STANDARDS STATEMENT PART 1
Supporting Information
Not archived · Council Link
ENVIRONMENTAL STANDARDS STATEMENT PART 2
Supporting Information
Not archived · Council Link
ENVIRONMENTAL STATEMENT NON-TECHNICAL SUMMARY
Environmental Statement
Not archived · Council Link
ES APPENDIX 1.1 STATEMENT OF COMPETENCE
Environmental Statement
Not archived · Council Link
ES APPENDIX 10.1 PHASE 1 GEOENVIRONMENTAL SITE ASSESSMENT
Environmental Statement
Not archived · Council Link
ES APPENDIX 10.2 PHASE 2 GEO PART 1
Environmental Statement
Not archived · Council Link
ES APPENDIX 10.2 PHASE 2 GEO PART 2
Environmental Statement
Not archived · Council Link
ES APPENDIX 10.2 PHASE 2 GEO PART 3
Environmental Statement
Not archived · Council Link
ES APPENDIX 10.2 PHASE 2 GEO PART 4
Environmental Statement
Not archived · Council Link
ES APPENDIX 10.2 PHASE 2 GEO PART 5
Environmental Statement
Not archived · Council Link
ES APPENDIX 10.2 PHASE 2 GEO PART 6
Environmental Statement
Not archived · Council Link
ES APPENDIX 10.3 DETAILED QUANTITATIVE ASSESSMENT
Environmental Statement
Not archived · Council Link
ES APPENDIX 10.4 REMEDIATION AND ENABLING WORKS STRATEGY
Environmental Statement
Not archived · Council Link
ES APPENDIX 2.1 EIA SCOPING REPORT
Environmental Statement
Not archived · Council Link
ES APPENDIX 2.2 APPLICANT RESPONSE TO CONSULTEE
Environmental Statement
Not archived · Council Link
ES APPENDIX 2.3 MCC ES SCOPING OPINION
Environmental Statement
Not archived · Council Link
ES APPENDIX 4.1 SCHEDULE OF SUPPORTING PLANS
Environmental Statement
Not archived · Council Link
ES APPENDIX 4.2 CEMP FRAMEWORK
Supporting Information
Not archived · Council Link
ES APPENDIX 6.1 TO 6.5 ECOLOGY
Environmental Statement
Not archived · Council Link
ES APPENDIX 6.10 BAT REPORT
Supporting Information
Not archived · Council Link
ES APPENDIX 6.6 PEA REPORT
Supporting Information
Not archived · Council Link
ES APPENDIX 6.7 BNG REPORT
Environmental Statement
Not archived · Council Link
ES APPENDIX 6.8 AIA REPORT
Supporting Information
Not archived · Council Link
ES APPENDIX 8.1 OPERATIONAL AND EMBODIED SUMMARY REPORT
Environmental Statement
Not archived · Council Link
ES APPENDIX 9.1 ARCHAEOLOGICAL DBA
Supporting Information
Not archived · Council Link
ES APPENDIX 9.2 UPDATED ARCHAEOLOGICAL DBA
Environmental Statement
Not archived · Council Link
ES APPENDIX 9.3 PROJECT DESIGN FOR ARCHAEOLOGICAL INVESTIGATION
Environmental Statement
Not archived · Council Link
ES CHAPTER 1 INTRODUCTION
Environmental Statement
Not archived · Council Link
ES CHAPTER 10 GROUND CONDITIONS
Environmental Statement
Not archived · Council Link
ES CHAPTER 11 RESIDUAL EFFECTS AND MITIGATION
Environmental Statement
Not archived · Council Link
ES CHAPTER 12 GLOSSARY
Environmental Statement
Not archived · Council Link
ES CHAPTER 2 METHODOLOGY
Environmental Statement
Not archived · Council Link
ES CHAPTER 4 PROPOSED DEVELOPMENT AND ALTERNATIVES
Environmental Statement
Not archived · Council Link
ES CHAPTER 5 PLANNING POLICY
Environmental Statement
Not archived · Council Link
ES CHAPTER 6 ECOLOGY
Environmental Statement
Not archived · Council Link
ES CHAPTER 7 SOCIO-ECONOMICS AND HEALTH
Environmental Statement
Not archived · Council Link
ES CHAPTER 8 CLIMATE CHANGE
Environmental Statement
Not archived · Council Link
ES CHAPTER 9 ARCHAEOLOGY
Environmental Statement
Not archived · Council Link
ES CHAPTER3 THE APPLICATION SITE
Environmental Statement
Not archived · Council Link
ES CONTENTS VOLUME 1 AND VOLUME 2
Environmental Statement
Not archived · Council Link
EXISTING SITE SECTION SHEET 1
Plans
Not archived · Council Link
EXISTING SITE SECTION SHEET 2
Plans
Not archived · Council Link
FLOOD RISK ASSESSMENT
Flood Risk Assessment
Not archived · Council Link
HERITAGE STATEMENT
Heritage Statement
Not archived · Council Link
LANDSCAPE LAYOUT
Plans
Not archived · Council Link
LANDSCAPE MANAGEMENT REPORT
Landscaping Details
Not archived · Council Link
LOCAL LABOUR AGREEMENT
Supporting Information
Not archived · Council Link
LOCATION PLAN
Site Location
Not archived · Council Link
NOISE IMPACT ASSESSMENT
Noise Assessment
Not archived · Council Link
PLANNING STATEMENT
Planning Statement
Not archived · Council Link
PRIVATE HOUSE SALES MID TERRACE HT4B 4B PROPOSED ELEVATIONS AND SECTION
Plans
Not archived · Council Link
PRIVATE SALE END OF TERRACE HT 1A - PROPOSED GENERAL ARRANGEMENT PLAN
Plans
Not archived · Council Link
PRIVATE SALE END OF TERRACE HT 3A - PROPOSED ELEVATIONS AND SECTION
Plans
Not archived · Council Link
PRIVATE SALE END OF TERRACE HT 8A - PROPOSED ELEVATION AND SECTION
Plans
Not archived · Council Link
PRIVATE SALE END OF TERRACE HT 8A - PROPOSED GENERAL ARRANGEMENT PLAN
Plans
Not archived · Council Link
PRIVATE SALE END OF TERRACE HT3A - PROPOSED GENERAL ARRANGEMENT PLAN
Plans
Not archived · Council Link
PRIVATE SALE HOUSES END OF TERRACE HT 1A ELEVATION AND SECTION
Plans
Not archived · Council Link
PRIVATE SALE HT 02A AND 02B - VILLA - PROPOSED ELEVATIONS SHEET 1 OF 2
Plans
Not archived · Council Link
PRIVATE SALE HT 02A AND 02B - VILLA - PROPOSED ELEVATIONS SHEET 2 OF 2
Plans
Not archived · Council Link
PRIVATE SALE MID TERRACE HT 1B - PROPOSED GENERAL ARRANGEMENT
Plans
Not archived · Council Link
PRIVATE SALE MID TERRACE HT 3B - PROPOSED ELEVATION AND SECTION
Plans
Not archived · Council Link
PRIVATE SALE MID TERRACE HT 3B - PROPOSED GENERAL ARRANGEMENT
Plans
Not archived · Council Link
PRIVATE SALE MID TERRACE HT 8B - PROPOSED ELEVATION AND SECTION
Plans
Not archived · Council Link
PRIVATE SALE MID TERRACE HT 8B - PROPOSED GENERAL ARRANGEMENT PLAN
Plans
Not archived · Council Link
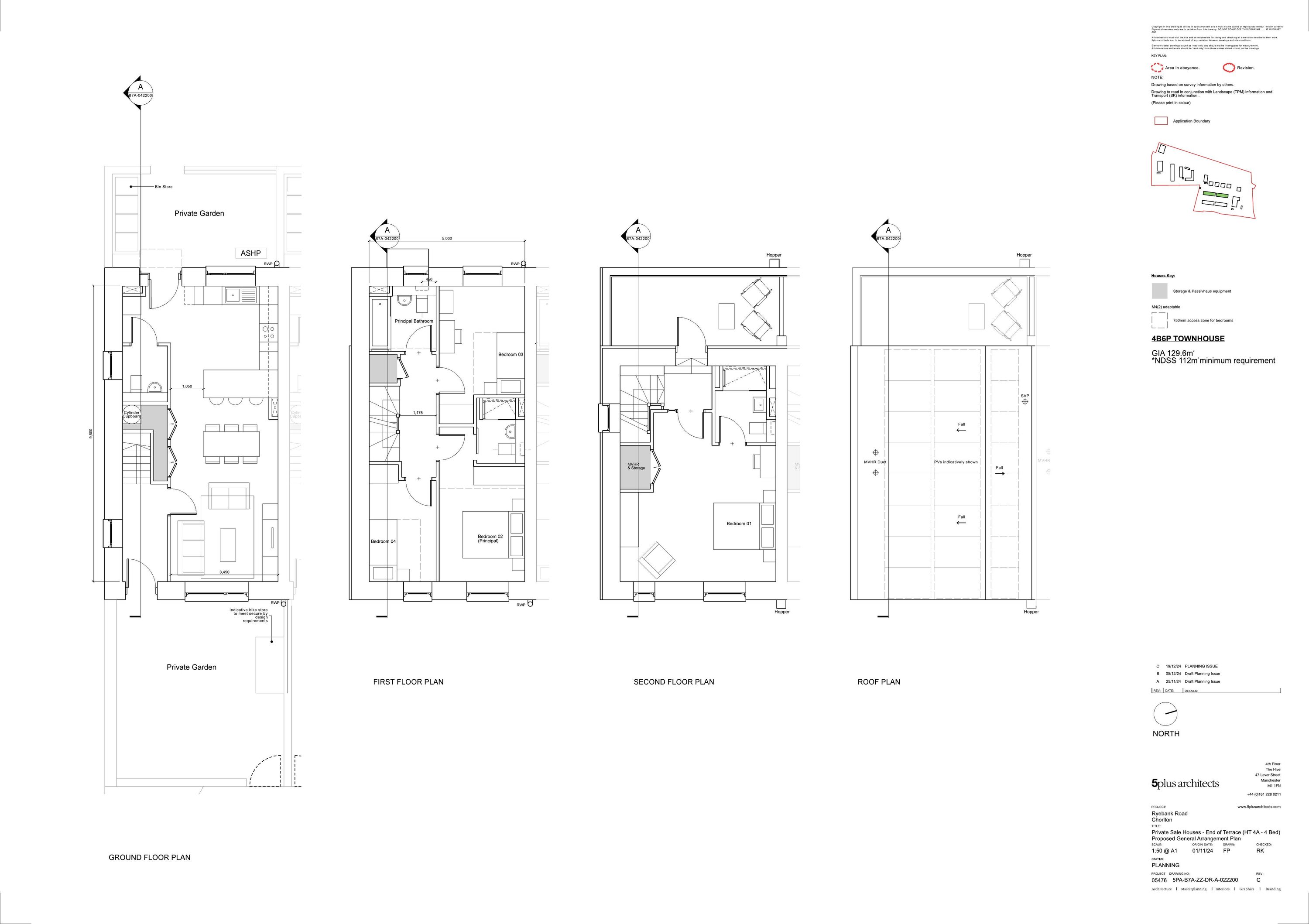
PRIVATE SALES HOUSES END OF TERRACE HT4A - 4B PROPOSED ELEVATIONS AND SECTION
Plans
Not archived · Council Link
PRIVATE SALES HOUSES HT02A & 02B VILLA PROPOSED FLOOR PLAN SHEET 1 OF 2
Plans
Not archived · Council Link
PRIVATE SALES HOUSES HT4B 4B PROPOSED ELEVATIONS AND SECTION
Plans
Not archived · Council Link
PRIVATE SALES HOUSES MID TERRACE HT 1B 4 BED PROPOSED ELEVATIONS AND SECTIONS
Plans
Not archived · Council Link
PRIVATE SALES HOUSES MID-TERRACE HT4B 4B PROPOSED FLOOR PLAN
Plans
Not archived · Council Link
PROPOSED SITE SECTIONS 02
Plans
Not archived · Council Link
PROPOSED SITE SECTIONS SHEETS 1
Plans
Not archived · Council Link
REP -
Representation
Not archived · Council Link
REP - 1 AYTOUN STREET
Representation
Not archived · Council Link
REP - 1 AYTOUN STREET
Representation
Not archived · Council Link
REP - 1 BUTLER STREET
Representation
Not archived · Council Link
REP - 1 DARESBURY ROAD
Representation
Not archived · Council Link
REP - 1 LARCH AVE
Representation
Not archived · Council Link
REP - 1 LARCH AVENUE
Representation
Not archived · Council Link
REP - 1 LYTHAM AVENUE
Representation
Not archived · Council Link
REP - 1 MELFORT AVENUE
Representation
Not archived · Council Link
REP - 1 ROKEBY AVENUE
Representation
Not archived · Council Link
REP - 1 WANSBECK CLOSE
Representation
Not archived · Council Link
REP - 1 WESTMINSTER AVENUE
Representation
Not archived · Council Link
REP - 1 WOODSIDE ROAD
Representation
Not archived · Council Link
REP - 1, WANSBECK CLOSE
Representation
Not archived · Council Link
REP - 10 ALLANDALE ROAD
Representation
Not archived · Council Link
REP - 10 BEECH ROAD
Representation
Not archived · Council Link
REP - 10 BEECH ROAD
Representation
Not archived · Council Link
REP - 10 BYRON ROAD
Representation
Not archived · Council Link
REP - 10 CHATHAM ROAD
Representation
Not archived · Council Link
REP - 10 CLOVELLY ROAD
Representation
Not archived · Council Link
REP - 10 GREYSTONE AVENUE
Representation
Not archived · Council Link
REP - 10 LARCH AVENUE
Representation
Not archived · Council Link
REP - 10 MEACHIN AVENUE
Representation
Not archived · Council Link
REP - 10 SARK ROAD
Representation
Not archived · Council Link
REP - 10 SARK ROAD
Representation
Not archived · Council Link
REP - 10 TITTERINGTON AVENUE
Representation
Not archived · Council Link
REP - 10 WELLFIELD GARDENS
Representation
Not archived · Council Link
REP - 100 RYE BANK ROAD
Representation
Not archived · Council Link
REP - 101 GREAT STONE ROAD
Representation
Not archived · Council Link
REP - 101 NORTHUMBERLAND ROAD
Representation
Not archived · Council Link
REP - 101 NORWOOD ROAD
Representation
Not archived · Council Link
REP - 103 LONGFORD ROAD
Representation
Not archived · Council Link
REP - 103 LONGFORD ROAD
Representation
Not archived · Council Link
REP - 103 NEWPORT ROAD
Representation
Not archived · Council Link
REP - 104B DENMARK ROAD
Representation
Not archived · Council Link
REP - 105 IVYGREEN ROAD
Representation
Not archived · Council Link
REP - 105 LONGFORD ROAD
Representation
Not archived · Council Link
REP - 107 CUNDIFF ROAD
Representation
Not archived · Council Link
REP - 108 RYE BANK ROAD
Representation
Not archived · Council Link
REP - 108 RYE BANK ROAD
Representation
Not archived · Council Link
REP - 109 GREAT STONE ROAD
Representation
Not archived · Council Link
REP - 109 GREAT STONE ROAD
Representation
Not archived · Council Link
REP - 109 GREAT STONE ROAD
Representation
Not archived · Council Link
REP - 11 ALBEMARLE ROAD
Representation
Not archived · Council Link
REP - 11 ALDER GROVE
Representation
Not archived · Council Link
REP - 11 CHOMLEA MANOR
Representation
Not archived · Council Link
REP - 11 DARESBURY ROAD
Representation
Not archived · Council Link
REP - 11 DARESBURY ROAD
Representation
Not archived · Council Link
REP - 11 MEADOW CLOSE
Representation
Not archived · Council Link
REP - 11 MEADOW CLOSE
Representation
Not archived · Council Link
REP - 11 MORETON DRIVE
Representation
Not archived · Council Link
REP - 11 MORETON DRIVE
Representation
Not archived · Council Link
REP - 11 SCOTT AVENUE
Representation
Not archived · Council Link
REP - 11 SCOTT AVENUE
Representation
Not archived · Council Link
REP - 11 WHITEHEAD ROAD
Representation
Not archived · Council Link
REP - 110 RYE BANK ROAD
Representation
Not archived · Council Link
REP - 112 GREAT STONE ROAD
Representation
Not archived · Council Link
REP - 112 GREAT STONE ROAD
Representation
Not archived · Council Link
REP - 112 NORWOOD ROAD
Representation
Not archived · Council Link
REP - 112 RYEBANK ROAD
Representation
Not archived · Council Link
REP - 112 RYEBANK ROAD
Representation
Not archived · Council Link
REP - 114 RYE BANK ROAD
Representation
Not archived · Council Link
REP - 114 RYE BANK ROAD
Representation
Not archived · Council Link
REP - 114 RYE BANK ROAD
Representation
Not archived · Council Link
REP - 115 EGERTON ROAD SOUTH
Representation
Not archived · Council Link
REP - 115 NEWPORT ROAD
Representation
Not archived · Council Link
REP - 115 NEWPORT ROAD
Representation
Not archived · Council Link
REP - 116 GREAT STONE ROAD
Representation
Not archived · Council Link
REP - 116 GREAT STONE ROAD
Representation
Not archived · Council Link
REP - 116 RYE BANK ROAD
Representation
Not archived · Council Link
REP - 117 GORSE CRESCENT
Representation
Not archived · Council Link
REP - 118 RYE BANK ROAD
Representation
Not archived · Council Link
REP - 118 RYE BANK ROAD
Representation
Not archived · Council Link
REP - 119 NORWOOD ROAD
Representation
Not archived · Council Link
REP - 12 BOLESWORTH CLOSE
Representation
Not archived · Council Link
REP - 12 CARLTON STREET
Representation
Not archived · Council Link
REP - 12 DOVECOTE MEWS
Representation
Not archived · Council Link
REP - 12 LIME ROAD
Representation
Not archived · Council Link
REP - 12 RYE BANK ROAD
Representation
Not archived · Council Link
REP - 12 WEST MEADE
Representation
Not archived · Council Link
REP - 120 RYE BANK ROAD
Representation
Not archived · Council Link
REP - 120 RYE BANK ROAD
Representation
Not archived · Council Link
REP - 121 LONGFORD ROAD
Representation
Not archived · Council Link
REP - 121 LONGFORD ROAD
Representation
Not archived · Council Link
REP - 121 RYE BANK ROAD
Representation
Not archived · Council Link
REP - 121 RYE BANK ROAD
Representation
Not archived · Council Link
REP - 122 CROMWELL ROAD
Representation
Not archived · Council Link
REP - 122 RYEBANK ROAD
Representation
Not archived · Council Link
REP - 122 RYEBANK ROAD
Representation
Not archived · Council Link
REP - 124 RYE BANK ROAD
Representation
Not archived · Council Link
REP - 124 RYE BANK ROAD
Representation
Not archived · Council Link
REP - 124 RYE BANK ROAD
Representation
Not archived · Council Link
REP - 125 NEWPORT ROAD
Representation
Not archived · Council Link
REP - 125 NEWPORT ROAD
Representation
Not archived · Council Link
REP - 125 RYE BANK ROAD
Representation
Not archived · Council Link
REP - 125 RYE BANK ROAD
Representation
Not archived · Council Link
REP - 125 RYEBANK ROAD
Representation
Not archived · Council Link
REP - 126 RYE BANK ROAD
Representation
Not archived · Council Link
REP - 127 LONGFORD ROAD
Representation
Not archived · Council Link
REP - 127 NICOLAS ROAD
Representation
Not archived · Council Link
REP - 127 NICOLAS ROAD
Representation
Not archived · Council Link
REP - 128 RYE BANK ROAD
Representation
Not archived · Council Link
REP - 128 RYE BANK ROAD
Representation
Not archived · Council Link
REP - 128 RYE BANK ROAD
Representation
Not archived · Council Link
REP - 129 NORTHUMBERLAND ROAD
Representation
Not archived · Council Link
REP - 129 RYE BANK ROAD
Representation
Not archived · Council Link
REP - 129 RYE BANK ROAD
Representation
Not archived · Council Link
REP - 13 CHILCOTE AVENUE
Representation
Not archived · Council Link
REP - 13 COPLEY ROAD
Representation
Not archived · Council Link
REP - 13 COPLEY ROAD
Representation
Not archived · Council Link
REP - 13 CROSS ROAD
Representation
Not archived · Council Link
REP - 13 DARESBURY ROAD
Representation
Not archived · Council Link
REP - 13 PEVERIL CRESCENT
Representation
Not archived · Council Link
REP - 13 WOODSIDE ROAD
Representation
Not archived · Council Link
REP - 130 RYE BANK ROAD
Representation
Not archived · Council Link
REP - 130 RYE BANK ROAD
Representation
Not archived · Council Link
REP - 131 RYE BANK ROAD
Representation
Not archived · Council Link
REP - 131 RYE BANK ROAD
Representation
Not archived · Council Link
REP - 132 NICOLAS ROAD
Representation
Not archived · Council Link
REP - 132 RYE BANK ROAD
Representation
Not archived · Council Link
REP - 132 RYE BANK ROAD
Representation
Not archived · Council Link
REP - 132 RYE BANK ROAD
Representation
Not archived · Council Link
REP - 132 RYE BANK ROAD
Representation
Not archived · Council Link
REP - 132 RYE BANK ROAD
Representation
Not archived · Council Link
REP - 133 GREATSTONE ROAD
Representation
Not archived · Council Link
REP - 134 RYE BANK ROAD
Representation
Not archived · Council Link
REP - 134A RYE BANK ROAD
Representation
Not archived · Council Link
REP - 134A RYE BANK ROAD
Representation
Not archived · Council Link
REP - 135 RYE BANK ROAD
Representation
Not archived · Council Link
REP - 135 RYE BANK ROAD
Representation
Not archived · Council Link
REP - 137 GORSE CRESCENT
Representation
Not archived · Council Link
REP - 137 NICOLAS ROAD
Representation
Not archived · Council Link
REP - 137 NICOLAS ROAD
Representation
Not archived · Council Link
REP - 137 NICOLAS ROAD
Representation
Not archived · Council Link
REP - 138 OSWALD ROAD
Representation
Not archived · Council Link
REP - 139 GOULDEN HOUSE
Representation
Not archived · Council Link
REP - 139 GOULDEN HOUSE, BULLEN STREET
Representation
Not archived · Council Link
REP - 13A GEORGE STREET
Representation
Not archived · Council Link
REP - 13B WILTON ROAD
Representation
Not archived · Council Link
REP - 14 ALBION ST
Representation
Not archived · Council Link
REP - 14 CHANCTONBURY RD
Representation
Not archived · Council Link
REP - 14 HAPTON AVENUE
Representation
Not archived · Council Link
REP - 14 HAPTON AVENUE
Representation
Not archived · Council Link
REP - 14 NORTH LONSDALE STREET
Representation
Not archived · Council Link
REP - 14 WEST VIEW, NEW MILLS
Representation
Not archived · Council Link
REP - 142 GREAT STONE ROAD
Representation
Not archived · Council Link
REP - 142 RAILWAY ROAD
Representation
Not archived · Council Link
REP - 143 OSWALD ROAD
Representation
Not archived · Council Link
REP - 144 GREAT STONE ROAD
Representation
Not archived · Council Link
REP - 146 GREAT STONE ROAD
Representation
Not archived · Council Link
REP - 146 GREAT STONE ROAD
Representation
Not archived · Council Link
REP - 146 GREAT STONE ROAD
Representation
Not archived · Council Link
REP - 146 GREAT STONE ROAD
Representation
Not archived · Council Link
REP - 146 GREAT STONE ROAD
Representation
Not archived · Council Link
REP - 146 NICOLAS ROAD
Representation
Not archived · Council Link
REP - 147 GREAT STONE ROAD
Representation
Not archived · Council Link
REP - 14A ROWAN AVENUE
Representation
Not archived · Council Link
REP - 15 CHATHAM ROAD
Representation
Not archived · Council Link
REP - 15 COPLEY ROAD
Representation
Not archived · Council Link
REP - 15 DARTMOUTH ROAD
Representation
Not archived · Council Link
REP - 15 HAMMETT ROAD
Representation
Not archived · Council Link
REP - 15 HAPTON AVENUE
Representation
Not archived · Council Link
REP - 150 GREAT TSONE ROAD
Representation
Not archived · Council Link
REP - 155 COLLEGE ROAD
Representation
Not archived · Council Link
REP - 156 ABBEY HEY LANE
Representation
Not archived · Council Link
REP - 156 GREAT STONE ROAD
Representation
Not archived · Council Link
REP - 158 WITHINGTON ROAD
Representation
Not archived · Council Link
REP - 16 BRUNDRETTS ROAD
Representation
Not archived · Council Link
REP - 16 BRUNDRETTS ROAD
Representation
Not archived · Council Link
REP - 16 PEVERIL CRESCENT
Representation
Not archived · Council Link
REP - 160A GREAT STONE ROAD
Representation
Not archived · Council Link
REP - 160A GREAT STONE ROAD
Representation
Not archived · Council Link
REP - 160A GREAT STONE ROAD
Representation
Not archived · Council Link
REP - 160A GREAT STONE ROAD
Representation
Not archived · Council Link
REP - 160A GREAT STONE ROAD
Representation
Not archived · Council Link
REP - 17 BROOK?S ROAD
Representation
Not archived · Council Link
REP - 17 BROOK?S ROAD
Representation
Not archived · Council Link
REP - 17 DARESBURY ROAD
Representation
Not archived · Council Link
REP - 17 FAIRVIEW AVENUE
Representation
Not archived · Council Link
REP - 17 HAPTON AVENUE
Representation
Not archived · Council Link
REP - 17 HAPTON AVENUE
Representation
Not archived · Council Link
REP - 17 ROYSTON ROAD
Representation
Not archived · Council Link
REP - 17 RUSSELL ROAD
Representation
Not archived · Council Link
REP - 17 SIBSON ROAD
Representation
Not archived · Council Link
REP - 17 SIBSON ROAD
Representation
Not archived · Council Link
REP - 17 ST ALDATES
Representation
Not archived · Council Link
REP - 17 VICARS ROAD
Representation
Not archived · Council Link
REP - 17 WHITEHAVEN GARDENS
Representation
Not archived · Council Link
REP - 17 WHITEHEAD ROAD
Representation
Not archived · Council Link
REP - 17 WHITEHEAD ROAD
Representation
Not archived · Council Link
REP - 178 MANLEY ROAD
Representation
Not archived · Council Link
REP - 18 CHANDOS ROAD SOUTH
Representation
Not archived · Council Link
REP - 18 DARLEY ROAD
Representation
Not archived · Council Link
REP - 18 LEOPOLD AVENU
Representation
Not archived · Council Link
REP - 18 LIME ROAD
Representation
Not archived · Council Link
REP - 18 STRATTON ROAD
Representation
Not archived · Council Link
REP - 18 TURN MOSS ROAD
Representation
Not archived · Council Link
REP - 183 ALTRINCHAM ROAD
Representation
Not archived · Council Link
REP - 184 OSWALD ROAD
Representation
Not archived · Council Link
REP - 188 OSWALD ROAD
Representation
Not archived · Council Link
REP - 19 DARLEY ROAD
Representation
Not archived · Council Link
REP - 19 MEADOW BANK
Representation
Not archived · Council Link
REP - 19 ROSSYLN ROAD
Representation
Not archived · Council Link
REP - 19 RUTLAND AVENUE
Representation
Not archived · Council Link
REP - 19 TENBY AVENUE
Representation
Not archived · Council Link
REP - 190 BLAIR ATHOL ROAD
Representation
Not archived · Council Link
REP - 193 WITHINGTON RD,
Representation
Not archived · Council Link
REP - 195 OSWALD ROAD
Representation
Not archived · Council Link
REP - 195 OSWALD ROAD
Representation
Not archived · Council Link
REP - 199 MANLEY ROAD
Representation
Not archived · Council Link
REP - 2 BURTON AVENUE
Representation
Not archived · Council Link
REP - 2 CHERTSEY ROAD
Representation
Not archived · Council Link
REP - 2 CRANBOURNE RD
Representation
Not archived · Council Link
REP - 2 GRAYSON CLOSE
Representation
Not archived · Council Link
REP - 2 MANOR AVENUE
Representation
Not archived · Council Link
REP - 2 PARK SQUARE
Representation
Not archived · Council Link
REP - 2 PARKGATE ROAD
Representation
Not archived · Council Link
REP - 2 RIPPENDEN AVENUE
Representation
Not archived · Council Link
REP - 2 ROSSLYN ROAD
Representation
Not archived · Council Link
REP - 2 ROSSLYN ROAD
Representation
Not archived · Council Link
REP - 2 RYEBANK RD
Representation
Not archived · Council Link
REP - 2 WATERS EDGE, MOSS LANE
Representation
Not archived · Council Link
REP - 2 WATERS EDGE, MOSS LANE
Representation
Not archived · Council Link
REP - 2 WILLIAM LUNT GARDENS
Representation
Not archived · Council Link
REP - 20 COPLEY ROAD
Representation
Not archived · Council Link
REP - 20 DARLEY ROAD
Representation
Not archived · Council Link
REP - 20 KENWOOD ROAD
Representation
Not archived · Council Link
REP - 20 MACAULEY ROAD
Representation
Not archived · Council Link
REP - 20 MEADOW CLOSE
Representation
Not archived · Council Link
REP - 20 WELLINGTON CRESCENT
Representation
Not archived · Council Link
REP - 20 WELLINGTON CRESCENT
Representation
Not archived · Council Link
REP - 201 OSWALD ROAD
Representation
Not archived · Council Link
REP - 206 AYRES ROAD
Representation
Not archived · Council Link
REP - 21 BROOKBURN ROAD
Representation
Not archived · Council Link
REP - 21 GRANBY ROAD
Representation
Not archived · Council Link
REP - 21 ROSSLYN ROAD
Representation
Not archived · Council Link
REP - 21 ROSSLYN ROAD
Representation
Not archived · Council Link
REP - 21 RUTLAND AVENUE
Representation
Not archived · Council Link
REP - 21 RUTLAND AVENUE
Representation
Not archived · Council Link
REP - 21 ST MARGARET'S ROAD
Representation
Not archived · Council Link
REP - 21 WESTFIELD ROAD
Representation
Not archived · Council Link
REP - 210 OSWALD ROAD
Representation
Not archived · Council Link
REP - 210 OSWALD ROAD
Representation
Not archived · Council Link
REP - 213 KINGS ROAD
Representation
Not archived · Council Link
REP - 216 OSWALD ROAD,
Representation
Not archived · Council Link
REP - 22 HIGH LANE
Representation
Not archived · Council Link
REP - 22 HOLDEN AVENUE
Representation
Not archived · Council Link
REP - 22 LONGFORD ROAD
Representation
Not archived · Council Link
REP - 22 LONGFORD ROAD
Representation
Not archived · Council Link
REP - 22 OSWALD ROAD
Representation
Not archived · Council Link
REP - 22 REEVES ROAD
Representation
Not archived · Council Link
REP - 22 REEVES ROAD
Representation
Not archived · Council Link
REP - 22 SUNNINGDALE AVENUE
Representation
Not archived · Council Link
REP - 22 SUNNINGDALE AVENUE
Representation
Not archived · Council Link
REP - 223 DARLEY AVENUE
Representation
Not archived · Council Link
REP - 23 GAINBOROUGH AVENUE
Representation
Not archived · Council Link
REP - 23 MARLBOROUGH ROAD
Representation
Not archived · Council Link
REP - 23 MARLBOROUGH ROAD
Representation
Not archived · Council Link
REP - 232 OSWALD RD
Representation
Not archived · Council Link
REP - 232 OSWALD ROAD
Representation
Not archived · Council Link
REP - 233 MANLEY ROAD
Representation
Not archived · Council Link
REP - 233 RYEBANK ROAD
Representation
Not archived · Council Link
REP - 233 RYEBANK ROAD
Representation
Not archived · Council Link
REP - 24 ATTERCLIFFE ROAD
Representation
Not archived · Council Link
REP - 24 BRUNDRETTS ROAD
Representation
Not archived · Council Link
REP - 24 GRANGE ROAD
Representation
Not archived · Council Link
REP - 244 RYE BANK ROAD
Representation
Not archived · Council Link
REP - 246 RYEBANK ROAD
Representation
Not archived · Council Link
REP - 246 RYEBANK ROAD
Representation
Not archived · Council Link
REP - 247 RYE BANK ROAD
Representation
Not archived · Council Link
REP - 247 RYE BANK ROAD
Representation
Not archived · Council Link
REP - 25 AUBURN ROAD
Representation
Not archived · Council Link
REP - 25 AUBURN ROAD
Representation
Not archived · Council Link
REP - 25 CORKLAND ROAD
Representation
Not archived · Council Link
REP - 25 GRANBY ROAD
Representation
Not archived · Council Link
REP - 25 HARTINGTON ROAD
Representation
Not archived · Council Link
REP - 250 RYEBANK ROAD
Representation
Not archived · Council Link
REP - 251 MANLEY ROAD
Representation
Not archived · Council Link
REP - 253 RYEBANK ROAD
Representation
Not archived · Council Link
REP - 26 GORSE CRESCENT
Representation
Not archived · Council Link
REP - 26 HOLWOOD DRIVE
Representation
Not archived · Council Link
REP - 26 HOLWOOD DRIVE
Representation
Not archived · Council Link
REP - 26 KINGS LANE
Representation
Not archived · Council Link
REP - 26 MELFORT AVENUE
Representation
Not archived · Council Link
REP - 26 PATTERSON AVENUE
Representation
Not archived · Council Link
REP - 26 PEVERIL CRESCENT
Representation
Not archived · Council Link
REP - 26 PEVERIL CRESCENT
Representation
Not archived · Council Link
REP - 26 PEVERIL CRESCENT
Representation
Not archived · Council Link
REP - 26 ULLSWATER ROAD
Representation
Not archived · Council Link
REP - 26, DORDRECHT ROAD
Representation
Not archived · Council Link
REP - 264 RYE BANK ROAD
Representation
Not archived · Council Link
REP - 264 RYEBANK ROAD
Representation
Not archived · Council Link
REP - 27 CRYSTAL AVENUE
Representation
Not archived · Council Link
REP - 27 DARESBURY ROAD
Representation
Not archived · Council Link
REP - 27 GRANBY ROAD
Representation
Not archived · Council Link
REP - 27 LONGFORD ROAD
Representation
Not archived · Council Link
REP - 27 WOODSTOCK ROAD
Representation
Not archived · Council Link
REP - 275 RYEBANK ROAD
Representation
Not archived · Council Link
REP - 275 RYEBANK ROAD
Representation
Not archived · Council Link
REP - 279 RYEBANK ROAD
Representation
Not archived · Council Link
REP - 28 EDWIN COURT
Representation
Not archived · Council Link
REP - 28 KERWIN DRIVE
Representation
Not archived · Council Link
REP - 28 KERWIN DRIVE
Representation
Not archived · Council Link
REP - 28 KERWIN DRIVE
Representation
Not archived · Council Link
REP - 28 PEVERIL CRESCENT
Representation
Not archived · Council Link
REP - 28 QUAYSIDE MEWS
Representation
Not archived · Council Link
REP - 28 RYE BANK ROAD
Representation
Not archived · Council Link
REP - 29 COLLEGE DRIVE
Representation
Not archived · Council Link
REP - 29 HEATHER ROAD
Representation
Not archived · Council Link
REP - 298 MAULDETH ROAD WEST
Representation
Not archived · Council Link
REP - 3 DARESBURY ROAD
Representation
Not archived · Council Link
REP - 3 HOWARTH STREET
Representation
Not archived · Council Link
REP - 3 MACAULEY ROAD
Representation
Not archived · Council Link
REP - 3 MELFORT AVENUE
Representation
Not archived · Council Link
REP - 3 RYEBANK MEWS
Representation
Not archived · Council Link
REP - 3 SOMERSET ROAD
Representation
Not archived · Council Link
REP - 3 SOMERSET ROAD
Representation
Not archived · Council Link
REP - 3 STIRLING AVENUE
Representation
Not archived · Council Link
REP - 3 STOCKTON ROAD
Representation
Not archived · Council Link
REP - 3 STRATHMORE AVENUE
Representation
Not archived · Council Link
REP - 3 TUCK DRIVE
Representation
Not archived · Council Link
REP - 30 CROMWELL ROAD
Representation
Not archived · Council Link
REP - 30 EAST VIEW
Representation
Not archived · Council Link
REP - 30 LONGFORD AVENUE
Representation
Not archived · Council Link
REP - 31 CHELTENHAM ROAD
Representation
Not archived · Council Link
REP - 31 GRANGE ROAD
Representation
Not archived · Council Link
REP - 31 GRANGE ROAD
Representation
Not archived · Council Link
REP - 31 NEWPORT ROAD
Representation
Not archived · Council Link
REP - 31, KENWOOD ROAD
Representation
Not archived · Council Link
REP - 32 CHELTENHAM ROAD
Representation
Not archived · Council Link
REP - 32 DEEPDENE VALE
Representation
Not archived · Council Link
REP - 32 EDGE LANE
Representation
Not archived · Council Link
REP - 32 MEADOW CLOSE
Representation
Not archived · Council Link
REP - 33 BROSELEY ROAD
Representation
Not archived · Council Link
REP - 33 BROSELEY ROAD
Representation
Not archived · Council Link
REP - 33 COLLEGE DRIVE
Representation
Not archived · Council Link
REP - 33 EGERTON ROAD NORTH
Representation
Not archived · Council Link
REP - 33 ERLINGTON AVENUE
Representation
Not archived · Council Link
REP - 33 KENSINGTON ROAD
Representation
Not archived · Council Link
REP - 34 BROOKS ROAD
Representation
Not archived · Council Link
REP - 34 EDGE LANE
Representation
Not archived · Council Link
REP - 34 GRANBY ROAD
Representation
Not archived · Council Link
REP - 34 KENSINGTON ROAD
Representation
Not archived · Council Link
REP - 34 LIME ROAD
Representation
Not archived · Council Link
REP - 345 BRANTINGHAM ROAD
Representation
Not archived · Council Link
REP - 35 BROSELEY ROAD
Representation
Not archived · Council Link
REP - 35 BROSELEY ROAD
Representation
Not archived · Council Link
REP - 36 LEIGHTON ROAD
Representation
Not archived · Council Link
REP - 36 LONGFORD AVENUE
Representation
Not archived · Council Link
REP - 36 TORBAY ROAD
Representation
Not archived · Council Link
REP - 37 CHANDOS ROAD SOUTH
Representation
Not archived · Council Link
REP - 37 ERLINGTON AVENUE
Representation
Not archived · Council Link
REP - 37 SUTHERLAND ROAD
Representation
Not archived · Council Link
REP - 37 WOODLAWN COURT
Representation
Not archived · Council Link
REP - 373 KINGS ROAD
Representation
Not archived · Council Link
REP - 38 BROOKS ROAD
Representation
Not archived · Council Link
REP - 38 KENNEDY ROAD
Representation
Not archived · Council Link
REP - 38 WOODSTOCK ROAD
Representation
Not archived · Council Link
REP - 38 WOODSTOCK ROAD
Representation
Not archived · Council Link
REP - 39 CHERRY TREE WALK
Representation
Not archived · Council Link
REP - 39 ERLINGTON AVENUE
Representation
Not archived · Council Link
REP - 39 KENSINGTON ROAD
Representation
Not archived · Council Link
REP - 39 KINGSLEIGH ROAD
Representation
Not archived · Council Link
REP - 39 OSWALD ROAD
Representation
Not archived · Council Link
REP - 39 WOODPECKER ROAD
Representation
Not archived · Council Link
REP - 4 ABBOTSFORD ROAD
Representation
Not archived · Council Link
REP - 4 CHARNVILLE ROAD
Representation
Not archived · Council Link
REP - 4 CHATHAM ROAD
Representation
Not archived · Council Link
REP - 4 CHEPSTOW ROAD
Representation
Not archived · Council Link
REP - 4 CONWAY CLOSE
Representation
Not archived · Council Link
REP - 4 KINGSLEY AVENUE
Representation
Not archived · Council Link
REP - 4 MACAULEY ROAD
Representation
Not archived · Council Link
REP - 4 PARK SQUARE
Representation
Not archived · Council Link
REP - 4 PARK SQUARE
Representation
Not archived · Council Link
REP - 4 PARK SQUARE
Representation
Not archived · Council Link
REP - 4 PARK SQUARE
Representation
Not archived · Council Link
REP - 4 PARK SQUARE FIRSWOOD
Representation
Not archived · Council Link
REP - 4 PARK SQUARE FIRSWOOD
Representation
Not archived · Council Link
REP - 4 TITTERINGTON AVENUE
Representation
Not archived · Council Link
REP - 4 TRESCO AVENUE
Representation
Not archived · Council Link
REP - 40 GROSVENOR ROAD
Representation
Not archived · Council Link
REP - 40 LEES HALL CRESCENT
Representation
Not archived · Council Link
REP - 41 BROOK AVENUE
Representation
Not archived · Council Link
REP - 41 KINGS LANE
Representation
Not archived · Council Link
REP - 41 ROSSLYN ROAD
Representation
Not archived · Council Link
REP - 415 KINGS ROAD
Representation
Not archived · Council Link
REP - 415 KINGS ROAD
Representation
Not archived · Council Link
REP - 42 BROSELEY ROAD
Representation
Not archived · Council Link
REP - 42 WELMAN WAY
Representation
Not archived · Council Link
REP - 43 KENWOOD ROAD
Representation
Not archived · Council Link
REP - 43 KENWOOD ROAD,
Representation
Not archived · Council Link
REP - 43 LEGH ROAD
Representation
Not archived · Council Link
REP - 43 NEY STREET
Representation
Not archived · Council Link
REP - 430 KINGS ROAD
Representation
Not archived · Council Link
REP - 44 BRAEMAR DRIVE
Representation
Not archived · Council Link
REP - 44 LONGFORD ROAD
Representation
Not archived · Council Link
REP - 44 LONGFORD ROAD
Representation
Not archived · Council Link
REP - 44, WOODSTOCK ROAD
Representation
Not archived · Council Link
REP - 45 ROYSTON ROAD
Representation
Not archived · Council Link
REP - 46 ENNERDALE DRIVE
Representation
Not archived · Council Link
REP - 47 IVYGREEN ROAD
Representation
Not archived · Council Link
REP - 47 VICTORIA ROAD
Representation
Not archived · Council Link
REP - 48 - 50 ALEXANDRA ROAD SOUTH
Representation
Not archived · Council Link
REP - 4B COPLEY ROAD
Representation
Not archived · Council Link
REP - 5 BLENHEIM ROAD
Representation
Not archived · Council Link
REP - 5 DARESBURY ROAD
Representation
Not archived · Council Link
REP - 5 DARESBURY ROAD
Representation
Not archived · Council Link
REP - 5 HILLINGDON ROAD
Representation
Not archived · Council Link
REP - 5 HORNBY ROAD
Representation
Not archived · Council Link
REP - 5 KENSINGTON ROAD
Representation
Not archived · Council Link
REP - 5 RUTLAND AVENUE
Representation
Not archived · Council Link
REP - 5 SCOTT AVENUE
Representation
Not archived · Council Link
REP - 5 TURN MOSS ROAD
Representation
Not archived · Council Link
REP - 50 BROSELEY ROAD
Representation
Not archived · Council Link
REP - 50 BROSELEY ROAD
Representation
Not archived · Council Link
REP - 50 CLARIDGE ROAD
Representation
Not archived · Council Link
REP - 50 NORTHLEIGH ROAD
Representation
Not archived · Council Link
REP - 50 NORTHLEIGH ROAD
Representation
Not archived · Council Link
REP - 506 WILBRAHAM ROAD
Representation
Not archived · Council Link
REP - 51 CHELFORD ROAD
Representation
Not archived · Council Link
REP - 51 CLARENDON ROAD WEST
Representation
Not archived · Council Link
REP - 51 WOODCOTE ROAD
Representation
Not archived · Council Link
REP - 52 BRADWELL AVENUE
Representation
Not archived · Council Link
REP - 52 KENWOOD ROAD
Representation
Not archived · Council Link
REP - 52 NICOLAS ROAD
Representation
Not archived · Council Link
REP - 53 ERLINGTON AVENUE
Representation
Not archived · Council Link
REP - 54 BROSELEY ROAD
Representation
Not archived · Council Link
REP - 54 EDGE LANE
Representation
Not archived · Council Link
REP - 54 EDGE LANE
Representation
Not archived · Council Link
REP - 54 KENSINGTON ROAD
Representation
Not archived · Council Link
REP - 54 LONGFORD ROAD
Representation
Not archived · Council Link
REP - 54 NORWOOD ROAD
Representation
Not archived · Council Link
REP - 55 ERLINGTON AVENUE
Representation
Not archived · Council Link
REP - 56 GRANGE ROAD
Representation
Not archived · Council Link
REP - 56 PEVERIL CRESCENT
Representation
Not archived · Council Link
REP - 57 ST JOHNS ROAD
Representation
Not archived · Council Link
REP - 58 GRANGE ROAD
Representation
Not archived · Council Link
REP - 59 IVYGREEN ROAD
Representation
Not archived · Council Link
REP - 59 WHITELAKE AVENUE
Representation
Not archived · Council Link
REP - 59 WINDSOR STREET
Representation
Not archived · Council Link
REP - 6 BROOKS ROAD
Representation
Not archived · Council Link
REP - 6 BURROWS AVENUE
Representation
Not archived · Council Link
REP - 6 CHELTENHAM ROAD
Representation
Not archived · Council Link
REP - 6 CHELTENHAM ROAD
Representation
Not archived · Council Link
REP - 6 COPLEY ROAD
Representation
Not archived · Council Link
REP - 6 HAPTON AVENUE
Representation
Not archived · Council Link
REP - 6 HEWLETT ROAD
Representation
Not archived · Council Link
REP - 6 KENWOOD ROAD
Representation
Not archived · Council Link
REP - 6 KILN BROW
Representation
Not archived · Council Link
REP - 6 KINGSHILL ROAD
Representation
Not archived · Council Link
REP - 6 MAES MADYN
Representation
Not archived · Council Link
REP - 6 MEADOW CLOSE
Representation
Not archived · Council Link
REP - 6 MEADOW CLOSE
Representation
Not archived · Council Link
REP - 6 PARK SQUARE
Representation
Not archived · Council Link
REP - 6 PRIORY AVENUE
Representation
Not archived · Council Link
REP - 60 NORTON STREET
Representation
Not archived · Council Link
REP - 60 PEVERIL CRESCENT
Representation
Not archived · Council Link
REP - 60 PEVERIL CRESCENT
Representation
Not archived · Council Link
REP - 62 RYE BANK ROAD
Representation
Not archived · Council Link
REP - 63 ALDERMERE CRESCENT
Representation
Not archived · Council Link
REP - 63 GRANGE ROAD
Representation
Not archived · Council Link
REP - 63 GRANGE ROAD
Representation
Not archived · Council Link
REP - 63 OSWALD ROAD
Representation
Not archived · Council Link
REP - 63 SMITHY KNOLL ROAD
Representation
Not archived · Council Link
REP - 64 BROSELEY ROAD
Representation
Not archived · Council Link
REP - 64 NORTHLEIGH ROAD
Representation
Not archived · Council Link
REP - 65 BEDFORD ROAD
Representation
Not archived · Council Link
REP - 65 CLARIDGE ROAD
Representation
Not archived · Council Link
REP - 65 HILLINGDON ROAD
Representation
Not archived · Council Link
REP - 65 URMSTON LANE
Representation
Not archived · Council Link
REP - 66 GRANGE ROAD
Representation
Not archived · Council Link
REP - 66 PEVERIL CRESCENT
Representation
Not archived · Council Link
REP - 66 WARWICKGATE HOUSE
Representation
Not archived · Council Link
REP - 67 PARKSIDE ROAD
Representation
Not archived · Council Link
REP - 68 RYE BANK ROAD
Representation
Not archived · Council Link
REP - 68 RYE BANK ROAD
Representation
Not archived · Council Link
REP - 68 RYE BANK ROAD
Representation
Not archived · Council Link
REP - 68 STATION ROAD
Representation
Not archived · Council Link
REP - 69 OSWALD ROAD
Representation
Not archived · Council Link
REP - 69 RYE BANK ROAD
Representation
Not archived · Council Link
REP - 7 BARWAY ROAD
Representation
Not archived · Council Link
REP - 7 BROSELEY ROAD
Representation
Not archived · Council Link
REP - 7 BROSELEY ROAD
Representation
Not archived · Council Link
REP - 7 CHANDOS ROAD
Representation
Not archived · Council Link
REP - 7 DARESBURY ROAD
Representation
Not archived · Council Link
REP - 7 DARESBURY ROAD
Representation
Not archived · Council Link
REP - 7 FRY STREET
Representation
Not archived · Council Link
REP - 7 GRETON CLOSE
Representation
Not archived · Council Link
REP - 7 HORTREE ROAD
Representation
Not archived · Council Link
REP - 7 PINDER WALK
Representation
Not archived · Council Link
REP - 7 PINDER WALK
Representation
Not archived · Council Link
REP - 7 RUSKIN ROAD
Representation
Not archived · Council Link
REP - 7 SOUTHBOURNE AVE
Representation
Not archived · Council Link
REP - 7 THORNDALE GROVE
Representation
Not archived · Council Link
REP - 7 WOODCHURCH WALK
Representation
Not archived · Council Link
REP - 70 GRANGE ROAD
Representation
Not archived · Council Link
REP - 70 KEPPEL ROAD
Representation
Not archived · Council Link
REP - 72 HAIG ROAD
Representation
Not archived · Council Link
REP - 72 LADYBARN LANE
Representation
Not archived · Council Link
REP - 73 LONGFORD ROAD
Representation
Not archived · Council Link
REP - 74 NORWOOD ROAD
Representation
Not archived · Council Link
REP - 74 NORWOOD ROAD
Representation
Not archived · Council Link
REP - 74 NORWOOD ROAD
Representation
Not archived · Council Link
REP - 75 WARWICK ROAD SOUTH
Representation
Not archived · Council Link
REP - 75 WARWICK ROAD SOUTHT
Representation
Not archived · Council Link
REP - 76 GORSE CRESCENT
Representation
Not archived · Council Link
REP - 76 NEWPORT ROAD
Representation
Not archived · Council Link
REP - 77 DENNISON AVENUE
Representation
Not archived · Council Link
REP - 77 RYE BANK ROAD
Representation
Not archived · Council Link
REP - 77 RYE BANK ROAD
Representation
Not archived · Council Link
REP - 78 CLARE AVENUE
Representation
Not archived · Council Link
REP - 79 LONGFORD ROAD
Representation
Not archived · Council Link
REP - 79 LONGFORD ROAD
Representation
Not archived · Council Link
REP - 79 LONGFORD ROAD
Representation
Not archived · Council Link
REP - 79 LONGFORD ROAD
Representation
Not archived · Council Link
REP - 8 COPLEY ROAD
Representation
Not archived · Council Link
REP - 8 DARESBURY ROAD
Representation
Not archived · Council Link
REP - 8 ERLINGTON AVENUE
Representation
Not archived · Council Link
REP - 8 ERLINGTON AVENUE
Representation
Not archived · Council Link
REP - 8 KEATS HOUSE
Representation
Not archived · Council Link
REP - 8 KEATS HOUSE
Representation
Not archived · Council Link
REP - 8 NEWPORT ROAD
Representation
Not archived · Council Link
REP - 8 OLDFIELD GROVE
Representation
Not archived · Council Link
REP - 8 OLDFIELD GROVE
Representation
Not archived · Council Link
REP - 8 POLRUAN ROAD
Representation
Not archived · Council Link
REP - 8 POLRUAN ROAD
Representation
Not archived · Council Link
REP - 8 SALISBURY ROAD
Representation
Not archived · Council Link
REP - 80 NICOLAS ROAD
Representation
Not archived · Council Link
REP - 82 COLLEGE ROAD
Representation
Not archived · Council Link
REP - 83 BRANTINGHAM ROADROAD
Representation
Not archived · Council Link
REP - 83 LONGFORD ROAD
Representation
Not archived · Council Link
REP - 83A GREAT STONE ROAD
Representation
Not archived · Council Link
REP - 83A GREAT STONE ROAD
Representation
Not archived · Council Link
REP - 83A GREAT STONE ROAD
Representation
Not archived · Council Link
REP - 84 LONGFORD ROAD
Representation
Not archived · Council Link
REP - 84 LONGFORD ROAD
Representation
Not archived · Council Link
REP - 85 LONGFORD ROAD
Representation
Not archived · Council Link
REP - 87 JACKSON STREET
Representation
Not archived · Council Link
REP - 89 CLAUDE ROAD
Representation
Not archived · Council Link
REP - 9 ALBEMARLE ROAD
Representation
Not archived · Council Link
REP - 9 CHEQUERS ROAD
Representation
Not archived · Council Link
REP - 9 DEAN BANK AVENUE
Representation
Not archived · Council Link
REP - 9 HORTREE ROAD
Representation
Not archived · Council Link
REP - 9 MORETON AVENUE
Representation
Not archived · Council Link
REP - 9 PATTERSON AVENUE
Representation
Not archived · Council Link
REP - 9 PATTERSON AVENUE
Representation
Not archived · Council Link
REP - 9 ROSSLYN ROAD
Representation
Not archived · Council Link
REP - 9 ROSSLYN ROAD
Representation
Not archived · Council Link
REP - 9 SIBSON ROAD
Representation
Not archived · Council Link
REP - 9 SIBSON ROAD
Representation
Not archived · Council Link
REP - 9 SIBSON ROAD
Representation
Not archived · Council Link
REP - 9 SIBSON ROAD
Representation
Not archived · Council Link
REP - 9 WHALLEY AVENUE
Representation
Not archived · Council Link
REP - 90 BROOKLANDS ROAD
Representation
Not archived · Council Link
REP - 90 CROMWELL ROAD
Representation
Not archived · Council Link
REP - 90 DUDLEY ROAD
Representation
Not archived · Council Link
REP - 90 GORSE CRESCENT
Representation
Not archived · Council Link
REP - 90 NEWPORT ROAD
Representation
Not archived · Council Link
REP - 90 NEWPORT ROAD
Representation
Not archived · Council Link
REP - 90 NEWPORT ROAD
Representation
Not archived · Council Link
REP - 91 GREAT STONE ROAD
Representation
Not archived · Council Link
REP - 92 SANDY LANE
Representation
Not archived · Council Link
REP - 92 SANDY LANE
Representation
Not archived · Council Link
REP - 93 LONGFORD ROAD
Representation
Not archived · Council Link
REP - 93 NEWPORT ROAD
Representation
Not archived · Council Link
REP - 94 IVYGREEN ROAD
Representation
Not archived · Council Link
REP - 96 RYEBANK ROAD
Representation
Not archived · Council Link
REP - 98 LONGFORD ROAD
Representation
Not archived · Council Link
REP - 99 LONGFORD ROAD
Representation
Not archived · Council Link
REP - 99 LONGFORD ROAD
Representation
Not archived · Council Link
REP - ANON
Representation
Not archived · Council Link
REP - ANON
Representation
Not archived · Council Link
REP - ANON
Representation
Not archived · Council Link
REP - ANON
Representation
Not archived · Council Link
REP - ANON
Representation
Not archived · Council Link
REP - ANON
Representation
Not archived · Council Link
REP - ANON
Representation
Not archived · Council Link
REP - ANON
Representation
Not archived · Council Link
REP - ANON
Representation
Not archived · Council Link
REP - ANON
Representation
Not archived · Council Link
REP - ANON
Representation
Not archived · Council Link
REP - ANON
Representation
Not archived · Council Link
REP - ANON
Representation
Not archived · Council Link
REP - ANON
Representation
Not archived · Council Link
REP - ANON
Representation
Not archived · Council Link
REP - ANON
Representation
Not archived · Council Link
REP - ANON
Representation
Not archived · Council Link
REP - ANON
Representation
Not archived · Council Link
REP - ANON
Representation
Not archived · Council Link
REP - ANON
Representation
Not archived · Council Link
REP - ANON
Representation
Not archived · Council Link
REP - ANON
Representation
Not archived · Council Link
REP - ANON
Representation
Not archived · Council Link
REP - ANON
Representation
Not archived · Council Link
REP - ANONYMOUS
Representation
Not archived · Council Link
REP - APARTMENT 11 CARA HOUSE, 12 WHALLEY ROAD
Representation
Not archived · Council Link
REP - APARTMENT 50B, 234 ORDSALL LANE
Representation
Not archived · Council Link
REP - BEECHWOOD, HILTON ROAD
Representation
Not archived · Council Link
REP - BORDERING TRAFFORD RESIDENTS
Representation
Not archived · Council Link
REP - CONDER GREEN FARM, LANCASTER
Representation
Not archived · Council Link
REP - DENNATHORNE COTTAGE, MOORSHOP
Representation
Not archived · Council Link
REP - EDIFICIO GEMINIS 505, CALLE TAURO
Representation
Not archived · Council Link
REP - FLAT 1, 4 WELLINGTON CRESCENT
Representation
Not archived · Council Link
REP - FLAT 12 10 WEAVER HOUSE
Representation
Not archived · Council Link
REP - FLAT 14 CARLTON MANSIONS, 20 CARLTON ROAD
Representation
Not archived · Council Link
REP - FLAT 2 172 EGERTON RD. NORTH
Representation
Not archived · Council Link
REP - FLAT 2 BUCKLEY HOUSE, 11 - 13 BROOKS RD
Representation
Not archived · Council Link
REP - FLAT 2, 27 STANLEY ROAD
Representation
Not archived · Council Link
REP - FLAT 2, 27 STANLEY ROAD
Representation
Not archived · Council Link
REP - FLAT 2, 67-69 NORWOOD ROAD
Representation
Not archived · Council Link
REP - FLAT 3 - 4, 343 BRANTINGHAM ROAD
Representation
Not archived · Council Link
REP - FLAT 3, 19 YORK ROAD
Representation
Not archived · Council Link
REP - FLAT 3, 8 CORKLAND ROAD
Representation
Not archived · Council Link
REP - FLAT 4, 25 BRUNSWICK ROAD
Representation
Not archived · Council Link
REP - FLAT 406, 41 OLD BIRLEY STREET
Representation
Not archived · Council Link
REP - FLAT 5, 46 DENISON ROAD
Representation
Not archived · Council Link
REP - FLAT 50 THE HAWTHORNS, 114 EDGE LANE
Representation
Not archived · Council Link
REP - FLAT 506 1 AYTOUN STREET
Representation
Not archived · Council Link
REP - FLAT 57, COTTON FIELD WHARF
Representation
Not archived · Council Link
REP - FLAT 6, 71 NORWOOD ROAD
Representation
Not archived · Council Link
REP - FLAT 6, LONGFORD WHARF, STEPHENSON ROAD
Representation
Not archived · Council Link
REP - FLAT 7, REGENCY COURT
Representation
Not archived · Council Link
REP - FLAT 8, 26-28 WHITELOW ROAD
Representation
Not archived · Council Link
REP - FLAT D EGERTON COURT, 115 EGERTON ROAD NORTH
Representation
Not archived · Council Link
REP - FRIENDS OF LONGFORD PARK
Representation
Not archived · Council Link
REP - FRIENDS OF RYEBANK FIELDS
Representation
Not archived · Council Link
REP - FRIENDS OF RYEBANK FIELDS
Representation
Not archived · Council Link
REP - HAPTON AVENUE
Representation
Not archived · Council Link
REP - HENRIETTA STREET
Representation
Not archived · Council Link
REP - HIGH LANE
Representation
Not archived · Council Link
REP - KIELDER SQUARE, ECCLES NEW ROAD
Representation
Not archived · Council Link
REP - LANCHASHIRE WILDLIFE TRUST
Representation
Not archived · Council Link
REP - M16 0BP
Representation
Not archived · Council Link
REP - M16 8HG
Representation
Not archived · Council Link
REP - M19 2BN
Representation
Not archived · Council Link
REP - M19 2BN
Representation
Not archived · Council Link
REP - MANCHESTER INTERGENERATIONAL COHOUSING LIMITED
Representation
Not archived · Council Link
REP - MEADOW CLOSE
Representation
Not archived · Council Link
REP - MOORLANDS COTTAGE
Representation
Not archived · Council Link
REP - MP FOR STRETFORD & URMSTON
Representation
Not archived · Council Link
REP - PETHYBRIDGE FARMHOUSE, LUSTLEIGH
Representation
Not archived · Council Link
REP - ROUND MEADOW HIGH PEAK
Representation
Not archived · Council Link
REP - RYE BANK ROAD
Representation
Not archived · Council Link
REP - STUDENT BRANCH OF THE GREATER MANCHESTER TENANTS UNION
Representation
Not archived · Council Link
REP - THE LILIES, 13A GEORGE STREET
Representation
Not archived · Council Link
REP - THE SHIELING, 46 WEST STREET
Representation
Not archived · Council Link
REP - TIVERTON, GERRARDS CROSS
Representation
Not archived · Council Link
REP - TRAFFORD RYE BANK ROAD RESIDENTS ASSOCIATION
Representation
Not archived · Council Link
REP - TRAFFORD RYE BANK ROAD RESIDENTS ASSOCIATION (TRRA)
Representation
Not archived · Council Link
REP - YSGUBOR FACH, CAERPHILLY
Representation
Not archived · Council Link
REP -10 BYRON ROAD
Representation
Not archived · Council Link
REP -132 RYEBANK ROAD
Representation
Not archived · Council Link
REP -196 OSWALD ROAD
Representation
Not archived · Council Link
REP -20 DARESBURY ROAD
Representation
Not archived · Council Link
REP -21 HARTLEY ROAD
Representation
Not archived · Council Link
REP -23 MILTON GROVE
Representation
Not archived · Council Link
REP -247 RYEBANK ROAD
Representation
Not archived · Council Link
REP -37 COVE ROAD
Representation
Not archived · Council Link
REP -7 BARWAY ROAD
Representation
Not archived · Council Link
REP -WESTMINSTER AVENUE
Representation
Not archived · Council Link
REP -YEW TREE COTTAGE, WATERS GREEN
Representation
Not archived · Council Link
REP- 4 CONWAY CLOSE
Representation
Not archived · Council Link
SCHEDULE OF ACCOMMODATION
Supporting Information
Not archived · Council Link
STATEMENT OF COMMUNITY INVOLVEMENT
Supporting Information
Not archived · Council Link
STATEMENT OF COMMUNITY INVOLVEMENT APPENDICES
Supporting Information
Not archived · Council Link
SUPPORTED LIVING - FIRST FLOOR
Plans
Not archived · Council Link
SUPPORTED LIVING - GROUND FLOOR
Plans
Not archived · Council Link
SUPPORTED LIVING - ROOF PLAN
Plans
Not archived · Council Link
SUPPORTED LIVING ELEVATIONS SHEET 1 OF 2
Plans
Not archived · Council Link
SUPPORTED LIVING PROPOSED SECTION
Plans
Not archived · Council Link
TRANSPORT ASSESSMENT VOLUME 1
Transport Assessment
Not archived · Council Link
TRANSPORT ASSESSMENT VOLUME 2
Transport Assessment
Not archived · Council Link
TRANSPORT ASSESSMENT VOLUME 3
Transport Assessment
Not archived · Council Link
TRANSPORT ASSESSMENT VOLUME 4
Transport Assessment
Not archived · Council Link
WEEKLY LIST
Weekly List
Not archived · Council Link
ZONE 2 PROPOSED GENERAL ARRANGEMENT PLAN GROUND FLOOR
Plans
Not archived · Council Link
ZONE 2 PROPOSED GENERAL ARRANGEMENT PLAN GROUND FLOOR
Plans
Not archived · Council Link

Take Action

Make your voice heard. Authorities need to hear from people who support new homes.

✉️ Write Email in Support View on Council Portal