← Back to Trafford Council

Status

Awaiting decision
Received
03 Nov 2025
New dwellings
n/a

Full Proposal

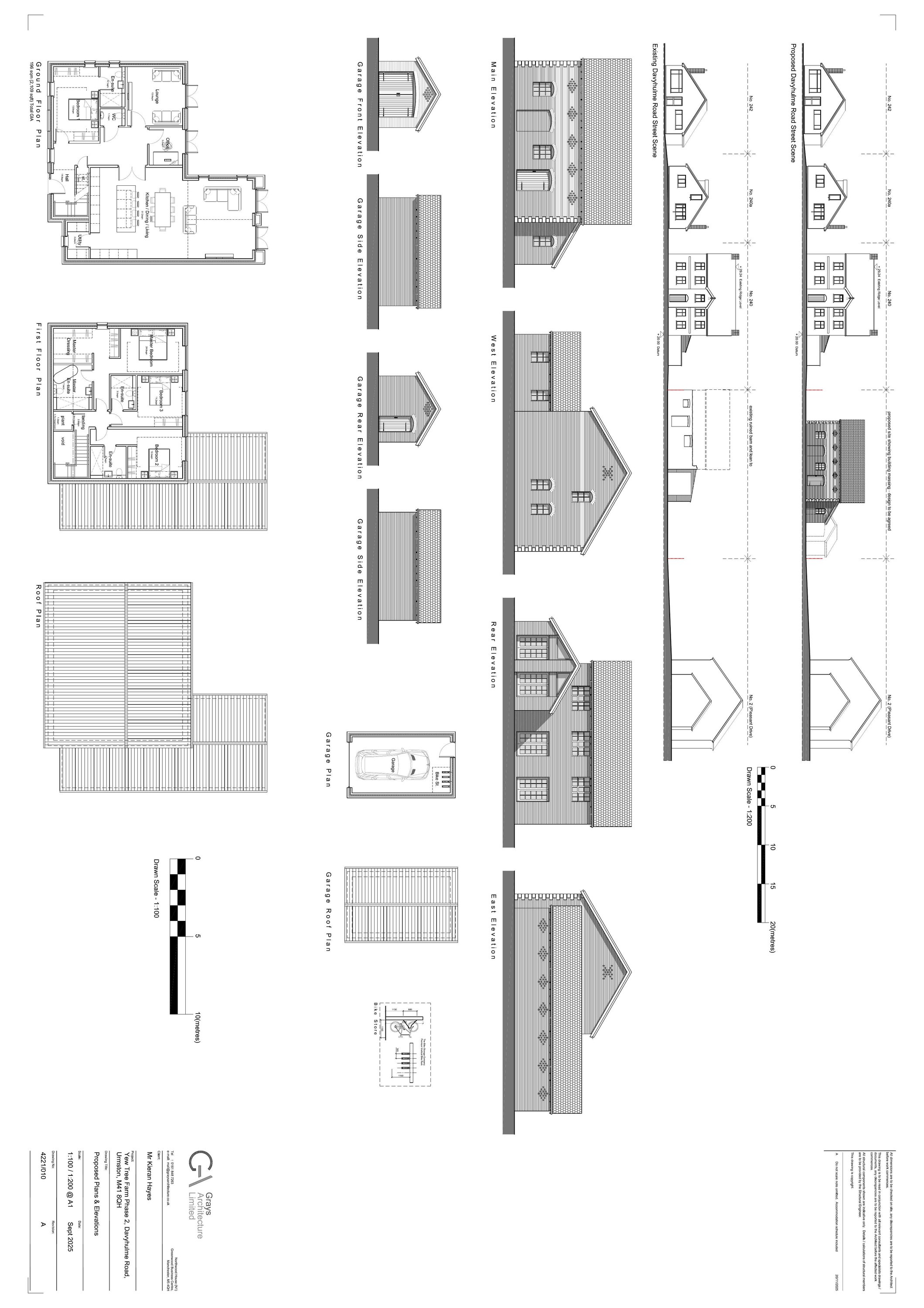
Demolition of existing structures and erection of detached dwelling with associated external works, including car parking, new vehicular access and dropped kerb and landscaping.

Documents

APPLICATION FORM
Application Form
Not archived · Council Link
ARBORICULTURAL IMPACT ASSESSMENT
Tree Survey
Not archived · Council Link
BAT SURVEYS V1
Bat Survey
Not archived · Council Link
BNG METRIC
Biodiversity Net Gain Assessment
Not archived · Council Link
COVERING LETTER
Supporting Information
Not archived · Council Link
DESIGN AND ACCESS STATEMENT
Design and Access Statement
Not archived · Council Link
DESIGN CODE COMPLIANCE
Supporting Information
Not archived · Council Link
EXISTING PLANS AND ELEVATIONS
Plans
Not archived · Council Link
EXISTING SITE AND LOCATION PLAN
Site Location
Not archived · Council Link
FACADE - STRIP SECTIONS
Facade Design Analysis
Not archived · Council Link
FORM_1_CIL_ADDITIONAL_INFORMATION
CIL Questions
Not archived · Council Link
FORM_2_ASSUMPTION_OF_LIABILITY (1)
CIL Questions
Not archived · Council Link
HERITAGE STATEMENT
Heritage Statement
Not archived · Council Link
HIGHWAYS TECHNICAL NOTE
Supporting Information
Not archived · Council Link
INDIVIDUAL TREES HABITAT TYPE
Tree Survey
Not archived · Council Link
MATERIALS SCHEDULE
Supporting Information
Not archived · Council Link
PRELIMINARY ECOLOGICAL APPRAISAL AND BNG
Supporting Information
Not archived · Council Link
PROPOSED LANDSCAPE PLAN
Plans
Not archived · Council Link
Plans
Archived · Council Link
REP - 136 LAWNHURST AVENUE
Representation
Not archived · Council Link
REP - 240 DAVYHULME ROAD
Representation
Not archived · Council Link
WEEKLY LIST
Weekly List
Not archived · Council Link

Take Action

Make your voice heard. Authorities need to hear from people who support new homes.

✉️ Write Email in Support View on Council Portal