117874/FUL/25
Trafford Council · IDOX
Status
Awaiting decision
Received
28 Nov 2025
New dwellings
n/a
Full Proposal
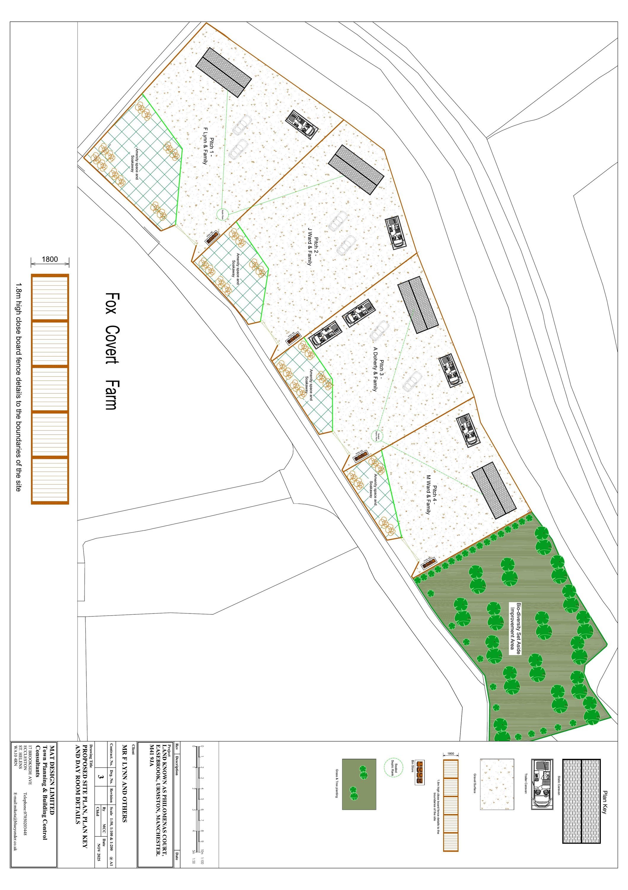
Change of use of land to form 5 pitches (four related families) gypsy and traveller site including the siting of caravans for residential purposes along with the laying of gravel surfaces, provision of soakaways, landscaping and bio-diversity improvements and erection of fencing and vehicular gates (retrospective) and associated development thereto.
Documents
LAND KNOWN AS PHILOMENAS COURT PLANNING STATEMENT - NOVEMBER 2025
Planning Statement
Not archived
· Council Link
Take Action
Make your voice heard. Authorities need to hear from people who support new homes.