← Back to Trafford Council

Status

Awaiting decision
Received
Last month
New dwellings
n/a

Full Proposal

Application for Certificate of Proposed Lawful Development for use of a (Class C3) dwelling as a children's home for up to three children with a manager and two staff sleeping overnight on a rotational basis (Class C2).

Documents

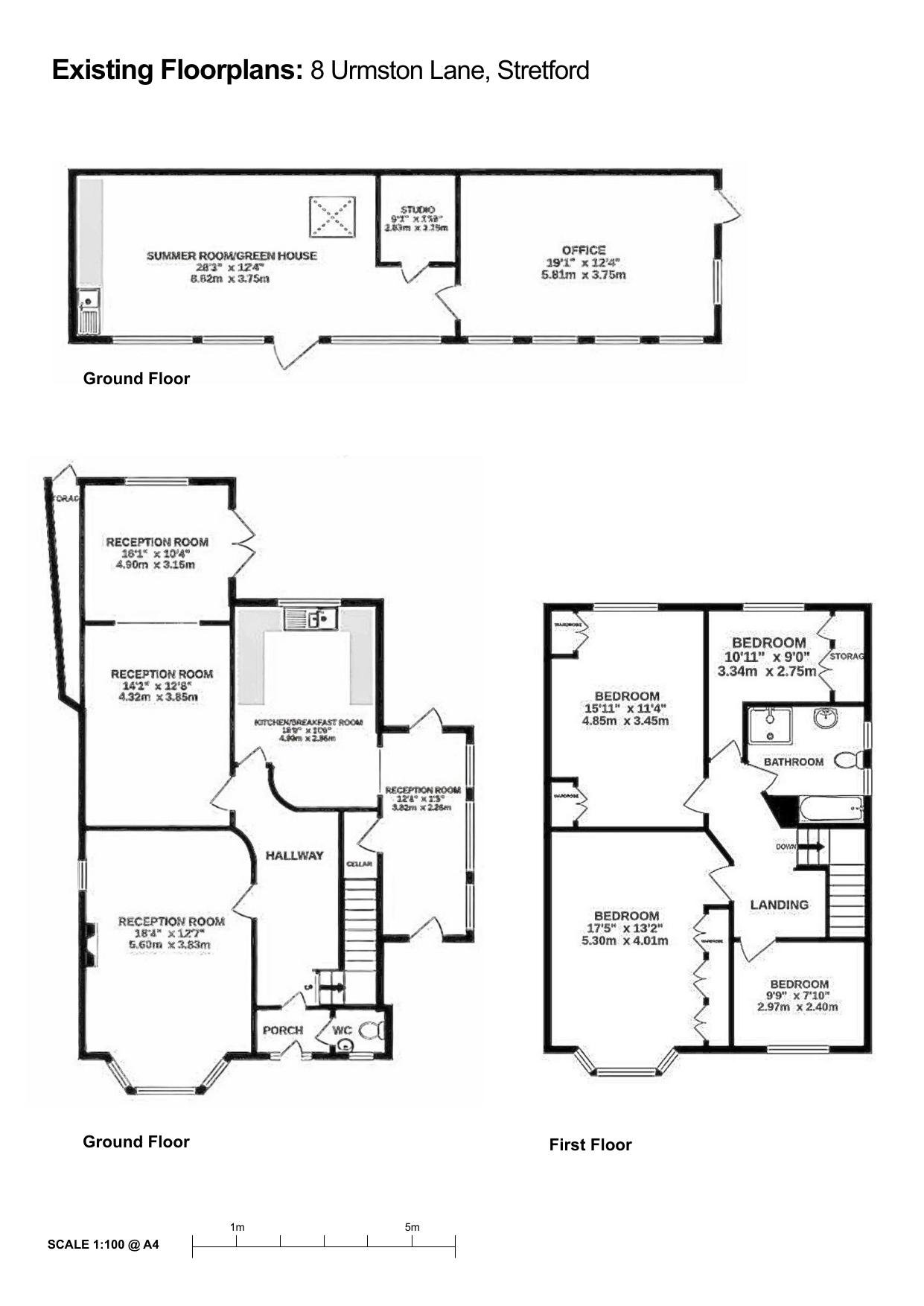
Plans
Archived · Council Link
APPLICATIONFORMREDACTED
Application Form
Not archived · Council Link
LOCATION PLAN
Site Location
Not archived · Council Link
PLANNING STATEMENT
Planning Statement
Not archived · Council Link

Take Action

Make your voice heard. Authorities need to hear from people who support new homes.

✉️ Write Email in Support View on Council Portal