← Back to Tunbridge Wells Borough Council

Status

Decided
Received
n/a
New dwellings
n/a

Summary

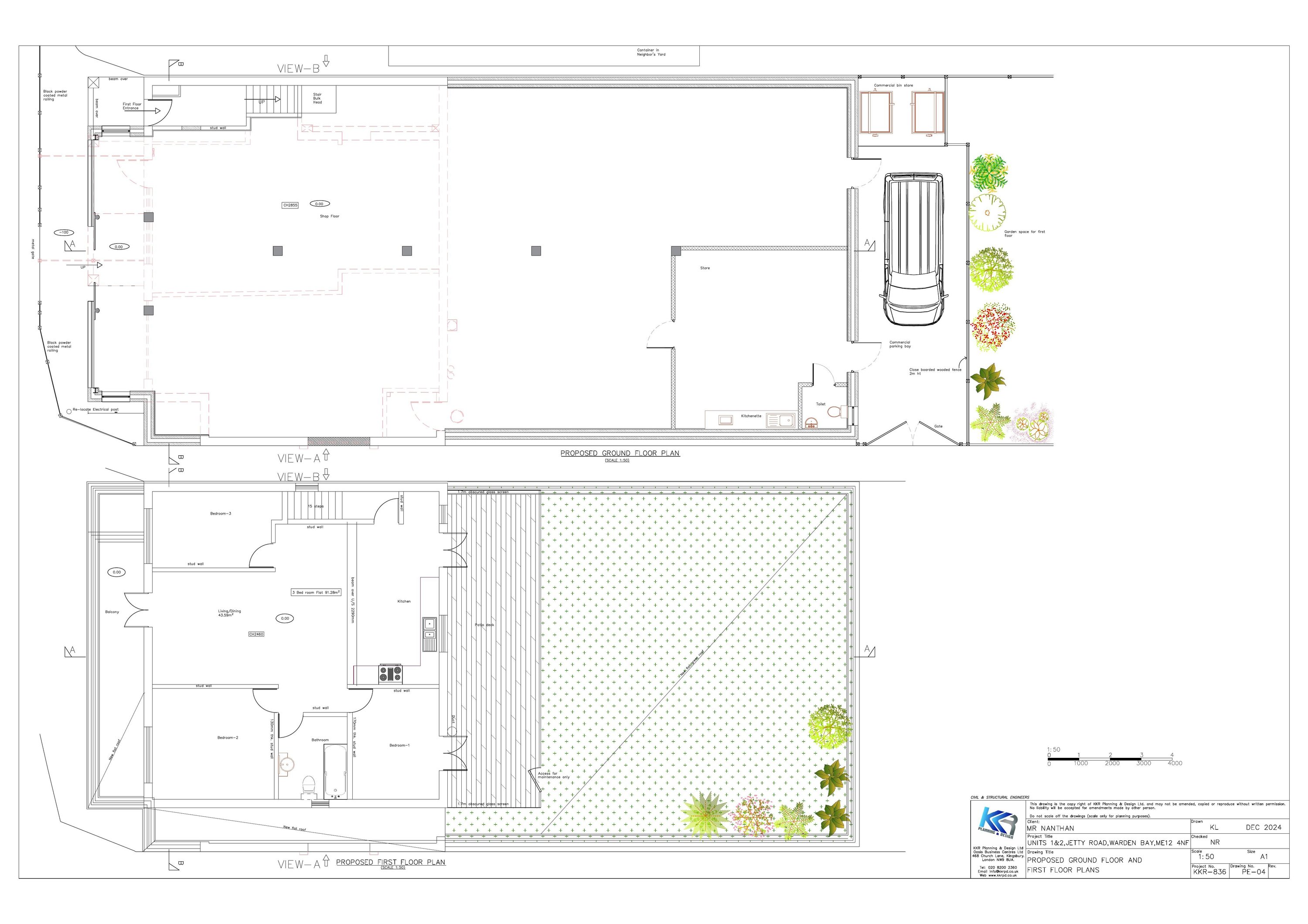
Single-storey front and rear shop extensions, new first-floor residential terrace, and parking creation.

Full Proposal

Erection of single storey front and rear extension to the shop, new first floor external terrace to the residential flat, and creation of 1no. commercial parking space and 2no. residential parking spaces at the rear of the site.

Documents

. Environmental Protection Team MIDKENT Environmental Health(FULL)
Neighbour Comments
Not archived · Council Link
Appeal Decision
Appeal Decision
Not archived · Council Link
Appeal Form
Appeal Form
Not archived · Council Link
Appeal Form Ground of Appeal Statement
Appeal Statement
Not archived · Council Link
ApplicationFormRedacted
Application Details
Not archived · Council Link
Biodiversity Metric
Additional Information
Not archived · Council Link
Biodiversity Net Gain Exemption Statement
Biodiversity Survey/Report
Not archived · Council Link
BNG assessment
Additional Information
Not archived · Council Link
BNG Exemption Statement
Additional Information
Not archived · Council Link
Covering emails
Additional Information
Not archived · Council Link
Delegated Report
Delegated Report
Not archived · Council Link
Despatched Cover Letter
Appeal Decision
Not archived · Council Link
Environment Agency
Appeal Correspondence
Not archived · Council Link
Environmental Agency
Consultee Comment
Not archived · Council Link
Existing Site, Floor, Roof Plans, Elevations and Section
Plan / Drawing
Not archived · Council Link
Flood Risk Assessment
Flood Risk Assessment
Not archived · Council Link
KCC Archaeological Officer
Consultee Comment
Not archived · Council Link
KCC Ecological Officer
Consultee Comment
Not archived · Council Link
KCC Ecological Officer
Consultee Comment
Not archived · Council Link
KCC Ecology
Consultee Comment
Not archived · Council Link
KCC Ecology
Consultee Comment
Not archived · Council Link
KCC Highways and Transportation
Consultee Comment
Not archived · Council Link
LPA Response to Appellants Comments
Appeal Correspondence
Not archived · Council Link
Preliminary Ecological Appraisal
Additional Information
Not archived · Council Link
Proposed Elevations and Sections
Plan / Drawing
Not archived · Council Link
Plan / Drawing
Archived · Council Link
Proposed Roof Plan, Elevation and Section
Plan / Drawing
Not archived · Council Link
Refused
Decision
Not archived · Council Link
Plan / Drawing
Archived · Council Link
Site Notice Photo
Planning Notice
Not archived · Council Link
Site Photos
Photographs
Not archived · Council Link
Wild Capital ? BNG Buyers
Additional Information
Not archived · Council Link

Take Action

Make your voice heard. Authorities need to hear from people who support new homes.

✉️ Write Email in Support View on Council Portal