← Back to Tunbridge Wells Borough Council

Status

Decided
Received
n/a
New dwellings
n/a

Summary

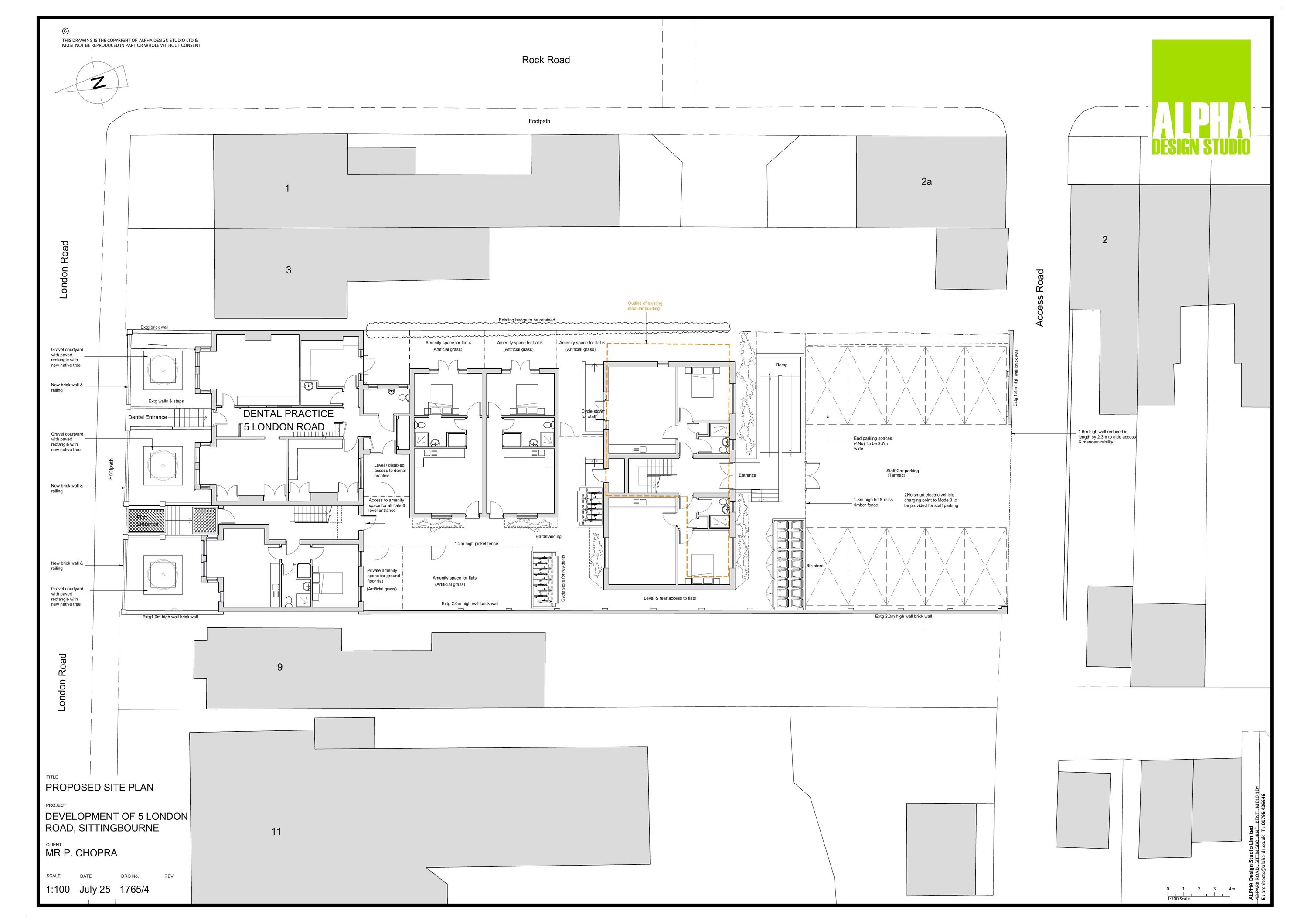
Demolish modular building; extensions and new detached building providing nine residential flats and dental facilities.

Full Proposal

Demolition of existing modular building, rear single storey extension and external fire escape, and erection of a three storey side extension to form 3no. residential flats, and a two storey rear extension to form 2no. residential flats on the ground floor and dental facilities on the first floor, with alterations to fenestration. Erection of a two storey detached pitched roof building to form 4no. residential flats.

Documents

Acoustic Assessment
Supporting Documents
Not archived · Council Link
ApplicationFormRedacted
Application Details
Not archived · Council Link
Cycle Store and Bin Floor Plans and Elevations
Plan / Drawing
Not archived · Council Link
Delegated Report
Delegated Report
Not archived · Council Link
Existing Elevations
Plan / Drawing
Not archived · Council Link
Existing Floor Plans
Plan / Drawing
Not archived · Council Link
Existing Site and Location Plan
Plan / Drawing
Not archived · Council Link
Front Elevation
Plan / Drawing
Not archived · Council Link
Granted/ Permitted
Decision
Not archived · Council Link
KCC Highways and Transportation
Consultee Comment
Not archived · Council Link
MP Statement
Supporting Documents
Not archived · Council Link
Natural England
Consultee Comment
Not archived · Council Link
Natural England Annex A
Consultee Comment
Not archived · Council Link
Online Comment
Neighbour Comments
Not archived · Council Link
Online Comment
Neighbour Comments
Not archived · Council Link
Proposed Elevations 1
Plan / Drawing
Not archived · Council Link
Proposed Elevations 2
Plan / Drawing
Not archived · Council Link
Plan / Drawing
Archived · Council Link
Proposed Section
Plan / Drawing
Not archived · Council Link
Plan / Drawing
Archived · Council Link
Revised Planning Statement
Planning Statement
Not archived · Council Link
Transport Statement
Transport Assessment
Not archived · Council Link

Take Action

Make your voice heard. Authorities need to hear from people who support new homes.

✉️ Write Email in Support View on Council Portal