← Back to Tunbridge Wells Borough Council

Status

Awaiting decision
Received
n/a
New dwellings
n/a

Summary

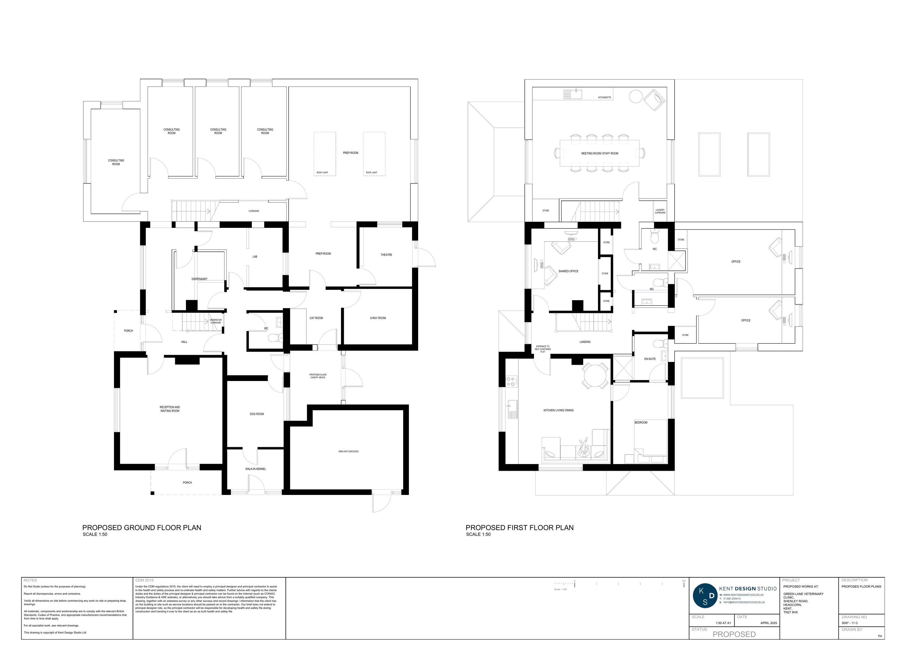
Part two/part single-storey extensions; first floor to veterinary clinic and a self-contained flat.

Full Proposal

Erection of a part two/part single-storey side extension, single-storey front/side extension, and single storey and first floor rear extension. Change of use of first floor from residential accommodation to Veterinary Clinic and self-contained flat, together with internal alterations and reconfiguration at both ground and first floor. Planting of trees and hedges to boundaries.

Documents

. Environmental Protection Team MIDKENT Environmental Health
Consultee Comment
Not archived · Council Link
Advert in Paper - Kent Messenger
Planning Notice
Not archived · Council Link
Advert in Paper - Medway Messenger
Planning Notice
Not archived · Council Link
ApplicationFormRedacted
Application Details
Not archived · Council Link
CIL Form 1
Section 106 / CIL Document
Not archived · Council Link
CIL Form 1
Section 106 / CIL Document
Not archived · Council Link
Existing Block Plan
Plan / Drawing
Not archived · Council Link
Existing Elevations
Plan / Drawing
Not archived · Council Link
Existing Floor Plans
Plan / Drawing
Not archived · Council Link
Flood Risk Assessment
Flood Risk Assessment
Not archived · Council Link
Habitats
Plan / Drawing
Not archived · Council Link
Headcorn Parish Council
Parish Comments
Not archived · Council Link
Headcorn Parish Council
Parish Comments
Not archived · Council Link
KCC PROW
Consultee Comment
Not archived · Council Link
KCC PROW - Plan
Consultee Comment
Not archived · Council Link
KCC PROW - Plan 2
Consultee Comment
Not archived · Council Link
Kent-Biodiversity-Gain-Statement-12.07.24
Biodiversity Report
Not archived · Council Link
Neighbour Comment
Neighbour Comments
Not archived · Council Link
Planning Statement B
Planning Statement
Not archived · Council Link
Proposed Block Plan
Plan / Drawing
Not archived · Council Link
Proposed Elevations
Plan / Drawing
Not archived · Council Link
Plan / Drawing
Archived · Council Link
The_Statutory_Biodiversity_Metric_Calculation_Tool
Biodiversity Report
Not archived · Council Link
Tree Survey
Tree Survey
Not archived · Council Link

Take Action

Make your voice heard. Authorities need to hear from people who support new homes.

✉️ Write Email in Support View on Council Portal