← Back to Tunbridge Wells Borough Council

Status

Awaiting decision
Received
n/a
New dwellings
n/a

Full Proposal

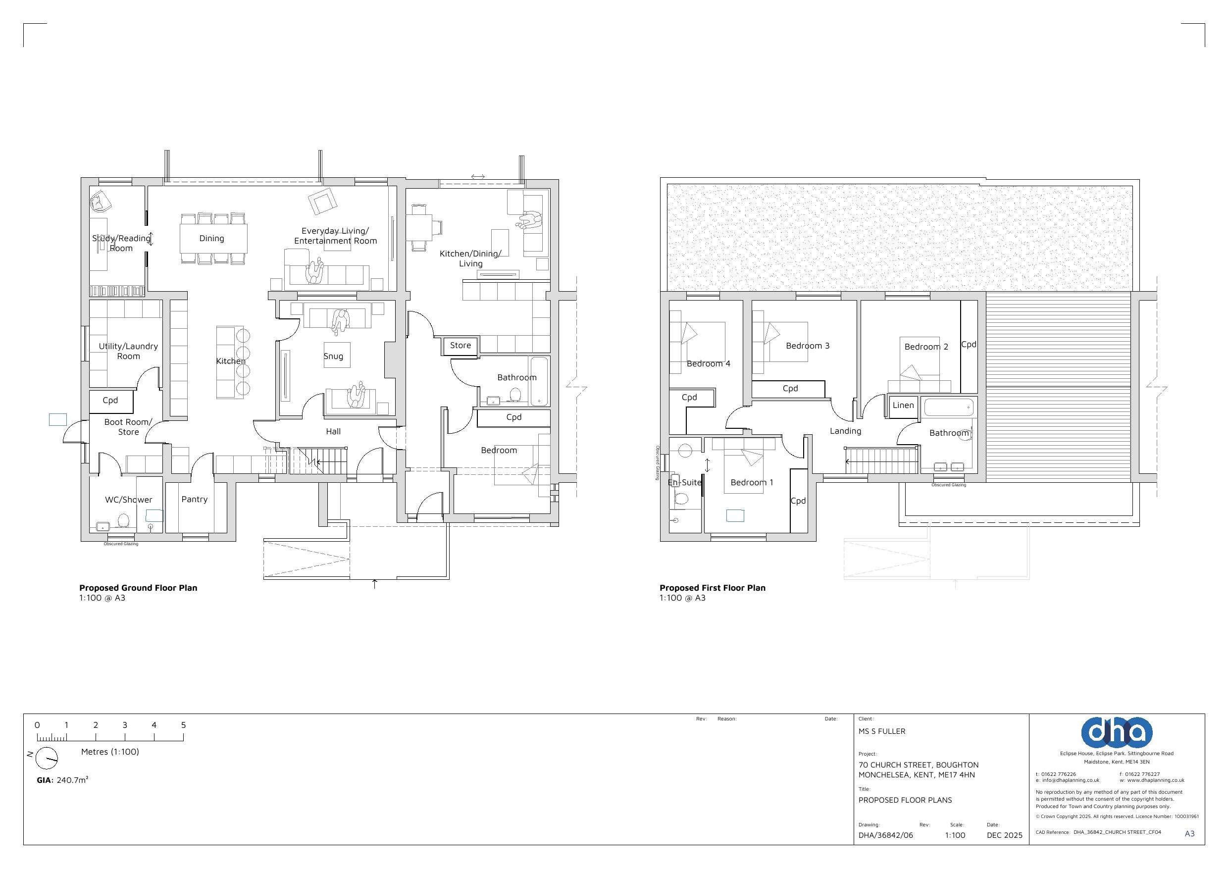
Demolition of existing single storey extension. Erection of two-storey front/side extension and erection of single storey rear extension. Erection of interlinked single-storey residential annexe, changes to fenestration, including rendering of first floor of existing dwelling. Front porch extension to include ramp and associated landscaping.

Documents

. Boughton Monchelsea Parish Council
Consultee Comment
Not archived · Council Link
ApplicationFormRedacted
Application Details
Not archived · Council Link
CIL Form 1
Section 106 / CIL Document
Not archived · Council Link
CIL Form 2
Section 106 / CIL Document
Not archived · Council Link
CIL Form 9
Section 106 / CIL Document
Not archived · Council Link
Existing Elevations
Plan / Drawing
Not archived · Council Link
Existing Floor Plans
Plan / Drawing
Not archived · Council Link
Existing Site Layout Plan
Plan / Drawing
Not archived · Council Link
Online Comment
Neighbour Comments
Not archived · Council Link
Planning Statement
Planning Statement
Not archived · Council Link
Proposed Elevations
Plan / Drawing
Not archived · Council Link
Plan / Drawing
Archived · Council Link
Proposed Site Layout Plan
Plan / Drawing
Not archived · Council Link
Plan / Drawing
Archived · Council Link

Take Action

Make your voice heard. Authorities need to hear from people who support new homes.

✉️ Write Email in Support View on Council Portal