← Back to Uttlesford District Council

Status

Awaiting decision
Received
08 Sep 2025
New dwellings
n/a

Summary

Erection of 28 new dwellings, including 11 affordable and six self/custom build plots.

Full Proposal

Erection of 28 no. proposed new dwellings including 11 no. affordable dwellings, 6 self and custom build plots, and associated infrastructure.

Documents

10 ELDRIDGE CLOSE - COMMENTS
B999 - Representation Letter
Not archived · Council Link
19 ELDRIDGE CLOSE - COMMENTS
B999 - Representation Letter
Not archived · Council Link
23 ELDRIDGE CLOSE - COMMENTS
B999 - Representation Letter
Not archived · Council Link
24 PELHAM ROAD - COMMENTS
B999 - Representation Letter
Not archived · Council Link
29 PELHAM ROAD - COMMENT
B999 - Representation Letter
Not archived · Council Link
29 PELHAM ROAD - COMMENTS
B999 - Representation Letter
Not archived · Council Link
3 ELDRIDGE CLOSE - COMMENTS
B999 - Representation Letter
Not archived · Council Link
30 PELHAM ROAD - COMMENTS
B999 - Representation Letter
Not archived · Council Link
4 ELDRIDGE CLOSE - COMMENTS
B999 - Representation Letter
Not archived · Council Link
ACKAPP STANDARD ACKNOWLEDGEMENT
Correspondence
Not archived · Council Link
AFFINITY WATER - RESPONSE
B900-AP Consultation Replies
Not archived · Council Link
ANGLIAN WATER DEVELOPER FORUM SUMMARY NOTES
B610-Supporting information
Not archived · Council Link
APPLICATION FORM
B610-Supporting information
Not archived · Council Link
ARBORICULTURAL REPORT
B610-Supporting information
Not archived · Council Link
ARBORICULTURAL REPORT APPENDIX 1
B610-Supporting information
Not archived · Council Link
AREAS
B020-Plan
Not archived · Council Link
BASELINE HABITATS MAP
B020-Plan
Not archived · Council Link
BIODIVERSITY ENHANCEMENT PLAN
B610-Supporting information
Not archived · Council Link
BIODIVERSITY ENHANCEMENT PLAN
B020-Plan
Not archived · Council Link
BIODIVERSITY GAIN PLAN
B610-Supporting information
Not archived · Council Link
BIODIVERSITY NET GAIN ASSESSMENT
B610-Supporting information
Not archived · Council Link
BIODIVERSITY NET GAIN METRIC
B610-Supporting information
Not archived · Council Link
BIODIVERSITY VALIDATION CHECKLIST
B610-Supporting information
Not archived · Council Link
BLACKBIRD COTTAGE - COMMENTS
B999 - Representation Letter
Not archived · Council Link
BLACKBIRD COTTAGE - COMMENTS
B999 - Representation Letter
Not archived · Council Link
BLACKSMITHS COTTAGE - COMMENTS
B999 - Representation Letter
Not archived · Council Link
BOWER HOUSE - COMMENTS
B999 - Representation Letter
Not archived · Council Link
BOWER HOUSE - COMMENTS
B999 - Representation Letter
Not archived · Council Link
BROCKHAMS - COMMENTS
B999 - Representation Letter
Not archived · Council Link
BURROUGHS - COMMENTS
B999 - Representation Letter
Not archived · Council Link
CHESTNUT COTTAGE - COMMENTS
B999 - Representation Letter
Not archived · Council Link
CHESTNUT COTTAGE - COMMENTS
B999 - Representation Letter
Not archived · Council Link
CHIPPERFIELD HOUSE - COMMENTS
B999 - Representation Letter
Not archived · Council Link
CHIPPERFIELD HOUSE - COMMENTS
B999 - Representation Letter
Not archived · Council Link
CLAVERING COURT - COMMENTS
B999 - Representation Letter
Not archived · Council Link
CLAVERING PARISH COUNCIL - COMMENTS
B900-AP Consultation Replies
Not archived · Council Link
CLAVERING PARISH COUNCIL - FURTHER RESPONSE
B900-AP Consultation Replies
Not archived · Council Link
CLAVERING PARISH COUNCIL - IMAGE (RESPONSE)
B900-AP Consultation Replies
Not archived · Council Link
CLAVERING PARISH COUNCIL - LANDSCAPE ASSESSMENT STUDY (RESPONSE)
B900-AP Consultation Replies
Not archived · Council Link
CLAVERING PARISH COUNCIL - RESPONSE
B900-AP Consultation Replies
Not archived · Council Link
CONSTR - CONSTRAINTS LIST
Report
Not archived · Council Link
COPTHALL - COMMENTS
B999 - Representation Letter
Not archived · Council Link
COPTHALL - COMMENTS
B999 - Representation Letter
Not archived · Council Link
DAISY COTTAGE - COMMENTS
B999 - Representation Letter
Not archived · Council Link
DEERS COTTAGE - COMMENTS
B999 - Representation Letter
Not archived · Council Link
DEERS COTTAGE - COMMENTS
B999 - Representation Letter
Not archived · Council Link
DERRYNANE HILL GREEN - COMMENTS
B999 - Representation Letter
Not archived · Council Link
DESIGN AND ACCESS STATEMENT
B610-Supporting information
Not archived · Council Link
DISTRICT LEVEL LICENCING EMAIL
B610-Supporting information
Not archived · Council Link
DOVE HOUSE - COMMENTS
B999 - Representation Letter
Not archived · Council Link
DOVE HOUSE - COMMENTS
B999 - Representation Letter
Not archived · Council Link
DOVE HOUSE - COMMENTS
B999 - Representation Letter
Not archived · Council Link
DOVE HOUSE - COMMENTS
B999 - Representation Letter
Not archived · Council Link
DOVE HOUSE, THE ACORNS AND THE BRAMBLES - COMMENTS
B999 - Representation Letter
Not archived · Council Link
DRUCECROFT - COMMENTS
B999 - Representation Letter
Not archived · Council Link
ECC ECOLOGY - COMMENTS
B900-AP Consultation Replies
Not archived · Council Link
ECC EDUCATION - RESPONSE
B900-AP Consultation Replies
Not archived · Council Link
ECC HIGHWAYS - RESPONSE
B900-AP Consultation Replies
Not archived · Council Link
ECC HIGHWAYS - REVISED RESPONSE
B900-AP Consultation Replies
Not archived · Council Link
ECC SUDS - COMMENTS
B900-AP Consultation Replies
Not archived · Council Link
ECC SUDS - RESPONSE
B900-AP Consultation Replies
Not archived · Council Link
ECC SUDS - RESPONSE
B900-AP Consultation Replies
Not archived · Council Link
ECOLOGY REPORT
B610-Supporting information
Not archived · Council Link
EDWINA - COMMENTS
B999 - Representation Letter
Not archived · Council Link
EDWINA - COMMENTS
B999 - Representation Letter
Not archived · Council Link
ENVIRONMENTAL HEALTH - RESPONSE
B900-AP Consultation Replies
Not archived · Council Link
ESSEX POLICE - RESPONSE
B900-AP Consultation Replies
Not archived · Council Link
FAIRWATER CONNECTIONS RESPONSE TO OFWAT CHARGIN RULES CONSULTATION
B610-Supporting information
Not archived · Council Link
FOUL SEWAGE AND UTILITIES ASSESSMENT
B610-Supporting information
Not archived · Council Link
FOUL SEWER NOTE
B610-Supporting information
Not archived · Council Link
GARAGES PLANS AND ELEVATIONS
B020-Plan
Not archived · Council Link
GRASSHOPPERS - COMMENTS
B999 - Representation Letter
Not archived · Council Link
GRASSHOPPERS - COMMENTS
B999 - Representation Letter
Not archived · Council Link
GREAT CRESTED NEWT IMPACT ASSESSMENT AND CONSERVATION PAYMENT CERTIFICATE
B610-Supporting information
Not archived · Council Link
GREEN GABLE - COMMENTS
B999 - Representation Letter
Not archived · Council Link
GREEN GABLE - COMMENTS
B999 - Representation Letter
Not archived · Council Link
GREEN OAK BARN - COMMENTS
B999 - Representation Letter
Not archived · Council Link
GREENFIELD RUN OFF RATE ESTIMATION TOOL
B610-Supporting information
Not archived · Council Link
GREENSCROFT - COMMENTS
B999 - Representation Letter
Not archived · Council Link
HAWTHORNS - COMMENTS
B999 - Representation Letter
Not archived · Council Link
HAWTHORNS - COMMENTS
B999 - Representation Letter
Not archived · Council Link
HEDGEROW COTTAGE - COMMENTS
B999 - Representation Letter
Not archived · Council Link
HEDGEROW COTTAGE - COMMENTS
B999 - Representation Letter
Not archived · Council Link
HEDGEROW COTTAGE - COMMENTS - PHOTO
B999 - Representation Letter
Not archived · Council Link
HEDGEROW COTTAGE - FURTHER COMMENTS
B999 - Representation Letter
Not archived · Council Link
HEDGEROW COTTAGE - FURTHER COMMENTS - PHOTO 1
B999 - Representation Letter
Not archived · Council Link
HEDGEROW COTTAGE - FURTHER COMMENTS - PHOTO 2
B999 - Representation Letter
Not archived · Council Link
HEDGEROW COTTAGE - FURTHER COMMENTS - PHOTO 3
B999 - Representation Letter
Not archived · Council Link
HEDGEROW COTTAGE - FURTHER COMMENTS - PHOTO 4
B999 - Representation Letter
Not archived · Council Link
HEDGEROW COTTAGE - FURTHER COMMENTS - PHOTO 5
B999 - Representation Letter
Not archived · Council Link
HEDGEROW COTTAGE - FURTHER COMMENTS - PHOTO 6
B999 - Representation Letter
Not archived · Council Link
HELEGRENE HOUSE - COMMENTS
B999 - Representation Letter
Not archived · Council Link
HERITAGE IMPACT ASSESSMENT
B610-Supporting information
Not archived · Council Link
HIGHFIELDS - COMMENTS
B999 - Representation Letter
Not archived · Council Link
HIGHGATE HOUSE - COMMENTS
B999 - Representation Letter
Not archived · Council Link
HIGHGATE HOUSE - COMMENTS
B999 - Representation Letter
Not archived · Council Link
HILL GREEN FARM COTTAGE - COMMENTS
B999 - Representation Letter
Not archived · Council Link
HILL GREEN FARMHOUSE - COMMENTS
B999 - Representation Letter
Not archived · Council Link
HILL GREEN FARMHOUSE - COMMENTS
B999 - Representation Letter
Not archived · Council Link
HILLBERRY - COMMENTS
B999 - Representation Letter
Not archived · Council Link
HILLSIDE - COMMENTS
B999 - Representation Letter
Not archived · Council Link
HYAWAY HILL - COMMENTS
B999 - Representation Letter
Not archived · Council Link
HYDRAULIC MODELLING (HALF DRAIN TIME)
B610-Supporting information
Not archived · Council Link
HYDRAULIC MODELLING 1
B610-Supporting information
Not archived · Council Link
HYDRAULIC MODELLING 2
B610-Supporting information
Not archived · Council Link
KEEPING CLAVERING RURAL - COMMENTS
B999 - Representation Letter
Not archived · Council Link
KEMPS - COMMENTS
B999 - Representation Letter
Not archived · Council Link
KEMPS - COMMENTS
B999 - Representation Letter
Not archived · Council Link
LANDSCAPE AND VISUAL APPRAISAL
B610-Supporting information
Not archived · Council Link
LANDSCAPE AND VISUAL APPRAISAL - FIGURES
B610-Supporting information
Not archived · Council Link
LANDSCAPE AND VISUAL APPRAISAL - PHOTO SHEETS 1 OF 3
B610-Supporting information
Not archived · Council Link
LANDSCAPE AND VISUAL APPRAISAL - PHOTO SHEETS 2 OF 3
B610-Supporting information
Not archived · Council Link
LANDSCAPE AND VISUAL APPRAISAL - PHOTO SHEETS 3 OF 3
B610-Supporting information
Not archived · Council Link
LANTERN THATCH - COMMENTS
B999 - Representation Letter
Not archived · Council Link
LAURELS - COMMENTS
B999 - Representation Letter
Not archived · Council Link
LAURELS HILL GREEN - COMMENTS
B999 - Representation Letter
Not archived · Council Link
LITTLE PADDOCKS - COMMENTS
B999 - Representation Letter
Not archived · Council Link
LOCATION PLAN
B020-Plan
Not archived · Council Link
NHS HERT AND WEST ESSEX - RESPONSE
B900-AP Consultation Replies
Not archived · Council Link
NHS HERTS & WEST ESSEX - COMMENTS
B900-AP Consultation Replies
Not archived · Council Link
OAKWOODS - COMMENTS
B999 - Representation Letter
Not archived · Council Link
PENDEEN - COMMENTS
B999 - Representation Letter
Not archived · Council Link
PIPPINS VIEW - COMMENTS
B999 - Representation Letter
Not archived · Council Link
PLACE SERVICE ECOLOGY - RESPONSE
B900-AP Consultation Replies
Not archived · Council Link
PLACE SERVICE ECOLOGY - REVISED RESPONSE
B900-AP Consultation Replies
Not archived · Council Link
PLACE SERVICES ARCHAEOLOGICAL ADVICE - RESPONSE
B900-AP Consultation Replies
Not archived · Council Link
PLANNING STATEMENT
B610-Supporting information
Not archived · Council Link
PLOT 1 AND 2 PLANS AND ELEVATIONS
B020-Plan
Not archived · Council Link
PLOT 11 PLANS AND ELEVATIONS
B020-Plan
Not archived · Council Link
PLOT 14 AND 15 PLANS AND ELEVATIONS
B020-Plan
Not archived · Council Link
PLOT 16 PLANS AND ELEVATIONS
B020-Plan
Not archived · Council Link
PLOT 19 PLANS AND ELEVATIONS
B020-Plan
Not archived · Council Link
PLOT 20 PLANS AND ELEVATIONS
B020-Plan
Not archived · Council Link
PLOT 21 PLANS AND ELEVATIONS
B020-Plan
Not archived · Council Link
PLOT 22 PLANS AND ELEVATIONS
B020-Plan
Not archived · Council Link
PLOT 23 PLANS AND ELEVATIONS
B020-Plan
Not archived · Council Link
PLOT 24 PLANS AND ELEVATIONS
B020-Plan
Not archived · Council Link
PLOT 25 PLANS AND ELEVATIONS
B020-Plan
Not archived · Council Link
PLOT 26 PLANS AND ELEVATIONS
B020-Plan
Not archived · Council Link
PLOT 27 PLANS AND ELEVATIONS
B020-Plan
Not archived · Council Link
PLOT 28 PLANS AND ELEVATIONS
B020-Plan
Not archived · Council Link
PLOT 3 PLANS AND ELEVATIONS
B020-Plan
Not archived · Council Link
PLOT 4 PLANS AND ELEVATIONS
B020-Plan
Not archived · Council Link
PLOT 5 PLANS AND ELEVATIONS
B020-Plan
Not archived · Council Link
PLOT 6 PLANS AND ELEVATIONS
B020-Plan
Not archived · Council Link
PLOT 7 PLANS AND ELEVATIONS
B020-Plan
Not archived · Council Link
PLOT 8 PLANS AND ELEVATIONS
B020-Plan
Not archived · Council Link
PLOTS 12 AND 13 PLANS AND ELEVATIONS
B020-Plan
Not archived · Council Link
PLOTS 17 AND 18 PLANS AND ELEVATIONS
B020-Plan
Not archived · Council Link
PLOTS 9 AND 10 PLANS AND ELEVATIONS
B020-Plan
Not archived · Council Link
POND COTTAGE - COMMENTS
B999 - Representation Letter
Not archived · Council Link
POND COTTAGE - COMMENTS
B999 - Representation Letter
Not archived · Council Link
POND COTTAGE - COMMENTS
B999 - Representation Letter
Not archived · Council Link
POND COTTAGE - COMMENTS
B999 - Representation Letter
Not archived · Council Link
POPPY COTTAGE - COMMENTS
B999 - Representation Letter
Not archived · Council Link
RESPONSE TO ECOLOGY
B610-Supporting information
Not archived · Council Link
RESPONSE TO HOUSING OFFICER
B610-Supporting information
Not archived · Council Link
RESPONSE TO LLFA
B610-Supporting information
Not archived · Council Link
RESPONSE TO LLFA 2
B610-Supporting information
Not archived · Council Link
RESPONSE TO LLFA 3
B610-Supporting information
Not archived · Council Link
RESPONSE TO LLFA 4
B610-Supporting information
Not archived · Council Link
REVISED BASELINE HABITATS MAP
B020-Plan
Not archived · Council Link
REVISED BIODIVERSITY ENHANCEMENT PLAN
B020-Plan
Not archived · Council Link
REVISED BIODIVERSITY NET GAIN ASSESSMENT
B610-Supporting information
Not archived · Council Link
REVISED FLOOD RISK ASSESSMENT COMBINING DRAINAGE AND SUDS STATEMENT
B610-Supporting information
Not archived · Council Link
REVISED FLOOD RISK ASSESSMENT COMBINING DRAINAGE AND SUDS STATEMENT
B610-Supporting information
Not archived · Council Link
REVISED GREENFIELD RUNOFF RATE
B610-Supporting information
Not archived · Council Link
REVISED PROPOSED DRAINAGE CONSTRUCTION DETAILS
B020-Plan
Not archived · Council Link
REVISED PROPOSED DRAINAGE CONSTRUCTION DETAILS
B020-Plan
Not archived · Council Link
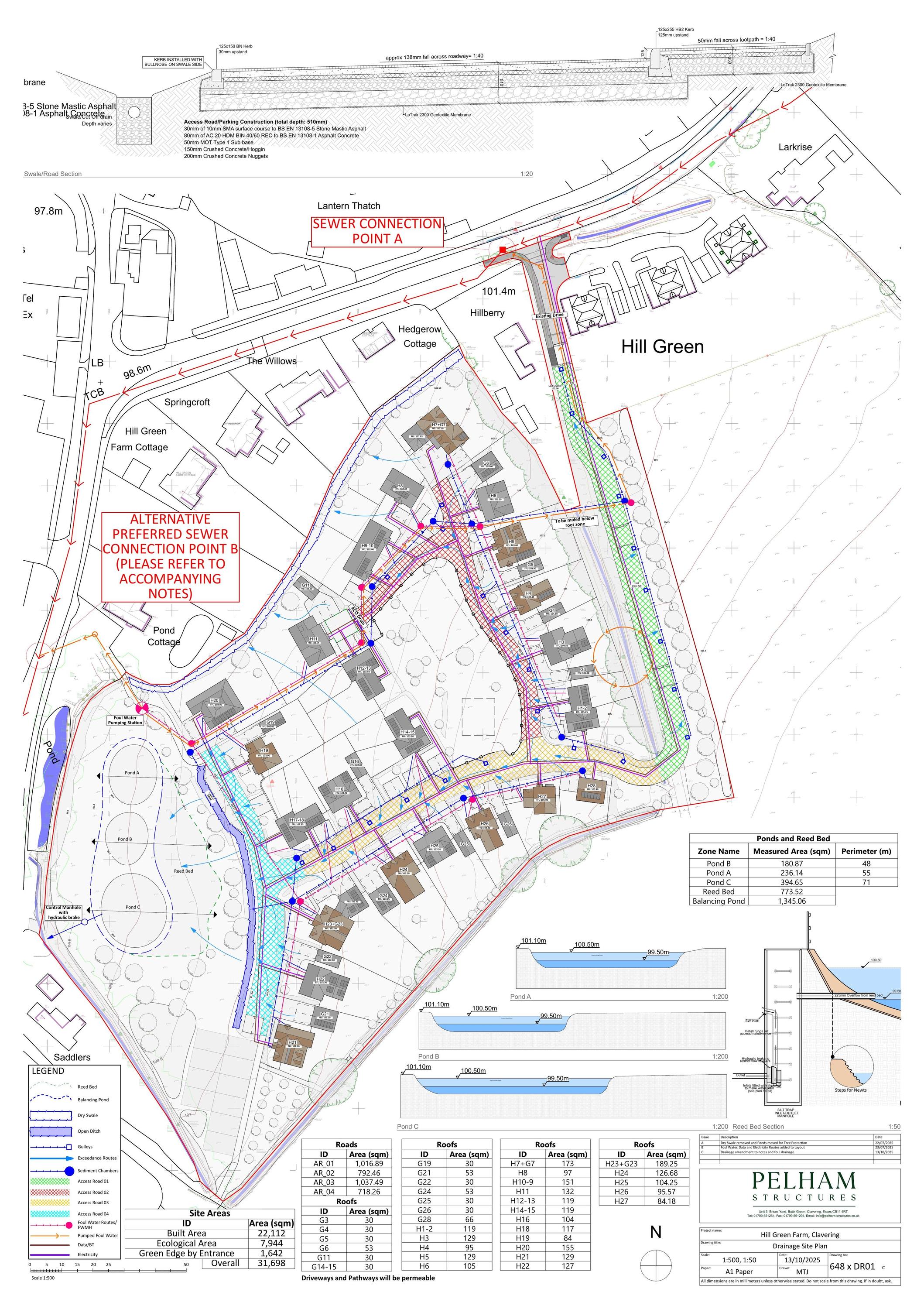
REVISED PROPOSED DRAINAGE GENERAL ARRANGEMENT PLAN
B020-Plan
Not archived · Council Link
REVISED PROPOSED DRAINAGE GENERAL ARRANGEMENT PLAN.
B020-Plan
Not archived · Council Link
REVISED PROPOSED SURFACE WATER CATCHMENT PLAN
B020-Plan
Not archived · Council Link
REVISED PROPOSED SURFACE WATER CATCHMENT PLANS
B020-Plan
Not archived · Council Link
REVISED PUBLIC AND PRIVATE AREAS
B020-Plan
Not archived · Council Link
B020-Plan
Archived · Council Link
REVISED TRANSPORT STATEMENT
B610-Supporting information
Not archived · Council Link
REVISED TRANSPORT STATEMENT
B610-Supporting information
Not archived · Council Link
REVISED TREE PROTECTION AREAS
B020-Plan
Not archived · Council Link
REVISED TREE SECURITY FENCING
B020-Plan
Not archived · Council Link
REVISED TYPES OF HOUSING
B020-Plan
Not archived · Council Link
RIVINGTON - COMMENTS
B999 - Representation Letter
Not archived · Council Link
SADDLERS HILL - COMMENTS
B999 - Representation Letter
Not archived · Council Link
SAPHAL - COMMENTS
B999 - Representation Letter
Not archived · Council Link
SELF BUILD AND CUSTOM PLOTS 21-26 DESIGN CODE
B610-Supporting information
Not archived · Council Link
B020-Plan
Archived · Council Link
SKYLARKS - COMMENTS
B999 - Representation Letter
Not archived · Council Link
SPRINGCROFT - COMMENTS
B999 - Representation Letter
Not archived · Council Link
STATEMENT OF COMMUNITY INVOLVEMENT
B610-Supporting information
Not archived · Council Link
STREET ELEVATIONS
B020-Plan
Not archived · Council Link
SUDS - RESPONSE
B900-AP Consultation Replies
Not archived · Council Link
SUMMER HOUSE - COMMENTS (HARD COPY)
B999 - Representation Letter
Not archived · Council Link
SUPERSEDED - AREAS
B020-Plan
Not archived · Council Link
SUPERSEDED - BASELINE HABITATS MAP
B020-Plan
Not archived · Council Link
SUPERSEDED - BIODIVERSITY ENHANCEMENT PLAN
B610-Supporting information
Not archived · Council Link
SUPERSEDED - BIODIVERSITY ENHANCEMENT PLAN
B020-Plan
Not archived · Council Link
SUPERSEDED - BIODIVERSITY NET GAIN ASSESSMENT
B610-Supporting information
Not archived · Council Link
SUPERSEDED - FLOOD RISK ASSESSMENT COMBINING DRAINAGE AND SUDS STATEMENT
B610-Supporting information
Not archived · Council Link
SUPERSEDED - GREENFIELD RUN OFF RATE ESTIMATION TOOL
B610-Supporting information
Not archived · Council Link
SUPERSEDED - PROPOSED DRAINAGE CONSTRUCTION DETAILS
B020-Plan
Not archived · Council Link
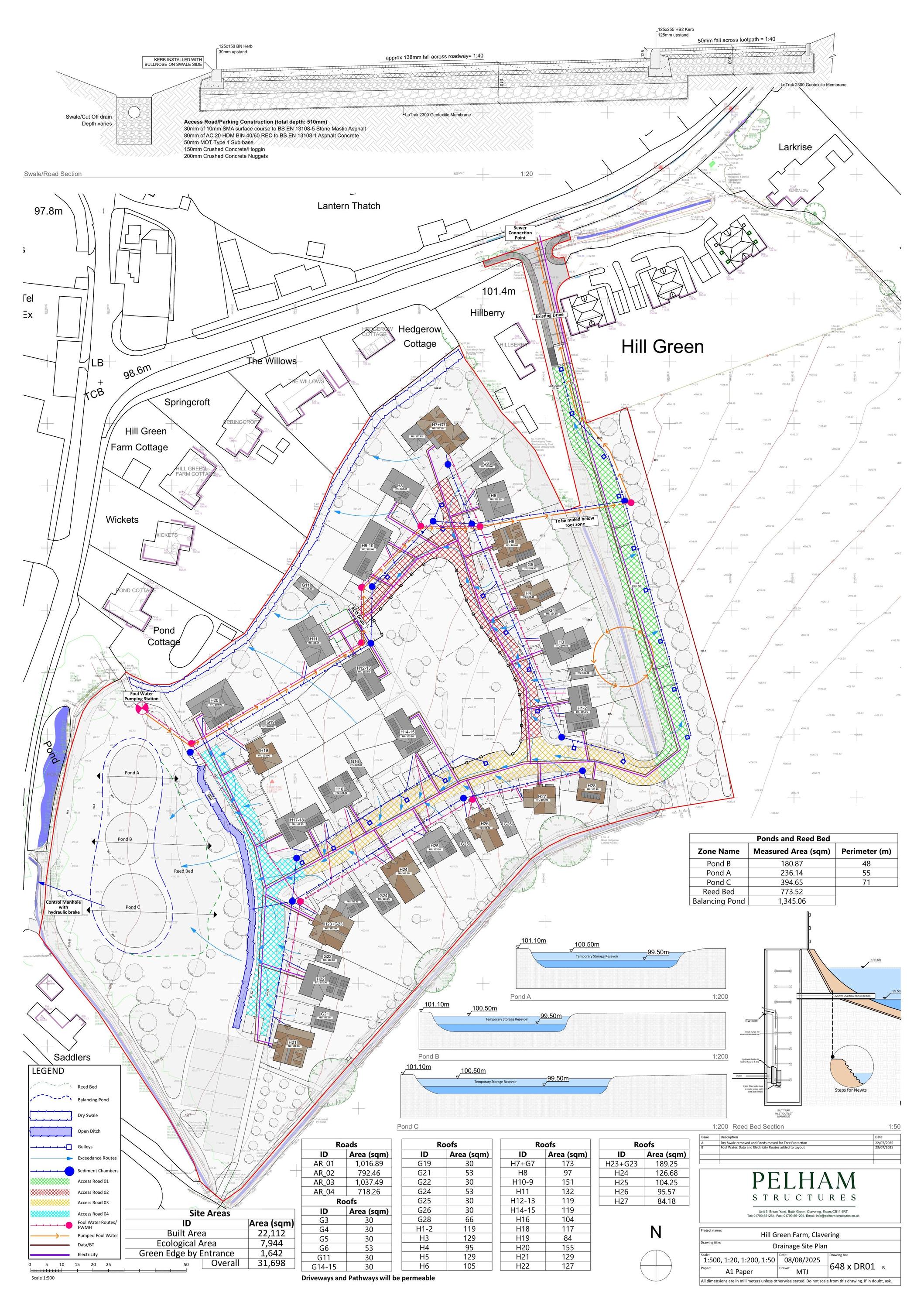
SUPERSEDED - PROPOSED DRAINAGE GENERAL ARRANGEMENT PLAN
B020-Plan
Not archived · Council Link
SUPERSEDED - PROPOSED SURFACE WATER CATCHMENT PLANS
B020-Plan
Not archived · Council Link
B020-Plan
Archived · Council Link
SUPERSEDED - TRANSPORT STATEMENT
B610-Supporting information
Not archived · Council Link
SUPERSEDED - TREE PROTECTION AREAS
B020-Plan
Not archived · Council Link
SUPERSEDED - TREE SECURITY FENCING
B020-Plan
Not archived · Council Link
SUPERSEDED - TYPES OF HOUSING
B020-Plan
Not archived · Council Link
SUPERSEDED FLOOD RISK ASSESSMENT COMBINING DRAINAGE AND SUDS STATEMENT
B610-Supporting information
Not archived · Council Link
SUPERSEDED PROPOSED DRAINAGE CONSTRUCTION DETAILS
B020-Plan
Not archived · Council Link
SUPERSEDED PROPOSED DRAINAGE GENERAL ARRANGEMENT PLAN
B020-Plan
Not archived · Council Link
SUPERSEDED PROPOSED SURFACE WATER CATCHMENT PLAN
B020-Plan
Not archived · Council Link
SUPERSEDED REVISED TRANSPORT STATEMENT
B610-Supporting information
Not archived · Council Link
SUPERSEDED SW MODEL FEH
B610-Supporting information
Not archived · Council Link
SUPERSEDED SW MODEL FSR
B610-Supporting information
Not archived · Council Link
SUPERSEDED SW MODEL HALF DRAIN TIMES
B610-Supporting information
Not archived · Council Link
SW MODEL FEH
B610-Supporting information
Not archived · Council Link
SW MODEL FSR
B610-Supporting information
Not archived · Council Link
SW MODEL HALF DRAIN TIMES
B610-Supporting information
Not archived · Council Link
THAMES WATER - RESPONSE
B900-AP Consultation Replies
Not archived · Council Link
THAMES WATER - RESPONSE
B900-AP Consultation Replies
Not archived · Council Link
THAMES WATER - RESPONSE
B900-AP Consultation Replies
Not archived · Council Link
THE ACORNS - COMMENTS
B999 - Representation Letter
Not archived · Council Link
THE ACORNS - COMMENTS
B999 - Representation Letter
Not archived · Council Link
THE ACORNS - COMMENTS
B999 - Representation Letter
Not archived · Council Link
THE ALMOND TREE - COMMENTS
B999 - Representation Letter
Not archived · Council Link
THE BRAMBLES - COMMENTS
B999 - Representation Letter
Not archived · Council Link
THE BRAMBLES - COMMENTS
B999 - Representation Letter
Not archived · Council Link
THE BRAMBLES - COMMENTS
B999 - Representation Letter
Not archived · Council Link
THE CHAPEL - COMMENTS
B999 - Representation Letter
Not archived · Council Link
THE FOI - COMMENTS
B999 - Representation Letter
Not archived · Council Link
THE HAZELS - COMMENTS
B999 - Representation Letter
Not archived · Council Link
THE MALTINGS - COMMENTS
B999 - Representation Letter
Not archived · Council Link
THE MAPLES - COMMENTS
B999 - Representation Letter
Not archived · Council Link
THE SEVENS - COMMENTS
B999 - Representation Letter
Not archived · Council Link
THE VIEWS - COMMENTS
B999 - Representation Letter
Not archived · Council Link
TIMBERSCOMBE - COMMENTS
B999 - Representation Letter
Not archived · Council Link
TRANSPORT STATEMENT
B610-Supporting information
Not archived · Council Link
TREE PROTECTION AREAS
B020-Plan
Not archived · Council Link
TREE SECURITY FENCING
B020-Plan
Not archived · Council Link
TYPES OF HOUSING
B020-Plan
Not archived · Council Link
UDC CONSERVATION - COMMENTS
B900-AP Consultation Replies
Not archived · Council Link
UDC HOUSING - RESPONSE
B900-AP Consultation Replies
Not archived · Council Link
UDC HOUSING - RESPONSE
B900-AP Consultation Replies
Not archived · Council Link
UDC URBAN DESIGN - COMMENTS
B900-AP Consultation Replies
Not archived · Council Link
WAKEFARES - COMMENTS
B999 - Representation Letter
Not archived · Council Link
WICKETS - COMMENTS
B999 - Representation Letter
Not archived · Council Link
WICKETS - COMMENTS
B999 - Representation Letter
Not archived · Council Link
WICKETS - COMMENTS
B999 - Representation Letter
Not archived · Council Link
WICKETS - COMMENTS
B999 - Representation Letter
Not archived · Council Link
WICKETS - COMMENTS
B999 - Representation Letter
Not archived · Council Link
WICKETS - COMMENTS
B999 - Representation Letter
Not archived · Council Link
WICKETS - COMMENTS (HARD COPY)
B999 - Representation Letter
Not archived · Council Link
WICKETS - FURTHER COMMENTS
B999 - Representation Letter
Not archived · Council Link
WILLOW BANK COTTAGE - COMMENTS
B999 - Representation Letter
Not archived · Council Link
WILLOW BANK COTTAGE - COMMENTS
B999 - Representation Letter
Not archived · Council Link
WINDY RIDGE - COMMENTS
B999 - Representation Letter
Not archived · Council Link
WITHERS (BEHALF OF HILL GREEN FARM) - COMMENTS
B999 - Representation Letter
Not archived · Council Link
WITHERS (BEHALF OF HILL GREEN FARM) - COMMENTS - PHOTOGRAPHIC EVEIDENCES
B999 - Representation Letter
Not archived · Council Link
WREN HOUSE - COMMENTS
B999 - Representation Letter
Not archived · Council Link
WYNDHAM HOUSE - COMMENTS
B999 - Representation Letter
Not archived · Council Link
WYNDHAM HOUSE - COMMENTS
B999 - Representation Letter
Not archived · Council Link

Take Action

Make your voice heard. Authorities need to hear from people who support new homes.

✉️ Write Email in Support View on Council Portal