← Back to Uttlesford District Council

Status

Approved
Received
12 Sep 2025
New dwellings
n/a

Full Proposal

Change of use and extension from commercial, business and service (Use Class E) to 1 no. dwelling (Use Class C3) (revised scheme to that approved under UTT/24/2748/PAM3)

Documents

ACFULZ - CONDITIONAL APPROVAL FUL
Decision Notice
Not archived · Council Link
ACKAPP STANDARD ACKNOWLEDGEMENT
Correspondence
Not archived · Council Link
APPLICATION FORM
B610-Supporting information
Not archived · Council Link
BAA AERODROME SAFEGUARDING - RESPONSE
B900-AP Consultation Replies
Not archived · Council Link
BIODIVERSITY VALIDATION CHECKLIST
B610-Supporting information
Not archived · Council Link
CONSTR - CONSTRAINTS LIST
Report
Not archived · Council Link
ECC HIGHWAYS - RESPONSE
B900-AP Consultation Replies
Not archived · Council Link
ENVIRONMENTAL HEALTH - COMMENTS
B900-AP Consultation Replies
Not archived · Council Link
EXISTING BLOCK PLAN
B020-Plan
Not archived · Council Link
EXISTING PLANS AND ELEVATIONS
B020-Plan
Not archived · Council Link
LOCATION PLAN
B020-Plan
Not archived · Council Link
OTHER
B110-Officers Reports
Not archived · Council Link
PROPOSED BLOCK PLAN
B020-Plan
Not archived · Council Link
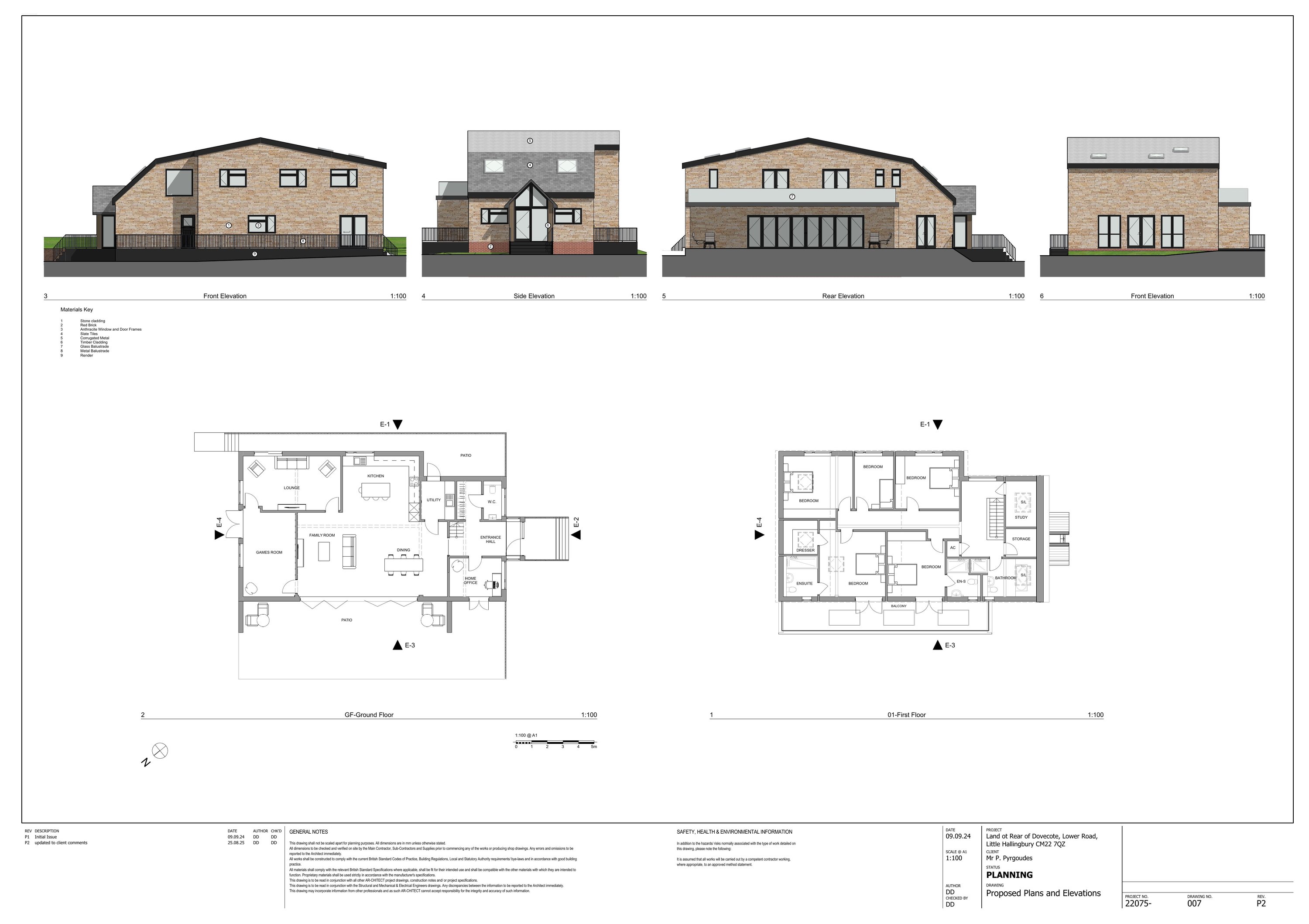
B020-Plan
Archived · Council Link
PS ECOLOGY - RESPONSE
B900-AP Consultation Replies
Not archived · Council Link
SITE PHOTOGRAPHS
B610-Supporting information
Not archived · Council Link
SITE PHOTOGRAPHS
B610-Supporting information
Not archived · Council Link
SITE PHOTOGRAPHS
B610-Supporting information
Not archived · Council Link
SITE PHOTOGRAPHS
B610-Supporting information
Not archived · Council Link
SUPPORTING DOCUMENT RE BNG EXEMPTION
B610-Supporting information
Not archived · Council Link
SUPPORTING DOCUMENT RE BNG EXEMPTION
B610-Supporting information
Not archived · Council Link
TRANSPORT STATEMENT
B610-Supporting information
Not archived · Council Link

Take Action

Make your voice heard. Authorities need to hear from people who support new homes.

✉️ Write Email in Support View on Council Portal