← Back to Uttlesford District Council

Status

Approved
Received
17 Oct 2025
New dwellings
n/a

Full Proposal

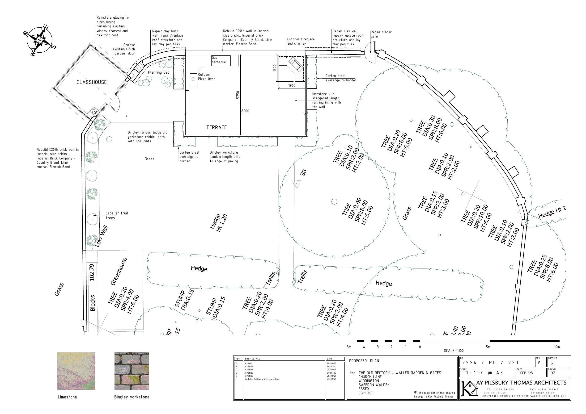
Removal of C20th brick walls and reinstatement with brick walls to match existing. Repair of clay lump and daub wall structures. Restoration of C20th Gothic style glasshouse. Construction of a terrace and outdoor cooking area.

Documents

ACHHFZ HHF CONDITIONAL APPROVAL
Decision Notice
Not archived · Council Link
ACKAPP STANDARD ACKNOWLEDGEMENT
Correspondence
Not archived · Council Link
APPLICATION FORM
B610-Supporting information
Not archived · Council Link
ARCHAEOLGICAL ADVICE - COMMENTS
B900-AP Consultation Replies
Not archived · Council Link
BIODIVERSITY CHECKLIST
B610-Supporting information
Not archived · Council Link
BLOCK PLAN
B020-Plan
Not archived · Council Link
CONSTR - CONSTRAINTS LIST
Report
Not archived · Council Link
DESIGN, HERITAGE AND ACCESS STATEMENT
B610-Supporting information
Not archived · Council Link
ECOLOGICAL SURVEY AND ASSESSMENT REPORT
B610-Supporting information
Not archived · Council Link
B020-Plan
Archived · Council Link
EXISTING WALL AND GATE ELEVATIONS
B020-Plan
Not archived · Council Link
LOCATION PLAN
B020-Plan
Not archived · Council Link
METHOD STATEMENT CLAY LUMP WALL REPAIR
B070-Additional Application Info
Not archived · Council Link
OTHER
B110-Officers Reports
Not archived · Council Link
B020-Plan
Archived · Council Link
WALL, GLASSHOUSE AND OUTDOOR KITCHEN - PROPOSED ELEVATIONS
B020-Plan
Not archived · Council Link

Take Action

Make your voice heard. Authorities need to hear from people who support new homes.

✉️ Write Email in Support View on Council Portal