← Back to Uttlesford District Council
UTT/25/2824/PAQ3
Uttlesford District Council · IDOX
Status
Approved
Received
20 Oct 2025
New dwellings
n/a
Summary
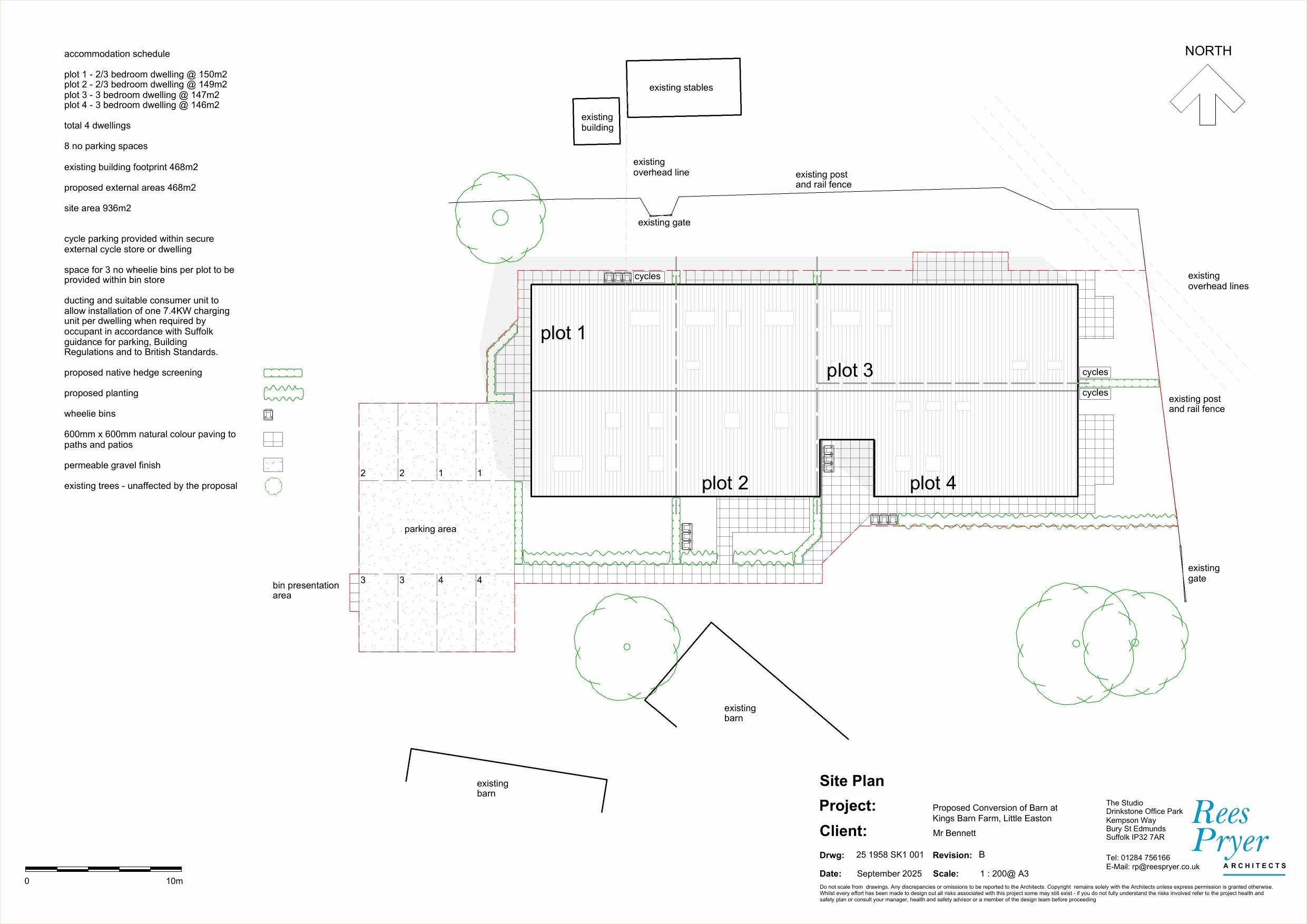
Change of use of agricultural building to four dwellings.
Full Proposal
Prior Notification of change of use of agricultural building to 4 no. dwellings
Documents
PHASE 1 - DESK STUDY AND PRELIMINARY RISK ASSESSMENT
B610-Supporting information
Not archived
· Council Link
PRELIMINARY ECOLOGICAL APPRAISAL AND ROOST ASSESSMENT
B610-Supporting information
Not archived
· Council Link
Take Action
Make your voice heard. Authorities need to hear from people who support new homes.