← Back to Uttlesford District Council
UTT/25/2840/FUL
Uttlesford District Council · IDOX
Status
Refused
Received
22 Oct 2025
New dwellings
n/a
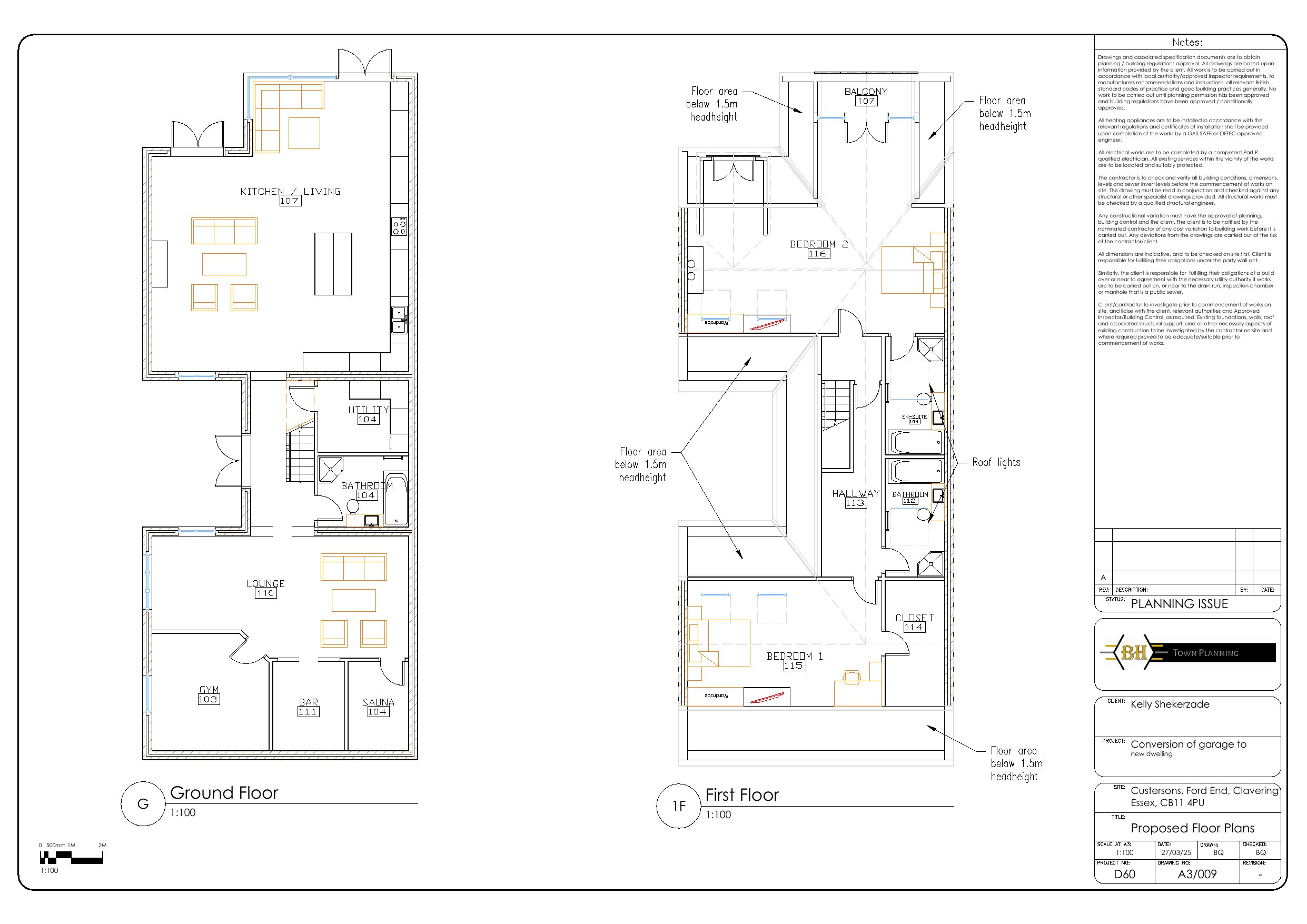
Full Proposal
Extension and conversion of garage to single dwelling (C3)
Documents
HISTORIC BUILDINGS AND CONSERVATION - RESPONSE
B900-AP Consultation Replies
Not archived
· Council Link
HISTORIC BUILDINGS AND CONSERVATION - RESPONSE
B900-AP Consultation Replies
Not archived
· Council Link
Take Action
Make your voice heard. Authorities need to hear from people who support new homes.