← Back to Uttlesford District Council

Status

Approved
Received
06 Nov 2025
New dwellings
n/a

Summary

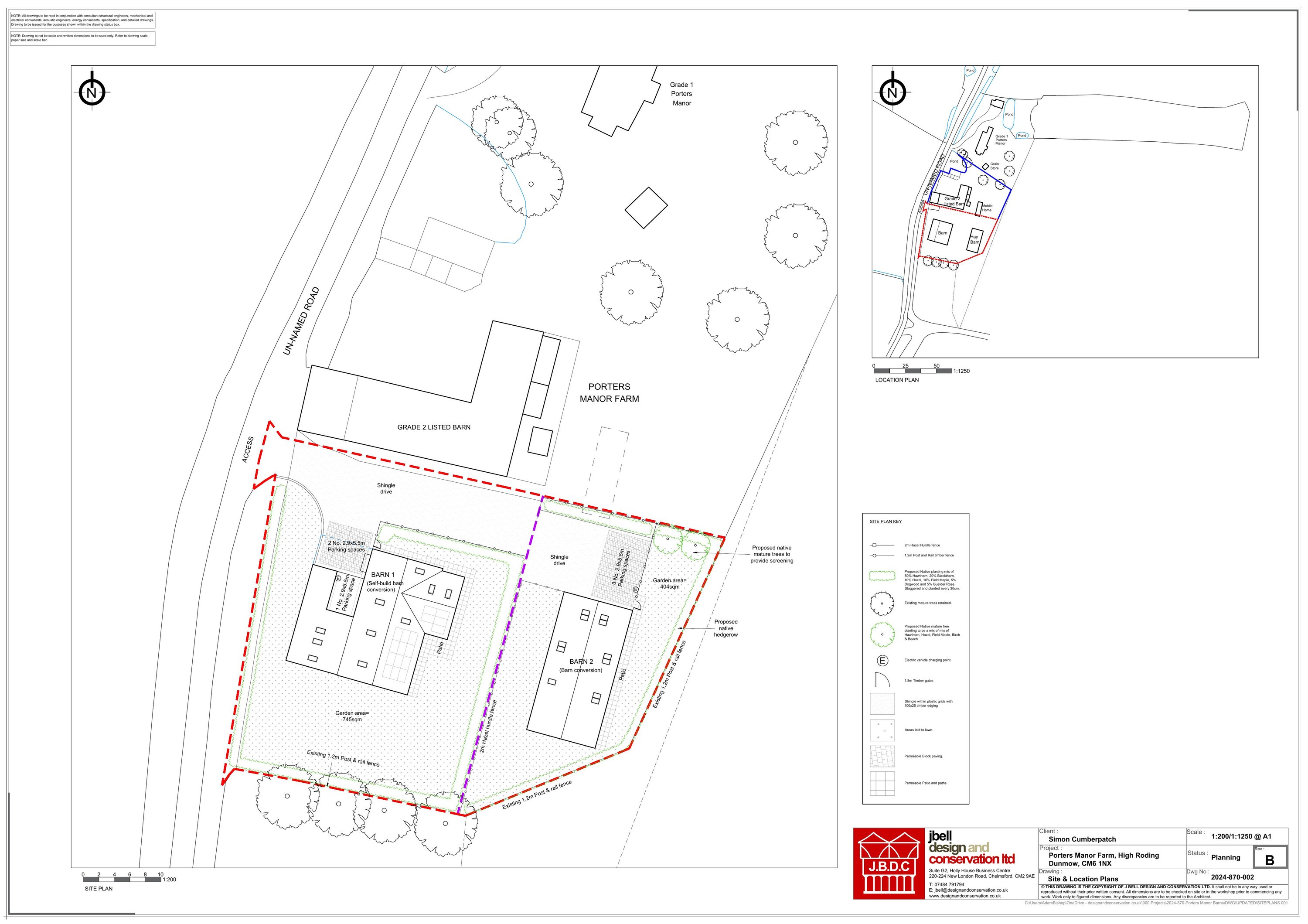
Conversion of two barns to two self-build dwellings.

Full Proposal

Conversion of 2 barns to two self-build dwellings

Documents

ACFULZ - CONDITIONAL APPROVAL FUL
Decision Notice
Not archived · Council Link
ACKAPP STANDARD ACKNOWLEDGEMENT
Correspondence
Not archived · Council Link
APPLICATION FORM
B610-Supporting information
Not archived · Council Link
BARN 1 - EXISTING PLANS
B020-Plan
Not archived · Council Link
BARN 1 - PROPOSED
B020-Plan
Not archived · Council Link
BARN 2 - EXISTING PLANS
B020-Plan
Not archived · Council Link
BIODIVERSITY VALIDATION CHECKLIST
B610-Supporting information
Not archived · Council Link
CONSTR - CONSTRAINTS LIST
Report
Not archived · Council Link
ENVIRONMENTAL HEALTH - RESPONSE
B900-AP Consultation Replies
Not archived · Council Link
ESSEX HIGHWAYS - RESPONSE
B900-AP Consultation Replies
Not archived · Council Link
B020-Plan
Archived · Council Link
GCN REPORT
B610-Supporting information
Not archived · Council Link
HISTORIC BUILDING AND CONSERVATION PLACE SERVICES - ADDITIONAL RESPONSE
B900-AP Consultation Replies
Not archived · Council Link
B020-Plan
Archived · Council Link
OTHER
B110-Officers Reports
Not archived · Council Link
PLANNING, HERITAGE, DESIGN, ACCESS AND TRANSPORT STATEMENT
B610-Supporting information
Not archived · Council Link
PRELIMINARY ECOLOGICAL APPRAISAL
B610-Supporting information
Not archived · Council Link
PROPOSED DWELLING - STEEL BARN
B020-Plan
Not archived · Council Link
PS ECOLOGY - RESPONSE
B900-AP Consultation Replies
Not archived · Council Link
REVISED PROPOSED DWELLING - STEEL BARN
B020-Plan
Not archived · Council Link
REVISED PROPOSED SITE AND LOCATION PLANS
B020-Plan
Not archived · Council Link
SUPERSEDED PROPOSED DWELLING - STEEL BARN
B020-Plan
Not archived · Council Link

Take Action

Make your voice heard. Authorities need to hear from people who support new homes.

✉️ Write Email in Support View on Council Portal