← Back to Uttlesford District Council

Status

Awaiting decision
Received
Last month
New dwellings
n/a

Full Proposal

Erection of 1no. 3 bedroom dwelling

Documents

100 CHERRY GARDEN LANE - COMMENTS
B999 - Representation Letter
Not archived · Council Link
124 CHERRY GARDEN LANE - COMMENTS
B999 - Representation Letter
Not archived · Council Link
157 CHERRY GARDEN LANE - COMMENTS
B999 - Representation Letter
Not archived · Council Link
159 CHERRY GARDEN LANE - COMMENTS
B999 - Representation Letter
Not archived · Council Link
163 CHERRY GARDEN LANE - COMMENTS
B999 - Representation Letter
Not archived · Council Link
171 CHERRY GARDEN LANE - COMMENTS
B999 - Representation Letter
Not archived · Council Link
1970'S TRANSFER PLAN
B020-Plan
Not archived · Council Link
46 FRAMBURY LANE - COMMENTS
B999 - Representation Letter
Not archived · Council Link
48 FRAMBURY LANE - COMMENTS
B999 - Representation Letter
Not archived · Council Link
54A FRAMBURY LANE - COMMENTS
B999 - Representation Letter
Not archived · Council Link
ACKAPP STANDARD ACKNOWLEDGEMENT
Correspondence
Not archived · Council Link
APPENDIX A DESIGN AND ACCESS STATEMENT
B610-Supporting information
Not archived · Council Link
APPENDIX B PRELIMINARY ECOLOGICAL APPRAISAL
B610-Supporting information
Not archived · Council Link
APPENDIX C BIODIVERSITY NET GAIN BASELINE REPORT
B610-Supporting information
Not archived · Council Link
APPENDIX D BNG METRIC - FINAL RESULTS (PDF)
B610-Supporting information
Not archived · Council Link
APPENDIX E ENVIRONMENT AGENCY FLOOD MAP
B610-Supporting information
Not archived · Council Link
APPENDIX F ANGLIAN WATER ASSETS MAP
B610-Supporting information
Not archived · Council Link
APPLICATION FORM
B610-Supporting information
Not archived · Council Link
BIODIVERSITY CHECKLIST
B610-Supporting information
Not archived · Council Link
BIODIVERSITY NET GAIN METRIC
B610-Supporting information
Not archived · Council Link
CERTIFICATE B
B610-Supporting information
Not archived · Council Link
CONSTR - CONSTRAINTS LIST
Report
Not archived · Council Link
DESIGN AND ACCESS STATEMENT
B610-Supporting information
Not archived · Council Link
DESIGN AND ACCESS STATEMENT APPENDIX A(FOR UTT/26/0010/FUL)
B610-Supporting information
Not archived · Council Link
DRAWING ISSUE REGISTER SHEET
B610-Supporting information
Not archived · Council Link
INDICATIVE PROPOSED DRAINAGE PLAN
B020-Plan
Not archived · Council Link
LOCATION PLAN
B020-Plan
Not archived · Council Link
ORIEL HOUSE - COMMENTS
B999 - Representation Letter
Not archived · Council Link
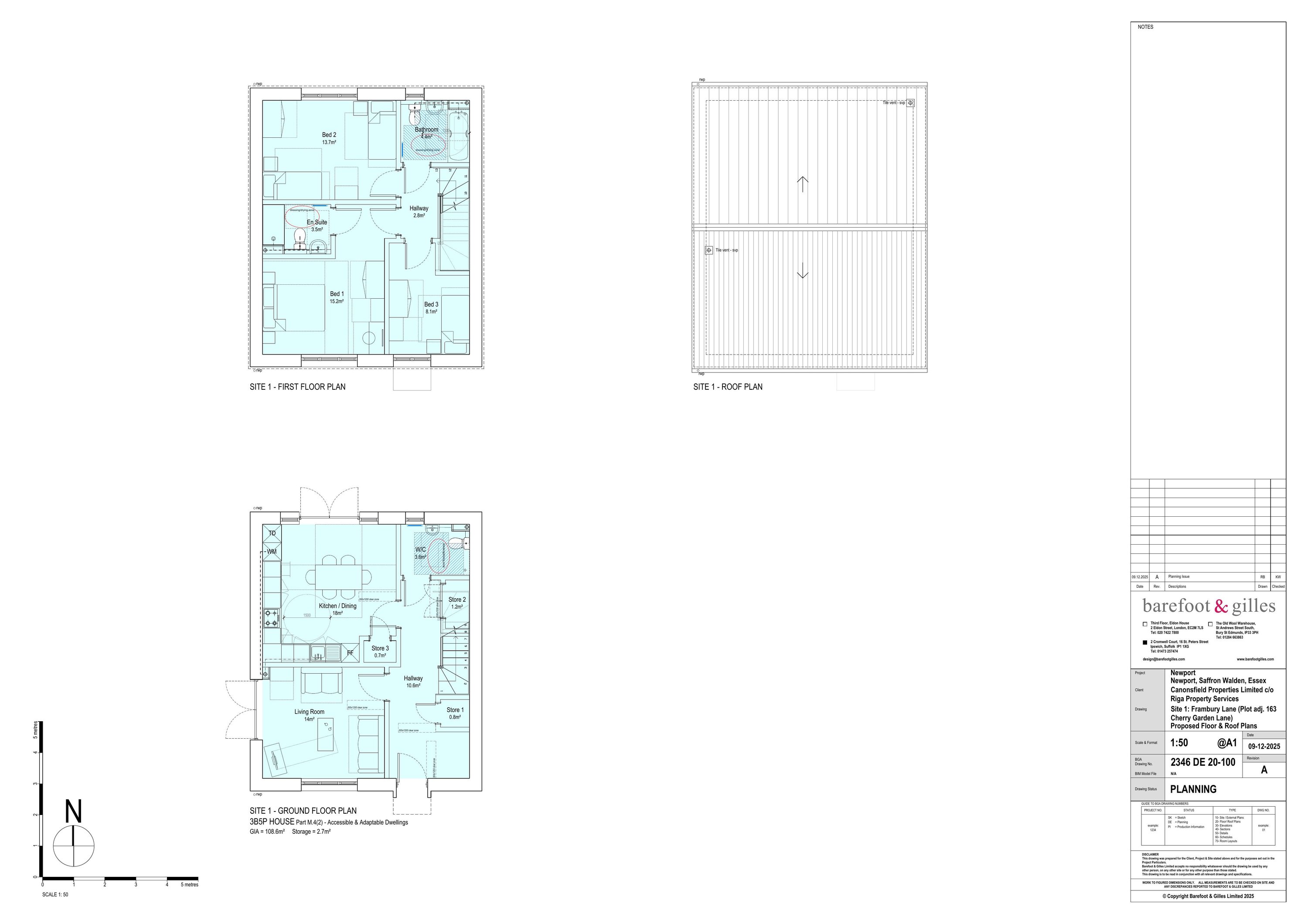
PROPOSED ELEVATIONS
B020-Plan
Not archived · Council Link
B020-Plan
Archived · Council Link
TRANSPORT STATEMENT
B610-Supporting information
Not archived · Council Link

Take Action

Make your voice heard. Authorities need to hear from people who support new homes.

✉️ Write Email in Support View on Council Portal