← Back to Uttlesford District Council

Status

Awaiting decision
Received
25 days ago
New dwellings
n/a

Full Proposal

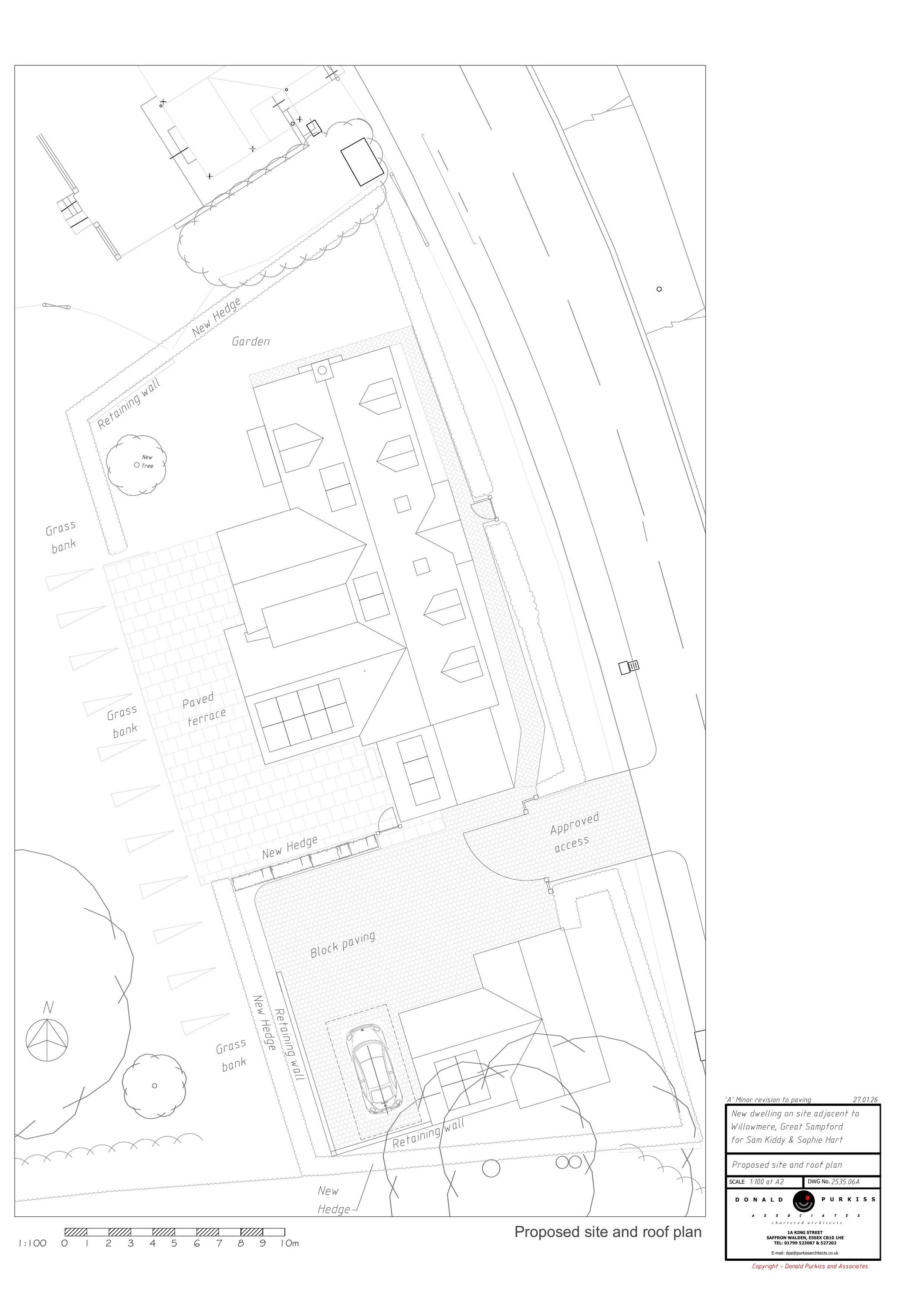
Details following outline application UTT/23/2394/OP for 1 no. new dwelling and detached garage - details of appearance, landscaping, layout and scale

Documents

ACKAPP STANDARD ACKNOWLEDGEMENT
Correspondence
Not archived · Council Link
APPLICATION FORM
B610-Supporting information
Not archived · Council Link
LOCATION AND BLOCK PLANS
B020-Plan
Not archived · Council Link
PLANNING STATEMENT
B610-Supporting information
Not archived · Council Link
PROPOSED EAST AND WEST ELEVATIONS
B020-Plan
Not archived · Council Link
B020-Plan
Archived · Council Link
PROPOSED GARAGE FLOOR PLAN AND ELEVATIONS
B020-Plan
Not archived · Council Link
PROPOSED NORTH AND SOUTH ELEVATIONS
B020-Plan
Not archived · Council Link
PROPOSED STREET ELEVATION (EAST)
B020-Plan
Not archived · Council Link
TOPOGRAPHIC SURVEY
B020-Plan
Not archived · Council Link

Take Action

Make your voice heard. Authorities need to hear from people who support new homes.

✉️ Write Email in Support View on Council Portal