← Back to Uttlesford District Council

Status

Awaiting decision
Received
20 days ago
New dwellings
n/a

Full Proposal

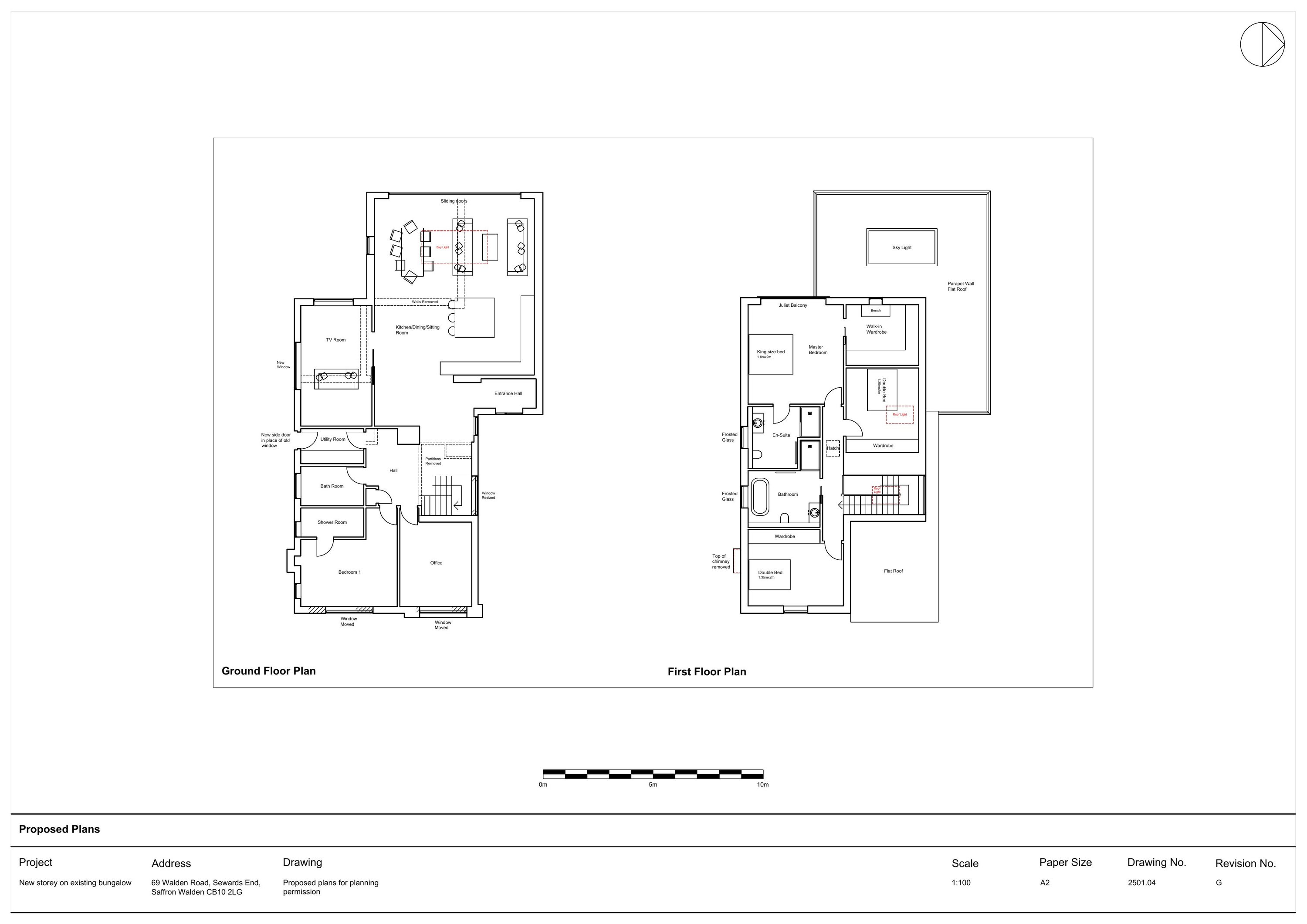
Remove main roof and add first floor storey. Extend ground floor extensions and replace pitched with flat roof. Windows/doors to be replaced/upgraded, chimney truncated and porch roof replaced by a door canopy

Documents

ACKAPP STANDARD ACKNOWLEDGEMENT
Correspondence
Not archived · Council Link
APPLICATION FORM
B610-Supporting information
Not archived · Council Link
BIODIVERSITY CHECKLIST
B610-Supporting information
Not archived · Council Link
CADENT GAS - RESPONSE
B900-AP Consultation Replies
Not archived · Council Link
CONSTR - CONSTRAINTS LIST
Report
Not archived · Council Link
EXISTING ELEVATIONS
B020-Plan
Not archived · Council Link
EXISTING GROUND FLOOR PLAN
B020-Plan
Not archived · Council Link
B020-Plan
Archived · Council Link
FULL PROPOSAL WORDING FROM APPLICATION FORM
B610-Supporting information
Not archived · Council Link
JUNE 2025 - ECOLOGICAL AND BAT ROOST ASSESSMENT
B610-Supporting information
Not archived · Council Link
LOCATION PLAN
B020-Plan
Not archived · Council Link
PROPOSED ACCESS AND PARKING
B020-Plan
Not archived · Council Link
PROPOSED ELEVATIONS.
B020-Plan
Not archived · Council Link
B020-Plan
Archived · Council Link
SITE AND LOCATION PLAN
B020-Plan
Not archived · Council Link
UKPN - LETTER
B900-AP Consultation Replies
Not archived · Council Link

Take Action

Make your voice heard. Authorities need to hear from people who support new homes.

✉️ Write Email in Support View on Council Portal