← Back to Uttlesford District Council

Status

Awaiting decision
Received
17 days ago
New dwellings
n/a

Full Proposal

Full planning application proposing the erection of 8 no. new dwellings

Documents

ACKAPP STANDARD ACKNOWLEDGEMENT
Correspondence
Not archived · Council Link
APPEAL DECISION APP/C1570/W/25/3364102)
B610-Supporting information
Not archived · Council Link
APPLICATION FORM
B610-Supporting information
Not archived · Council Link
ARBORICULTURAL IMPACT ASSESSMENT
B610-Supporting information
Not archived · Council Link
BIODIVERSITY NET GAIN METRIC
B610-Supporting information
Not archived · Council Link
BIODIVERSITY NET GAIN PLAN
B610-Supporting information
Not archived · Council Link
BIODIVERSITY VALIDATION CHECKLIST
B610-Supporting information
Not archived · Council Link
BNG POST DEVELOPMENT PLAN
B020-Plan
Not archived · Council Link
BNG PRE-DEVELOPMENT PLAN
B020-Plan
Not archived · Council Link
CONSTR - CONSTRAINTS LIST
Report
Not archived · Council Link
B020-Plan
Archived · Council Link
HERITAGE IMPACT ASSESSMENT
B610-Supporting information
Not archived · Council Link
LANDSCAPE AND VISUAL IMPACT ASSESSMENT
B610-Supporting information
Not archived · Council Link
LOCATION PLAN
B020-Plan
Not archived · Council Link
PHASE 1 ENVIRONMENTAL ASSESSMENT REPORT
B610-Supporting information
Not archived · Council Link
PLANNING STATEMENT
B610-Supporting information
Not archived · Council Link
PRELIMINARY ECOLOGICAL APPRAISAL AND ROOST ASSESSMENT
B610-Supporting information
Not archived · Council Link
PROPOSED 3D VIEWS TYPE B
B020-Plan
Not archived · Council Link
PROPOSED 3D VIEWS TYPE C
B020-Plan
Not archived · Council Link
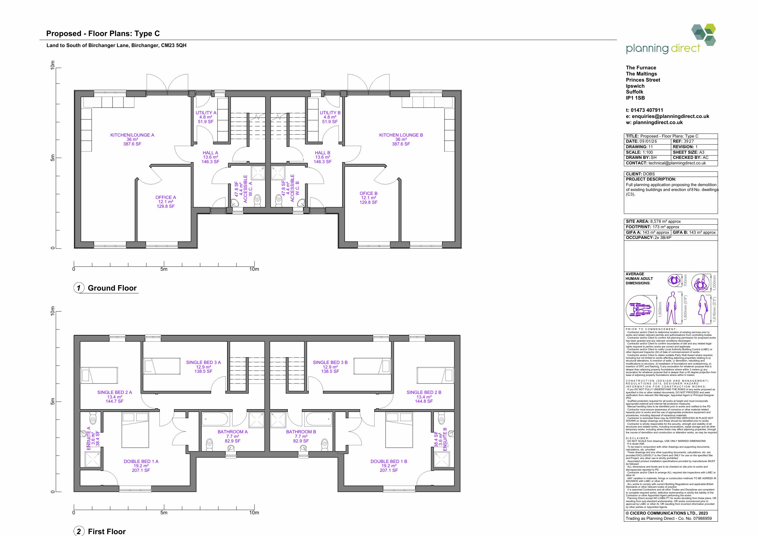
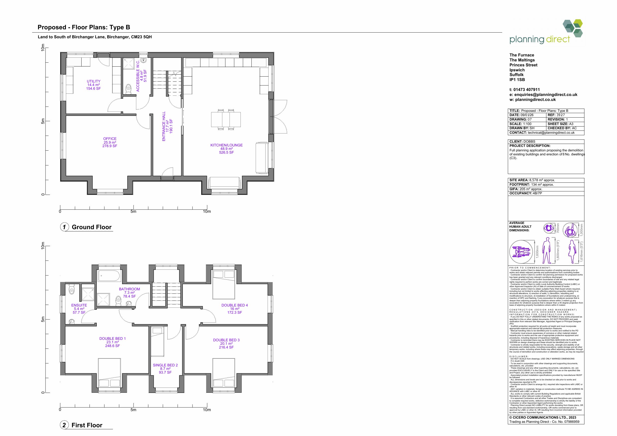
PROPOSED CARTLODGE FLOOR PLANS AND ELEVATIONS
B020-Plan
Not archived · Council Link
PROPOSED ELEVATIONS 1 TYPE B
B020-Plan
Not archived · Council Link
PROPOSED ELEVATIONS 1 TYPE C
B020-Plan
Not archived · Council Link
PROPOSED ELEVATIONS 2 TYPE B
B020-Plan
Not archived · Council Link
PROPOSED ELEVATIONS 2 TYPE C
B020-Plan
Not archived · Council Link
B020-Plan
Archived · Council Link
PROPOSED SOUTH ACCESS
B020-Plan
Not archived · Council Link
TRANSPORT STATEMENT
B610-Supporting information
Not archived · Council Link
UDC 5 YEAR HOUSING LAND SUPPLY CRITIQUE
B610-Supporting information
Not archived · Council Link

Take Action

Make your voice heard. Authorities need to hear from people who support new homes.

✉️ Write Email in Support View on Council Portal