← Back to Wakefield Council

Status

Awaiting decision
Received
02 Apr 2025
New dwellings
n/a

Summary

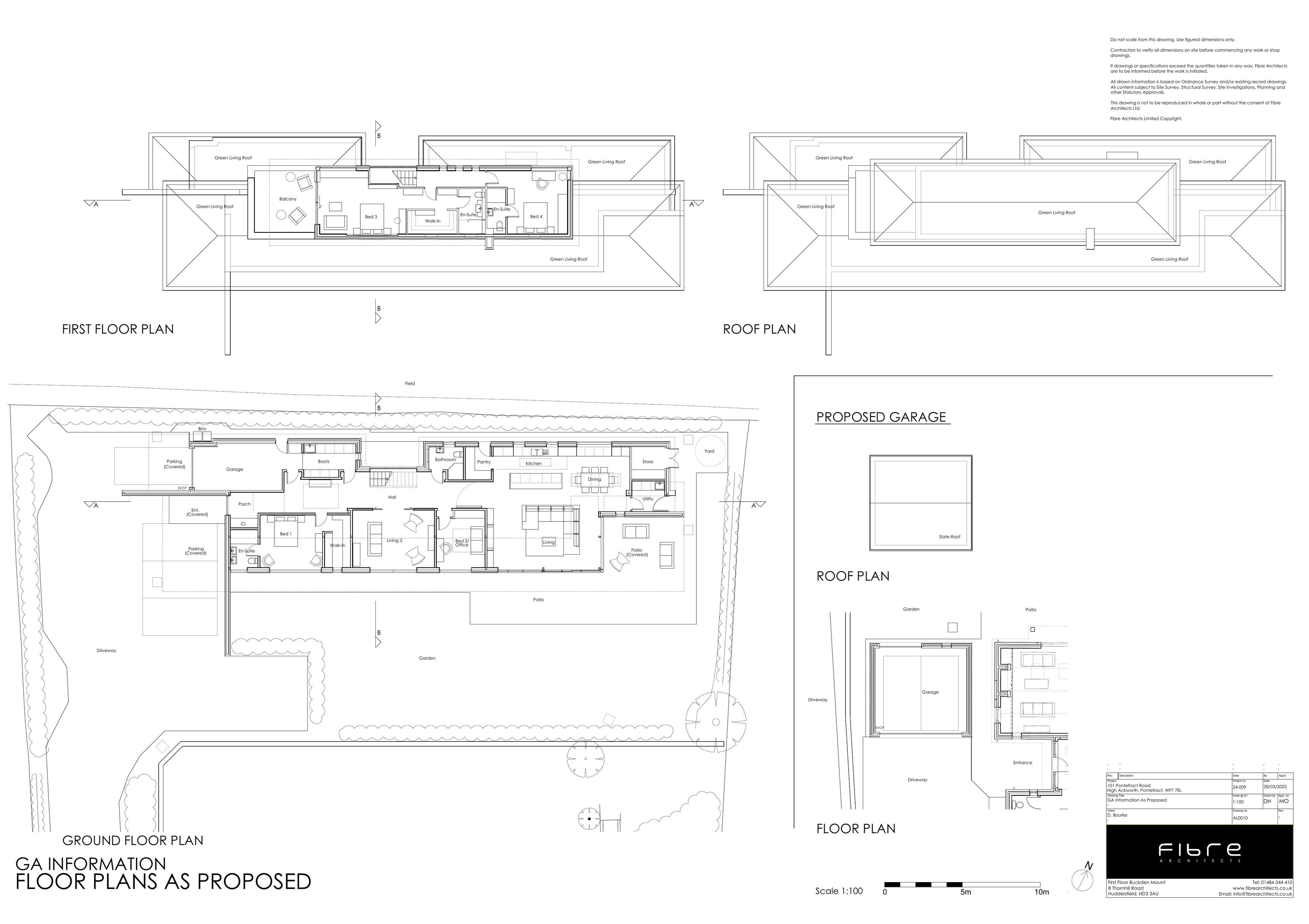
Demolish garage and construct a new detached self-build dwelling with associated works.

Full Proposal

Demolition of an existing detached garage and erection of a new detached self-build dwelling, and a new detached garage for the existing dwelling, with associated external works.

Documents

APPLICATIONFORMREDACTED
Application Form
Not archived · Council Link
APPRAISAL
Ecological Documentation
Not archived · Council Link
EXEMPTION DECLARATION FORM
Supporting Documentation
Not archived · Council Link
EXISTING LOCATION PLAN
Drawing
Not archived · Council Link
EXISTING PLANS
Drawing
Not archived · Council Link
Drawing
Archived · Council Link
HIGHWAYS DEVELOPMENT MANAGEMENT WAKEFIELD COUNCIL
Consultee Comment
Not archived · Council Link
IMPACT STATEMENT
Heritage Statement
Not archived · Council Link
PLANNING STATEMENT 101 PONTEFRACT ROAD HIGH ACKWORTH
Planning Statement
Not archived · Council Link
PROPOSED 3D IMAGES
Drawing
Not archived · Council Link
PROPOSED ELEVATIONS/SECTIONS
Drawing
Not archived · Council Link
Drawing
Archived · Council Link
Drawing
Archived · Council Link
Site Notice
Site Notice
Not archived · Council Link
STATUTORY BIODIVERSITY METRIC CALC MACRO ENABLED TOOL 23 07 2024
BNG Metric
Not archived · Council Link

Take Action

Make your voice heard. Authorities need to hear from people who support new homes.

✉️ Write Email in Support View on Council Portal