← Back to Wakefield Council

Status

Awaiting decision
Received
03 Jun 2025
New dwellings
n/a

Summary

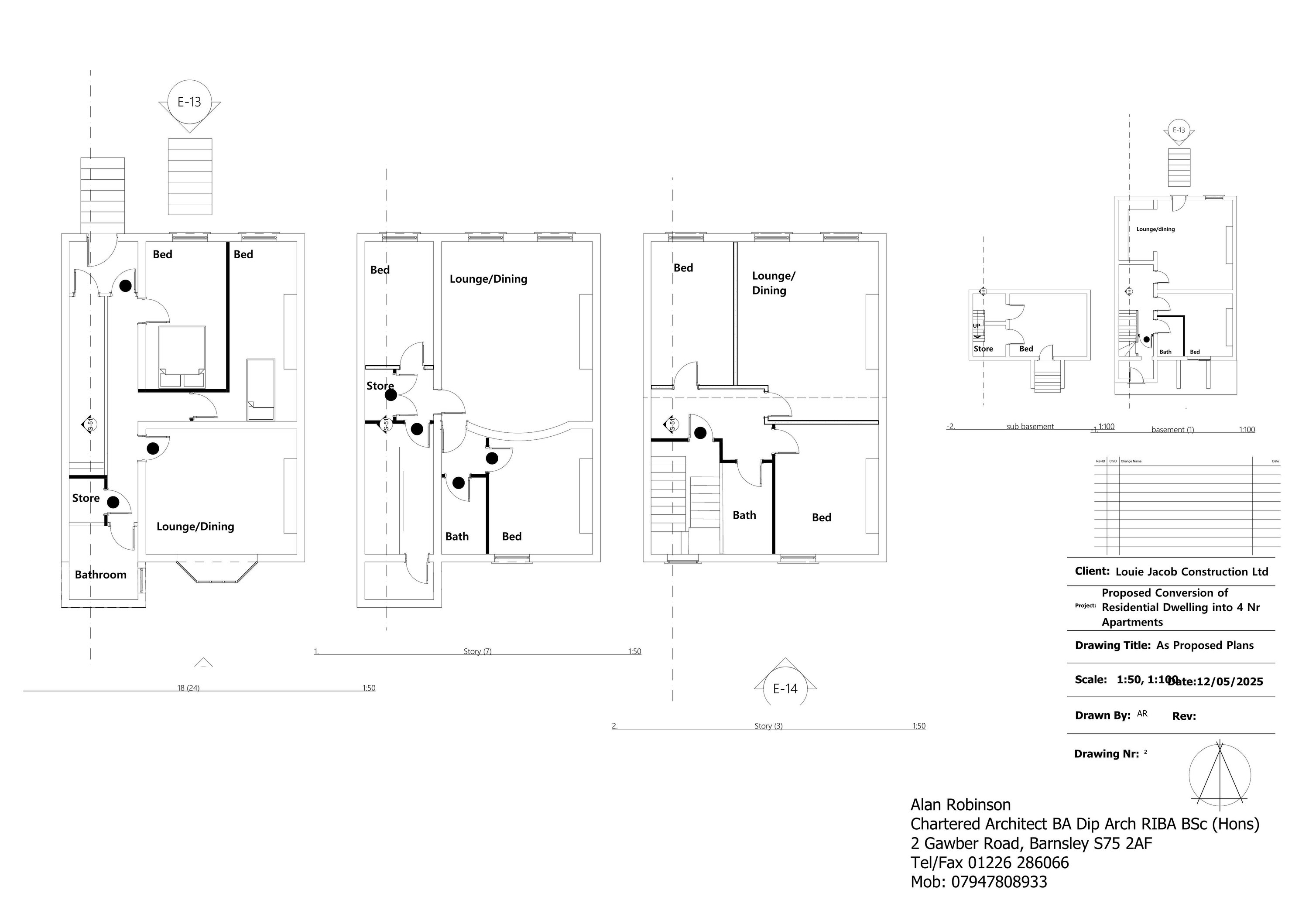
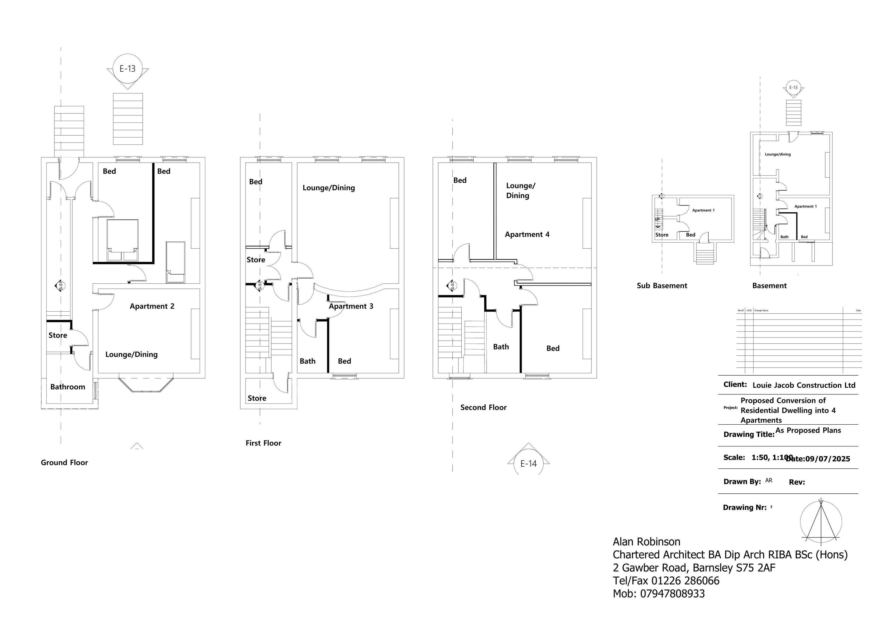
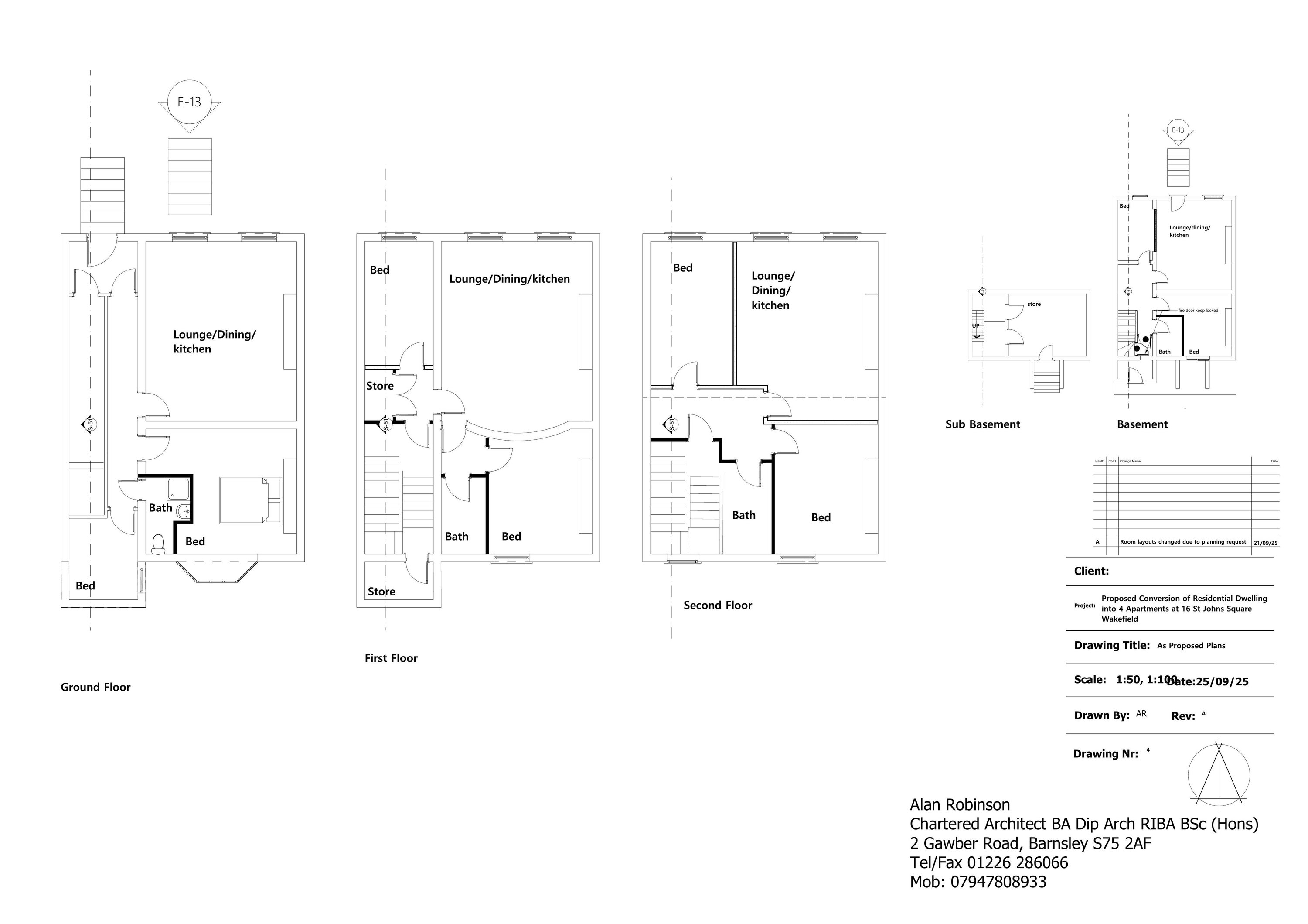
Conversion of existing building to four apartments and widening of rear vehicular access.

Full Proposal

Conversion of existing building to 4no apartments and the associated widening of vehicular access to rear (part-retrospective)

Documents

APPLICATIONFORMREDACTED
Application Form
Not archived · Council Link
AS EXISTING PLANS
Superseded Drawing
Not archived · Council Link
AS PROPOSED ELEVATIONS
Superseded Drawing
Not archived · Council Link
Superseded Drawing
Archived · Council Link
Conservation Officer Consultee Comments
Conservation Officer Consultee Comments
Not archived · Council Link
EXISTING BASEMENT/GF PLANS
Amended Drawing
Not archived · Council Link
EXISTING BOUNDARY WALL
Drawing
Not archived · Council Link
EXISTING FF/SF PLANS
Amended Drawing
Not archived · Council Link
EXISTING FLOOR PLANS
Superseded Drawing
Not archived · Council Link
HERITAGE STATEMENT
Heritage Statement
Not archived · Council Link
HIGHWAYS DEVELOPMENT MANAGEMENT WAKEFIELD COUNCIL
Consultee Comment
Not archived · Council Link
LOCATION PLAN S1 1:1250
Drawing
Not archived · Council Link
PHOTOS FOR HERITAGE STATEMENT
Heritage Statement
Not archived · Council Link
PROPOSED BOUNDARY WALL
Drawing
Not archived · Council Link
PROPOSED ELEVATIONS
Amended Drawing
Not archived · Council Link
Amended Drawing
Archived · Council Link
Superseded Drawing
Archived · Council Link
Superseded Drawing
Archived · Council Link
Superseded Drawing
Archived · Council Link
Drawing
Archived · Council Link

Take Action

Make your voice heard. Authorities need to hear from people who support new homes.

✉️ Write Email in Support View on Council Portal